Với không ít những công trình khách sạn 4 sao đẳng cấp đã gắn mác tại 3 miền của đất nước hình chữ S, lĩnh vực thiết kế khách sạn của Công ty Cổ phần Tư vấn Xây dựng Sơn Hà (SHAC) tự hào và trân trọng khi giành được niềm tin thị trường cùng sự yêu mến của các Quý đối tác, Quý khách hàng trên toàn quốc. Với vị thế nổi bật đã được khẳng định trong việc thiết kế và thi công những công trình có phong cách kiến trúc châu Âu sang trọng, SHAC tiếp tục để lại dấu ấn với dự án thiết kế khách sạn 4 sao 2 mặt tiền sang trọng SH KS 0021.

Trong nội dung bài viết hôm nay của chuyên mục Khách sạn - Tòa nhà SHAC, chúng tôi trân trọng giới thiệu đến bạn đọc hồ sơ thiết kế khách sạn 4 sao 2 mặt tiền sang trọng mã số SH KS 0021. Đây là công trình thuộc sở hữu của Công ty TNHH Dịch vụ và Du lịch Hương Việt, dự kiến được hoàn thiện xây dựng trước tháng 06 năm 2016 tại thành phố Quy Nhơn (tỉnh Bình Định).
NỘI DUNG CHÍNH
Dưới đây là chi tiết hồ sơ thiết kế khách sạn cổ điển hai mặt tiền tiêu chuẩn 4 sao chúng tôi đã đề cập. SHAC kính chúc bạn đọc có được những thông tin tham khảo hữu ích.
Tọa lạc trên khu đất có diện tích 1000m2, công trình sở hữu những điều kiện lý tưởng cả trong thiết kế xây dựng và kinh doanh dịch vụ với hai mặt tiền rộng. Mặt tiền 25m hướng về con phố chính của thành phố Quy Nhơn được lựa chọn là phần không gian chính, thể hiện tốt nhất, chủ đáo nhất ý tương thiết kế và nhận diện của toàn khách sạn. Tuy nhiên, mặt sau khách sạn với kiến trúc cổ điển độc đáo cũng không hề thua kém trong việc hỗ trợ hiệu quả cho việc quảng bá các dịch vụ tổ chức tiệc cưới của Hương Việt.
Song song với việc tiếp tục trao đổi các ý tưởng về thiết kế kiến trúc SH KS 0021, chúng tôi mời bạn đọc chiêm ngưỡng thêm phối cảnh của công trình từ những góc view khác nhau:


Đối với ý tưởng thiết kế kiến trúc mặt tiền 25m, tại sảnh tầng 1, các kiến trúc sư SHAC đã lựa chọn cách gây ấn tượng cho không gian này bằng cách sử dụng toàn bộ hệ cột đăng đối và quy mô – một trong những chi tiết kiến trúc nổi bật của phong cách kiến trúc châu Âu. Bên cạnh đó, vật liệu và màu sắc được sử dụng tại không gian này cũng rất được chú trọng với những tiêu chuẩn khắt khe. Cụ thể, màu vàng đồng được lựa chọn làm tone màu chủ đạo phủ bóng lên toàn bộ gạch ốp mặt tiền. Vật liệu kính được điểm tô một cách tinh tế giúp kiến trúc sảnh và cả tầng 1 vô cùng sang trọng và mãn nhãn.
Dưới đây là kiến trúc mặt sau của công trình:


Tương xứng với kiến trúc mặt trước, qua phối cảnh chúng tôi giới thiệu ở trên bạn đọc có thể thấy mặt sau của khách sạn này cũng được chú trọng đến từng tiểu tiết. Phần kết nổi giữa hai chi tiết này cũng là điểm rất đáng bàn. Lựa chọn các khối lượn sóng mềm mại và khang trang cùng cách trang trí mặt tiền các tầng sáng và linh hoạt, các kiến trúc sư SHAC đã rất thành công khi mang đến cho SH KS 0021 một diện mạo thanh lịch, thể hiện được đẳng cấp và vị thế của chủ đầu tư cũng như làm toát lên cốt cách chuyên nghiệp của các dịch vụ mà khách sạn cung cấp.
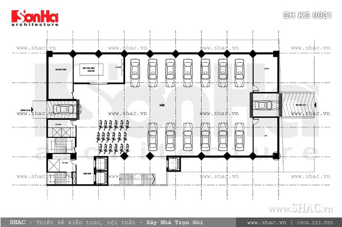
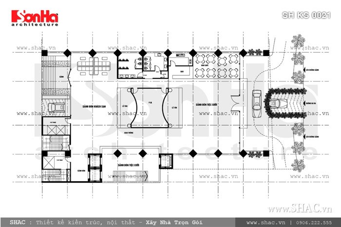
Chúng tôi mời bạn đọc tham khảo mặt bằng công năng của công trình tại đây:





Trong bài viết tiếp theo, chúng tôi sẽ giới thiệu đến bạn đọc phương án thiết kế nội thất của khách sạn 4 sao quy mô này. SHAC trân trọng cảm ơn sự nhiệt thành hợp tác mà Quý đối tác và Quý khách hàng đã dành cho chúng tôi trong suốt thời gian qua.
Mọi chi tiết xin liên hệ:
CÔNG TY CỔ PHẦN TƯ VẤN XÂY DỰNG SƠN HÀ (SHAC)
Trụ sở chính: Số 55, đường 22, KĐT Waterfront City, Lê Chân, Hải Phòng
Văn phòng đại diện
Ảnh khác
Bình luận