300+ Mẫu Thiết Kế Biệt Thự 2 Tầng Đẹp, Đẳng Cấp 2025
Biệt thự 2 tầng là loại hình nhà ở phổ biến được nhiều gia đình lựa chọn tại Sơn Hà Group. Dưới đây, mời gia chủ cùng khám phá các mẫu thiết kế biệt thự 2 tầng đẹp, xu hướng nhất trên thị trường hiện nay quá bài viết dưới đây.
>> ĐỪNG BỎ LỠ: 100 Mẫu thiết kế biệt thự đẹp, đẳng cấp bắt kịp xu hướng
NỘI DUNG CHÍNH
- 1. Ưu điểm thiết kế biệt thự 2 tầng
- 2. Tiêu chuẩn thiết kế biệt thự 2 tầng cần biết
- 3. Mẫu thiết kế biệt thự 2 tầng đẹp, hiện đại theo phong cách
- 4. Mẫu biệt thự hiện đại 2 tầng theo thiết kế mái
- 5. Một số mẫu thiết kế biệt thự 2 tầng đẹp theo diện tích được ưa chuộng
- 6. Mẫu thiết kế biệt thự 2 tầng kiểu vườn đẹp được ưa chuộng
- 6.1 Biệt thự vườn 2 tầng hiện đại
- 6.2 Biệt thự 2 tầng có bể bơi
- 6.3 Biệt thự 2 tầng có gara
- 6.4 Mẫu thiết kế biệt thự đẹp 2 tầng có tầng hầm
- 6.5 Mẫu biệt thự hiện đại 2 tầng 4 phòng ngủ
- 6.6 Mẫu biệt thự 2 tầng 1 tum
- 6.7 Biệt thự nghỉ dưỡng 2 tầng
- 6.8 Thiết kế biệt thự 2 tầng chữ L
- 6.9 Mẫu biệt thự hiện đại 2 tầng 5 phòng ngủ
- 6.10 Biệt thự đẹp 2 tầng 2 mặt tiền
- 6.11 Mẫu biệt thự 2 tầng 3 phòng ngủ
- 6.12. Biệt thự đẹp 2 tầng 3 gian
- 6.13 Biệt thự thiết kế 2 tầng 6 phòng ngủ
- 6.14 Mẫu biệt thự 2 tầng phòng thờ tầng 1
- 7. Những lưu ý thiết kế biệt thự 2 tầng gia chủ cần biết
- 8. Vì sao nên sử dụng thiết kế biệt thự 2 tầng đẹp tại Sơn Hà Group?
- 9. Giá thiết kế biệt thự hiện đại 2 tầng tại Sơn Hà Group hiện nay
1. Ưu điểm thiết kế biệt thự 2 tầng
Biệt thự 2 tầng là thiết kế ngày càng được ưa chuộng bởi những ưu điểm vượt trội sau:
- Tối ưu chi phí tài chính:Thiết kế biệt thự 2 tầng có chi phí xây dựng vừa phải, phù hợp với hầu hết các chủ đầu tư. Với ngân sách xây dựng từ 2,5 – 3 tỷ đồng, gia chủ có thể sở hữu một mẫu biệt thự 2 tầng có diện tích 140-160m2.
- Đa dạng phong cách thiết kế: Biệt thự 2 tầng phù hợp với nhiều phong cách thiết kế khác nhau. Với diện tích vừa phải, gia chủ có thể lựa chọn các phong cách thiết kế Hiện đại hay Cổ điển tùy theo sở thích và nhu cầu thiết kế của gia chủ.
- Gia tăng không gian sinh hoạt: Với diện tích đủ lớn và không gian sống được bố trí một cách khoa học, biệt thự 2 tầng hoàn toàn phù hợp và đáp ứng được nhu cầu sống của các thành viên trong một gia đình có từ 3 thế hệ.
2. Tiêu chuẩn thiết kế biệt thự 2 tầng cần biết
2.1. Tiêu chuẩn thiết kế về diện tích
Diện tích xây dựng của biệt thự 2 tầng cần được tính toán dựa trên số lượng thành viên trong gia đình, phong cách thiết kế và nhu cầu sử dụng để đảm bảo không gian thiết kế đáp ứng đầy đủ nhu cầu sử dụng của các thành viên trong gia đình. Thông thường, một biệt thự 2 tầng cần có diện tích tối thiểu từ 100m2 để đảm bảo được kết cấu kiến trúc, sự tiện nghi, tính thẩm mỹ cho biệt thự.
2.2. Tiêu chuẩn phong thủy trong thiết kế
Bên cạnh việc tuân thủ tiêu chuẩn về diện tích thiết kế, gia chủ cũng cần chú ý đến yếu tố phong thủy cũng như sự cân bằng trong thiết kế các không gian.
- Yếu tố sơn thủy: Biệt thự nên được xây dựng ở vị trí có sông hồ ở trước và có núi nâng đỡ phía sau.
- Yếu tố minh đường: Yếu tố minh đường ý chỉ tỉ lệ không gian và dòng chảy của nước trong thiết kế biệt thự. Vị trí minh đường đẹp cần có nước chảy uốn lượn, thông thoáng, không bị che chắn, không gian thoáng mát, thư thái. Vị trí như vậy mới mang đến nhiều tài lộc và may mắn cho gia chủ.
- Thế đất: Đây là yếu tố vô cùng quan trọng trong thiết kế biệt thự. Gia chủ nên thiết kế nhà ở trên thế đất bằng phẳng có khả năng chịu lực tốt. Điều này sẽ giúp biệt thự có tuổi thọ lâu hơn. Với miếng đất có độ dốc nhất định, gia chủ nên thiết kế nhà theo địa thế lưng nhà tựa sườn dốc và quay hướng nhà nhìn xuống dốc. Thế đất như vậy sẽ tạo cảm giác vững chãi cho ngôi nhà và có lợi cho sự phát triển của gia đình.
3. Mẫu thiết kế biệt thự 2 tầng đẹp, hiện đại theo phong cách
Các mẫu biệt thự 2 tầng là thiết kế được ưa chuộng bởi sự sang trọng, tiện nghi và phù hợp với nhu cầu sống của đa số các gia đình hiện đại. Dưới đây là một số mẫu thiết kế biệt thự 2 tầng nổi bật trong năm 2024, mời các gia chủ tham khảo.
3.1 Mẫu thiết kế biệt thự 2 tầng Tân cổ điển
Nhắc đến biệt thự Tân cổ điển, chúng ta không thể không nhắc đến mái Mansard, kiến trúc mái đặc trưng với khối mái hình thang sẫm màu, thích hợp để gia chủ tạo một tầng áp mái ấm áp vào mùa đông và mát mẻ vào mùa hè.
Biệt thự 2 tầng sở hữu nhiều mẫu mã đa dạng, đáp ứng mọi nhu cầu và sở thích của gia chủ như: biệt thự 2 tầng 1 tum Tân cổ điển, biệt thự 2 tầng Tân cổ điển mái thái, biệt thự 2 tầng Tân cổ điển có tầng hầm, biệt thự 2 tầng Tân cổ điển châu Âu, và biệt thự vườn 2 tầng Tân cổ điển,...
- Mẫu thiết kế biệt thự 2 tầng phong cách tân cổ điển của ông Vũ Đình Lương:
| ✅ Chủ đầu tư | Ông Vũ Đình Lương |
| ✅ Loại hình | Biệt thự cổ điển |
| ✅ Diện tích | 162m2 (9x18m) |
| ✅ Mặt tiền | Mặt tiền 9m |
| ✅ Đơn vị thi công | Sơn Hà Group (#SHAC) |
| ✅ Công năng |
|

Thiết kế công năng của dự án:


Biệt thự được thiết kế theo phong cách Tân cổ điển với các hình khối đối xứng được sắp xếp hài hòa. Phong cách Tân cổ điển mang đến sự sáng tạo độc đáo cho thiết kế của biệt thự 2 tầng. Việc sắp xếp các khối kiến trúc xen kẽ giúp mặt tiền ngôi nhà có chiều sâu hơn, tạo nên vẻ bề thế, nguy nga đặc trưng của kiến trúc Tân cổ điển.
>>>> KHÁM PHÁ THÊM: Biệt thự 2 tầng tân cổ điển
3.2 Thiết kế biệt thự 2 tầng kiểu Châu Âu (biệt thự 2 tầng Pháp)
Mẫu thiết kế biệt thự 2 tầng được xây dựng theo phong cách châu Âu hay còn được biết đến là mẫu biệt thự 2 tầng kiểu Pháp. Thiết kế này mang đến vẻ đẹp tinh tế, sang trọng và đẳng cấp với thiết kế mái vòm cong tạo ra sự quý phái đặc trưng của phong cách hoàng gia châu Âu xưa. Tựu chung, các biệt thự châu Âu thường có từ 2-3 tầng và thường sử dụng các cột trụ lớn, bo tròn, mang cảm giác khỏe khoắn và uy nghiêm.
- Mẫu thiết kế biệt thự 2 tầng Châu Âu của ông Ngô Vĩnh Thọ:
| ✅ Chủ đầu tư | Ông Ngô Vĩnh Thọ |
| ✅ Loại hình | Biệt thự tân cổ điển |
| ✅ Diện tích | 147,2m2 (9,2m x 16m) |
| ✅ Mặt tiền | Mặt tiền 9m2 |
| ✅ Đơn vị thi công | Sơn Hà Group (#SHAC) |
| ✅ Công năng |
|

Thiết kế công năng của dự án:


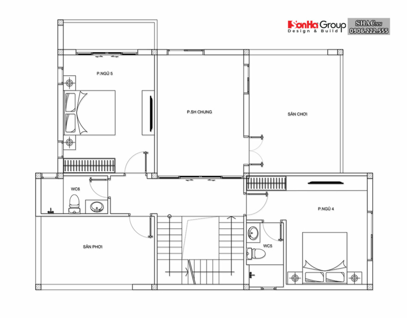
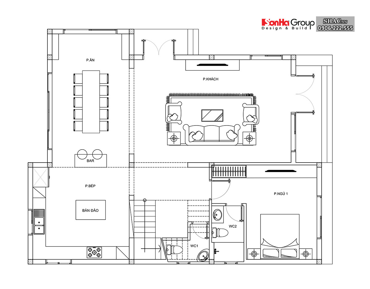
Biệt thự 2 tầng 3 phòng ngủ của gia chủ Ngô Vĩnh Thọ mang phong cách kiến trúc La Mã kết hợp với nét đẹp mạnh mẽ và trẻ trung của phong cách Hiện đại. Sự hòa quyện này tạo ra một dấu ấn Hiện đại, khỏe khoắn nhưng vẫn giữ được vẻ đẹp Cổ điển của Châu Âu.
Điểm đặc biệt ở đây là dù có chỉ 2 tầng, căn biệt thự vẫn sở hữu đến 6 phòng ngủ. Thiết kế này rất phù hợp với những gia đình có nhiều thành viên hoặc những chủ nhà thường có họ hàng hay khách khứa ở chơi dài ngày.
>>>> TÌM HIỂU THÊM: Biệt thự 2 tầng kiểu châu âu
3.3 Mẫu biệt thự Hiện đại 2 tầng
Đặc trưng của biệt thự Hiện đại là hệ thống cửa kính lớn giúp mở rộng diện tích và tăng thêm sự thoáng đãng cho không gian sống. Các hình khối vuông vức mang đến sự đơn giản và đảm bảo tính thẩm mỹ cao, không bao giờ lỗi thời.
- Mẫu thiết kế biệt thự 2 tầng của ông Khoan:
| ✅ Chủ đầu tư | Ông Khoan |
| ✅ Loại hình | Biệt thự hiện đại |
| ✅ Diện tích | 64m2 (8m x 8m) |
| ✅ Mặt tiền | Mặt tiền 8m |
| ✅ Đơn vị thi công | Sơn Hà Group (#SHAC) |
| ✅ Công năng | Phòng khách; phòng bếp; 2 phòng vệ sinh; 1 phòng ngủ; sân chơi |

Thiết kế công năng của dự án:


Nhìn chung, các biệt thự hiện đại sở hữu vẻ ngoài đơn giản nhưng rất được các gia chủ yêu thích bởi tính đa năng trong thiết kế. Ông Khoan đã đặt nhiều ô kính vào trong biệt thự của mình để đảm bảo ngôi nhà luôn thông thoáng, rộng rãi, không bị gò bó bởi diện tích vốn có.
Liên hệ ngay để được tư vấn miễn phí.
Tư vấn thiết kế miễn phí: 0906.222.555
>>>> THAM KHẢO THÊM: 100 Mẫu thiết kế biệt thự đẹp hiện đại, sang trọng mới nhất
3.4 Mẫu thiết kế biệt thự 2 tầng Cổ điển
Biệt thự 2 tầng phong cách Cổ điển hoặc Bán cổ điển ghi điểm bởi vẻ đẹp sang trọng, đẳng cấp với hệ thống mái vòm đặc trưng và diện tích rộng lớn. Nổi bật là những chi tiết trang trí tỉ mỉ, công phu, thể hiện sự tinh tế và đẳng cấp vượt trội so với các mẫu thiết kế Tân cổ điển.
Điểm nhấn của biệt thự 2 tầng Cổ điển/Bán cổ điển chính là các họa tiết tinh tế, uốn cong cùng với những đường nét mềm mại. Những chi tiết này tạo nên sự uyển chuyển, thanh lịch, mang đến cảm giác như lạc vào một không gian hoàng gia châu Âu đầy kiêu hãnh.
Mời gia chủ cùng tham khảo thiết kế ấn tượng của hai mẫu biệt thự Cổ điển được chúng tôi thực hiện dưới đây.
- Mẫu biệt thự 2 tầng đẹp phong cách Cổ điển của bà Nguyễn Thị Loan:
| ✅ Chủ đầu tư |
Bà Nguyễn Thị Loan
|
| ✅ Loại hình | Biệt thự lâu đài cổ điển |
| ✅ Diện tích | 408,08 m2 (22,13mx18,44m) |
| ✅ Mặt tiền | Mặt tiền 22m13 |
| ✅ Đơn vị thi công | Sơn Hà Group (#SHAC) |
| ✅ Công năng | Gara để xe; phòng khách; phòng bếp; phòng ngủ; phòng khách chính; phòng khách nhỏ; sảnh; 5 phòng ngủ; phòng sinh hoạt chung; phòng thay đồ, các phòng vệ sinh. |

Ngoài ra, bạn có thể tham khảo về thiết kế công năng, mặt bằng nhà biệt thự 2 tầng sau:


Biệt thự 2 tầng 5 phòng ngủ có diện tích hơn 400m2 của gia đình Nguyễn Thị Loan đã lấy cảm hứng từ phong cách kiến trúc châu Âu cổ điển, biệt thự mang đến một không gian sống sang trọng, đẳng cấp và đầy ấn tượng. Hệ thống tiểu cảnh được bố trí tinh tế xung quanh, tạo nên một bức tranh ngoại cảnh hoàn hảo, như đưa gia chủ bước vào thế giới hoàng tộc xa hoa. Nổi bật trong thiết kế là hệ thống mái vòm lớn theo phong cách Anh quốc, kết hợp với tone màu vàng chủ đạo, càng tôn lên vẻ đẹp uy nghi và tráng lệ của công trình.
Biệt thự là một trong những thiết kế ấn tượng mà Sơn Hà đã thực hiện, không chỉ về hoa tiết trang trí ngoại thất mà còn bởi hệ thống nội thất đa dạng và kiểu cách bên trong.
3.5 Thiết kế biệt thự kiểu Mỹ 2 tầng
Biệt thự 2 tầng kiểu Mỹ mang đến không gian sống gần gũi thiên nhiên với phong cách nhà vườn độc đáo. Nổi bật trong thiết kế này là hệ thống cây xanh rộng lớn được chăm sóc tỉ mỉ, tạo nên một bầu không khí trong lành và mát mẻ quanh năm.

>>>> GỢI Ý: 100 Mẫu thiết kế biệt thự 3 tầng đẹp, hiện đại, đẳng cấp 2023
3.6 Mẫu biệt thự kiểu Nhật
Biệt thự 2 tầng kiểu Nhật nổi tiếng với thiết kế tối giản và gần gũi với thiên nhiên. Biệt thự sử dụng các nguyên liệu tự nhiên như tre, trúc, nứa và đá, biệt thự 2 tầng Nhật Bản mang đến cảm giác ấm áp, mộc mạc và thanh lịch.
Gam màu chủ đạo của biệt thự kiểu Nhật thường là màu xanh rêu, nâu gỗ và trắng be, tạo nên sự sang trọng, tinh tế và nhẹ nhàng. Tông màu này cũng góp phần hài hòa với thiên nhiên xung quanh, mang đến cho gia chủ một không gian sống thư thái, yên bình.

4. Mẫu biệt thự hiện đại 2 tầng theo thiết kế mái
4.1 Mẫu biệt thự 2 tầng đẹp thiết kế mái Thái
Biệt thự mái Thái đặc trưng bởi hệ thống mái được thiết kế đồng đều, dốc đều từ trên xuống dưới, tạo cảm giác mềm mại và thanh thoát cho tổng thể biệt thự. Kiểu mái này không chỉ mang lại giá trị thẩm mỹ cao mà còn có khả năng thoát nước tốt, giúp bảo vệ biệt thự khỏi các tác động của thời tiết, đặc biệt là vào mùa mưa.
Với biệt thự mái Thái, gia chủ có thể thoải mái lựa chọn các mẫu thiết kế khác nhau, phù hợp với sở thích và nhu cầu như: biệt thự 2 tầng mái thái chữ L, biệt thự 2 tầng mái thái Tân cổ điển, Hiện đại, Cổ điển,...
- Mẫu biệt thự 2 tầng mái thái của ông Dương Đức Mười:
| ✅ Chủ đầu tư | Ông Dương Đức Mười |
| ✅ Loại hình | Biệt thự nhà ở |
| ✅ Diện tích | 210m2 ( 10 x 21) |
| ✅ Mặt tiền | Mặt tiền 10m |
| ✅ Đơn vị thi công | Sơn Hà Group (#SHAC) |
| ✅ Công năng | Tầng 1 : Phòng khách (40m2), Phòng ngủ 1 và bếp ăn Tầng 2 : Gồm 03 phòng ngủ có wc khép kín, phòng thờ và Sảnh sinh hoạt chung |

Thiết kế công năng của dự án:


Nhìn chung, cách bố trí công năng của thiết kế biệt thự 2 tầng 3 phòng ngủ này không chỉ phù hợp với xu hướng thiết kế chung mà còn phù hợp với thói quen sinh hoạt của từng cá nhân trong gia đình. Căn biệt thự chủ yếu sử dụng đồ nội thất hơi hướng Cổ điển, đem lại cảm giác cân bằng cho tổng thể thiết kế của biệt thự.
Để được tư vấn chi tiết về thiết kế biệt thự 2 tầng, gia chủ hãy điền thông tin vào form dưới đây hoặc liên hệ với chúng tôi qua hotline 0906.222.555.
>>>> XEM THÊM: 8 Mẫu biệt thự 2 tầng mái thái hiện đại, tiện nghi
4.2 Thiết kế biệt thự mái Nhật 2 tầng
Biệt thự mái Nhật thu hút người nhìn bởi thiết kế mái cong mềm mại, lấy cảm hứng từ hình chiếc bánh ú, tạo nên sự thanh lịch và hiện đại. Điểm nhấn của biệt thự Nhật Bản nằm ở sự kết hợp khéo léo, linh hoạt giữa các khối hình tròn, hình lập phương và hình hộp chữ nhật, mang đến một cấu trúc nhà ở độc đáo và mãn nhãn.

Một nét đặc trưng không thể thiếu của biệt thự mái Nhật chính là khu vườn xanh mướt. Từng chi tiết tiểu cảnh được chăm chút tỉ mỉ, mang đến bầu không khí thư giãn, gần gũi với thiên nhiên. Vườn Nhật không chỉ là nơi để gia chủ nghỉ ngơi, thư giãn mà còn là điểm nhấn tô điểm cho vẻ đẹp tổng thể của ngôi nhà.
Biệt thự mái Nhật có nhiều mẫu thiết kế đa dạng, đáp ứng mọi nhu cầu và sở thích mà gia chủ có thể tham khảo như biệt thự 2 tầng mái Nhật Tân cổ điển, biệt thự 2 tầng mái Nhật Hiện đại, Cổ điển,...
4.3 Mẫu biệt thự 2 tầng mái bằng
Mái bằng là điểm nhấn tạo nên sự mới mẻ, phóng khoáng trong kiến trúc Hiện đại. Kiểu mái này mang đến sự linh hoạt trong việc bố trí các khối hình, giúp kiến trúc sư thỏa sức sáng tạo.
Ưu điểm vượt trội của biệt thự mái bằng đó là khả năng bền bỉ, chống chịu tốt trước mọi tác động của thời tiết. Biệt thự mái bằng cũng có diện tích đủ rộng để gia chủ tận dụng tối đa không gian cho sinh hoạt gia đình.
Mời gia chủ tham khảo ngay mẫu thiết kế biệt thự đẹp dưới đây:
- Mẫu thiết kế biệt thự 2 tầng mái thái của ông Võ Quang Chung:
| ✅ Chủ đầu tư | Ông Võ Quang Chung |
| ✅ Loại hình | Biệt thự hiện đại |
| ✅ Diện tích | 993m2 (40,1mx24,76m) |
| ✅ Mặt tiền | Mặt tiền 40m1 |
| ✅ Đơn vị thi công | Sơn Hà Group (#SHAC) |
| ✅ Công năng | Gara để xe; phòng khách; phòng bếp ăn; phòng sinh hoạt chung; bể bơi; khu phụ; các phòng ngủ; phòng đọc; các phòng vệ sinh; khu phơi giặt. |

Thiết kế công năng của dự án:


Sự kết hợp hài hòa giữa các yếu tố này mang đến cho biệt thự vẻ đẹp sang trọng, đẳng cấp và đầy tính thẩm mỹ.qua kiểu dáng nhà hộp vuông vức, hệ thống cửa kính rộng, đón ánh sáng tự nhiên vào không gian. Thiết kế mái bằng mang đến sự thanh lịch, tinh tế cho biệt thự.
>>>> TÌM HIỂU THÊM: 9 mẫu biệt thự 2 tầng mái bằng hiện đại, bắt kịp xu hướng 2023
4.4 Thiết kế biệt thự mái lệch có 2 tầng
Phong cách biệt thự mái lệch tầng đang trở thành xu hướng được nhiều gia chủ ưa chuộng bởi sự mới mẻ, tiện nghi và đầy sáng tạo. Thiết kế mái lệch giúp tối ưu hóa không gian, mang đến cảm giác trẻ trung, hiện đại cho ngôi nhà, thay thế cho vẻ đơn điệu của thiết kế mái truyền thống.
Mái lệch với độ dốc phù hợp giúp ngôi nhà thoát nước nhanh chóng, hạn chế tình trạng đọng nước, thấm dột. Ngoài ra, thiết kế mái lệch còn có ưu điểm là giúp tăng diện tích sử dụng của ngôi nhà. Gia chủ có thể tận dụng gác mái để làm phòng ngủ, phòng kho. Kiến trúc độc đáo của biệt thự mái lệch cũng giúp gia chủ khẳng định được cá tính và đẳng cấp của mình.
Mẫu biệt thự 2 tầng 4 phòng ngủ của ông Lê Quang Minh là minh chứng cho sự sáng tạo trong thiết kế mái lệch với sự kết hợp giữa các hình khối đơn giản, vuông vắn và gam màu be chủ đạo tạo cảm giác ấm áp, gần gũi. Họa tiết tinh tế, mềm mại cùng bản phối màu linh hoạt là cách các kiến trúc sư mang đến điểm nhấn ấn tượng cho biệt thự.
- Mời gia chủ tham khảo mẫu thiết kế dưới đây của ông Lê Quang Minh.
| ✅ Chủ đầu tư | Ông Lê Quang Minh |
| ✅ Loại hình | Biệt thự hiện đại |
| ✅ Diện tích | 188,5m2 (18,3m x 10,3m) |
| ✅ Mặt tiền | Mặt tiền 18m3 |
| ✅ Đơn vị thi công | Sơn Hà Group (#SHAC) |
| ✅ Công năng | Tầng 1: Gara ô tô; phòng khách; phòng bếp ăn; 1 phòng ngủ có vệ sinh khép kín; phòng vệ sinh chung cho cả tầng. Tầng 2: Phòng sinh hoạt chung; phòng ngủ master; 2 phòng ngủ có vệ sinh trong phòng. Tầng áp mái: Phòng thờ; kho; khu kỹ thuật. |

Thiết kế công năng của dự án:


Mẫu biệt thự 2 tầng 4 phòng ngủ này là sự kết hợp sáng tạo giữa những khối hình đơn giản, vuông vắn cùng gam màu be chủ đạo. Nó giúp tạo nên góc nhìn mới mẻ hơn trong thiết kế. Những đường nét hoạ tiết đầy tinh tế và mềm mại kết hợp cùng bản phối màu sắc linh hoạt đem đến một làn gió mới trong thiết kế của căn biệt thự.
>>>> KHÁM PHÁ THÊM: 6+ mẫu biệt thự 2 tầng mái lệch độc đáo, đẹp lôi cuốn
4.5 Biệt thự 2 tầng mái dốc
Mái dốc đang trở thành sự lựa chọn phổ biến cho thiết kế biệt thự 2 tầng bởi những ưu điểm vượt trội. Đây là thiết kế giúp gia chủ tiết chi phí thi công, mang đến vẻ đẹp thanh lịch, tinh tế cho ngôi nhà. Ngoài ra, mái dốc còn là giải pháp giúp ngôi nhà thoát nước nhanh chóng vào mùa mưa, hạn chế tình trạng ứ đọng, thấm dột.
Biệt thự mái dốc 2 tầng sở hữu hình thái kiến trúc độc đáo, thu hút mọi ánh nhìn, là thiết kế phù hợp với mọi diện tích đất và phong cách kiến trúc khác nhau.

Gia chủ hãy liên hệ với Sơn Hà qua hotline sau để được tư vấn miễn phí về công trình của mình.
Tư vấn thiết kế miễn phí: 0906.222.555
>>>> BẬT MÍ: 7 mẫu biệt thự 2 tầng mái dốc đẹp được ưa chuộng nhất
5. Một số mẫu thiết kế biệt thự 2 tầng đẹp theo diện tích được ưa chuộng
5.1 Mẫu biệt thự hiện đại 300m2
Những mẫu biệt thự 2 tầng 300m2 luôn nổi bật với lối kiến trúc khối hộp, tuy đơn giản nhưng lại vô cùng tinh tế và sang trọng. Sự linh hoạt trong việc sắp xếp các khối hộp tưởng chừng như đơn giản nhưng lại đòi hỏi kiến trúc sư phải có trình độ chuyên môn cao và sự thẩm mỹ tinh tế để ngôi nhà không quá cứng nhắc mà ngược lại, có sự chuyển mình uyển chuyển giữa dòng chảy hiện đại. Với diện tích 300m2, bạn có thể lựa chọn mẫu biệt thự 2 tầng hình vuông với nhiều phong cách khác nhau.
- Mẫu biệt thự 2 tầng 300m2 hiện đại của bà Hoàng Thị Trang:
| ✅ Chủ đầu tư | Bà Hoàng Thị Trang |
| ✅ Loại hình | Biệt thự Hiện đại |
| ✅ Diện tích | 300m2 ( 15 x 20m) |
| ✅ Mặt tiền | Mặt tiền 15m |
| ✅ Đơn vị thi công | Sơn Hà Group (#SHAC) |
| ✅ Công năng | Biệt thự gia đình, gồm 5 phòng ngủ, phòng khách, bếp hiện đại và tiện nghi |

Thiết kế mặt bằng biệt thự 2 tầng đẹp của dự án:



Mẫu biệt thự 2 tầng của bà Hoàng Thị Trang là minh chứng cho sự kết hợp hoàn hảo giữa tính hiện đại và đơn giản. Thiết kế bất đối xứng ngẫu nhiên cùng đường nét xây dựng tối giản đã tạo nên sự cá tính và hiện đại trong biệt thự.
Sự kết hợp linh hoạt giữa màu sắc và chất liệu thiết kế giúp ngôi nhà càng trở nên thu hút. Tông màu trung tính mang đến cảm giác hoài niệm và vững vàng. Hệ thống lan can kính cường lực cao cấp tạo hiệu ứng mở rộng không gian, đón ánh sáng tự nhiên, mang lại sinh khí cho ngôi nhà.
>>>> THAM KHẢO THÊM: TOP 5 biệt thự 2 tầng 300m2 tiện nghi, hiện đại bậc nhất
5.2 Thiết kế biệt thự 2 tầng hiện đại 200m2
Biệt thự 2 tầng 200m2 là lựa chọn phổ biến cho các gia đình trẻ bởi diện tích phù hợp, chi phí hợp lý và đáp ứng đầy đủ nhu cầu sinh hoạt. Thay vì những hoa văn cầu kỳ, thiết kế đơn giản và công năng đầy đủ được ưu tiên hàng đầu. Mời gia chủ tham khảo dự án biệt thự 2 tầng 200m2 của bà Lê Thị Ngọc Vân do Sơn Hà Group thực hiện dưới đây.
- Mẫu biệt thự hiện đại 200m2 của bà Lê Thị Ngọc Vân:
| ✅ Chủ đầu tư | Bà Lê Thị Ngọc Vân |
| ✅ Loại hình | Biệt thự phố hiện đại |
| ✅ Diện tích | 197,8m2 (8,6mx23m) |
| ✅ Mặt tiền | Mặt tiền 8m6 |
| ✅ Đơn vị thi công | Sơn Hà Group (#SHAC) |
| ✅ Công năng | Gara để xe; phòng khách; phòng bếp ăn; phòng sinh hoạt chung; 5 phòng ngủ; các phòng vệ sinh; phòng thờ. |



Dự án biệt thự SH BTD 0048 là thiết kế được đánh giá cao bởi cách bố trí công năng khoa học, kiến trúc hiện đại cùng gam màu trầm ấm đầy tinh tế. Đây là điểm đặc trưng của các căn biệt thự Hiện đại.
5.3 Mẫu biệt thự diện tích 120m2 2 tầng
Phong cách Tân cổ điển là mẫu thiết kế thu hút bởi sự sang trọng, tinh tế và đẳng cấp. Nổi bật trong các khu dân cư cao cấp là sự xuất hiện của những mẫu biệt thự 2 tầng 120m2 mang đậm dấu ấn kiến trúc Tân cổ điển với yếu tố thẩm mỹ và công năng được đảm bảo.
- Mẫu biệt thự hiện đại 120m2 của bà Phạm Đỗ Hùng:
| ✅ Chủ đầu tư | Ông Phạm Đỗ Hùng |
| ✅ Loại hình | Thiết kế biệt thự tân cổ điển |
| ✅ Diện tích | 136,62m2 (8,55m x 15,98m) |
| ✅ Mặt tiền | Mặt tiền 8m55 |
| ✅ Đơn vị thi công | Sơn Hà Group (#SHAC) |
| ✅ Công năng | Tầng 1: Phòng khách; phòng bếp ăn; 1 phòng ngủ, 1 phòng vệ sinh chung. Tầng 2: 1 phòng ngủ master; 2 phòng ngủ trẻ em; phòng thờ; 1 nhà vệ sinh chung. |

Thiết kế công năng của dự án:


Ngoại thất của biệt thự được thiết kế với màu trắng kem chủ đạo và công năng thiết kế khoa học, đáp ứng đầy đủ nhu cầu sinh hoạt của gia đình.
5.4 Biệt thự 2 tầng hiện đại 100m2
Biệt thự 2 tầng 100m2 (10x10) là lựa chọn hoàn hảo cho gia đình với diện tích vừa vặn, tiện nghi và tiết kiệm chi phí. Với diện tích đủ rộng, biệt thự 2 tầng 100m2 có thể đáp ứng đầy đủ công năng cho một gia đình với không gian đủ cho 2 phòng ngủ, 1 phòng khách, 2 nhà vệ sinh và 1 phòng thờ. Ngoài ra, đây cũng là mẫu nhà ở có chi phí xây dựng hợp lý với mức giá xây dựng chỉ từ 800 triệu - 1,2 tỷ đồng, phù hợp với khả năng tài chính của nhiều gia đình Việt.
Mời gia chủ tham khảo mẫu biệt thự 2 tầng 10x10 đẹp dưới đây:
- Mẫu thiết kế biệt thự 2 tầng 100m2 của bà Đào Thu Hà:
| ✅ Chủ đầu tư | Bà Đào Thu Hà |
| ✅ Loại hình | Thiết kế biệt thự hiện đại đẹp |
| ✅ Diện tích | 102,6m2 (7,6mx13,5m) |
| ✅ Mặt tiền | Mặt tiền 7m6 |
| ✅ Đơn vị thi công | Sơn Hà Group (#SHAC) |
| ✅ Công năng | Gara để xe; kho; phòng khách; phòng bếp ăn; 3 phòng ngủ; phòng thờ; sân phơi giặt; tiểu cảnh. |

Thiết kế công năng dự án:






Điểm nổi bật ở căn biệt thự của gia chủ Đào Thu Hà đó là sự kết hợp độc đáo giữa mái chéo hiện đại và mái Thái truyền thống, một thiết kế mang đến tổng thể ấn tượng, thu hút. Ngoài ra, biệt thự còn được mở rộng với tầng tum được bổ sung trong thiết kế giúp gia chủ có thêm diện tích cho sinh hoạt gia đình.
Mời gia chủ điền thông tin vào form đăng ký dưới đây để được tư vấn miễn phí.
>>>> ĐỪNG BỎ LỠ: 20 mẫu thiết kế biệt thự 10×10 đẹp ấn tượng, thu hút nhất
5.5 Mẫu biệt thự mini 2 tầng 80m2
Biệt thự mini 2 tầng 80m2 là lựa chọn hoàn hảo cho những gia đình yêu thích sự nhỏ gọn, ấm cúng và tiện nghi. Tuy diện tích không lớn, nhưng với thiết kế thông minh, bạn vẫn có thể sở hữu không gian sống đầy đủ công năng và mang tính thẩm mỹ cao.
Lưu ý khi thiết kế biệt thự 80m2:
- Lựa chọn lối kiến trúc đơn giản: Tích hợp công năng với bố trí nội thất thông minh để tối ưu diện tích.
- Tính toán kỹ lưỡng về kích thước xây dựng: Chiều cao tường rào, cổng nhà, nhà để đảm bảo sự hài hòa tổng thể.
- Tận dụng không gian xanh: Trồng cây xanh trước hoặc sau nhà để tạo sự thoáng mát.
Cùng tìm hiểu rõ hơn về dự án biệt thự 2 tầng 80m2 độc đáo do Sơn Hà Group thực hiện dưới đây:
- Mẫu biệt thự mini 2 tầng 80m2 tại Hải Phòng:
| ✅ Chủ đầu tư | Bà Lê Thị Khánh Hường |
| ✅ Loại hình | Biệt thự hiện đại |
| ✅ Diện tích | 92m2 |
| ✅ Mặt tiền | Mặt tiền 8m |
| ✅ Đơn vị thi công | Sơn Hà Group (#SHAC) |
| ✅ Công năng |
|





Điểm nổi bật trong mẫu thiết kế biệt thự 80m2 này là hệ thống cây xanh trang trí mặt tiền, mang đến sự mềm mại, tươi mới cho ngôi nhà. Hệ thống cửa kính rộng rãi giúp ngôi nhà thu hút ánh sáng tự nhiên, tạo cảm giác thoáng mát, thư giãn.
5.6 Biệt thự 2 tầng 150m2
Biệt thự 2 tầng 150m2 là thiết kế đang được rất nhiều người yêu thích bởi sự tiện nghi, linh hoạt và dễ dàng thiết kế. Diện tích này đáp ứng đầy đủ nhu cầu sinh hoạt cho gia đình với thiết kế công năng gồm: 2 phòng ngủ, 1 phòng thờ, 1 phòng bếp, 1 phòng khách và 2 nhà vệ sinh nhỏ.
Ngoài ra, gia chủ có thể tận dụng ban công để tạo mảng xanh cho ngôi nhà. Một lời khuyên dành cho các gia chủ thiết kế biệt thự 2 tầng với diện tích 150m2 là nên sử dụng thiết kế mái thái để ngôi nhà thêm thoáng đãng, hạn chế được sự nóng bức trong ngày hè.

5.7. Biệt thự 2 tầng 70m2
Biệt thự 2 tầng 70m2 là lựa chọn lý tưởng cho các gia đình trẻ bởi sự nhỏ gọn, tiện nghi và chi phí xây dựng hợp lý. Tuy nhiên, với diện tích hạn chế, gia chủ cần lưu ý đến yếu tố phong thủy trong thiết kế để tối ưu hóa không gian và mang lại sự may mắn, tài lộc cho gia chủ. Gia chủ cũng có thể tận dụng khoảng không gian phía trước: Đỗ xe, làm tiểu cảnh, khu vui chơi cho con nhỏ.

Ngoài ra, một lời khuyên cho gia chủ khi thiết kế biệt thự 70m2 2 tầng là nên sử dụng các tông màu trung tính để không gian thoáng đãng hơn, rộng hơn mà còn mang lại vẻ đẹp sang trọng, trang nhã.
>>>> TÌM HIỂU THÊM: TOP 6 mẫu biệt thự 2 tầng 70m2 đẹp không thể bỏ qua
5.8. Biệt thự mini 2 tầng 90m2 (nhà 2 tầng 9x10)
Biệt thự mini 2 tầng 90m2 có thể được xây dựng theo nhiều phong cách khác nhau, tuy nhiên, phong cách thiết kế hiện đại và tân cổ điển là lựa chọn lý tưởng cho biệt thự mini 2 tầng bởi những ưu điểm vượt trội mà hai phong cách thiết kế này mang đến như tối ưu không gian sống, tận dụng tối đa ánh sáng tự nhiên, gần gũi với thiên nhiên.

Bên cạnh đó, hai phong cách thiết kế Hiện đại và Tân cổ điển còn là thiết kế phù hợp với gia đình có thu nhập trung bình, với thiết kế không gian mở tạo sự liên kết giữa các khu vực chức năng và kiến trúc độc đáo, cân xứng và thu hút.
Ngoài biệt thự 2 tầng 90m2, Sơn Hà Group còn cung cấp nhiều mẫu biệt thự 2 tầng khác như: 500m2, 400m2,... đáp ứng mọi nhu cầu và sở thích của khách hàng.
>>>> KHÁM PHÁ CHI TIẾT: Gợi ý 3 mẫu biệt thự 2 tầng 90m2 tiện nghi, chi phí thấp
6. Mẫu thiết kế biệt thự 2 tầng kiểu vườn đẹp được ưa chuộng
6.1 Biệt thự vườn 2 tầng hiện đại
Biệt thự nhà vườn 2 tầng là lựa chọn lý tưởng cho những ai yêu thích không gian sống xanh mát, yên bình. Thường được xây tại vùng ngoại ô thanh tĩnh, biệt thự mang đến khung cảnh thiên nhiên thơ mộng, không khí trong lành và cảm giác thư giãn tuyệt vời cho gia đình.

Biệt thự nhà vườn 2 tầng sở hữu phong cách thiết kế đa dạng với không gian sống lý tưởng cho cả gia đình. Tùy vào diện tích xây dựng cụ thể mà gia chủ có thể xây biệt thự vườn 2 tầng 3 phòng ngủ, biệt thự nhà vườn 2 tầng 4 phòng ngủ,... cho ngôi nhà của mình.
>>>> THAM KHẢO THÊM: TOP 4 biệt thự nhà vườn 2 tầng đẹp xu hướng thiết kế mới
6.2 Biệt thự 2 tầng có bể bơi
Biệt thự 2 tầng có bể bơi - xu hướng sống đẳng cấp, thời thượng được nhiều người ưa chuộng bởi không gian sống rộng rãi, thiết kế hiện đại, trẻ trung và bể bơi riêng tư giúp gia chủ giải tỏa căng thẳng và thư giãn tinh thần sau ngày làm việc mệt mỏi.

Thiết kế biệt thự 2 tầng có bể bơi là thiết kế linh hoạt, phù hợp với nhiều diện tích và nhu cầu sử dụng khác nhau. Với cách bố trí không gian khoa học và tận dụng nguồn sáng tự nhiên hiệu quả, biệt thự 2 tầng có bể bơi sẽ là không gian sống đẳng cấp, tiện nghi cho cả gia đình.
>>>> XEM THÊM: 10 mẫu thiết kế biệt thự hiện đại có bể bơi đẹp, bắt kịp xu hướng 2023
6.3 Biệt thự 2 tầng có gara
Biệt thự 2 tầng có gara mang đến sự tiện nghi, sang trọng và giải pháp hoàn hảo cho cuộc sống hiện đại. Mẫu biệt thự này được xây dựng với nhiều phong cách thiết kế khác nhau từ Tân cổ điển, Cổ điển, Hiện đại,... với thiết kế gara linh hoạt được tùy chỉnh vị trí phù hợp để phù hợp với diện tích và không gian của ngôi nhà. Với một biệt thự 2 tầng, gia chủ có thể đặt gara ở tầng hầm hoặc tầng 1 trong nhà.

Để mang lại không gian sống tiện nghi, thoải mái cho gia đình, thiết kế biệt thự 2 tầng có gara cần được tính toán kỹ lưỡng các yếu tố thiết kế nhằm đảm bảo sự hài hòa giữa các không gian, sự tiện nghi trong sinh hoạt và tính thẩm mỹ của tổng thể ngôi nhà.
>>>> KHÁM PHÁ THÊM: TOP 6 thiết kế biệt thự 2 tầng có gara đẹp xu hướng 2023
6.4 Mẫu thiết kế biệt thự đẹp 2 tầng có tầng hầm
Biệt thự 2 tầng có tầng hầm là hiết kế giúp gia chủ tận dụng tối đa diện tích của ngôi nhà. Với thiết kế linh hoạt, gia chủ có thể bố trí tầng hầm theo hướng phù hợp phong thủy, đảm bảo sự tiện nghi và thẩm mỹ cho ngôi nhà. Tầng hầm thông trực tiếp ra đường phố, mang đến sự thuận tiện tối đa cho gia chủ.
Trong quá trình thiết kế biệt thự 2 tầng có tầng hầm, gia chủ cần lưu ý, lựa chọn vật liệu xây dựng phù hợp như gạch chịu lực tốt, đảm bảo an toàn cho ngôi nhà. Thiết kế hệ thống chống thấm, thông gió hiệu quả để bảo vệ tầng hầm khỏi tác động của môi trường. Đối với các mẫu biệt thự có tầng hầm, gia chủ có thể bố trí 1 phòng khách ngay chỗ ra vào kèm với 1 nhà bếp, 3 phòng ngủ, 2 nhà vệ sinh, 1 phòng thờ,...
>>>> THAM KHẢO: Mẫu nhà 2 tầng có tầng hầm tiện nghi, thiết kế sang trọng
6.5 Mẫu biệt thự hiện đại 2 tầng 4 phòng ngủ
Mẫu biệt thự 2 tầng 4 phòng ngủ đang dần trở thành lựa chọn hàng đầu cho những ai mong muốn sở hữu không gian sống hoàn hảo. Với thiết kế thông minh, biệt thự 2 tầng 4 phòng ngủ sở hữu không gian rộng rãi đáp ứng nhu cầu sinh hoạt của một gia đình nhiều thế hệ. Hệ thống công năng tiện ích giúp cuộc sống của các thành viên trong gia đình trở nên thoải mái hơn. Ở mẫu biệt thự này, gia chủ có thể chọn thiết kế theo các phong cách hiện đại đơn giản giúp tối ưu không gian, tạo sự thoáng đãng và mát mẻ cho ngôi nhà.

Trong quá trình xây dựng biệt thự 2 tầng 4 phòng ngủ, gia chủ cần lưu ý lựa chọn phong cách thiết kế, vật liệu xây dựng phù hợp với diện tích và nhu cầu, sở thích của gia đình. Đồng thời, thiết kế cần phù hợp với ngân sách xây dựng hiện có.
Thông thường, biệt thự 2 tầng 4 phòng ngủ phong cách Cổ điển sẽ có giá thành cao hơn so với phong cách Tân cổ điển và Hiện đại. Bên cạnh đó, giá thành xây biệt thự 2 tầng 4 phòng ngủ còn phụ thuộc vào các yếu tố khác như vật liệu xây dựng, địa điểm xây dựng, quy mô biệt thự. Do đó, gia chủ cần tính toán kỹ lưỡng để có được biệt thự phù hợp nhất.
>>>> THAM KHẢO THÊM: 8 Mẫu biệt thự 2 tầng 4 phòng ngủ thiết kế ấn tượng 2023
6.6 Mẫu biệt thự 2 tầng 1 tum
Không bị gò bó trong khuôn mẫu như nhà phố thông thường, biệt thự 2 tầng 1 tum mang đến làn gió mới cho kiến trúc nhà ở, kết hợp hoàn hảo giữa thẩm mỹ và công năng. Thiết kế tầng tum được hiểu là một tầng nhỏ được xây dựng thêm để che cầu thang đi lên phần sân thượng. Thông thường, tầng tum sẽ được gia chủ thiết kế theo kiểu mái bằng đẹp. Tuy nhiên, với thiết kế đa dạng như hiện nay, tầng tum được sử dụng thêm như một phần trang trí của ngôi nhà, gia chủ có thể tận dụng tầng tum thành khu vực đa chức năng phù hợp.

Không gian tầng tum có thể được sử dụng để làm sân chơi, bố trí tiểu cảnh, phòng thờ, phòng ngủ, phòng giải trí,... tùy vào mục đích của gia chủ. Thiết kế biệt thự 2 tầng 1 tum (biệt thự 2 tầng có sân thượng) là sự lựa chọn thông minh dành cho những gia chủ muốn tối ưu không gian sống với ngân sách vừa phải.
>>>> TÌM HIỂU THÊM: TOP 7 mẫu biệt thự 2 tầng 1 tum được ưa chuộng nhất 2023
6.7 Biệt thự nghỉ dưỡng 2 tầng
Biệt thự nghỉ dưỡng 2 tầng - sự kết hợp hoàn hảo giữa không gian sống tiện nghi, sang trọng và hệ thống tiện ích đẳng cấp.

Biệt thự nghỉ dưỡng 2 tầng là loại hình nhà ở sở hữu thiết kế hiện đại, sang trọng với hệ thống tiện ích đa dạng bao gồm bể bơi, sân vườn, khu vui chơi giải trí trong nhà,.... đáp ứng nhu cầu nghỉ dưỡng của gia đình. Thông thường, biệt thự nghỉ dưỡng được xây dựng trên diện tích đất tương đối lớn và nằm biệt lập với những công trình xung quanh. Mẫu biệt thự nghỉ dưỡng 2 tầng sở hữu tính thẩm mỹ cao với sự tiện nghi, sang trọng, đẳng cấp hơn so với các căn biệt thự thông thường.
Ngoài ra, gia chủ có thể kết hợp giếng trời trong thiết kế biệt thự nghỉ dưỡng 2 tầng để tận dụng tối ưu ánh sáng tự nhiên, gió trời vào trong nhà và tạo bầu không khí trong lành, thoáng đãng cho không gian sống.
>>>> TÌM HIỂU THÊM: 9 mẫu thiết kế biệt thự nghỉ dưỡng đẹp được ưa chuộng hiện nay
6.8 Thiết kế biệt thự 2 tầng chữ L
Biệt thự hiện đại 2 tầng chữ L đang trở thành lựa chọn hàng đầu cho những ai mong muốn sở hữu không gian sống tiện nghi, thẩm mỹ và tiết kiệm diện tích.
Biệt thự 2 tầng chữ L là thiết kế sở hữu những ưu điểm vượt trội như thiết kế tận dụng tối đa mọi góc cạnh trong diện tích đất xây dựng, tiết kiệm chi phí, giảm thiểu vật liệu xây dựng. Bên cạnh đó, với thiết kế hình chữ L đẹp, gia chủ có thể phân bổ các công năng dễ dàng hơn bằng cách tách các phòng với nhau nhưng mặt bằng chung vẫn là một khối thống nhất.

Đối với biệt thự hình chữ L 2 tầng, tầng 2 thường được bố trí công năng với 1 phòng thờ, 2-3 phòng ngủ, 1 phòng làm việc và đọc sách, cùng với sân thượng để phơi đồ và giặt giũ. Tầng 1 thường là khu vực bếp, phòng khách và nhà tắm. Tuy nhiên, tùy thuộc vào diện tích đất xây dựng, gia chủ có thể điều chỉnh số lượng phòng với công năng phù hợp.
>>>> KHÁM PHÁ THÊM: 50 mẫu biệt thự chữ l đẹp, hiện đại được ưa chuộng nhất
6.9 Mẫu biệt thự hiện đại 2 tầng 5 phòng ngủ
Biệt thự 2 tầng 5 phòng ngủ là lựa chọn hoàn hảo cho những gia đình đông thành viên, mang đến không gian sống rộng rãi, tiện nghi và thoải mái.

Một số lưu ý khi thiết kế biệt thự 2 tầng 5 phòng ngủ gia chủ cần biết đó là nên tận dụng một khoảng không gian để làm ban công trồng hoa, cây cảnh giúp không gian thoáng mát hơn.
>>>> THAM KHẢO THÊM: 10 mẫu biệt thự 2 tầng 5 phòng ngủ được yêu thích nhất
6.10 Biệt thự đẹp 2 tầng 2 mặt tiền
Biệt thự 2 mặt tiền có 2 tầng là ngôi nhà được xây dựng ở vị trí khá thuận lợi, với 2 mặt tiền nằm trên 2 con đường và thường nằm ở nút giao của các ngã 4 hoặc ngã 3. Tọa lạc tại vị trí đắc địa, nơi giao thoa của hai con đường, biệt thự 2 mặt tiền 2 tầng như một tuyên ngôn sang trọng, đẳng cấp của gia chủ với các ưu điểm vượt trội như:
- Thoáng mát, tràn ngập ánh sáng: Thiết kế 2 mặt tiền tối ưu hóa khả năng đón gió và ánh sáng tự nhiên, mang đến không gian sống thoáng đãng, mát mẻ quanh năm.
- Kiến trúc ấn tượng: Biệt thự 2 mặt tiền phô diễn trọn vẹn vẻ đẹp của các đường nét, hình khối kiến trúc, tạo điểm nhấn nổi bật cho khu phố.
- Mở rộng tầm nhìn: Thiết kế 2 mặt tiền giúp mở rộng tầm nhìn, tạo cảm giác rộng rãi, khoáng đạt cho ngôi nhà.

>>>> THAM KHẢO: 10+ mẫu biệt thự 2 mặt tiền đẹp, đón đầu xu hướng thiết kế mới
6.11 Mẫu biệt thự 2 tầng 3 phòng ngủ
Biệt thự 3 phòng ngủ 2 tầng đang trở thành lựa chọn hàng đầu cho những gia đình trẻ và gia đình có 4 thành viên, đặc biệt là giới viên chức. Biệt thự 3 tầng 2 phòng ngủ là thiết kế sở hữu không gian rộng rãi, thoáng mát và thiết kế đa dạng với nhiều phong cách kiến trúc khác nhau.

Biệt thự 2 tầng 3 phòng ngủ phong cách Hiện đại thường tạo ấn tượng với cách phối màu trang nhã, thể hiện sự sang trọng tiện nghi. Trong khi đó, biệt thự phong cách Cổ điển lại thể hiện uy quyền và đẳng cấp của gia chủ. Do đó tùy thuộc vào sở thích mà gia chủ lựa chọn các phong cách thiết kế phù hợp với ngôi nhà của mình.
Gia chủ có thể linh hoạt trong việc bố trí công năng trong ngôi nhà của mình và có thể tận dụng một khoảng không thích hợp để bố trí tiểu cảnh giúp căn biệt thự thêm tươi mát.
>>>> TÌM HIỂU THÊM: 7 mẫu biệt thự 2 tầng 3 phòng ngủ được săn lùng nhiều nhất
6.12. Biệt thự đẹp 2 tầng 3 gian
Biệt thự 3 gian 2 tầng mang đến làn gió mới cho kiến trúc nhà ở Việt Nam khi kết hợp hài hòa nét đẹp truyền thống với phong cách hiện đại. Biệt thự sở hữu thiết kế hài hòa với tỷ lệ 3 gian nhà được bố trí cân đối, tạo cảm giác an yên, vững chãi. Thiết kế nhà 3 gian thường có bố cục 3 gian là khách - bếp - ngủ. Thông thường, phòng khách sẽ được thiết kế ở trung tâm ngôi nhà và những không gian khác sẽ được bố trí tùy thuộc vào sở thích, mong muốn của gia chủ.
Hiện nay, các mẫu biệt thự ba gian 2 tầng thường được thiết kế theo chiều ngang và phá cách so với các kiến trúc ba gian thời xưa.
>>>> THAM KHẢO: TOP 3 mẫu thiết kế biệt thự 2 tầng 3 gian hiện đại năm nay
6.13 Biệt thự thiết kế 2 tầng 6 phòng ngủ
Mẫu biệt thự đẹp 2 tầng 6 phòng ngủ thường được thiết kế cho những gia đình đông thành viên. Với mẫu biệt thự này, gia chủ nên tính toán để bố trí không gian phù hợp nhằm mang đến không gian sống thoải mái cho các thành viên trong gia đình.

Ở tầng 1, gia chủ có thể bố trí 1 phòng khách, 2 phòng ngủ, 1 phòng bếp. Tầng 2 có thể bố trí 4 phòng ngủ, 1 phòng thờ. Tuy nhiên, gia chủ cần lưu ý là phòng ngủ nào cũng nên có ban công, cửa sổ kính để tạo sự thông thoáng cho không gian.
>>>> THAM KHẢO: TOP 5 mẫu biệt thự 2 tầng 6 phòng ngủ tiện nghi, hiện đại
6.14 Mẫu biệt thự 2 tầng phòng thờ tầng 1
Từ xưa đến nay, nơi thờ cúng tổ tiên luôn là nơi rất quan trọng đối với mỗi gia đình Việt. Việc thờ phụng tổ tiên là một nét văn hóa truyền thống tốt đẹp của dân tộc ta. Chính vì thế, tùy vào điều kiện mỗi gia đình mà phòng thờ sẽ được đặt ở những vị trí khác biệt. Có gia đình sẽ lựa chọn đặt phòng thờ tại tầng cao nhất - chính là nơi yên tĩnh nhất trong nhà; tuy nhiên, có gia đình lại lựa chọn đặt phòng thờ ngay tại phòng khách để thuận tiện cho việc hương khói.

Hiện nay, việc thiết kế biệt thự đẹp 2 tầng có phòng thờ tầng 1 khá phổ biến bởi việc bố trí phòng thờ ngay tại phòng 1 mang đến nhiều ưu điểm vượt trội, cụ thể như:
- Thể hiện lòng thành kính, hiếu thảo: Tạo điều kiện thuận lợi cho con cháu trong nhà thờ cúng tổ tiên, thể hiện lòng hiếu thảo và nhắc nhở "uống nước nhớ nguồn".
- Tiện lợi cho việc thờ cúng: Vị trí tầng 1 giúp việc di chuyển, cúng bái trở nên dễ dàng, đặc biệt phù hợp với gia đình có người lớn tuổi.
- Không gian trang nghiêm, ấm cúng: Mang đến bầu không khí thanh tịnh, linh thiêng, thể hiện sự tôn kính đối với những người đã khuất.
>>>> THAM KHẢO: 5 mẫu biệt thự 2 tầng phòng thờ tầng 1 bố trí khoa học
7. Những lưu ý thiết kế biệt thự 2 tầng gia chủ cần biết
7.1 Màu sắc
Màu sắc là yếu tố then chốt tạo nên vẻ đẹp toàn diện cho biệt thự 2 tầng. Việc kết hợp linh hoạt các màu sắc không chỉ thể hiện gu thẩm mỹ của gia chủ mà còn cho thấy sự tinh tế trong việc quan sát và nhận thức cái đẹp của chủ nhà.
7.2 Thiết kế biệt thự đẹp, thông minh
Thiết kế biệt thự đẹp chỉ là bước khởi đầu. Để kiến tạo nên một không gian sống hoàn hảo, biệt thự cần có sự phối hợp linh hoạt giữa các công năng trong nhà để biến biệt thự thành không gian sống hoàn hảo cho gia đình. Với hơn 20 năm kinh nghiệm trong lĩnh vực thiết kế thi công các công trình biệt thự cho khách hàng trên khắp cả nước, Sơn Hà Group tự tin mang đến giải pháp thiết kế tối ưu cho tổ ấm của bạn.
Đội ngũ kiến trúc sư giàu kinh nghiệm của Sơn Hà Group sẽ tư vấn và thiết kế cho gia chủ một căn biệt thự phù hợp với nhu cầu của gia đình với công năng thông minh và không gian sống mang lại trải nghiệm hoàn hảo.

7.3 Kích thước nội thất
Lựa chọn nội thất phù hợp luôn là bài toán hóc búa khiến mỗi gia chủ đau đầu. Hiểu được điều đó, Sơn Hà Group không chỉ đồng hành, hỗ trợ các gia chủ trong quá trình thiết kế, xây dựng biệt thự mà còn hỗ trợ anh chị trong việc lựa chọn vật liệu và trang trí nội thất.
Dựa trên diện tích của biệt thự và nhu cầu của gia chủ, đội ngũ kiến trúc sư của Sơn Hà Group sẽ đưa ra những mẫu nội thất có kích thước phù hợp nhất để biến không gian sống của bạn trở thành một kiệt tác nghệ thuật đầy cảm hứng.
8. Vì sao nên sử dụng thiết kế biệt thự 2 tầng đẹp tại Sơn Hà Group?
Xây một biệt thự 2 tầng đẹp không chỉ đơn giản là chọn một mẫu thiết kế ưng ý. Các yếu tố như chất liệu thi công, màu sơn, đơn vị thi công uy tín cũng là những yếu tố then cốt, quyết định đến thành công của dự án. Do đó, gia chủ nên lựa chọn một đơn vị thiết kế thi công giàu kinh nghiệm để thực hiện dự án của mình.
Với hơn 20 năm kinh nghiệm trong lĩnh vực thiết kế và thi công biệt thự Sơn Hà Group tự hào được đồng hành cùng các gia chủ trong quá trình thực hiện dự án xây dựng của mình với:
- 20 năm kinh nghiệm đầu ngành: Sơn Hà đã trải qua 20 năm thiết kế và xây dựng các công trình biệt thự và đã kiến tạo hơn 3500 tổ ấm mơ ước cho các khách hàng trên cả nước.
- Đơn vị thiết kế uy tín, được khách hàng gửi trọn niềm tin: Nhờ bề dày kinh nghiệm cùng các thành tựu thiết kế nổi bật, Sơn Hà Group luôn được đánh giá là đơn vị thiết kế uy tín trong ngành thiết kế, xây dựng biệt thự

- Hiểu rõ nhu cầu xây dựng của khách hàng: Với hệ thống chi tránh trải rộng khắp 3 miền, Sơn Hà Group dễ dàng tiếp cận và thấu hiểu được đặc điểm xây dựng của từng khu vực, từ đó đưa ra các phương án thiết kế phù hợp, đáp ứng mọi nhu cầu của khách hàng.
- Thi công đúng thời hạn: Các dự án biệt thự 2 tầng của Sơn Hà Group đều được hoàn thiện chỉ trong vòng 50 - 60 ngày làm việc, đảm bảo tiến độ thi công nhanh chóng mà vẫn đạt chất lượng hiệu quả cho công trình.
9. Giá thiết kế biệt thự hiện đại 2 tầng tại Sơn Hà Group hiện nay
Xây biệt thự 2 tầng bao nhiêu tiền luôn là câu hỏi được rất nhiều gia chủ quan tâm. Trên thực tế, chi phí thiết kế biệt thự 2 tầng phụ thuộc vào rất nhiều yếu tố như khu đất xây dựng, phong cách thiết kế, loại vật liệu sử dụng,... Dưới sự tác động của các yếu tố này, chi phí thiết kế biệt thự 2 tầng sẽ có những biến đổi nhất định. Dưới đây là bảng chi phí xây biệt thự 2 tầng tại Sơn Hà Group mà gia chủ có thể tham khảo:
- Gói kiến trúc thiết kế biệt thự Hiện đại + Tân cổ điển: 220.000 VND/m2
- Gói thiết kế biệt thự Cổ điển: 250.000 VND/m2
- Gói thiết kế nội thất biệt thự Hiện đại + Tân cổ điển: 250.000 VND/m2
- Gói thiết kế nội thất biệt thự Cổ điển: 300.000 VND/m2
- Gói thi công biệt thự: từ 9.000.000 VND/m2 đến 11.000.000 VND/m2
Mời gia chủ tham khảo thêm các mức giá thiết kế khác của Sơn Hà Group tại đây.
Thiết kế nhà ống
- Nhà ống hiện đại, nhà ống tân cổ điển
- Thời gian thiết kế: 30 ngày
- Tư vấn phong thủy
- Bản vẽ măt bằng công năng
- Bản vẽ xin phép xây dựng
- Bản vẽ phối cảnh mặt tiền
- Bản vẽ chi tiết kiến trúc
- Bản vẽ chi tiết kết cấu
- Bản vẽ điện, cấp thoát nước
- Tư vấn bố trí vật dụng nội thất
- Giám sát quyền tác giả
Thiết kế biệt thự
- Biệt thự hiện đại, Biệt thự tân cổ điển
- Được tư vấn bởi đội ngũ KTS 5+ năm kinh nghiệm
- Thời gian thiết kế: 45 ngày
- Tư vấn phong thủy
- Bản vẽ măt bằng công năng
- Bản vẽ xin phép xây dựng
- Bản vẽ phối cảnh mặt tiền
- Bản vẽ chi tiết kiến trúc
- Bản vẽ chi tiết kết cấu
- Bản vẽ điện, cấp thoát nước
- Tư vấn bố trí vật dụng nội thất
- Giám sát quyền tác giả
Thiết kế VIP
- Lâu đài, Biệt thự cổ điển
- Được tư vấn bởi đội ngũ KTS 10+ năm kinh nghiệm
- Thời gian thiết kế: 60 ngày
- Tư vấn phong thủy
- Bản vẽ măt bằng công năng
- Bản vẽ xin phép xây dựng
- Bản vẽ phối cảnh mặt tiền
- Bản vẽ chi tiết kiến trúc
- Bản vẽ chi tiết kết cấu
- Bản vẽ điện, cấp thoát nước
- Tư vấn bố trí vật dụng nội thất
- Giám sát quyền tác giả
Ngoài ra, để dự toán chi phí xây dựng biệt thự 2 tầng chính xác nhất, gia chủ có thể liên hệ qua hotline của Sơn Hà Group 0906.222.555 để được tư vấn chi tiết.
Trên đây là những chia sẻ về thiết kế biệt thự 2 tầng do Sơn Hà Group hực hiện. Chúng tôi hy vọng rằng qua những thông tin này, gia chủ sẽ tìm ra mẫu thiết kế ưng ý nhất và đưa ra những quyết định đúng đắn và chính xác nhất cho ngôi nhà của mình. Với sự tận tâm và chuyên nghiệp, Sơn Hà Group luôn sẵn sàng lắng nghe và chia sẻ những khó khăn cùng anh chị trong quá trình hoàn thiện không gian sống mơ ước.

