Thiết kế biệt thự hiện đại luôn nằm trong top các công trình Sơn Hà Group có cơ hội hợp tác với nhiều chủ đầu tư nhất. Dễ hiểu vì đây cũng chính là xu hướng đang "làm mưa làm gió" tại thời điểm hiện tại và được nhận định sẽ tiếp tục là xu hướng thiết kế trong tương lai. Với kinh nghiệm gần 20 năm trong lĩnh vực thiết kế kiến trúc, Sơn Hà Group đã giúp hơn 2000 chủ đầu tư có công trình ưng ý. Ngày hôm nay, chúng ta hãy đi vào tìm hiểu công trình tiếp theo được hoàn thiện bởi đội ngũ Sơn Hà Group, mang thiết kế hiện đại và quy mô 2 tầng, 110m2 tại Hải Phòng. Cùng chờ đón nhé!
NỘI DUNG CHÍNH
Nếu như thiết kế tân cổ điển thường lấy cảm hứng từ thời vàng son của thế hệ trước, thiết kế hiện đại lại thể hiện dòng chảy của tương lai, đem đến những giá trị độc đáo, sáng tạo và bứt phá. Phong cách hiện đại thường được thể hiện bởi những đường nét tối giản, mạnh mẽ đi cùng màu sắc và chất liệu thu hút. Đây cũng chính là phong cách thiết kế mà Sơn Hà Group lựa chọn cho công trình lần này của gia chủ Nguyễn Hồng Phúc.

Về quy mô thiết kế, gia chủ cùng Sơn Hà Group đã thống nhất xây biệt thự 2 tầng để tối ưu hóa không gian, không để thừa bất cứ khoảng trống nào cũng như mang lại cảm giác thoải mái, tiện nghi cho người sử dụng. Với quy mô và phong cách thiết kế này, Sơn Hà Group tin rằng đây là hướng đi phù hợp nhất để mang lại cuộc sống hoàn hảo cho gia đình của gia chủ. Cùng đến với phần tiếp theo để phân tích không gian thiết kế mặt tiền cũng như công năng sử dụng của công trình ngày hôm nay nhé!
Ngay từ cái nhìn đầu tiên, mặt tiền của biệt thự hiện đại khiến người nhìn phải bất ngờ với lối kiến trúc hiện đại, độc đáo, mang đậm hơi thở tương lai của mình. Cụ thể, mặt tiền của ngôi nhà được hoàn thiện nhờ các hình khối sắp xếp xen kẽ, chồng lên nhau, tạo nên ấn tượng về chiều sâu. Đồng thời các hình khối thiết kế đều được tính toán tỉ lệ và kích thước cẩn thận để tối ưu hóa không gian và cảm nhận thị giác.

Về phần màu sắc, màu sắc sử dụng chủ yếu trong công trình lần này chính là các tông màu trắng, kem, xám và nâu. Với các sắc độ sáng tối xen kẽ nhau, mặt tiền công trình đem đến cho người nhìn cảm giác hiện đại, thanh lịch và đẳng cấp. Sự kết hợp màu sắc này cũng là gợi ý của Sơn Hà Group dành cho các gia chủ tương lai, đang tìm kiếm những ý tưởng thiết kế cho không gian của riêng mình.
Để nhấn mạnh phong cách hiện đại, chất liệu của ngôi nhà được sử dụng ở đây là bê tông, đá tự nhiên, kính cường lực và gỗ nhân tạo. Cùng nhau các chất liệu này mang đến độ bền tối ưu cho công trình, đồng thời đem lại vẻ mạnh mẽ, tính hiện đại, tân thời cho thiết kế ngày hôm nay.
Nhiều chủ đầu tư thường tập trung vào thiết kế ngoại thất phía ngoài thật nổi bật mà quên mất rằng, chính không gian phía trong ngôi nhà mới là thứ mình tiếp xúc, sử dụng và trải nghiệm hàng ngày. Chính vì thế, thiết kế một ngôi nhà hiện đại thì tầm quan trọng của việc bố trí công năng nội thất phía trong là điều quan trọng không kém, thực tế đây chính là yếu tố để đánh giá trải nghiệm của khách hàng và xem xét liệu đây có phải là một công trình hoàn hảo?
Dưới đây là công năng được Sơn Hà Group bố trí dựa theo nhu cầu về trải nghiệm của khách hàng. Mời quý vị và các bạn cùng tham khảo để có cái nhìn tổng quan về thiết kế cũng như rút cho mình những gợi ý thông minh cho không gian nhà mình!

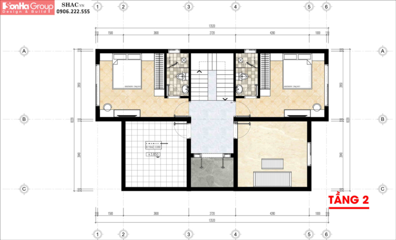
Sở hữu diện tích xây dựng là 110m2 với mặt tiền ấn tượng lên đến 13.5m, Sơn Hà Group đã tìm cách để làm nổi bật lên không gian từng tầng với cách bố trí nội thất tối giản, thông minh, tinh tế. Bước vào ngôi nhà, bạn sẽ đến với sảnh chính của ngôi nhà, với bên trái là phòng khách và bên phải là phòng bếp. Tiến đến sâu hơn, phía bên trái ngôi nhà sẽ là phòng giải trí - phòng sinh hoạt chung và bên tay phải là phòng ngủ 1 của biệt thự. Căn phòng ngủ này cũng được thiết kế khép kín, mang lại tính tiện lợi khi sử dụng của gia chủ.

Lên đến tầng 2, toàn bộ không gian được chia thành 4 phần khác nhau. Trong đó bao gồm 2 phòng ngủ khép kín, 1 phòng thờ và 1 sân phơi. Với diện tích xây dựng và nhu cầu của chủ đầu tư, đây là cách chia công năng cụ thể, ấn tượng và phù hợp.
Với cách chia công năng phía trên, chúng ta cũng đi đến hồi kết của chuyến hành trình tham quan biệt thự hiện đại 2 tầng 110m2 được thiết kế bởi Sơn Hà Group tại Hải Phòng. Chúng tôi hi vọng những kiến thức kể trên có thể giúp bạn đọc có những gợi ý hoàn hảo cho công trình của riêng mình. Đừng quên theo dõi các bài viết tiếp theo trên trang chủ của Sơn Hà Group nhé!
Ảnh khác
Bình luận