10 Mẫu Biệt Thự Có Tầng Hầm Đẹp, Hiện Đại Xu Hướng 2025
Xu hướng nổi bật trong nhiều năm đổ lại đây đó chính là xây dựng nhà ở hay biệt thự có tầng hầm, tạo ra nhiều không gian sống hơn, phục vụ tối đa nhu cầu của gia chủ. Tầng hầm hay bán hầm giúp tôn cao không gian tầng 1, đem lại cảm giác sang trọng khi bước chân vào nhà. Cùng Sơn Hà Group tìm hiểu kỹ hơn về dự án biệt thự có tầng hầm đẹp trong bài viết sau.
>>>> TÌM HIỂU NGAY: 100 mẫu biệt thự đẹp, đẳng cấp bắt kịp xu hướng
1. Thế nào là tầng hầm và bán hầm? Lợi ích khi xây biệt thự tầng hầm
Tầng hầm là thiết kế xây dựng nằm bên dưới tầng trệt (sàn nhà hay tầng trệt) của một ngôi nhà hay công trình xây dựng. Tầng hầm sẽ nằm toàn bộ ở bên dưới trong khi đó tầng bán hầm nằm một nửa hoặc một phần ở sâu bên dưới. Vì đặc điểm nằm lún sâu, tiếp xúc trực tiếp với mặt đất và gánh chịu cả không gian sống ở trên, do vậy các vật liệu sử dụng trong thiết kế tầng hầm cũng hết sức đặc biệt.
Các mẫu biệt thự có tầng hầm có thiết kế khá tinh tế, phải quan sát kỹ mới nhận thấy. Hướng của tầng hầm được xây dựng song song với cửa ra vào và thông trực tiếp với đường phố đem lại sự tiện nghi cho gia chủ. Thêm vào đó, thiết kế của tầng hầm khá đơn giản, không phá vỡ kết cấu vốn có cũng như đảm bảo tính thẩm mỹ chung của toàn bộ ngôi biệt thự.

Tầng hầm hay bán hầm giúp gia chủ giải quyết các vấn đề về diện tích, đặc biệt là ở các khu vực thành thị. Tầng hầm đem lại không gian hữu ích cho gia chủ trong việc xây dựng kho chứa đồ, trồng cây hay làm gara để xe. Đặc biệt, tầng hầm giúp giải quyết các vấn đề dốc thoải phát sinh trong quá trình xây dựng biệt thự.
>>>> BẬT MÍ: 50 mẫu thiết kế biệt thự kiểu Pháp đẹp, sang trọng, hiện đại
2. Mẫu biệt thự có tầng hầm theo số tầng được ưa chuộng
Các mẫu nhà biệt thự có tầng hầm luôn được đánh giá cao bởi thiết kế ấn tượng, kèm theo đó là tính thẩm mỹ cao trong đời sống hiện đại. Cùng tìm hiểu rõ hơn về các mẫu biệt thự có tầng hầm được ưa chuộng do Sơn Hà thực hiện trong những dự án gần đây.
2.1 Mẫu biệt thự 3 tầng có tầng hầm
Trên thực tế các dự án biệt thự 3 tầng đều đã được trang bị đầy đủ các phần thiết kế công năng phục vụ tốt cho nhu cầu sinh hoạt thường ngày của gia đình gia chủ. Tuy nhiên, với thiết kế tầng hầm sẽ góp phần mở rộng thêm phần diện tích, cũng như có thể phục vụ nhiều mục đích sống khác mà gia chủ mong muốn. Sau đây là thông tin chi tiết về mẫu biệt thự có tầng hầm do Sơn Hà Group thực hiện và bàn giao thành công tại Hải Phòng vào năm 2015.
Dự án biệt thự 3 tầng có hầm của ông Hồ Thế Khiên:
| ✅ Chủ đầu tư | Ông Hồ Thế Khiên |
| ✅ Loại hình | Biệt thự phố kiểu Pháp |
| ✅ Mặt tiền | Mặt tiền 16m |
| ✅ Diện tích | 320m2 (16m x 20m) |
| ✅ Đơn vị thực hiện | Công ty Cổ phần Tư vấn Xây dựng Sơn Hà (SHAC) |
| ✅ Công năng | Gara ô tô; phòng khách lớn; phòng bếp ăn; phòng sinh hoạt chung; 4 phòng ngủ; phòng thờ; sân phơi; vệ sinh riêng của phòng ngủ và vệ sinh chung của tầng. |


Biệt thự 3 tầng xây dựng theo kiểu Pháp có 1 tầng hầm do Sơn Hà thực hiện mang đậm phong cách Châu Âu với gam màu sắc nóng ấm. Nhìn tổng quan khó thể nhận ra thiết kế ngôi nhà có tầng hầm ở phía dưới. Theo mong muốn của gia chủ, mẫu biệt thự có tầng bán hầm làm gara xe và hầm để rượu. Đây chính cũng chính là mẫu thiết kế tầng bán hầm được nhiều gia chủ lựa chọn cho các mẫu thiết kế ở thành thị.
Thiết kế công năng dự án:




Mẫu biệt thự nổi bật với gam màu sắc nét và thời thượng. Với cấu trúc khối vuông nhưng không hề cứng nhắc hay khô cứng cùng với màu đỏ của mái ngói mang lại vẻ bề ngoài uy nghị bệ vệ cho căn biệt thự. Mẫu kiến trúc tuy đơn giản nhưng hoạ tiết hoa văn trang trí tinh tế đã tạo ra hiệu ứng tốt, mãn nhãn cho một dự án biệt thự lớn.
Liên hệ ngay để được tư vấn miễn phí.
>>>> CLICK NGAY: TOP 20+ thiết kế biệt thự cổ điển thể hiện đẳng cấp sang trọng
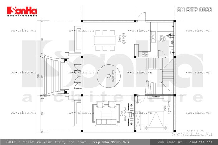
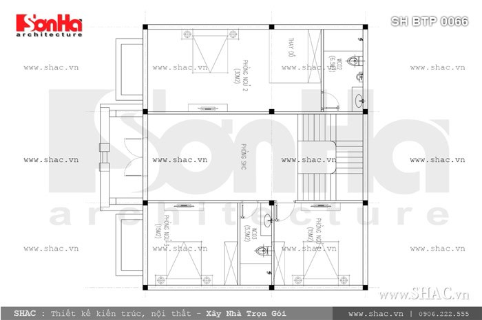
2.2 Thiết kế biệt thự 2 tầng có tầng hầm
Mẫu nhà 2 tầng có tầng hầm thường được xây dựng ở các khu quy hoạch, đô thị mới thích hợp với lối sống hiện đại, tiện nghi sang trọng. Phần lớn, thiết kế tầng hầm sử dụng cho các mẫu biệt thự 2 tầng là bán hầm. Điều này giúp khắc phục tốt việc thiếu diện tích trong xây dựng cũng như phù hợp với cảnh quan đô thị. Cùng Sơn Hà Group tìm hiểu chi tiết thông tin về dự án biệt thự 2 tầng có tầng hầm đã thi công và bàn giao cho khách thành công tại khu đô thị Waterfront City ở ven sông Lạch Tray, Hải Phòng.
Dự án biệt thự 2 tầng có tầng hầm của bà Hồ Thị Triểu Minh:
| ✅ Chủ đầu tư | Bà Hồ Thị Triều Minh |
| ✅ Loại hình | Nội thất biệt thự hiện đại |
| ✅ Mặt tiền | |
| ✅ Diện tích | |
| ✅ Đơn vị thực hiện | Công ty Cổ phần Tư vấn Xây dựng Sơn Hà (SHAC) |
| ✅ Công năng | |
| ✅ Kinh phí |
|




Dự án của chị Minh tại khu Waterfront City là một trong những dự án thiết kế nội thất biệt thự do Sơn Hà Group thực hiện. Với cách sắp xếp và bố trí một cách có khoa học xuyên suốt trong tất cả không gian của căn biệt thự đã thể hiện rõ phong cách sống hiện đại, sang trọng của gia đình gia chủ. Thêm vào đó, phần lớn nội thất sử dụng gỗ tự nhiên tạo cảm giác vừa thân thiện, vừa tăng giá trị vật chất cho căn biệt thự.





>>>> CÙNG TÌM HIỂU: 20+ mẫu thiết kế biệt thự tân cổ điển ưa chuộng nhất 2023
2.3 Mẫu biệt thự cấp 4 có tầng hầm
Không chỉ những mẫu biệt thự lớn mới có thể xây dựng tầng hầm, các thiết kế biệt thự cấp 4 cũng có thể xây dựng thiết kế tầng hầm hoặc bán hầm một cách linh động. Dưới đây là dự án thiết kế biệt thự cấp 4 có tầng hầm do Sơn Hà Group thực hiện trong năm 2019 cho gia chủ toạ lạc tại Hải Phòng.
Mẫu biệt thự cấp 4 có tầng hầm của ông Dương Xuân Ly:
| ✅ Chủ đầu tư | Ông Dương Xuân Ly |
| ✅ Loại hình | Thiết kế biệt thự sân vườn |
| ✅ Mặt tiền | Mặt tiền 22m86 |
| ✅ Diện tích | 232,25m2 (22,86m x 10,16m) |
| ✅ Đơn vị thực hiện | Công ty Cổ phần Tư vấn Xây dựng Sơn Hà (SHAC) |
| ✅ Công năng | |
| ✅ Kinh phí |
|


Đây được đánh giá là một trong những dự án nổi bật của Sơn Hà trong thiết kế biệt thự nhà vườn, khi đảm bảo không gian sống xanh nhưng vẫn đầy đủ các công năng như một dự án hiện đại. Đặc biệt với sự xuất hiện của tầng bán hầm không chỉ giúp tiết kiệm diện tích mà còn đảm bảo mỹ quan sống xanh của công trình.
Thiết kế công năng dự án:


Với hệ thống mái Nhật đặc trưng kết hợp cùng tone màu mái ngói xanh rêu đem lại cảm giác cổ kính, ấm áp cho mỹ quan của căn biệt thự. Hệ thông tiểu cảnh bao xung quanh cùng khoảng sân rộng cho phép gia chủ tổ chức nhiều hoạt động vui chơi, sinh hoạt ở ngoài trời hơn. Hơn nữa việc tận dụng tầng hầm làm gara để xe giúp giảm thiểu tối đa diện tích, tăng thêm phần công năng cho dự án.
Điền vào form bên dưới để đượ tư vấn miễn phí nha.
>>>> XEM NGAY: 50 mẫu thiết kế biệt thự chữ l đẹp, hiện đại được ưa chuộng nhất
3. Một số mẫu nhà biệt thự có tầng hầm đẹp, cao cấp
Dưới đây là một số mẫu nhà biệt thự có tầng hầm đẹp do Sơn Hà thực hiện trong thời gian vừa qua. Tuỳ thuộc vào sở thích và công năng mà gia chủ mong muốn, mỗi bản thiết kế sẽ có những ưu điểm nổi bật riêng.
3.1 Mẫu biệt thự nhà vườn có tầng hầm hồ bơi
Khác với những công trình có quy mô đồ sộ, uy nghi biệt thự nhà vườn thoả mãn nhu cầu sống xanh, hòa mình với thiên nhiên kết hợp cùng tầng bán hầm được sử dụng làm gara để xe giúp đảm bảo không gian sống không bị gò bó, luôn mở rộng không gian sống thân thiện với môi trường.
Mẫu biệt thự nhà vườn của gia chủ Đỗ Xuân Đồng:
| ✅ Chủ đầu tư | Ông Đỗ Xuân Đồng |
| ✅ Loại hình | Biệt thự Pháp |
| ✅ Mặt tiền | Mặt tiền 13m1 |
| ✅ Diện tích | 315,71m2 (13,1m x 24,1m) |
| ✅ Đơn vị thực hiện | Sơn Hà Group (#SHAC) |
| ✅ Công năng | Sảnh; đại sảnh; phòng khách lớn; phòng ăn; 6 phòng ngủ; 5 phòng vệ sinh; 2 phòng thờ. |
| ✅ Kinh phí | 4,2 tỷ |


Thiết kế công năng dự án:





Mẫu nhà biệt thự có tầng hầm của gia chủ Đỗ Xuân Đồng được thiết kế với các hoạ tiết hoa văn cầu kỳ, mang đậm phong cách kiến trúc cổ điển được thể hiện trong các chi tiết phào, trang trí ngoại thất mang đấm dấu ấn kiến trúc Pháp với cánh cửa mái vòm để lại trong lòng người xem những ấn tượng khó phai. Thêm vào đó thiết kế hồ bơi nằm giữa sân vườn tạo ra nhiều không gian vui chơi cho các thành viên trong gia đình, đặc biệt là các hoạt động vui chơi giải trí cuối tuần.
3.2 Biệt thự có tầng hầm theo phong cách cổ điển
Nét đặc trưng dễ dàng nhận thấy của những dự án biệt thự cổ điển đó chính là hệ thống mái Mansard hay mái vòm lớn đầy hoa lệ. Bên cạnh đó, hệ thống khối trụ lớn cùng chi tiết hoa văn cầu kỳ, tinh xảo cũng là những điểm dễ nhận thấy trong các dự án biệt thự cổ điển. Đặc biệt trong thời gian gần đây thiết kế tầng hầm và bán hầm rất được ưa chuộng và đưa vào khai thác trong các dự án biệt thự lớn, cùng tìm hiểu những thông tin chi tiết về dự án đặc biệt này.
Thiết kế biệt thự có tầng hầm theo phong cách cổ điển tại Nghệ An:
| ✅ Chủ đầu tư | Công ty Cổ phần Trung Đô |
| ✅ Loại hình | Thiết kế Biệt thự pháp |
| ✅ Mặt tiền | Mặt tiền 15m |
| ✅ Diện tích | 210m2 (15m x 14m) |
| ✅ Đơn vị thực hiện | Sơn Hà Group (#SHAC) |
| ✅ Công năng | Gara để xe; phòng khách sang trọng và rộng rãi; phòng bếp tiện nghi; phòng ăn lớn; phòng sinh hoạt chung; các phòng ngủ có thiết kế tinh tế với nội thất cao cấp; phòng vệ sinh khép kín và vệ sinh các tầng. |

Theo đánh giá chuyên môn, đây là một trong những dự án nhà biệt thự có tầng hầm có không gian sống đậm chất nghệ thuật, đầy sang trọng và tỉ mỉ trong từng chi tiết trang trí. Đây chính là sự nổ lực không ngừng nghỉ của nội ngũ kiến trúc sư trong suốt quá trình thiết kế và thi công dự án. Điều này đã minh chứng cho trình độ chuyên môn cao cũng như kinh nghiệm thi công dày dặn của đội ngũ nhân công Sơn Hà Group.

Bên cạnh đó việc kết hợp một cách nhuần nhuyễn và tinh tế sắc trắng cùng vàng đồng đặc trưng trong phong cách cổ điển đã vẽ nên một bức tranh tổng thể đẹp của dự án. Hệ thống mái Mansand vừa góp phần hoàn thiện nét thẩm mỹ cho căn biệt thự, lại góp phần mở rộng không gian sống, giữ ấm vào mùa đông và thông thoáng vào mùa hè.
Liên hệ ngay cho Sơn Hà để được tư vấn miễn phí
>>>> THAM KHẢO THÊM: Biệt thự song lập là gì? TOP 10 mẫu thiết kế đẹp, hiện đại 2023
3.3 Mẫu biệt thự tầng hầm tân cổ điển
Những mẫu biệt thự tân cổ điển như một bản giao hưởng vừa mang trong mình hơi hướng cổ điển xa hoa lại có những điểm nhấn hiện đại đơn giản, do đó các mẫu thiết kế biệt thự tân cổ điển được rất nhiều gia chủ yếu thích và chọn lựa. Không chỉ vì tính thẩm mỹ cao mà còn sự đa dạng trong việc thiết kế công năng của dự án. Tìm hiểu rõ hơn về mẫu nhà biệt thự có tầng hầm tân cổ điển do Sơn Hà Group thực hiện trong nội dung sau:
Mẫu biệt thự có tầng hầm theo phong cách cổ điển của Bà Vũ Thị Thêu:
| ✅ Chủ đầu tư | Bà Vũ Thị Thêu |
| ✅ Loại hình | Biệt thự tân cổ điển |
| ✅ Mặt tiền | Mặt tiền 15m7 |
| ✅ Diện tích | 263,76m2 (15,7m x 16,8m) |
| ✅ Đơn vị thực hiện | Sơn Hà Group (#SHAC) |
| ✅ Công năng | Tầng bán hầm: Gara ô tô; phòng ngủ giúp việc; phòng kỹ thuật; hầm rượu Tầng 1: Phòng khách; Phòng ăn lớn; Phòng ăn + bếp; Sảnh; Phòng vệ sinh Tầng 2: 1 phòng ngủ master + WC; 2 phòng ngủ thường + WC; Phòng làm việc; Sảnh tầng Tầng 3: 1 phòng ngủ master; 3 phòng ngủ thường; sảnh tầng Tầng 4: Phòng đọc sách; phòng thờ; sân chơi; phòng giặt phơi; phòng gym; phòng sauna,sảnh tầng |









Dự án biệt thự của bà Vũ Thị Thêu là một trong những dự án thiết kế biệt thự điển hình theo phong cách tân cổ điển. Với tone màu vàng kem làm chủ đạo, cùng toàn bộ mặt tiền của căn biệt thự đều được phủ tone vàng đem lại cảm giác xa hoa, giàu có khó tả. Ngoài ra nhưng chi tiết gỗ nâu và kim loại được chế tác tỉ mỉ, tinh tế trong từng đường nét càng làm nổi bật lên sự vương giả của gia chủ. Đặc biệt thiết kế mái Mansard có màu xanh xám, tương phải hoàn toàn với màu sơn của căn biệt thự giúp cân bằng màu sắc của tổng quan dự án.
3.4 Thiết kế biệt thự tầng hầm theo phong cách hiện đại
Các mẫu biệt thự đẹp phong cách hiện đại luôn là sự lựa chọn hàng đầu cho các gia đình có dự định xây nhà bởi cấu trúc thiết kế bắt mắt, đa năng đặc biệt có thể tiết kiệm nhiều chi phí cho gia chủ. Bên cạnh các công năng thường thấy như giếng trời, lam chắn nắng,... thì hiện nay nhiều dự án biệt thự hiện đại cũng ưa chuộng việc xây dựng tầng hầm hay bán hầm để gia tăng diện tích sống hơn cho căn biệt thự. Cùng Sơn Hà Group tìm hiểu kỹ hơn về lối thiết kế mới lạ này nhé.
Mẫu thiết kế biệt thự tầng của Bà Nguyễn Thị Hợp:
| ✅ Chủ đầu tư | Bà Nguyễn Thị Hợp |
| ✅ Loại hình | Biệt thự hiện đại |
| ✅ Mặt tiền | Mặt tiền 15m |
| ✅ Diện tích | 330m2 (15mx22m) |
| ✅ Đơn vị thực hiện | Sơn Hà Group (#SHAC) |
| ✅ Công năng | Tầng hầm: Gara để xe; phòng kỹ thuật; phòng bảo vệ; phòng lái xe; kho; phòng vệ sinh; phòng hát. Tầng 1: Đại sảnh; 2 phòng ngủ giúp việc; 4 vệ sinh; phòng khách; tiểu cảnh. Tầng 2: Phòng khách lớn; không gian hút thuốc; phòng vệ sinh; phòng bếp ăn. Tầng 3: 4 phòng ngủ với vệ sinh khép kín (trong đó 1 phòng ngủ master có phòng thay đồ) Tầng 4: Phòng ngủ VIP; phòng làm việc; phòng tập; bồn xông sục; các phòng vệ sinh. Tầng 5: Không gian ngoài trời; phòng thờ; phòng giặt; sân phơi. |
| ✅ Kinh phí | 6,5 tỷ |

Đặc biệt, với các mẫu thiết kế hiện đại cấu trúc tầng hầm có thể được sử dụng linh hoạt như: sử dụng làm kho chứa rượu, kho chứa đồ, phòng gia nhân,... Đây là lý do ngày nay nhiều gia đình lựa chọn xây dựng tầng hầm cho gia đình mình.
Điền vào form bên dưới để được tư vấn miễn phí.
>>>> GỢI Ý: TOP 100 những mẫu biệt thự nhà vườn đẹp, hiện đại 2023
4. Một số lưu ý khi thiết kế biệt thự có tầng hầm đẹp
4.1 Biện pháp thi công đào đất tầng hầm
Việc thi công đào đất tầng hầm là công đoạn hết sức quan trọng. Đây là bước định hình nền móng cho toàn bộ cấu trúc ngôi nhà, do vậy khi thực hiện thiết kế những công trình biệt thự có tầng hầm cần phải lưu ý một số điều như sau:
- Những công trình toạ lạc tại vùng có kết cấu đất yếu khi thi công bắt buộc phải sử dụng hệ tường vây quanh khu đất dựng là cọc khoan nhồi 300-400, khoảng cách giữa các cọc chỉ giao động trong vài tấc. Trên đầu cọc là đà giằng liên kết các cọc lại và phải có hệ thống giằng chống.
- Những công trình nằm trên vùng có kết cấu đất tốt, không sụt lún thì khi đào đến đâu đặt gạch đến đó.
- Những công trình biệt thự có mặt bằng rộng và có vị trí xây dựng giữa khuôn viên đất mới sử dụng cần dùng ván ép định hình trước khi đào đất.

4.2 Biện pháp chống thấm cho mẫu biệt thự có tầng hầm
Đối với kỹ thuật thiết kế tầng hầm có 2 phương pháp chống thấm tầng hầm thường được đưa vào sử dụng như sau:
- Biện pháp chống thấm chủ động: Là giải pháp được thực hiện từ phía nước ngầm. Áp dụng cho các công trình thi công đáy móng trở lên và đào móng xung quanh. Đây là kỹ thuật chống thấm từ đáy móng rồi chống chống thấm từ dưới lên, từ ngoài vào trong.
- Biện pháp chống thấm bị động: Là phương pháp chống thấm ngược, trái với việc chống thấm từ phía nguồn nước, phương pháp này tiến hành chống từ phía nước ngầm có thể thấm qua nền và tường bê tông. Biện pháp này áp dụng tại các công trình thi công chật hẹp, làm tường trước khi đào đất.

>>>> THAM KHẢO THÊM: 20 mẫu biệt thự kiểu Nhật Bản dẫn đầu xu hướng 2023
4.3 Một số lưu ý về kỹ thuật khi thiết kế biệt thự tầng hầm
Dưới đây là một số lưu ý trong kỹ thuật khi thiết kế biệt thự tầng hầm mà quý khách hàng nên đọc qua:
- Phần nối của tầng hầm tính từ sàn đến tầng trệt không cao quá 1,2m so với độ cao vỉa hè hiện hữu.
- Đường xuống tầng hầm cách ranh lộ giới tối thiểu 3m
- Độ dốc mặt đường thông vào nhà là 12%, đối với nhà phố thường là 20-25%.
- Tầng hầm cần đảm bảo các yêu cầu về vấn đề thông khí và ánh sáng. Đặc biệt kết cấu của tầng hầm phải cân đối, thoáng đãng và không làm biến dạng cấu trúc chung của ngôi nhà.
- Chủ nhà cần cân nhắc giữa hiệu suất khai thác và diện tích hầm, tránh trường hợp hầm xây xong không đem lại hiệu quả cao so với chi phí bỏ ra xây dựng.
Lưu ý: Cần cân đối diện tích hầm, tránh tình trạng quá tải do số lượng xe lớn hơn công suất phục vụ của hầm.
5. Đơn vị thiết kế biệt thự nhà có tầng hầm uy tín, chuyên nghiệp
Để xây dựng một dự án biệt thự tầng hầm thành công cần xem xét nhiều yếu tố khác nhau. Đặc biệt là kỹ thuật xây dựng tầng hầm, phải đảm bảo sự an toàn, chống thấm hiệu quả và sự thông thoáng của tầng hầm.

Sơn Hà Group là một trong những đơn vị xây dựng và thiết kế các mẫu biệt thự có nhiều năm kinh nghiệm. Với hơn 4 văn phòng đại diện, 2 showroom và xưởng sản xuất nội thất Sơn Hà tự tin là đơn vị thiết kế và thi công các dự án xây dựng cạnh tranh về giá nhất hiện nay trên thị trường.
Các dự án thiết kế biệt thự có tầng hầm tại Sơn Hà Group luôn nhận được phản hồi tốt từ gia chủ. Đây chính là niềm tự hào cũng như động lực để Sơn Hà cố gắng nhiều hơn trong việc xây dựng tổ ấm cho quý khách hàng.
Tham khảo giá thiết kế tại Sơn Hà Group nha.
Thiết kế nhà ống Thiết kế biệt thự Thiết kế VIP
6. Giá thiết kế biệt thự có tầng hầm tại Sơn Hà là bao nhiêu?
Sơn Hà Group hiện đang là đơn vị thực hiện các dự án thiết kế và xây dựng biệt thự uy tín trên thị trường. Với đội ngũ kiến trúc sư chuyên môn cao, công nhân dày dặn kinh nghiệm Sơn Hà Group tự tin hoàn thành tốt các dự án xây dựng với chất lượng tốt nhất. Dưới đây là bảng công bố chi phí thực hiện các dự án xây dựng, thiết kế biệt có tầng hầm tại Sơn Hà Group. Tuỳ thuộc vào mẫu thiết kế dự án sẽ có một mức giá xác định riêng biệt như sau:
- Gói kiến trúc thiết kế biệt thự hiện đại + tân cổ điển: 220.000(đồng)/m2
- Gói thiết kế biệt thự cổ điển: 250.000(đồng)/m2
- Gói thiết kế nội thất biệt thự hiện đại + tân cổ điển: 250.000(đồng)/m2
- Gói thiết kế nội thất biệt thự cổ điển: 300.000(đồng)/m2
- Gói thi công biệt thự từ: 9.000.000(đồng)/m2 đến 11.000.000(đồng)/m2
Trên đây là toàn bộ những chia sẻ về thiết kế biệt thự có tầng hầm do Sơn Hà từng thực hiện. Với những thông tin vừa cung cấp, chúng tôi mong muốn góp phần giúp quý khách hàng đưa ra những quyết định đúng đắn và chính xác nhất cho ngôi nhà của mình. Sơn Hà Group luôn sẵn sàng để lắng nghe và chia sẻ những khó khăn cùng anh chị trong việc xây dựng một mái âm hoàn chỉnh.
Mọi chi tiết xin liên hệ:
CÔNG TY CỔ PHẦN TƯ VẤN XÂY DỰNG SƠN HÀ (SHAC)
- Trụ sở chính: Số 318 – 319 HK3 đường Bùi Viện, Lê Chân, Hải Phòng
- Điện thoại: 0225 2222 555
- Hotline: 0906 222 555
- Email: sonha@shac.vn
Văn phòng đại diện
- Tại Hà Nội: Số 4/172, Ngọc Hồi, Huyện Thanh Trì, TP. Hà Nội
- Tại Quảng Ninh: Số 289 P. Giếng Đáy, TP. Hạ Long, Tỉnh. Quảng Ninh
- Tại Đà Nẵng: Số 51m đường Nguyễn Chí Thanh, P. Thạch Thang. Quận Hải Châu, TP. Đà Nẵng
- Tại Sài Gòn: Số 45 Đường 17 khu B, An Phú, Quận 2, TP. Hồ Chí Minh
- Xưởng nội thất: Số 45 Thống Trực, Nam Sơn. Kiến An, TP. Hải Phòng
>>>> BÀI VIẾT LIÊN QUAN: 20 mẫu biệt thự mái thái đẹp dẫn đầu xu hướng 2023

