Cải tạo là một cách để chúng ta làm mới không gian cho những trải nghiệm sống chất lượng. Trong mẫu biệt thự Tân cổ điển 4 tầng được chúng tôi thực hiện dưới đây, việc cải tạo không chỉ giới hạn ở kiến trúc mà còn ở sự dung hòa giữa không gian và nhịp sống gia đình.
NỘI DUNG CHÍNH
Gia chủ tìm đến chúng tôi với nhu cầu cải tạo lại ngôi nhà đang sống thành một không gian sống thời thượng, hiện đại và đặc biệt là phải phù hợp với nhu cầu sống và sinh hoạt đã có phần đổi khác của gia đình.

Sau khi biết được mong muốn của gia chủ, chúng tôi bắt tay vào tìm kiếm những phương án thiết kế phù hợp nhất cho anh. Dưới đây, mời bạn cùng chúng tôi tìm hiểu chi tiết hơn về dự án cải tạo biệt thự Tân cổ điển này.
Vốn là người yêu thích vẻ đẹp tinh tế của quá khứ, gia chủ tiếp tục lựa chọn phong cách Tân cổ điển cho diện mạo của tổ ấm. Tuy nhiên, với diện mạo mới này, biệt thự không chỉ sở hữu nét đẹp quen thuộc của phong cách Tân cổ điển mà còn chứa đựng sự thời thượng trong xu hướng thiết kế của thời đại.

Các họa tiết tinh xảo được chúng tôi lựa chọn và sắp đặt chúng vào các vị trí phù hợp trong kiến trúc như cầu thang, hệ cột trụ hay mái nhà.
Bên cạnh màu trắng quen thuộc trong phong cách Tân cổ điển, biệt thự còn tạo điểm nhấn với hệ mái màu xanh biển sang trọng, lịch thiệp và phần đế màu vàng quý phái.
Bên cạnh nhu cầu sở hữu một không gian sống ấn tượng, điều gia chủ mong muốn hơn cả khi cải tạo ngôi nhà thân yêu của mình đó là sự thích ứng, phù hợp của kiến trúc không gian với nhịp điệu sinh hoạt của cả gia đình.
Để tận dụng không gian một cách hợp lý và phù hợp với nhu cầu sử dụng, đảm bảo sự riêng tư cần thiết, chúng tôi đã thiết đặt thêm các không gian bổ trợ cần thiết như tầng hầm, tầng lửng bên cạnh các tầng chính của ngôi nhà.

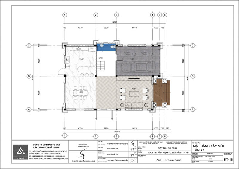
Các khu vực chức năng cũng được sắp xếp ổn thỏa trong từng tầng của biệt thự, đảm bảo mang đến cho gia chủ không gian sống mới tiện nghi, hài hòa.
Là một biệt thự Tân cổ điển, biệt thự không thiếu các chi tiết phào chỉ phức tạp. Song với biệt thự này, gia chủ đã lựa chọn tiết giảm các họa tiết cầu kỳ quá mức mà thay vào đó là các chi tiết cổ điển tinh tế, đơn giản hơn.

Các cửa sổ lớn được thiết kế xung quanh. Sự chuyển màu trong kiến trúc biệt thự cũng là chi tiết đắt giá giúp tăng sự hài hòa cho kiến trúc Tân cổ điển với xu hướng thiết kế tối giản của thời đại.
Thay vì cách phối gam màu vàng, trắng cùng các chi tiết có phần lỗi thời, giờ đây biệt thự đã chọn cho mình chiếc áo mới tươi sáng, trẻ trung và hiện đại hơn.


Bên cạnh việc tối giản các chi tiết cầu kỳ, các công năng trong biệt thự cũng được thiết kế sao cho phù hợp với nhu cầu sử dụng của gia chủ.

Khác với thiết kế cũ, yếu tố cây xanh, các khoảng không thoáng đãng đã được phối hợp nhịp nhàng với các cửa sổ lớn trong nhà, đảm bảo không gian bên trong, bên ngoài được kết nối với nhau và mang đến một không gian sống phù hợp, hài hòa cho gia chủ.
Để không gian mới được hoàn thiện và đáp ứng mọi yêu cầu sống của gia đình, các công năng bên trong biệt thự được lựa chọn và sắp xếp sao cho đó là các công năng cần thiết và phù hợp nhất.

Để tận dụng không gian hiệu quả, bên cạnh không gian chính là tầng 1, chúng tôi đã sử dụng tầng hầm thuận tiện cho gia chủ để xe mà không cần tăng thêm 1 tầng nổi nữa.


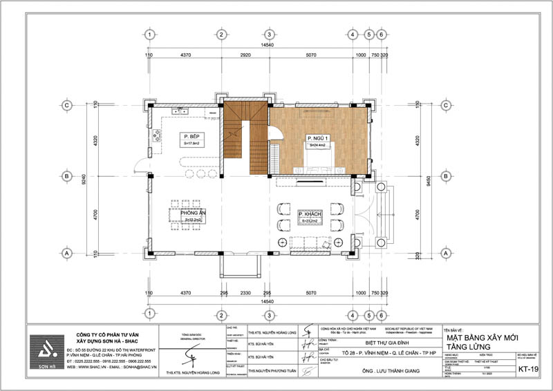
Để tăng diện tích sử dụng trong không gian, chúng tôi đã thiết kế thêm một tầng lửng làm phòng ngủ, mang đến sự riêng tư cần thiết và đảm bảo tính cân bằng cho bố cục không gian hiện tại.

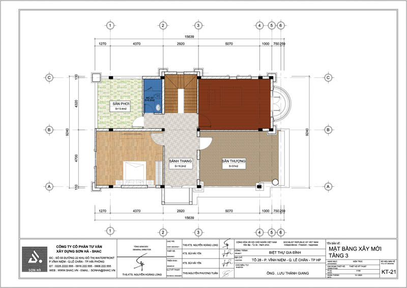
Không gian tầng 3 được tập trung vào các công năng cơ bản, cần thiết nhất cho hoạt động của gia chủ. Một sân thượng với diện tích 37m2 được tạo ra để đáp ứng nhu cầu thư giãn và kết nối các thành viên trong gia đình.
Phong cách Tân cổ điển là sự kết hợp giữa phong cách cổ điển và hiện đại. Phong cách này mang đến một không gian tinh tế, sang trọng nhưng không kém phần trẻ trung, năng động. Tân cổ điển là phong cách chú trọng đến sự cân bằng các yếu tố trong không gian ngôi nhà, thay vì tập trung rườm rà vào một chi tiết.
Hiện nay, có rất nhiều gia chủ yêu thích và lựa chọn phong cách thiết kế này cho công trình nhà ở của mình. Phong cách tân cổ điển hướng đến một ngôi nhà kết hợp hoàn mỹ giữa những nét đẹp cổ xưa cùng với sự phóng khoáng hiện đại. Đây cũng là phong cách được nhiều gia chủ lựa chọn để thể hiện cá tính và gu thẩm mỹ của bản thân vào thiết kế.
Thiết kế xây dựng hay cải tạo biệt thự Tân cổ điển đều đòi hỏi mức độ chính xác và tinh tế cao trong quá trình thực hiện, bao gồm cả các chi tiết ngoại thất và nội thất.
Với đường nét tối ưu và tinh tế, biệt thự Tân cổ điển đặt ra yêu cầu về sự chính xác trong thiết kế và cần sự tinh tế trong quá trình thực hiện từ phía đội ngũ xây dựng có tay nghề cao. Bên cạnh đó, sự phức tạp của mô hình nhà biệt thự Tân cổ điển còn phụ thuộc vào nhiều yếu tố thực tế nhằm đáp ứng nhu cầu của từng chủ đầu tư.
Một trong những đặc điểm của phong cách Tân cổ điển đó là yếu tố phân chia không gian theo “tỷ lệ vàng”. Đây là tỷ lệ được đề cao trong phong cách Tân cổ điển và là chìa khóa cho sự thành công của phong cách này. Sự hoàn hảo trong việc phân chia tỷ lệ đã tạo nên một không gian sống tinh tế, hài hòa cho tổng thể toàn bộ ngôi nhà của gia chủ.
Chi phí cải tạo một biệt thự Tân cổ điển phụ thuộc vào nhiều yếu tố. Có thể kể đến như: Địa điểm xây dựng, kích thước biệt thự, thiết kế, vật liệu xây dựng và đặc biệt là nhu cầu cụ thể của gia chủ. Để biết chi tiết về chi phí cải tạo một biệt thự Tân cổ điển, quý khách hãy liên hệ với Sơn Hà Group để được tư vấn và báo giá chi tiết nhất.
Việc chuẩn bị cho quá trình quản lý và bảo trì công trình biệt thự thường được Sơn Hà Group tư vấn và thực hiện trong quá trình thiết kế cho các khách hàng. Kiến trúc sư sẽ tư vấn những lựa chọn phù hợp, nhằm giúp khách hàng đơn giản hóa quá trình chăm sóc công trình của mình. Quá trình thi công kỹ lưỡng sẽ giúp các gia chủ hạn chế được các rủi ro, đảm bảo giá trị thẩm mỹ lẫn tuổi thọ kết cấu của biệt thự.
Sơn Hà Group tự hào được là đơn vị đồng hành cùng bạn xây nên ngôi nhà mơ ước qua các dịch vụ: tư vấn phương án thi công, phong cách thiết kế hợp lý và chọn vật liệu phù hợp nhất với nhu cầu.
Thông thường thời gian để cải tạo một biệt thự Tân cổ điển sẽ dao động từ 3 đến 6 tháng. Với công trình càng rộng và phức tạp thì thời gian thi công sẽ càng lâu.
Các yếu tố chính ảnh hưởng đến thời gian thi công công trình biệt thự, bên cạnh yếu tố về diện tích thì còn 1 số yếu tố khác cũng vô cùng quan trọng đó là:
Với đội ngũ kiến trúc sư dày dặn kinh nghiệm và có khiếu thẩm mỹ cao, Sơn Hà sẽ hỗ trợ khách hàng thiết kế, thi công và cải tạo không gian sống phù hợp với nhu cầu và sở thích của bạn. Sơn Hà đảm bảo sẽ giúp khách hàng sở hữu một không gian sống ưng ý nhất.
Để sở hữu một biệt thự Tân cổ điển ưng ý, sang trọng, phù hợp với nhu cầu sử dụng của mình, bạn cần chọn một đơn vị thiết kế, thi công uy tín, chất lượng cho không gian sống của bạn.

Là đơn vị có hơn 20 năm kinh nghiệm thiết kế, thi công, cải tạo các công trình nhà ở cho khách hàng trong cả nước, Sơn Hà Group tự hào được đồng hành và cùng bạn tạo ra một không gian sống như ý với:
Trên đây là toàn bộ phương án cải tạo cho biệt thự Tân cổ điển 4 tầng được chúng tôi thực hiện cho gia chủ tại Hải Phòng. Bạn đang tìm ý tưởng thiết kế phù hợp cho không gian sống của mình, hãy liên hệ với Sơn Hà Group để chúng tôi hỗ trợ và giúp bạn biến ngôi nhà mơ ước thành hiện thực.
Mọi chi tiết xin liên hệ:
CÔNG TY CỔ PHẦN TƯ VẤN XÂY DỰNG SƠN HÀ (SHAC)
Trụ sở chính: Số 55 đường 22 KĐT Waterfront, Lê Chân, Hải Phòng
Văn phòng đại diện
Ảnh khác
Bình luận