15 Mẫu Biệt Thự 3 Tầng 2 Mặt Tiền Sang Trọng, Đầy Thu Hút
Biệt thự 3 tầng 2 mặt tiền với những đặc trưng riêng là loại hình nhà ở mang đến nhiều trải nghiệm thú vị nhưng cũng không ít thách thức cho người thiết kế. Nếu bạn quan tâm các mẫu biệt thự theo lối kiến trúc này thì hãy cùng Sơn Hà Group khám phá ngay trong bài viết dưới đây nhé!
>>> XEM NGAY: 100 Mẫu biệt thự đẹp 3 tầng, hiện đại, đẳng cấp 2022
1. Mẫu biệt thự 3 tầng 2 mặt tiền phong cách hiện đại
1.1 Thiết kế biệt thự song lập 3 tầng hiện đại - SH BTD 0080
Thông tin chi tiết mẫu biệt thự:
- Chủ đầu tư: Ông Vũ Văn Bình
- Loại hình: Biệt thự hiện đại
- Diện tích: 126m2 (12,8m x 9,9m)
- Mặt tiền: Mặt tiền 12m8
- Đơn vị thực hiện: Sơn Hà Group (#SHAC)
- Công năng:
- Tầng 1: Gara; Phòng khách; bếp ăn; WC; Phòng ngủ giúp việc
- Tầng 2: Phòng karaoke; 1 phòng ngủ thường + WC; 1 phòng ngủ master + WC master; phòng sinh hoạt chung
- Tầng 3: 2 phòng ngủ thường + WC; phòng tập; phòng thờ

Đầu tiên, mặt tiền là hạng mục kiến trúc quan trọng của bất kỳ công trình nào. Hiểu rõ điều này, từng đường nét của bố cục đều được các kiến trúc sư trau chuốt tỉ mỉ. Ngôi biệt thự 3 tầng với 2 mặt tiền với 2 mảng hình khối có diện mạo giống hết nhau tạo thành mối khối thống nhất sang trọng vững chãi. Hơn nữa, kiến trúc hiện đại gắn liền với sự tối giản về những họa tiết, màu sắc song biệt thự song lập có tính đối xứng cao nên người thiết kế nhà biệt thự phải cân nhắc lựa chọn từng mảng khối vuông vức, màu sắc,… theo tỉ lệ khắt khe và đảm bảo nguyên tắc nhất định để tạo sự liên khớp giữa 2 khối nhà biệt thự.

Một chi tiết chúng tôi cũng muốn trao đổi sâu hơn trong phương án thiết kế mẫu nhà biệt thự 3 tầng đẹp này chính là hệ mái. Các kiến trúc sư đã sử dụng mái thái dốc theo hình chữ A vô cùng duyên dáng giúp ngôi nhà trở nên cao ráo hơn. Không những thế mái thái độ dốc cao giúp cho tình trạng thoát nước nhanh chóng, hạn chế thấm tường, bám rêu ở căn nhà và đảm bảo cho sự thông thoáng bên trong rất phù hợp với thời tiết khí hậu nước ta. Điểm cộng nữa chính là việc phần mái được sử dụng màu nâu sang trọng hài hòa với màu trắng tinh tế của sơn tường hay màu xanh của thiên nhiên tạo nên tổng thể thẩm mỹ cao nhất.

Nhắc tới biệt thự song lập người ta nghĩ ngay đến một không gian sống tiện nghi sang trọng nên cùng với ngoại thất bên ngoài ấn tượng, thẩm mỹ cao, các kiến trúc sư Sơn Hà Group đã cân nhắc kỹ lưỡng để đưa ra phương án bố trí mặt bằng cho mẫu thiết kế biệt thự song lập hợp lý nhằm đáp ứng được những tiêu chí trên. Gồm:
- Tầng 1: Quầy bar mini; phòng bếp; phòng ăn; phòng khách; vệ sinh chung.
- Tầng 2: Phòng ngủ master có bồn xông sục; 2 phòng ngủ thường; 1 vệ sinh chung của tầng; phòng sinh hoạt chung.
- Tầng 3: Bố trí 1 phòng ngủ Vip tiện nghi như phòng ngủ tầng 2; 2 phòng ngủ thường; phòng thờ; phòng vệ sinh chung cả tầng.
Mời bạn tham khảo bản vẽ mặt bằng biệt thự 3 tầng 2 mặt tiền hiện đại diện tích 12,8×9,9m đầy đủ công năng, đảm bảo khoa học chúng tôi giới thiệu dưới đây:



1.2 Biệt thự hiện đại 3 tầng 2 mặt tiền 10m rộng 150m2 - SH BTD 0085
Thông tin chi tiết mẫu biệt thự:
- Chủ đầu tư: Ông Hoàng Huy Sơn
- Loại hình: Xây biệt thự trọn gói
- Diện tích: 154m2 (10m x 15,4m)
- Mặt tiền: Mặt tiền 10m
- Đơn vị thực hiện: Sơn Hà Group (#SHAC)
- Công năng:
- Tầng 1: Gara; Phòng khách; bếp ăn; WC; Phòng ngủ giúp việc
- Tầng 2: Phòng karaoke; 1 phòng ngủ thường + WC; 1 phòng ngủ master + WC master; phòng sinh hoạt chung
- Tầng 3: 2 phòng ngủ thường + WC; phòng tập; phòng thờ

Sở hữu diện tích sàn lên đến 150m2 (10m x 15,4m), tổng quan thiết kế biệt thự gây ấn tượng bởi những đường nét kiến trúc sáng tạo và thông minh, mang đậm hơi thở của thời đại mới. Trong đó đặc biệt phải kể đến thiết kế mặt tiền, cách sắp xếp hình khối đầy tinh tế và chi tiết mái ấn tượng.
Ngay từ cái nhìn đầu tiên, mặt tiền biệt thự 3 tầng 2 mặt tiền này gây ấn tượng cho người nhìn bởi cách ứng dụng những tỷ lệ và hình khối vô cùng thú vị. Đi theo lối thiết kế bất đối xứng với những hình hộp xếp chồng so le nhau. Điều này khiến tạo hiệu ứng thị giác, mở rộng không gian hơn con số 10m của mặt tiền biệt thự. Không chỉ “ăn điểm” về hình khối, cách bố trí cửa ra vào, cửa sổ và lỗ thông khí cũng được nghiên cứu tỉ mỉ để hài hòa với toàn bộ căn nhà. Chi tiết này còn giúp căn nhà luôn được điều hòa không khí một cách tự nhiên và ít khi phải dùng đến ánh sáng nhân tạo. Ngoài ra, sự kết hợp các màu sắc như xám, trắng phía ngoài mặt tiền cùng với vật liệu ốp đá tự nhiên một lần nữa khiến căn biệt thự trở nên hiện đại và tinh tế hơn.

Thay vì sử dụng mái bằng có phần nhàm chán, đồng thời tạo cảm giác bí bách thông thường, thiết kế hiện đại của biệt thự còn được biến tấu nhờ chi tiết mái thông minh. Với những đường vát đầy tinh tế, chi tiết mái này khiến tổng quan biệt thự trở nên thanh thoát và có chiều sâu, xóa bỏ đi cảm giác “hình hộp” dễ gặp trong các công trình thiết kế biệt thự hiện đại. Không chỉ ưu việt về thiết kế thẩm mỹ, mái vát còn sở hữu công năng tuyệt vời như chống nóng, chống lạnh, chống thấm, dột, đem lại cuộc sống tiện nghi cho chủ đầu tư.
Với diện tích sàn 150m2, các kiến trúc sư Sơn Hà Group không gặp nhiều khó khăn để phân bố công năng sao cho hợp lý và tiện dụng nhất có thể. Cụ thể toàn bộ căn biệt thự được chia làm 3 tầng, với tầng 1 là không gian chung, tầng 2 là các không gian riêng và tầng 3 ngoài phòng ngủ còn có các không gian giải trí và sân chơi.



>>>> CLICK NGAY: 7 Mẫu biệt thự 3 tầng mặt tiền 15m sang trọng, thiết kế đẹp
1.3 Biệt thự 3 tầng hiện đại mặt tiền 20m rộng 350m2- BTD 0023
Thông tin chi tiết mẫu biệt thự:
- Chủ đầu tư: Ông Hoàng Văn Trường
- Loại hình: Biệt thự hiện đại
- Diện tích: 350m2 (20mx17.5m)
- Mặt tiền: Mặt tiền 20m
- Đơn vị thực hiện: Sơn Hà Group (#SHAC)
- Công năng: Gara ô tô; Phòng khách; Phòng ăn + bếp; Sảnh và hành lang thang; 4 phòng ngủ; Phòng thờ - thư phòng; Sân phơi giặt.

Mặt tiền biệt thự 3 tầng 2 mặt tiền hiện đại được hợp bởi một tuyến dọc và một khối trụ tròn bám vào, đồng thời với đó là sự kết hợp của các tuyến đứng với các phân vị ngang – lối bố trí này mang đến dáng vẻ mềm mại, duyên dáng cho công trình. Mái chéo – hình dáng quen thuộc của ngôi nhà Việt. Đây là biểu tượng của sự vững chãi trong thiết kế này được làm mềm khi kết hợp với các mảng cong sinh động và vuông cửa kính thoáng trải khắp mặt tiền tạo nên hiệu ứng tích cực, đẹp, lạ mắt cho ngôi nhà. Đây là một trong những cách xử lý khiến chúng tôi hài lòng nhất vì đã giúp khách hàng giải quyết được vướng mắc cho mặt tiền công trình biệt thự 2 mặt tiền này.

Trước khi đi vào chi tiết giải pháp thiết kế, chúng tôi xin được tóm tắt phương án công năng của công trình biệt thự 3 tầng 2 mặt tiền có tầng hầm để bạn đọc tiện theo dõi:
- Tầng 1: Gara ô tô; phòng khách; phòng bếp – ăn; vệ sinh chung.
- Tầng 2: Phòng ngủ khép kín (4 phòng).
- Tầng 3: Phòng thờ; thư phòng; ban công rộng.
Về công năng tầng 1, chúng tôi bố trí như sau, vẫn là các phòng chức năng như yêu cầu của gia đình nhưng phòng khách sẽ được đẩy lên trước. Bên cạnh đó là gara và sảnh thang. Phía sau được dành toàn bộ cho phòng bếp-ăn và nhà vệ sinh.

Với tầng 2, không gian này tôi muốn tập trung dành trọn cho 4 phòng ngủ bao gồm: phòng ngủ VIP, phòng ngủ cho khách, phòng ngủ con gái và phòng ngủ con trai.

Xuất phát từ nhu cầu về công năng tầng 3 của gia đình anh (gồm phòng thờ và thư phòng, ưu tiên tối đa để tạo cảm giác thư thái), chung tôi đã bố trí phòng thờ và thư phòng về hai phía bên, phần chính giữa để bố trí ban công.

1.4 Biệt thự 180m2 mặt tiền 15m – SH BTD 0044
Thông tin chi tiết mẫu biệt thự:
- Chủ đầu tư: Ông Phạm Đức Hùng
- Loại hình: Biệt thự hiện đại
- Diện tích: 180m2 (15m x 12m)
- Mặt tiền: Mặt tiền 15m
- Đơn vị thực hiện: Sơn Hà Group (#SHAC)
- Công năng: Gara để xe; phòng khách; phòng bếp ăn; các phòng ngủ tiện nghi; phòng sinh hoạt chung; các phòng vệ sinh thiết kế đẹp

Đến với dịch vụ thiết kế và thi công biệt thự hiện đại của doanh nghiệp xây dựng uy tín thành phố cảng có không ít các chủ đầu tư mong muốn tìm được cho mình và gia đình ý tưởng khả thi cho ngôi biệt thự tiện nghi, sang trọng trên khu đất hạn chế về diện tích. Các bài viết giới thiệu phương án thiết kế nhà đẹp của SHAC được liên tục cập nhật cũng nhằm mục đích đáp ứng thỏa đáng mong muốn này của khách hàng. Chúng tôi hi vọng rằng những hình ảnh được chúng tôi tổng hợp và giới thiệu trong bài viết này sẽ mang đến bạn đọc những trải nghiệm thú vị về không gian sống tiện nghi của các mẫu biệt thự đẹp hiện đại và đẳng cấp.
>>>> GỢI Ý: Thiết kế biệt thự 3 tầng mặt tiền 7m đẹp, sáng tạo
1.5 Mẫu biệt thự 3 tầng diện tích xây dựng 400m2 - SH BTD 0021
Thông tin chi tiết mẫu biệt thự:
- Chủ đầu tư: Ông Trịnh Hồng Hiền
- Loại hình: Biệt thự Hiện đại
- Diện tích: 400m2
- Mặt tiền: Mặt tiền 16m
- Đơn vị thực hiện: Sơn Hà Group (#SHAC)
- Công năng: Gara để xe; phòng khách; phòng bếp – ăn; phòng sinh hoạt chung; các phòng ngủ với vệ sinh riêng tiện nghi; kho để đồ; phòng thờ

Ngôi biệt thự 3 tầng 2 mặt tiền này được thiết kế chủ yếu theo phong cách kiến trúc hiện đại. Bên cạnh việc kỹ càng lựa chọn màu sắc và phương án phối màu mặt tiền, chúng tôi còn sử dụng hệ mái Thái cho ngôi nhà biệt thự 3 tầng mái thái. Phối cảnh SH BTD 0021 đã cho thấy sự thành công của các kiến trúc sư SHAC trong việc kết hợp loại hình mái Thái sang trọng cùng những chi tiết phẳng và hình khối mạch lạc của kiến trúc hiện đại để định hình cho công trình phong cách phóng khoáng nhưng khá uy quyền.
Hệ thống mái thái đặc trưng với phong cách hiện đại đã làm cho căn biệt thự thêm nổi bật. Ngoại thất được sơn và ốp đá tách biệt hai màu vàng, trắng cho 2 tầng của căn biệt thự tạo nên điểm nhấn ấn tượng của tổng thể thiết kế.

Công năng công trình với các không gian như gara để xe, phòng khách, phòng bếp – ăn, phòng sinh hoạt chung, phòng ngủ, vệ sinh riêng tiện nghi, kho để đồ, phòng thờ đã được chúng tôi lên phương án mặt bằng. Dưới đây là mặt bằng công năng của các tầng:



>>>> BẬT MÍ: 6 Mẫu biệt thự 3 tầng mặt tiền 8m được săn lùng nhiều nhất
2. Mẫu biệt thự 3 tầng 2 mặt tiền phong cách Tân cổ điển
2.1 Mẫu biệt thự tân cổ điển 3 tầng 2 mặt tiền diện tích 180m2 - SH BTP 0151
Thông tin chi tiết mẫu biệt thự:
- Chủ đầu tư: Ông Nguyễn Phú Xuân
- Loại hình: Thiết kế biệt thự tân cổ điển
- Diện tích: 183,04m2 (14,3m x 12,8m)
- Mặt tiền: Mặt tiền 14m3
- Đơn vị thực hiện: Sơn Hà Group (#SHAC)
- Công năng: Gara để xe; phòng khách; phòng bếp – ăn; phòng sinh hoạt chung; các phòng ngủ với vệ sinh riêng tiện nghi; kho để đồ; phòng thờ

Mặt tiền ngôi biệt thự 3 tầng 2 mặt tiền tân cổ điển tại Hà Nội đặc biệt tập trung vào hệ trụ cột kiên cố tạo khối kiến trúc tổng thể đẹp vững bền theo thời gian. Hệ cột thật giả chạy xuyên suốt 3 tầng tại sảnh chính và sảnh phụ vừa tạo cảm giác chắc chắn cho công trình thêm bề thế vừa giúp bảo vệ, trang trí tránh các góc chết cho ngoại thất ngôi biệt thự. Các cột giả ốp sát tường được KTS khéo léo thiết kế tạo độ chênh lệch so le cho góc nhìn đẹp mắt với tỉ lệ chuẩn giúp phân định rõ nét khối chính phụ của công trình biệt thự đẹp.

Toàn bộ ngoại thất được sử dụng gam trắng thanh lịch vừa nâng tầm sang trọng vừa hút mắt mọi đối tượng bởi sự kết hợp màu sắc hài hòa, bắt mắt. Việc sử dụng cửa chính với chất liệu gỗ tự nhiên đơn giản giúp người nhìn cảm nhận rõ nét vẻ đẹp khối kiến trúc mẫu biệt thự 3 tầng 2 mặt tiền đẹp. Toàn bộ hệ cửa sổ dùng hệ kính khung trắng đảm bảo an toàn tuyệt đối mà không gian trong nhà trở nên gần gũi với thiên nhiên, vô cùng hoàn hảo.

Không chỉ gây ấn tượng qua sự kết hợp màu sắc và hệ thống cửa, mẫu biệt thự 3 tầng tân cổ điển còn nổi bật bởi công năng các tầng với bản vẽ chi tiết như sau:
- Tầng 1: Sảnh thang; phòng khách; phòng bếp ăn; phòng rượu; phòng ngủ giúp việc; phòng giặt; phòng vệ sinh chung.
- Tầng 2: Phòng sinh hoạt chung; 3 phòng ngủ có vệ sinh khép kín.
- Tầng 3 : Bố trí 1 phòng ngủ master; 1 phòng ngủ có vệ sinh khép kín; phòng xông hơi; phòng thờ.



2.2 Thiết kế nội thất biệt thự Tân cổ điển 123m2 - SH NOP 0222
Thông tin chi tiết mẫu biệt thự:
- Chủ đầu tư: Ông Lưu Thanh Tùng
- Loại hình: Nội thất tân cổ điển
- Diện tích: 123m2 (8,5m x 14,5m)
- Mặt tiền: Mặt tiền 8,5m
- Đơn vị thực hiện: Sơn Hà Group (#SHAC)
- Công năng:
- Tầng 1: Phòng khách; Sảnh sinh hoạt chung; Phòng bếp
- Tầng 2: Phòng sinh hoạt chung; 2 Phòng ngủ master + WC
- Tầng 3: Sảnh chung; 2 Phòng ngủ master
- Tầng tum: Sảnh tầng; Phòng thờ; Sân chơi

Phòng khách là “bộ mặt” của cả một căn biệt thự 3 tầng 2 mặt tiền. Phòng khách tiện nghi, sang trọng và lịch sự thể hiện chủ nhà là một người chỉn chu và thật sự có gu thẩm mỹ. Đi theo lối thiết kế tân cổ điển, toàn bộ những món đồ nội thất trong phòng khách ngôi nhà đều được kiến tạo từ những tông màu ấm áp như: nâu sáng, vàng kem, trắng kem,… Kết hợp cùng hệ thống chiếu sáng chuyên nghiệp và chất liệu nội thất cao cấp, tổng hòa đem đến một không gian đầy đẳng cấp.

Bên cạnh không gian phòng khách sinh hoạt chung, một không gian chung nữa mà các gia chủ cần lưu ý khi thiết kế nội thất, đó chính là không gian bếp. Là nơi giữ lửa của cả ngôi nhà, một căn bếp hiện đại, tiện nghi, có thiết kế phù hợp sẽ là người bạn đồng hành đắc lực của mỗi người. Đến với không gian phòng bếp, không gian này vẫn chia sẻ cùng kiểu thiết kế tân cổ điển ấn tượng, nhấn mạnh vào các chi tiết trang trí, phào chỉ cùng màu sắc và chất liệu.

Với kết cấu 4 tầng 1 tum cùng mặt bằng công năng 70m2/sàn, không khó để các kiến trúc sư tùy biến các không gian phòng ngủ của ngôi nhà. Phòng ngủ dành cho mỗi thành viên trong gia đình đều được thiết kế riêng biệt, với những chi tiết và màu sắc phù hợp với cá tính và sở thích. Tuy nhiên, bí quyết để không tạo nên sự “hỗn độn” về màu sắc và thiết kế chính là đưa những không gian này vào cùng một “mẫu số chung” là phong cách tân cổ điển.

Với diện tích sàn lý tưởng, Sơn Hà Group đã bố trí công năng một cách phù hợp với nhu cầu và thói quen sinh hoạt của từng thành viên trong gia đình gia chủ. Với thiết kế biệt thự 3 tầng 2 mặt tiền 1 tum, toàn bộ công năng sử dụng được chia như sau:
- Tầng 1: Phòng khách; Sảnh sinh hoạt chung; Phòng bếp
- Tầng 2: Phòng sinh hoạt chung; 2 Phòng ngủ master + WC
- Tầng 3: Sảnh chung; 2 Phòng ngủ master
- Tầng tum: Sảnh tầng; Phòng thờ; Sân chơi




2.3 Biệt thự 3 tầng 2 mặt tiền Tân cổ điển rộng 330m2 – SH BTP 0160
Thông tin chi tiết mẫu biệt thự:
- Chủ đầu tư: Ông Chí
- Loại hình: Thiết kế biệt thự tân cổ điển
- Diện tích: 330m2 (15m x 22m)
- Mặt tiền: Mặt tiền 15m
- Đơn vị thực hiện: Sơn Hà Group (#SHAC)
- Công năng:
- Tầng 1: Gara ô tô; phòng bếp ăn; vệ sinh chung của cả tầng.
- Tầng 2: Gồm phòng ngủ master (có ban công rộng); 2 phòng ngủ thường; phòng sinh hoạt chung thoáng đãng cũng có ban công; vệ sinh chung cho cả tầng.
- Tầng 3: Gồm 1 phòng ngủ; phòng thờ; sân phơi.

Không rối ren hoa văn trên gam màu trắng tinh tế tạo không gian sống chất lượng hoàn hảo, đẳng cấp cho gia chủ – đây chính là định hướng thiết kế các kiến trúc sư Sơn Hà Group đã lựa chọn cho ngôi biệt thự 3 tầng này. Là kết quả của sự hội tụ tinh hoa kiến trúc cổ điển và hiện đại, ngôi biệt thự mang nét đẹp sang trọng, quý phái nhưng không hề hào nhoáng, phô trương.

Bàn sâu về kiến trúc công trình chúng ta có thể thấy rằng hạng mục làm nên dáng dấp hoàng gia, đẳng cấp cho ngôi biệt thự 3 tầng 2 mặt tiền này có lẽ là hệ cột trụ với đầy đủ kích thước. Hơn nữa, kiểu dáng vuông tròn của trụ được thiết kế tỉ mỉ trên mặt đứng và được phân bổ đều và tương xứng các bên. Ở sảnh chính, hệ trụ được thiết kế lớn với hai cột trụ tròn sơn màu trắng cùng với những họa tiết, phào chỉ đắp nổi tinh xảo tạo nên sự nhẹ nhàng, thanh thoát, sang trọng và đẹp mắt. Cùng với đó, hệ thống cột trụ được thiết kế cao thoáng chống đỡ phần mái đua ra, kết hợp với hệ trụ cột vuông khỏe khoắn chắc chắn ốp nửa vào tường biệt thự, tô đậm chất cổ điển cho ngôi nhà.

Tiếp tục nội dung bài viết, chúng tôi xin được mời bạn đến với cách bố trí công năng tối ưu cho ngôi biệt thự 3 tầng 2 mặt tiền này. Công năng ngôi biệt thự này được phân chia như sau:
- Tầng 1: Gara ô tô; phòng bếp ăn; vệ sinh chung của cả tầng.
- Tầng 2: Gồm phòng ngủ master (có ban công rộng); 2 phòng ngủ thường; phòng sinh hoạt chung thoáng đãng cũng có ban công; vệ sinh chung cho cả tầng.
- Tầng 3: Gồm 1 phòng ngủ; phòng thờ; sân phơi.
Theo đánh giá của các khách hàng, cách bố trí công năng từng tầng khá khoa học và tiện dụng. Mời bạn cùng tham khảo qua các bản vẽ sau đây:




>>>> THAM KHẢO: 7 Mẫu biệt thự mini 3 tầng giá tốt, đẹp lôi cuốn
2.4 Biệt thự Tân cổ điển 3 tầng làm văn phòng và khu trưng bày – BTP 0156
Thông tin chi tiết mẫu biệt thự:
- Chủ đầu tư: Bà Nguyễn Thị Thoa
- Loại hình: Biệt thự tân cổ điển
- Diện tích: 136,5m2 (13m x 10,5m)
- Mặt tiền: Mặt tiền 13m
- Đơn vị thực hiện: Sơn Hà Group (#SHAC)
- Công năng: Cả 3 tầng của ngôi biệt thự đều được bố trí làm khu trưng bày sản phẩm kết hợp văn phòng làm việc đơn giản; mỗi tầng được bố trí 1 vệ sinh chung.

Xét về tổng thể biệt thự 3 tầng 2 mặt tiền kiểu tân cổ điển đẹp được các kiến trúc sư cân đối vô cùng hài hòa về tỉ lệ và cân đối về hình khối tạo được cho người nhìn cảm giác thanh thoát, thanh cao và ấn tượng. Qua phối cảnh chúng tôi giới thiệu bạn sẽ thấy công trình được thiết kế với cột trụ hình vuông ở sảnh nâng đỡ ban công tầng 2 và trụ tròn ở bậc tam cấp tạo được sự chắc chắn, khỏe khoắn cho ngôi nhà. Hệ cột trụ đó và bậc lên tam cấp được ốp đá màu vàng đồng tạo được sự cao ráo sạch sẽ không bị nước mưa bắn vào nhà gây trơn trượt hay ẩm ướt.

Ngoài ra, những chi tiết như đường kẻ chỉ ở các mảng tường cũng tạo được tính thẩm mỹ cao kết hợp với những ô cửa kính lớn vuông vắn màu gỗ tạo được sự tinh tế, tươi tắn mang màu sắc hiện đại. Nó giúp không gian biệt thự 3 tầng 2 mặt tiền phong cách tân cổ điển thêm sức hút và nhận được sự đánh giá cao của giới kiến trúc. Bàn thêm về phương án thiết kế kiến trúc của ngôi biệt thự đẹp này, chúng ta có thể thấy màu sắc được sử dụng là màu điển hình của kiến trúc tân cổ điển với tone chính của tòa nhà là màu vàng kem nhẹ nhàng, thanh khiết và tươi sáng. Kết hợp màu vàng đồng của hệ thống trụ cột và bậc tam cấp, màu xanh than của hệ mái tất cả toát lên khí thế vương giả và quyền uy.

Phần lớn diện tích của ngôi nhà biệt thự 3 tầng 2 mặt tiền này được sử dụng để làm không gian trưng bày sản phẩm dược nên bố trí khá thoáng đãng. Các tầng đều được bố trí theo công thức: 1 vệ sinh chung và không gian kinh doanh hoặc trưng bày hay văn phòng làm việc. Mời bạn xem thêm các bản vẽ mặt bằng công năng của ngôi biệt thự 3 tầng này tại đây:



2.5 Biệt 3 tầng mặt tiền 8m kết hợp showroom áo cưới – SH BTP 0155
Thông tin chi tiết mẫu biệt thự:
- Chủ đầu tư: Ông Lê Văn Thiện
- Loại hình: Biệt thự tân cổ điển kết hợp kinh doanh
- Diện tích: 137,7m2 (8,1m x 17m)
- Mặt tiền: Mặt tiền 8m1
- Đơn vị thực hiện: Sơn Hà Group (#SHAC)
- Công năng:
- Tầng 1: Showroom áo cưới; phòng dạy nghề; phòng bếp ăn; vệ sinh chung cho cả tầng.
- Tầng 2: Khu trưng bày mẫu váy cưới; phòng khách; phòng ngủ master; 2 phòng ngủ thường; vệ sinh chung cho cả tầng.
- Tầng 3: Phòng thờ; phòng giải trí và thể thao; 1 phòng ngủ; kho; vệ sinh chung; sân phơi.

Bởi kết hợp làm showroom áo cưới nên toàn bộ mặt tiền công trình được thiết kế ưu tiên hoàn toàn cho không gian trưng bày. Kiến trúc tân cổ điển được xem là một trong những xu hướng thiết kế nhà luôn giữ được sức hút. Phong cách kiến trúc này luôn chú trọng đến sự cầu kỳ, sự cân đối với những tỷ lệ vàng, tạo nên sức cuốn hút không những về sự vững chắc của hình khối, quan trọng hơn nó còn thể hiện sự uyển chuyển, kết nối và kiến tạo không gian thiết kế.

Ngoài ra, trong phương án thiết kế của ngôi biệt thự 3 tầng 2 mặt tiền này bạn còn dễ dàng cảm nhận được sự kết hợp linh hoạt của những thức cột tròn và cột vuông, cùng với những đường gờ chạy dọc, kết hợp với đèn treo tường và mái thái đua rộng, tạo nên một sự cân đối trong tổng thể chung. Chân cột và đầu cột không thiết kế khắc họạ những chi tiết quá cầu kỳ và tỉ mỉ, thiết kế kiến trúc với những đường nét khỏe khoắn.

Thiết kế mặt bằng công năng được xem là nhiệm vụ quan trọng khi kiến trúc sư tiếp nhận yêu cầu tư vấn thiết kế từ chủ đầu tư. Với kinh nghiệm xử lý mặt bằng, các kiến trúc sư Sơn Hà Group hoàn toàn không gặp khó khăn trong quá trình xử lý mặt bằng thiết kế những thế đất phức tạp. Mời bạn cùng tham khảo chi tiết cách sắp xếp công năng từng tầng trong các bản vẽ dưới đây:



2.6 Biệt thự Tân cổ điển 3 tầng diện tích 300m2 – SH BTP 0166
Thông tin chi tiết mẫu biệt thự:
- Chủ đầu tư: Ông Nguyễn Văn Tuấn
- Loại hình: Biệt thự tân cổ điển
- Diện tích: 300m2 (15m x 20m)
- Mặt tiền: Mặt tiền 15m
- Đơn vị thực hiện: Sơn Hà Group (#SHAC)
- Công năng:
- Tầng 1: Gara; Phòng khách; Phòng ăn + bếp; WC; phòng ngủ 1
- Tầng 2: 1 phòng ngủ master cùng phòng thay đồ và WC; 2 phòng ngủ thường +WC; Phòng sinh hoạt chung
- Tầng 3: 1 phòng ngủ thường + WC; Phòng thể thao; phòng thờ; 2 sân chơi
- Tầng áp mái: 2 kho; 1 phòng sinh hoạt chung

Nhìn vào mặt tiền của biệt thự, ta có thể cảm nhận được sự tài tình của các kiến trúc sư Sơn Hà Group khi các tỷ lệ và hình khối được sắp xếp một cách thông minh và tối ưu, giúp thu hút mọi ánh nhìn. Về màu sắc, toàn bộ căn biệt thự 3 tầng 2 mặt tiền này được sử dụng màu sơn vàng kem kết hợp với trắng ngà sang trọng, tinh tế, mang đến cảm giác cổ điển mà thanh lịch. Ngoài ra, việc sử dụng gam màu cam nổi bật trên mái cũng là một điểm nhấn thú vị, tương phản với phần thân nhà. Hệ mái thái có độ dốc tiêu chuẩn cũng là ý tưởng của Sơn Hà Group vừa khiến tổng thể thiết kế biệt thự thêm cao ráo, thanh thoát lại giúp thoát nước trên mái nhanh chóng khi trời mưa. Chi tiết này giúp tăng tuổi thọ công trình, tránh được các rủi ro về ngấm, dột mái.

Để tiếp nối bài viết, Sơn Hà Group mời độc giả cùng tham quan phía trong căn biệt thự 3 tầng 2 mặt tiền này để hiểu cách chúng tôi bố trí và sắp xếp công năng sử dụng phía trong biệt thự. Với diện tích lên đến 300m2, Sơn Hà Group đã chia thành 3 tầng và 1 tum, mỗi tầng lại có một chức năng và nhiệm vụ riêng biệt. Chi tiết như sau:
- Tầng 1: Gara; Phòng khách; Phòng ăn + bếp; WC; phòng ngủ 1
- Tầng 2: 1 Phòng ngủ master cùng phòng thay đồ và WC; 2 phòng ngủ thường +WC; Phòng sinh hoạt chung
- Tầng 3: 1 phòng ngủ thường + WC; Phòng thể thao; phòng thờ; 2 sân chơi
- Tầng áp mái: 2 kho; 1 phòng sinh hoạt chung
Sau đây là các bản vẽ mặt bằng chi tiết:




>>>> GỢI Ý: 8 Mẫu biệt thự 3 tầng mái dốc hiện đại, được săn đón nhất
3. Mẫu biệt thự lâu đài 3 tầng 2 mặt tiền
3.1 Biệt thự lâu đài mini diện tích 100m2 – SH BTLD 0002
Thông tin chi tiết mẫu biệt thự:
- Chủ đầu tư: Ông Võ Văn Nguyên
- Loại hình: Thiết kế biệt thự lâu đài
- Diện tích: 110m2 (10mx11m)
- Mặt tiền: Mặt tiền 10m
- Đơn vị thực hiện: Sơn Hà Group (#SHAC)
- Công năng: Gara ô tô; phòng khách; phòng sinh hoạt chung; phòng bếp-ăn; phòng làm việc; 4 phòng ngủ; phòng thờ; phòng phơi giặt.

Mang những đặc trưng thể hiện đẳng cấp chủ nhân như sự sang trọng và quyền uy, khi nhắc đến loại hình biệt thự 3 tầng 2 mặt tiền này người ta đều hình dung đến những công trình quy mô bề thế. Những chi tiết phào chỉ và hệ cột giả được đắp nổi một cách đẹp mắt với tỉ lệ khắt khe. Hệ cửa gỗ chính và khối phù điêu tại sảnh của ngôi biệt thự lâu đài 3 tầng này được tạo hình nổi bật với hệ cột giả kết nối với phù điêu với màu đồng tinh tế.

Bên cạnh đó, mặt bằng công năng các phòng chức năng của mẫu thiết kế lâu đài mini này cũng được bố trí rất đẹp mắt. Tại không gian tầng 1, chúng tôi bố trí gara để xe, kề đó là sảnh với thiết kế đẳng cấp cùng vật liệu ốp lát cao cấp. Tiến sâu vào trong là phòng khách, phòng bếp-ăn và 1 phòng ngủ cho người giúp việc. Tiếp theo là tầng 2 được dành trọn để thiết kế các không gian nghỉ ngơi và làm việc của các thành viên trong gia đình, đặc biệt tại tầng 2 chủ đầu tư còn đầu tư thiết kế những phòng vệ sinh với nội thất tiện nghi và cao cấp. Cuối cùng là tầng 3 được bố trí khu giặt phơi, phòng tập thể thao, cộng thêm phòng thờ truyền thống, linh thiêng được thiết kế với hướng thoáng, mát và trong lành. Chi tiết bản vẽ 3 tầng như sau:



3.2 Biệt thự lâu đài 3 tầng 1 tum rộng 160m2 kiểu cổ điển – SH BTLD 0022
Thông tin chi tiết mẫu biệt thự:
- Chủ đầu tư: Ông Nguyễn Khắc Hậu
- Loại hình: Biệt thự kiểu lâu đài
- Diện tích: 156m2 (13m x 12m)
- Mặt tiền: Mặt tiền 13m
- Đơn vị thực hiện: Sơn Hà Group (#SHAC)
- Công năng: Gara lớn; sảnh chính rộng; phòng khách; phòng bếp ăn; 5 phòng ngủ với vệ sinh khép kín; phòng tập gym của gia đình; phòng thờ truyền thống.

Nội thất công trình với việc sử dụng đa số vật liệu gỗ được tạo hình tinh tế trong không gian được bố trí khoa học. Từng tiểu tiết của không gian được đầu tư kỹ lưỡng cả về thiết kế và đồ nội thất. Đây chính là yếu tố tạo nên thành công cho vẻ đẹp mang phong cách cổ điển châu Âu thời thượng. Vì thế bất kỳ ai cũng dễ bị cuốn hút bởi quy mô và mức độ hoành tráng của công trình biệt thự 3 tầng 2 mặt tiền đẹp này. Sau đây là một số hình ảnh về phương án thiết kế nội thất của mẫu biệt thự lâu đài cổ điển đẳng cấp:



4. Nhà biệt thự kiểu Pháp thiết kế 3 tầng 2 mặt tiền
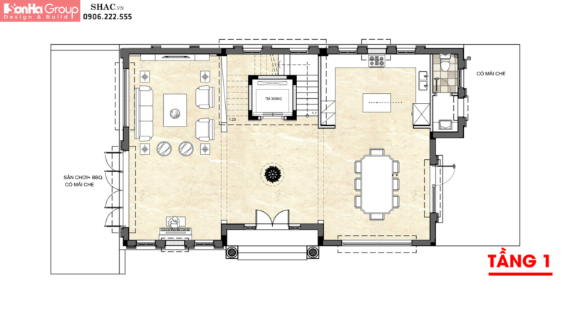
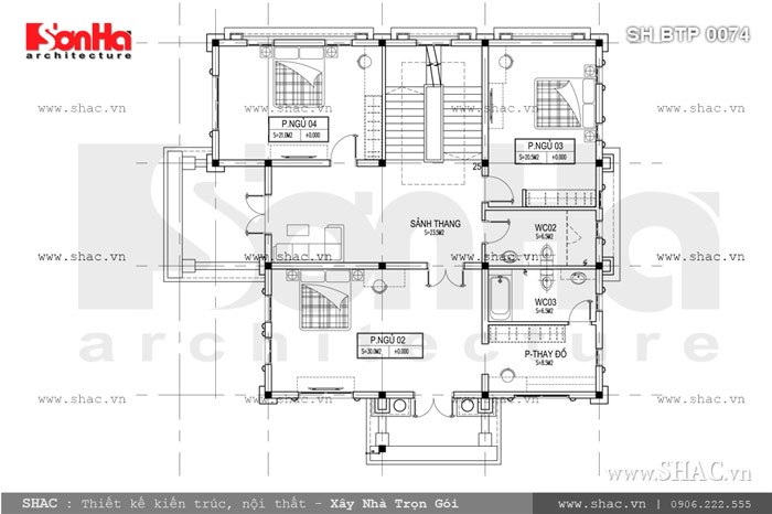
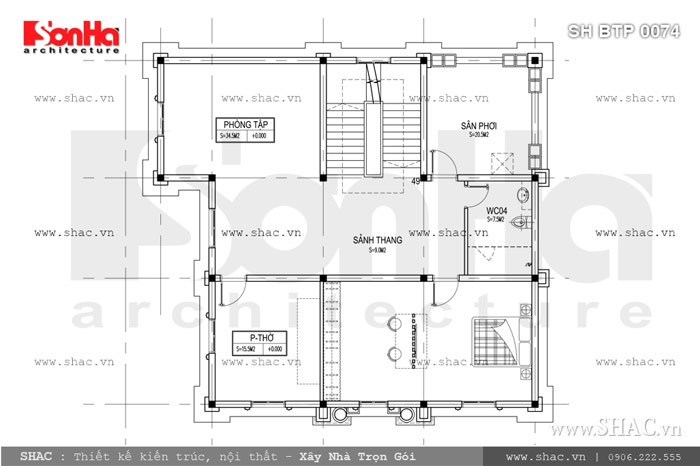
4.1 Mặt bằng biệt thự Pháp 3 tầng diện tích 180m2- SH BTP 0074
Thông tin chi tiết mẫu biệt thự:
- Chủ đầu tư: Nguyễn Khắc Hậu
- Loại hình: Biệt thự kiểu Pháp
- Diện tích: 180m2 (15m x 12m)
- Mặt tiền: Mặt tiền 15m
- Đơn vị thực hiện: Sơn Hà Group (#SHAC)
- Công năng: Chỗ để xe cho gia đình; sảnh lớn; phòng khách; phòng bếp ăn rộng; 5 phòng ngủ với vệ sinh khép kín; phòng thay đồ; phòng tập; phòng thờ; sân phơi.

Đơn giản trong thiết kế - tinh tế trong màu sắc, thiết kế kiến trúc biệt thự 3 tầng 2 mặt tiền Pháp tại Hà Nội khiến người nhìn cảm nhận được giá trị vun đắp cho chất lượng cuộc sống trọn vẹn hơn là phô diễn cầu kì qua hình khối của kiến trúc. Sự kết hợp hài hòa của màu sắc tự nhiên trắng - kem của tường, gam đỏ của mái ngói tạo nên một khối kiến trúc vững chắc và bắt mắt.
Trên diện tích 60m2 mỗi sàn, ngôi biệt thự 3 tầng mái thái kiểu Pháp sang trọng và đẳng cấp được bố trí như sau:
- Tầng 1: Chúng tôi bố trí sảnh chính; gara để xe; phòng khách lớn; phòng bếp ăn; phòng ngủ nhỏ cho người giúp việc.
- Tầng 2: Không gian này chúng tôi dành để bố trí 3 phòng ngủ cho các thành viên trong gia đình. Trong đó, có một phòng VIP được thiết kế thêm cả phòng thay đồ tiện nghi.
- Tầng 3: Phòng tập; 1 phòng ngủ dự phòng; sân phơi; phòng thờ.



4.2 Mẫu biệt thự kết hợp văn phòng công ty rộng 150m2 - BTP 0171
Thông tin chi tiết mẫu biệt thự:
- Chủ đầu tư: Bà Hoàng Thị Quyên
- Loại hình: Nhà ở kết hợp văn phòng
- Diện tích: 150m2 ( 11 x 13.5m)
- Mặt tiền: Mặt tiền 11m
- Đơn vị thực hiện: Sơn Hà Group (#SHAC)
- Công năng:
- Tầng 1: Quầy lễ tân, phòng giám đốc, phòng làm việc, WC
- Tầng 2: Sảnh sinh hoạt chung, 2 phòng ngủ + WC khép kín, 2 phòng ngủ đơn, WC
- Tầng 3: Phòng thể thao, 2 sân chơi, phòng thờ, phòng giặt, WC

Về ý tưởng thiết kế của căn biệt thự 3 tầng 2 mặt tiền này đặc biệt là ở chỗ kết hợp văn phòng kinh doanh cùng với không gian nhà ở. Cả hai không gian đều được tách biệt và đảm bảo tính riêng tư, không bị lẫn lộn công năng sử dụng.Lấy ý tưởng từ những công trình kiến trúc Pháp xuất hiện tại Việt Nam từ những năm cuối thế kỷ IXX, công trình lần này được thiết kế và xây dựng theo lối tân cổ điển đầy sang trọng. Phong cách tân cổ điển này mang lại cái nhìn sang trọng, đẳng cấp nhưng cũng vô cùng mới mẻ cho công trình.
Nói về thiết kế mặt tiền, công trình lần này mang đậm nét những đặc điểm của một công trình tân cổ điển cơ bản. Bao gồm sự sắp xếp hình khối bề thế, hiên ngang, hệ cột trụ nổi bật, các hoa văn phào chỉ trang trí và hệ cửa sổ cổ kính. Các chi tiết này cùng nhau tạo nên bản giao hưởng tân cổ điển độc đáo, sang trọng và đậm tính nghệ thuật. Bên cạnh thiết kế kiến trúc và kết cấu công trình, màu sắc và chất liệu cũng là yếu tố quan trọng không kém làm nên một công trình hoàn hảo. Màu sơn trắng tương phản hoàn hảo với hệ mái mansard xanh đen, tạo nên nét kiến trúc thú vị giữa lòng thành phố.

Công trình được thiết kế và xây dựng để vừa có thể làm tòa nhà văn phòng, vừa có thể làm nhà ở thông thường. Chính vì thế, với tổng quan 3 tầng, mặt sàn mỗi tầng 150m2, Sơn Hà Group đã có cách chia công năng phù hợp với từng nhu cầu. Cụ thể, tầng 1 dành cho văn phòng, tầng 2 và 3 dành riêng cho công năng nhà ở.



Trên đây là toàn bộ phương án thiết kế cũng như cách bố trí công năng sử dụng được Sơn Hà Group áp dụng để tạo nên thiết kế biệt thự 3 tầng 2 mặt tiền đẳng cấp. Cảm ơn bạn đọc đã theo dõi là hẹn gặp lại tại các bài viết tiếp theo.
Mọi chi tiết xin liên hệ:
CÔNG TY CỔ PHẦN TƯ VẤN XÂY DỰNG SƠN HÀ (SHAC)
Trụ sở chính: Số 318 – 319 HK3 đường Bùi Viện, Lê Chân, Hải Phòng
- Điện thoại: 0225 2222 555
- Hotline: 0906 222 555
- Email: sonha@shac.vn
Văn phòng đại diện
- Tại Hà Nội: Số 4/172, Ngọc Hồi, Huyện Thanh Trì, TP. Hà Nội
- Tại Quảng Ninh: Số 289 P. Giếng Đáy, TP. Hạ Long, Tỉnh. Quảng Ninh
- Tại Đà Nẵng: Số 51m đường Nguyễn Chí Thanh, P. Thạch Thang. Quận Hải Châu, TP. Đà Nẵng
- Tại Sài Gòn: Số 45 Đường 17 khu B, An Phú, Quận 2, TP. Hồ Chí Minh
- Xưởng nội thất: Số 45 Thống Trực, Nam Sơn. Kiến An, TP. Hải Phòng
>>>> CÓ THỂ BẠN QUAN TÂM:

