Bạn đang muốn tham khảo mẫu biệt thự hiện đại đẹp? Bạn đang lên ý tưởng xây dựng cho gia đình mình ngôi biệt thự 3 tầng hiện đại đẹp nhưng gặp khó khăn bởi có quá nhiều việc khiến bạn lo lắng và bị chi phối trong quá trình chuẩn bị xây nhà.
Thiết kế nhà ở là điều rất quan trọng. Công việc này giúp cả chủ đầu tư và đơn vị thi công chuẩn bị kĩ càng nhất về mặt kĩ thuật, công năng, thẩm mỹ, dự trù được vật liệu trong khi xây dựng nhà ở. Mẫu biệt thự hiện đại mã số SH BTD 0063 tại Hải Dương thuộc sở hữu của gia đình chủ đầu tư Nguyễn Thị Vân đã được ra đời theo một cách như thế.
NỘI DUNG CHÍNH
Thiết kế biệt thự mái thái 3 tầng theo phong cách hiện đại này được đánh giá là phương án thiết kế nhà đẹp, mới mẻ được các kiến trúc sư SHAC (Công ty Cổ phần Tư vấn Xây dựng Sơn Hà) tư vấn thiết kế và triển khai hồ sơ thiết kế kĩ thuật thi công cho chủ đầu tư đã nhận được đánh giá khá cao. Phương án thiết kế ngôi biệt thự 3 tầng 4 phòng ngủ với kiến trúc hiện đại, ấn tượng, mới mẻ, độc đáo sẽ là một gợi ý vô cùng thú vị cho các chủ đầu tư có cùng sự quan tâm với loại hình công trình này.
Lĩnh vực thiết kế biệt thự tại Hải Dương của SHAC đã gặt hái được thành công liên tục trong nhiều năm trở lại đây với các công trình quy mô. Đáng kể, đã có không ít mẫu biệt thự nhà đẹp được chình chọn là xu hướng thiết kế biệt thự hiện đại nói riêng và thiết kế biệt thự nói chung của năm.
Xem ngay thiết kế biệt thự đẹp nhất của các đại gia tại Hải Dương:
Một ngôi biệt thự xinh xắn hiện đại với kiến trúc tinh tế, độc đáo và duyên dáng có phải đang là niềm mong ước của bạn và gia đình? Hãy cùng chúng tôi chiêm ngưỡng và khám phá mẫu thiết kế biệt thự hiện đại diện tích 135m2 của chủ đầu tư Vân để có thể hiểu rõ hơn từ đó lựa chọn cho mình một không gian nhà ở lý tưởng, mãn nhãn.

Những mẫu biệt thự phố hiện đại hiện nay đã không còn xa lạ gì đối với chúng ta. Loại nhà ở này thường có kiến trúc từ 1 đến 2 mặt tiền hướng ra đường lớn. Mặt tiền biệt thự chính là nơi thể hiện toàn bộ ý tưởng của gia chủ cũng như ý tưởng sáng tạo, cá tính hoặc sự đặc biệt của mỗi mẫu thiết kế nhà phố, đồng thời thể hiện được sự sáng tạo của kiến trúc sư.
Mẫu mặt tiền biệt thự 3 tầng đẹp hiện đại tại Hải Dương áp dụng kiểu kiến trúc hiện đại (đây được đánh giá là lựa chọn hàng đầu cho những khu đất có diện tích hạn chế). Đặc điểm của phong cách này là chi tiết kiến trúc khá đơn giản, không tập trung quá nhiều vào mô tả chi tiết nhỏ nhặt mà thiên về việc xây đắp, tạo hình khối kiến trúc vững vàng.

Cùng với đó, việc kết hợp với vật liệu xây dựng hiện đại, màu sắc,... tạo cho ngôi biệt thự 3 tầng 2 mặt tiền hiện đại vẻ đẹp đơn giản, tinh tế. Việc các kiến trúc sư sử dụng tối đa các khoảng trống ở mặt tiền nhằm lấy sáng, tạo khối, sự hấp dẫn cho mắt nhìn đồng thời một vài chi tiết tô điểm cho thiên nhiên quanh khiến kiến trúc công trình thêm ấn tượng và tràn đầy sức sống. Trong giải pháp thiết kế kiến trúc còn phải kể đến chi tiết mái thái của công trình. Với cách sắp xếp chặt chẽ, đây có thể được coi là tham khảo điển hình cho những ai muốn sở hữu mẫu biệt thự mái thái phong cách hiện đại.

>> Xem ngay các phương án thiết kế đẹp cho biệt thự hiện đại mái thái 3 tầng BTD 0044
Đây là ngôi biệt thự đơn lập sở hữu mặt tiền được thiết kế với kiểu dáng duyên dáng, phác thảo được vẻ đẹp kiêu sa, tính chất thẩm mỹ phong phú, đồng thời tuân thủ theo những nguyên tắc, form kiến trúc thẩm mĩ nhất định.
Toàn bộ kiến trúc công trình được sử dụng màu sắc đẹp mắt và vô cùng tinh tế. Một điều quan trọng là không chỉ có màu sơn nội thất mới quan trọng mà sơn ngoại thất cũng vô cùng quan trọng và tinh tế cần thiết như thế. Bởi màu sơn không chỉ có tác dụng giúp nâng cao giá trị thẩm mỹ của ngôi nhà mà còn có tác dụng trong việc duy trì độ bền cho tường nhà, và bề mặt tường cũng luôn luôn mới mẻ, bền đẹp theo thời gian. Thấu hiểu điều này, các kiến trúc sư SHAC có cách sử dụng màu sắc phù hợp nhất.
Theo khảo sát thì màu trắng là một trong những gam màu được nhiều người chọn sơn tường nhà ngoại thất nhất. Điều này cũng khá dễ hiểu, bởi đây là gam màu khá dễ chịu, có thể kết hợp với nhiều màu sắc khác nhau, sử dụng được trong tất cả mọi loại kiến trúc từ đơn giản cho đến hiện đại, tân cổ hay cổ điển đều có cách để tạo nên sức hấp dẫn và ấn tượng riêng cho mẫu thiết kế. Qua phối cảnh chúng ta thấy hiệu quả dễ nhìn thấy có cách kết hợp gam màu trắng với màu nâu các biên độ khác nhau.
Mẫu thiết kế biệt thự hiện đại SH BTD 0063 vô cùng sáng tạo và được đánh giá rất cao bởi sự độc đáo và tinh tế trong kiến trúc ngoại thất của nó. Vẻ đẹp trang nhã, hiện đại cùng những chi tiết phá cách khiến cho ngôi nhà không bị nhàm chán, đơn điệu, khô cứng mà ngược lại đem đến cảm giác thú vị, thu hút sự chú ý vì sự mới mẻ của kiến trúc ấy.
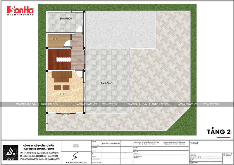
Tuy nhiên, đây chưa phải là tất cả để nói nên thành công của mẫu nhà biệt thự hiện đại này. Nhất định bạn không nên bỏ qua mặt bằng công năng công trình để hiểu hết được rằng vì sao giải pháp thiết kế của công trình lại hoàn toàn chinh phục được vị chủ đầu tư khó tính.



Trên đây là hồ sơ thiết kế kiến trúc biệt thự hiện đại 3 tầng 2 mặt tiền chúng tôi thực hiện cho chủ đầu tư tại Hải Dương. Tọa lạc trên khu đất có diện tích có phần đặc biệt với công năng có phần cầu kỳ nên phương án thiết kế biệt thự này cũng đã khiến các kiến trúc sư phải tập trung hết sức. Tuy nhiên, kinh nghiệm và năng lực đã giúp các kiến trúc sư SHAC làm được tất cả và trình lành thành công mẫu biệt thự hiện đại đẹp mã số SH BTD 0063.
Mọi chi tiết xin liên hệ:
CÔNG TY CỔ PHẦN TƯ VẤN XÂY DỰNG SƠN HÀ (SHAC)
Trụ sở chính: Số 55, đường 22, KĐT Waterfront City, Lê Chân, Hải Phòng
Văn phòng đại diện
Ảnh khác
Bình luận