10 Mẫu Biệt Thự 3 Tầng Cổ Điển Đẹp, Sang Trọng, Cao Cấp
Đối với những gia chủ có điều kiện kinh tế vững chắc lại có niềm đam mê với phong cách kiến trúc hoàng gia châu Âu thì lựa chọn xây dựng biệt thự 3 tầng cổ điển là điều không quá khó khăn. Trong những năm qua, những mẫu biệt thự 3 tầng cổ điển kiểu pháp hoặc kiểu lâu đài mang thương hiệu Sơn Hà Group đã không ít lần làm dậy sóng dư luận bởi cả yếu tố thiết kế. Hãy cùng tìm hiểu ngay những mẫu biệt thự cổ điển đang được yêu thích qua bài viết dưới đây nhé!
>>>> XEM THÊM: 100 Mẫu thiết kế biệt thự 3 tầng hiện đại, đẳng cấp 2022
1. Mẫu thiết kế biệt thự 3 tầng cổ điển đẹp
1.1. Mẫu biệt thự cổ điển 3 tầng 10,3X28,6m
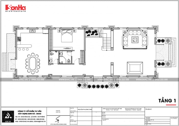
Thông tin chi tiết mẫu biệt thự:
- Chủ đầu tư: Ông Nguyễn Xuân Dắt
- Loại hình: Biệt thự cổ điển đẹp
- Diện tích: 294,6m2 (10,3mx28,6m)
- Mặt tiền: Mặt tiền 10m3
- Đơn vị thực hiện: Sơn Hà Group (#SHAC)
- Công năng: Phòng khách; phòng bếp; phòng ăn; 4 phòng ngủ; các phòng vệ sịnh; phòng sinh hoạt chung; phòng thờ; sân phơi.

Có thể thấy mẫu thiết kế biệt thự phong cách cổ điển tại Cần Thơ này mang đến cho người nhìn một sự cảm nhận sâu sắc như quay lại thời kỳ phục hưng của Pháp. Cách sử dụng màu sắc xanh và trắng tinh tế chạy dài khắp hết phần mặt tiền tạo cảm giác vô cùng rộng rãi, sạch sẽ, sáng bóng, sang trọng và độc đáo. Điểm nhấn là các chi tiết được sơn mạ vàng làm cho căn biệt thự trở nên đẳng cấp và hoàng gia hơn bao giờ hết.

Bàn về kiến trúc công trình thì phải kể đến những điểm nhấn đáng trân quý đã được các kiến trúc sư SHAC tạo hình, cụ thể đó là nét năng động và độc đáo. Nét năng động và độc đáo này được mang đến qua những mảng tường bố trí hài hòa các vuông cửa cổ điển. Kích thước của từng vuông cửa đều được kiến trúc sư cân nhắc để không tạo cảm giác tù túng và nhàm chán.

Liên hệ ngay để được tư vấn miễn phí.
Tư vấn thiết kế miễn phí: 0906.222.555
>>> THAM KHẢO: 50 Mẫu biệt thự 3 tầng tân cổ điển đẹp, sang trọng, đẳng cấp
1.2. Mẫu biệt thự cổ điển mái ngói 3 tầng
Thông tin chi tiết mẫu biệt thự:
- Chủ đầu tư: Ông Nguyễn Duy Giang
- Loại hình: Thiết kế biệt thự kiến trúc Pháp
- Diện tích: 198m2 (9mx22m)
- Mặt tiền: Mặt tiền 9m
- Đơn vị thực hiện: Sơn Hà Group (#SHAC)
- Công năng: Phòng khách, phòng bếp ăn, phòng ngủ, phòng xông hơi, phòng sinh hoạt chung, phòng tắm, phòng thờ

Mẫu biệt thự đẹp này được thiết kế theo kiểu dáng 3 tầng 1 tum kiến trúc Pháp tại Hà Nội này sẽ thu hút bạn ngay từ ánh nhìn bởi diện mạo sang trọng, kết hợp các yếu tố cổ điển, cách tân một cách hài hòa, tinh tế. Hệ mái ngói xanh đen được kiến trúc sư của Sơn Hà lựa chọn vô cùng hợp lý tạo điểm nhấn nổi bật cho công trình. Thêm vào đó, đó là không gian sống cũng hoàn hảo với thiết kế nội thất cổ điển đẹp mắt và tiện nghi phù hợp với thiết kế tổng thể.

Không được trang trí bởi những chi tiết hoa văn phào chỉ tinh xảo, tuy nhiên mẫu biệt thự 3 tầng cổ điển này vẫn có thể toát lên vẻ đẹp sang trọng và vô cùng khang trang với bố cục vững chãi được tạo hình vuông vắn. Biệt thự cổ điển được sử dụng gam trắng nhẹ nhàng nhấn nhá thêm sắc nâu của hệ thống cửa sổ gỗ tạo ấn tượng sang trọng. Ấn tượng hơn cả đó là hệ mái ngói xanh đen đẳng cấp tôn thêm vẻ đẹp đậm chất cổ điển kiểu Pháp của công trình.

1.3. Mẫu thiết kế biệt thự cổ điển 3 tầng mặt tiền 15m
Thông tin chi tiết mẫu biệt thự:
- Chủ đầu tư: Ông Dương Văn Hùng
- Loại hình: Thiết kế biệt thự Pháp
- Diện tích: 93m2 (15,5mx6m)
- Mặt tiền: Mặt tiền 15m5
- Đơn vị thực hiện: Sơn Hà Group (#SHAC)
- Công năng: Gara để xe; phòng bếp ăn; phòng khách; các phòng vệ sinh; 5 phòng ngủ; sân phơi.

Ngôi biệt thự của chủ đầu tư Hùng tạo thiện cảm với người nhìn bởi quy mô lớn, mức độ đồ sộ, nguy nga đến từng tiểu tiết. Với việc vận dụng sáng tạo những tinh túy của phong cách kiến trúc cổ điển kết hợp với hai gam màu trắng và đỏ của ngói, các kiến trúc sư của SHAC đã làm nên diện mạo hạ gục mọi ánh nhìn và hoàn toàn làm hài lòng vị chủ đầu tư khó tính.

>>>> BẬT MÍ: 50 Mẫu biệt thự 3 tầng mái thái hiện đại theo xu hướng
1.4. Mẫu biệt thự cổ điển 3 tầng mặt tiền 17m
Thông tin chi tiết mẫu biệt thự:
- Chủ đầu tư: Ông Hoàng Nam Văn
- Loại hình: Biệt thự kiểu lâu đài
- Diện tích: 215,9m2 (17mx12,7m)
- Mặt tiền: Mặt tiền 17m
- Đơn vị thực hiện: Sơn Hà Group (#SHAC)
- Công năng: Gara để xe; phòng khách lớn; phòng bếp ăn; phòng sinh hoạt chung; 4 phòng ngủ; các phòng vệ sinh; phòng thờ.

Trên diện tích đất có diện tích hơn 200m2 (17mx12,7m), ngôi biệt thự 3 tầng cổ điển của chủ đầu Văn được bố trí công năng ưu tiên cao tính tiện dụng trong sinh hoạt phù hợp với gia chủ. Theo đó, số lượng phòng chức năng được thiết kế tuy ít nhưng lại được ưu tiên diện tích rộng nhằm mang đến sự thoáng đãng cho không gian. Biệt thự còn được thiết kế thêm hai hầm gara ô tô với sức chưa lớn nên cực kỳ thuận tiện.

Điền vào form dưới đây để được tư vấn miễn phí nha.
1.5. Mẫu biệt thự cổ điển Pháp màu trắng
Thông tin chi tiết mẫu biệt thự:
- Chủ đầu tư: Ông Nguyễn Xuân Cát
- Loại hình: Thiết kế biệt thự kiến trúc Pháp
- Diện tích: 221m2 (17m x 13m)
- Mặt tiền: Mặt tiền 17m
- Đơn vị thực hiện: Sơn Hà Group (#SHAC)
- Công năng: Gara để xe; phòng khách; phòng bếp ăn; 5 phòng ngủ; vệ sinh phòng ngủ và vệ sinh các tầng; phòng thờ; khu phơi giặt

Ngôi biệt thự đẹp 3 tầng kiểu Pháp màu trắng này của gia đình chủ đầu tư Nguyễn Xuân Cát tại Quảng Ninh thực sự đẳng cấp và nổi bật với cách sử dụng màu sắc thanh lịch và có chiều sâu. Sự kết hợp của hai gam màu trắng với hệ mái ngói vảy cá xanh đen được đánh giá là sự kết hợp không bao giờ nhàm mắt. Thiết kế kiến trúc cổ điển và sang trọng nhằm giúp khẳng định tên tuổi và phong cách của gia chủ.

>>>> XEM THÊM: 5 Mẫu biệt thự 3 tầng chữ l đẹp, hiện đại được ưa chuộng
2. Đặc trưng về kiến trúc của biệt thự 3 tầng cổ điển
Kiến trúc của biệt thự 3 tầng cổ điển có những đường nét sang trọng, đẳng cấp với các đặc trưng riêng có thể kể đến như:
- Kiến trúc đối xứng và cân xứng: Kiến trúc của biệt thự cổ điển phải thể hiện rõ trong việc trang trí, bố cục tỷ lệ kiến trúc, các chi tiết phào chỉ kiến trúc trang trí ngoại thất,....Thêm vào đó cũng phải thiết kế đối xứng trong nội thất, đối xứng trong màu sắc, tỷ lệ cân đối không gian, chính- phụ.
- Luôn sử dụng nhiều cột, trụ lớn: Thiết kế sử dụng nhiều cột, trụ lớn sẽ có tác dụng chịu lực chính trong việc chống đỡ kết cấu công trình hiệu quả. Các cột trong thiết kế biệt thự 3 tầng cổ điển thường hình trụ là chủ yếu hoặc hình vuông.

- Chạm khắc chi tiết cầu kì trên cửa ra vào, phào và cửa sổ: Các chi tiết hoa văn trên cửa thường được thực hiện thủ công bởi bàn tay tài hoa của những người thợ. Ngoài ra thì cũng có thể sử dụng những loại phào chỉ, phù điêu trang trí sẵn có để hoàn thiện ngôi nhà.
- Thiết kế trán tường hình tam giác hoặc mái vòm, mái mardsan: Đây được coi là chi tiết đặc trưng để nhận thấy cho những công trình biệt thự cổ điển hiện nay. Những mái vòm uốn lượn nghệ thuật cho cảm giác mạch lạc, hiên ngang có chút lạ lẫm đối với công trình.
Liên hệ ngay số điện thoại dưới đây để được tư vấn miễn phí nha.
Tư vấn thiết kế miễn phí: 0906.222.555
>>>> XEM THÊM: 11 Mẫu biệt thự 3 tầng 4 phòng ngủ yêu thích nhất hiện nay
3. Chi phí xây dựng biệt thự cổ điển 3 tầng là bao nhiêu?
Chi phí xây dựng biệt thự 3 tầng cổ điển tại SHAC sẽ được tính như sau:
- Gói thiết kế biệt thự hiện đại, tân cổ điển, cổ điển
- Gói kiến trúc thiết kế biệt thự hiện đại + tân cổ điển: 220.000đ/m2
- Gói thiết kế biệt thự cổ điển: 250.000đ/m2
- Gói thiết kế nội thất: 250.000đ - 300.000đ/m2
- Gói thi công biệt thự từ 9.000.000 vnđ đến 11.000.000đ/m2

Bên cạnh đó thì chi phí và thời gian xây dựng các mẫu nhà biệt thự 3 tầng cổ điển cũng sẽ chênh lệch. Vì chi phí cho móng, xây thô, đặc biệt là chi phí hoàn thiện, nhân công và nguyên vật liệu sẽ cao hơn rất nhiều. Do đó, khi có ý định xây dựng nhà biệt thự 3 tầng theo phong cách cổ điển thì bạn nên liên hệ ngay qua HOTLINE dưới đây để được nhân viên tư vấn cụ thể về mức chi phí.
>>>> CLICK NGAY: 7 Mẫu biệt thự mini 3 tầng giá tốt, đẹp lôi cuốn
4. Đơn vị nhận thiết kế, thi công mẫu biệt thự 3 tầng cổ điển uy tín, giá tốt
Sơn Hà Group là thương hiệu uy tín hàng đầu của Việt Nam hiện nay trong lĩnh vực thiết kế nội ngoại thất và xây nhà, biệt thự 3 tầng cổ điển trọn gói. Mỗi giải pháp thiết kế thi công của Sơn Hà Group đều luôn hướng tới sự tiện ích, tận dụng tối đa công năng, linh hoạt vận dụng tinh hoa kiến trúc để có thể mang đến quý khách hàng những không gian sống tuyệt vời nhất.

Tham khảo ngay bảng giá thiết kế cổ điển, biệt thự 3 tầng tân cổ điển tại Sơn Hà Group bạn nhé.
Thiết kế nhà ống
- Nhà ống hiện đại, nhà ống tân cổ điển
- Thời gian thiết kế: 30 ngày
- Tư vấn phong thủy
- Bản vẽ măt bằng công năng
- Bản vẽ xin phép xây dựng
- Bản vẽ phối cảnh mặt tiền
- Bản vẽ chi tiết kiến trúc
- Bản vẽ chi tiết kết cấu
- Bản vẽ điện, cấp thoát nước
- Tư vấn bố trí vật dụng nội thất
- Giám sát quyền tác giả
Thiết kế biệt thự
- Biệt thự hiện đại, Biệt thự tân cổ điển
- Được tư vấn bởi đội ngũ KTS 5+ năm kinh nghiệm
- Thời gian thiết kế: 45 ngày
- Tư vấn phong thủy
- Bản vẽ măt bằng công năng
- Bản vẽ xin phép xây dựng
- Bản vẽ phối cảnh mặt tiền
- Bản vẽ chi tiết kiến trúc
- Bản vẽ chi tiết kết cấu
- Bản vẽ điện, cấp thoát nước
- Tư vấn bố trí vật dụng nội thất
- Giám sát quyền tác giả
Thiết kế VIP
- Lâu đài, Biệt thự cổ điển
- Được tư vấn bởi đội ngũ KTS 10+ năm kinh nghiệm
- Thời gian thiết kế: 60 ngày
- Tư vấn phong thủy
- Bản vẽ măt bằng công năng
- Bản vẽ xin phép xây dựng
- Bản vẽ phối cảnh mặt tiền
- Bản vẽ chi tiết kiến trúc
- Bản vẽ chi tiết kết cấu
- Bản vẽ điện, cấp thoát nước
- Tư vấn bố trí vật dụng nội thất
- Giám sát quyền tác giả
Hiện tại, Sơn Hà Group đang tập trung vào những lĩnh vực chính, cụ thể như: Xây nhà trọn gói; Thiết kế kiến trúc và nội thất; Thi công hạng mục hoàn thiện; Sản xuất, thi công đồ nội thất gỗ. Ngoài ra thì Sơn Hà Group đang là đối tác hàng đầu của các dự án lớn như: dự án Vinhomes, Phương Đông Vân Đồn, Waterfont City, Hoàng Huy Mall,…Với năng lực và kinh nghiệm đã được khẳng định qua các công trình lớn nhỏ khác nhau trải khắp 3 miền đất nước, Sơn Hà Group tự tin sẽ mang đến cho quý khách hàng một công trình chất lượng nhất.
Trên là những chia sẻ của Sơn Hà Group về những mẫu biệt thự 3 tầng cổ điển. Hy vọng với những thông tin cụ thể trên đã giúp bạn tìm được mẫu biệt thự yêu thích cho mình, cũng như tin tưởng lựa chọn những dịch tại SHAC.
>>>> NHỮNG BÀI VIẾT NỔI BẬT

