Biệt thự 3 tầng đang trở thành lựa chọn hàng đầu cho những gia chủ yêu thích không gian sống rộng rãi, tiện nghi, và mang phong cách thẩm mỹ độc đáo.
Hãy cùng Sơn Hà Group tìm hiểu chi tiết về những mẫu biệt thự 3 tầng đẹp, hiện đại và những xu hướng thiết kế mới nhất để giúp bạn có được lựa chọn hoàn hảo cho ngôi nhà mơ ước.
NỘI DUNG CHÍNH

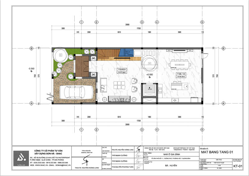
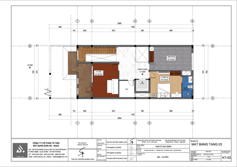
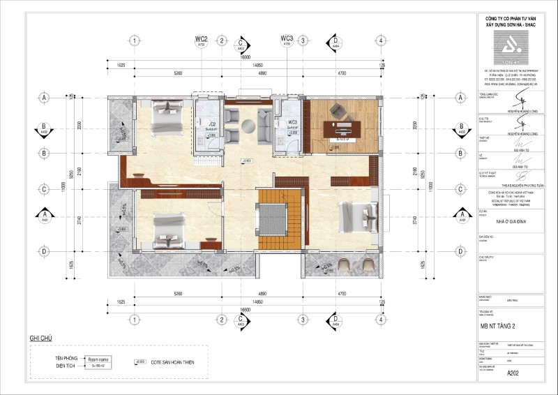
Biệt thự 3 tầng là loại hình nhà ở có kết cấu bao gồm 3 tầng riêng biệt, thường được xây dựng trên diện tích đất rộng, với không gian thiết kế thoáng đãng và sang trọng. Biệt thự 3 tầng không chỉ mang đến không gian sống đẳng cấp mà còn tối ưu về công năng sử dụng, đảm bảo đáp ứng đầy đủ nhu cầu sinh hoạt của các thành viên trong gia đình.
Các mẫu biệt thự 3 tầng thường được thiết kế với sự phân chia công năng rõ ràng. VD như :



Ngoài ra đa số các mẫu nhà biệt thự 3 tầng đẹp có diện tích đất rộng thường được tích hợp thêm sân vườn, tiểu cảnh cây xanh, hồ cá, ban công rộng rãi… Điều này vừa tạo sự riêng tư cho căn nhà lại mang đến không gian sống gần gũi với thiên nhiên, tăng trải nghiệm chữa lành cảm xúc và tâm hồn trong cuộc sống hiện đại bộn bề lo toan và stress.
Thiết kế biệt thự 3 tầng mang những đặc điểm nổi bật như:
Với diện tích rộng rãi từ 100m2 trở lên, 3 tầng biệt thự tạo ra nhiều không gian chức năng khác nhau, đáp ứng mọi nhu cầu sử dụng của tất cả thành viên trong gia đình.

Một yếu tố quan trọng của thiết kế biệt thự 3 tầng đẹp chính là sự riêng tư mà không gian này đem lại. Với diện tích rộng rãi và bố trí hợp lý, biệt thự đáp ứng tối đa nhu cầu riêng tư cho cả gia đình.

Các phòng ngủ được thiết kế độc lập và có cửa mở ra ban công với những chậu cây xanh mát bên ngoài, tạo nên không gian lý tưởng để gia đình tận hưởng cảm giác bình yên và thoải mái riêng tư.
Biệt thự có thể thiết kế theo phong cách hiện đại, phong cách Địa Trung Hải, tân cổ điển hoặc cổ điển phù hợp với nhiều loại hệ mái như mái Mansard, mái Nhật, mái Thái, mái chéo, mái bằng,... tùy thuộc vào sở thích của bạn.


Hệ thống sân vườn, tiểu cảnh hoặc hồ bơi thường được kết hợp để tạo ra không gian thư giãn ngoài trời.
Trong những năm gần đây, thiết kế biệt thự 3 tầng phong cách hiện đại đang trở thành lựa chọn ưu tiên của nhiều gia đình nhờ vào sự tinh tế và tiện nghi. Các căn biệt thự hiện đại này chú trọng vào việc tối ưu hóa không gian và sử dụng vật liệu mới như kính, thép, bê tông để tạo nên không gian mở và thoáng đãng, mang đến sự độc đáo, phong cách.

Với thiết kế biệt thự 3 tầng hiện đại này, các đường nét đơn giản, có hình khối rõ ràng rất được ưa chuộng. Mặt tiền kết hợp cùng các bề mặt kính lớn nhằm tận dụng tối đa ánh sáng tự nhiên, tạo cảm giác mở rộng không gian. Phong cách hiện đại còn nhấn mạnh tính liên kết với thiên nhiên, thường tích hợp các khu vực xanh như vườn trên cao, hồ bơi hoặc tiểu cảnh mang đến cảm giác gần gũi với thiên nhiên.

Các tiện ích hiện đại như hệ thống nhà thông minh, không gian sinh hoạt chung mở cũng là đặc điểm nổi bật trong các mẫu biệt thự này, mang lại cuộc sống tiện nghi và hiện đại. Điều này không chỉ làm tăng tính thẩm mỹ mà còn đem lại sự thoải mái và tiện dụng cho từng thành viên trong gia đình.
Biệt thự tân cổ điển 3 tầng là sự hòa quyện giữa nét đẹp cổ điển sang trọng và tiện nghi hiện đại. Điểm nhấn của phong cách này là các cột trụ vững chãi, phào chỉ và hoa văn tinh xảo nhưng vẫn giữ sự thanh lịch, trang nhã. Hệ thống phào chỉ dọc tường và trần nhà không chỉ làm đẹp mà còn tạo sự cân đối, hài hòa cho không gian.

Nội thất biệt thự thường hướng đến sự tiện nghi với đồ trang trí cao cấp như sofa tân cổ điển, đèn chùm pha lê và các chi tiết mạ vàng. Màu sắc chủ đạo là các gam màu trung tính như trắng, be, vàng nhạt, mang lại cảm giác ấm cúng và quý phái. Phong cách này không chỉ tạo nên vẻ đẹp vượt thời gian mà còn đáp ứng đầy đủ nhu cầu sống hiện đại của gia đình.

Thiết kế biệt thự 3 tầng theo phong cách cổ điển luôn thu hút nhờ vẻ đẹp uy nghi và quý phái, mang hơi thở của kiến trúc châu Âu. Điểm nhấn của những biệt thự này nằm ở sự tinh xảo của các chi tiết hoa văn, cột trụ lớn, và mái vòm cao rộng, tạo nên sự hài hòa, cân đối cho tổng thể công trình.

Gam màu chủ đạo thường là trắng ngà, vàng ánh kim hoặc gỗ tự nhiên, kết hợp cùng chất liệu cao cấp như đá cẩm thạch, gỗ quý, và kim loại mạ vàng, tạo cảm giác xa hoa, lộng lẫy. Nội thất cũng được bố trí cầu kỳ, từ phòng khách rộng rãi với đèn chùm lớn, đến phòng ngủ ấm cúng, tất cả đều mang lại sự tiện nghi và thoải mái.
Không gian cảnh quan xung quanh, từ vườn cây, đài phun nước đến lối đi lát đá, giúp biệt thự thêm phần thơ mộng, thanh bình. Xu hướng biệt thự cổ điển 3 tầng không chỉ thể hiện gu thẩm mỹ tinh tế của gia chủ mà còn mang đến không gian sống đậm chất nghệ thuật và sang trọng.
Thiết kế biệt thự 3 tầng mái Thái giúp chống nóng, thoát nước mưa tốt và tạo nên nét đẹp truyền thống. Đây là lựa chọn phù hợp cho những gia đình mong muốn không gian sống vừa hiện đại vừa gần gũi.




Những mẫu biệt thự 3 tầng được yêu thích bởi sự đa dạng trong thiết kế, khả năng tối ưu không gian và mang đến không gian sống tiện nghi, đẳng cấp. Gia chủ có thể dễ dàng lựa chọn giữa nhiều phong cách khác nhau để tạo nên dấu ấn riêng cho ngôi nhà của mình.


Sơn Hà đã thiết kế nhiều mẫu biệt thự hiện đại 3 tầng với phong cách đơn giản nhưng tinh tế, tối ưu ánh sáng và không gian sử dụng. Mỗi căn biệt thự không chỉ là một công trình kiến trúc, mà còn phản ánh gu thẩm mỹ và phong cách sống của từng gia chủ.
Đội ngũ kts của chúng tôi luôn lắng nghe và hiểu nhu cầu của khách hàng, tạo ra các giải pháp sáng tạo và phù hợp. Những khoảng sân vườn xanh mát, ban công rộng và cửa kính lớn cho phép ánh sáng tự nhiên tràn vào, mang lại không gian sống thoải mái và gần gũi với thiên nhiên.
Xem ngay nội dung hấp dẫn này : Giải pháp thiết kế biệt thự tân cổ điển chuẩn phong thủy trên mặt bằng cũ
Vật liệu cao cấp như kính cường lực, gỗ tự nhiên và bê tông được sử dụng để đảm bảo vẻ đẹp và độ bền. Mỗi chi tiết thiết kế được chăm chút tỉ mỉ, từ kiến trúc đến màu sắc. Các biệt thự còn được trang bị tiện ích hiện đại như hệ thống chiếu sáng thông minh và nội thất cao cấp, tạo nên không gian sống tiện nghi và thể hiện đẳng cấp của gia chủ.

Biệt thự tân cổ điển sở hữu vẻ đẹp sang trọng và quý phái, mang đến không gian xa hoa mà vẫn giữ được nét thanh lịch. Những đường nét kiến trúc tinh tế kết hợp hài hòa giữa yếu tố cổ điển và hiện đại, tạo nên một tổng thể ấn tượng và cuốn hút. Sự chú trọng vào chi tiết trang trí, cùng với các vật liệu cao cấp, khiến cho những căn biệt thự này trở thành biểu tượng của sự tinh tế và đẳng cấp trong cuộc sống.

Những mẫu biệt thự 3 tầng luôn thu hút sự chú ý nhờ vào thiết kế tinh xảo và cầu kỳ. Các chi tiết hoa văn và phào chỉ ánh kim được kết hợp một cách khéo léo, tạo nên vẻ lộng lẫy và sang trọng cho không gian sống. Những điểm nhấn này không chỉ làm tăng tính thẩm mỹ mà còn mang lại cảm giác đẳng cấp, khiến ngôi nhà trở nên nổi bật và ấn tượng hơn. Với sự chăm chút trong từng chi tiết, những mẫu biệt thự này tạo ra một không gian sống thực sự choáng ngợp, phù hợp với những gia chủ yêu thích sự xa hoa và khác biệt.

Thiết kế biệt thự hình vuông 3 tầng tạo ra sự đối xứng và hài hòa trong tổng thể kiến trúc. Đội ngũ kiến trúc sư của chúng tôi đã khéo léo sắp xếp các không gian chức năng để đáp ứng tối đa nhu cầu của gia chủ.
Không chỉ tối ưu hóa công năng sử dụng, mẫu thiết kế này còn mang lại vẻ đẹp thẩm mỹ cho ngôi nhà đảm bảo sự tiện nghi và sự thoải mái cho mọi thành viên trong gia đình. Với hệ thống cửa sổ, cửa ra vào đều là nhôm xingfa. Vách nhựa lan gỗ trang trí trên ban công vừa tạo sự riêng tư lại là điểm nhấn trang trí nổi bật cho mặt tiền căn nhà hiện đại hơn.

Biệt thự chữ L là giải pháp cho những khu đất không quá vuông vắn, tạo ra không gian mở và tối ưu diện tích.
Sự kết hợp hài hòa giữa các khối hình và sự sáng tạo trong việc sử dụng vật liệu mang đến cho biệt thự một hình ảnh sắc nét và đầy ấn tượng. Điểm nhấn không thể thiếu là những chi tiết nhỏ, như đường gờ chỉ chạy dọc quanh nhà, tạo ra nét độc đáo và làm nổi bật vẻ đẹp của ngôi biệt thự. Hệ lan can cổ điển cùng với cổng tường rào sơn vàng ánh kim xa hoa khiến công trình thu hút mọi ánh nhìn.
Thiết kế biệt thự vườn 3 tầng thực sự là tổ ấm hoàn hảo cho những ai yêu thích không gian sống đẳng cấp và gần gũi với tự nhiên. Kiến trúc biệt thự vườn không chỉ mang lại vẻ đẹp sang trọng, hiện đại mà còn tạo ra một môi trường sống thoáng đãng, trong lành, gần gũi với thiên nhiên.

Các khu vườn xanh mát bao quanh, hồ cá nước chảy róc rách đêm ngày... những khoảng không ngoài trời rộng rãi phù hợp cho các bữa tiệc BBQ cuối tuần... Căn nhà lúc này chắc chắn sẽ trở thành là nơi chữa lành lý tưởng để thư giãn, tận hưởng cuộc sống trọn vẹn sau những bộn bề lo toan.

Biệt thự phố 3 tầng mang đến sự tiện nghi. Hình dáng bên ngoài độc đáo mới lạ và nổi bật từ xa. Bạn có thể kết hợp làm văn phòng kinh doanh và không gian sống hoàn hảo cho các gia đình chỉ trong 1 ngôi nhà. Điều đó giúp tiết kiệm chi phí thuê mặt bằng, thời gian đi lại mỗi ngày của bạn. Ngoài ra nếu muốn bạn cũng có thể cho thuê tầng 1 và tận dụng các tầng còn lại cho nhu cầu sinh hoạt hàng ngày. Sơn Hà sẽ đưa ra các mẫu thiết kế phù hợp nhất đáp ứng mong muốn của bạn.

Bản vẽ mái Thái thiết kế lệch tích hợp trên ngôi nhà theo phong cách tân cổ điển. Thiết kế mái Thái cùng những đường nét kiến trúc dứt khoát, mạnh mẽ, giảm bớt sự đơn điệu thô cứng cho các mảng khối bê tông. Đồng thời giúp tăng công năng thoát nước và tạo hiệu ứng thẩm mỹ cao cho ngôi nhà. Các chi tiết cửa và hàng rào đều được sơn vàng ánh kim, đây cũng là thiết kế nổi bật của phong cách tân cổ điển.

Biệt thự mái Nhật mang phong cách tối giản, phù hợp với những ai yêu thích sự thanh thoát và nhẹ nhàng.
Một trong những điểm nổi bật của biệt thự này chính là hệ mái nhật truyền thống. Mái nhật màu xanh ấm áp nổi bật trên nền sơn trắng sứ, mang đến sự thanh thoát và trang nhã cho toàn bộ công trình. Bên cạnh đó, cửa kính cường lực cao cấp là một yếu tố thiết yếu trong thiết kế hiện đại của ngôi nhà. Loại cửa này không chỉ góp phần tạo nên vẻ đẹp hiện đại và sáng sủa mà còn cho phép ánh sáng tự nhiên tràn ngập vào bên trong, mang lại cảm giác rộng rãi và thoáng đãng cho không gian sống.
Thiết kế biệt thự mái bằng đang trở thành xu hướng phổ biến, mang đến vẻ đẹp hiện đại và trẻ trung mà nhiều gia chủ yêu thích. Dù có kiểu dáng phẳng, nhưng kiến trúc này không hề thiếu sức hút hay sự độc đáo. Các kiến trúc sư khéo léo phối hợp màu sắc hài hòa cùng với vật liệu hiện đại, tạo nên điểm nhấn ấn tượng cho không gian tổng thể của công trình. Sự sáng tạo trong thiết kế giúp biệt thự mái bằng trở thành một lựa chọn lý tưởng cho những ai tìm kiếm một không gian sống tinh tế và phong cách.

Kiểu mái này không chỉ tối ưu hóa không gian sống mà còn có thể tận dụng để tạo ra những khu vườn trên cao, sân thượng rộng rãi phục vụ cho nhu cầu thư giãn. Ngoài ra, mái bằng cũng giúp ngôi nhà trở nên năng động và phù hợp với lối sống hiện đại, tiện nghi của thời đại mới.
Biệt thự có bể bơi luôn là biểu tượng của sự giàu sang, đẳng cấp. Nó tạo nên không gian sống lý tưởng cho những gia chủ yêu thích thể thao và hoạt động ngoài trời.

Đó là nơi cả gia đình có thể tận hưởng những giây phút nghỉ ngơi, trải nghiệm cuộc sống nghỉ dưỡng ngay tại nhà. Bên cạnh đó nó còn góp phần tăng giá trị thẩm mỹ cho tổng thể kiến trúc.
Hệ thống cấp thoát nước được các kiến trúc sư Sơn Hà thiết kế theo tiêu chuẩn Việt Nam TCVN 5576:1991. Tất cả các ngôi nhà và công trình có hệ thống cấp thoát nước (trạm bơm, các công trình xử nước, bể chứa nước, đài nước…) đều được theo dõi kĩ trong năm quản lí đầu tiên. Nếu phát hiện các chỗ nứt, sụt lún, các điểm biến dạng, đội ngũ thợ thi công của chúng tôi sẽ kịp thời tham gia sửa chữa.
Sơn Hà bảo hành công trình 12 tháng và BẢO TRÌ TRỌN ĐỜI. Vậy nên quý khách có thể hoàn toàn yên tâm về tất cả các vấn đề chống thấm hay hệ thống nước trong hồ bơi nếu phát sinh lỗi do phía chúng tôi.
Phong thủy trong thiết kế là một yếu tố vô cùng quan trọng. Đặc biệt khi thiết kế biệt thự, bởi nó không chỉ ảnh hưởng đến thẩm mỹ mà còn mang ý nghĩa sâu sắc về mặt tâm linh và tinh thần. Khi cân nhắc kỹ lưỡng về phong thủy, từ vị trí ngôi nhà, hướng cửa chính, đến cách bài trí không gian nội thất, gia chủ có thể thu hút năng lượng tích cực, mang lại sự hài hòa, bình an cho gia đình.

Thiết kế theo phong thủy không chỉ giúp tăng cường tài lộc, may mắn mà còn tạo nên sự thịnh vượng lâu dài cho gia chủ. Ngoài ra, việc đảm bảo yếu tố phong thủy cũng giúp tối ưu hóa không gian sống, tạo cảm giác dễ chịu, thoải mái cho mọi thành viên trong gia đình.
>>> Xem thêm: Phong thủy khi xây nhà và những điều kiêng kỵ cần biết
Việc lựa chọn đơn vị thiết kế và xây dựng uy tín sẽ đảm bảo cho công trình biệt thự đẹp 3 tầng của bạn được hoàn thiện một cách chất lượng và bền vững.

Ngoài ra tìm được một công ty chuyên xây nhà trọn gói chuyên nghiệp như Sơn Hà Group, bạn sẽ giảm bớt nỗi lo trong toàn bộ quá trình xây dựng, sửa chữa cải tạo nhà.
Quy hoạch tổng thể khu đất rất quan trọng trong quá trình xây dựng biệt thự 3 tầng. Bạn cần xem xét diện tích, hình dáng khu đất cùng với hướng nắng, gió và các công trình xung quanh. Một quy hoạch hợp lý giúp tối ưu hóa không gian sống, tạo cảnh quan hài hòa và tiện nghi cho gia đình.
Phong cách kiến trúc không chỉ phản ánh gu thẩm mỹ cá nhân mà còn ảnh hưởng lớn đến giá trị tổng thể của ngôi nhà. Khi lựa chọn, bạn nên xem xét sở thích riêng của mình cùng với phong cách kiến trúc phổ biến trong khu vực để đảm bảo sự hài hòa.
Nếu bạn yêu thích sự trẻ trung và năng động, phong cách hiện đại sẽ là lựa chọn lý tưởng. Ngược lại, nếu bạn ưa chuộng vẻ đẹp sang trọng và tinh tế, phong cách tân cổ điển hoặc cổ điển sẽ phù hợp hơn với những tiêu chí của bạn. Việc cân nhắc này sẽ giúp tạo nên một không gian sống vừa đẹp mắt, vừa có giá trị bền vững.

Việc lựa chọn đơn vị thiết kế uy tín sẽ mang đến những mẫu thiết kế độc đáo và khả thi cho biệt thự đẹp 3 tầng của bạn.

Khi lựa chọn, gia chủ cần lưu ý một số yếu tố quan trọng như kinh nghiệm thực tiễn của đơn vị đó, hồ sơ năng lực với các dự án thành công, đội ngũ kiến trúc sư, kỹ sư giàu kinh nghiệm và am hiểu xu hướng. Đặc biệt, khả năng tư vấn thiết kế phù hợp với yêu cầu riêng biệt của gia chủ, đồng thời kết hợp yếu tố phong thủy và môi trường xung quanh cũng là một điểm mạnh cần chú ý.
Chọn nhà thầu xây dựng uy tín là quyết định quan trọng không kém. Nhà thầu tốt sẽ đảm bảo tiến độ thi công, chất lượng công trình và chi phí phát sinh. Hãy tìm hiểu kinh nghiệm của nhà thầu, yêu cầu báo giá chi tiết và tham khảo ý kiến từ khách hàng trước đó để có quyết định đúng đắn.
Nếu tìm được một công ty chuyên xây nhà trọn gói chuyên nghiệp như Sơn Hà Group, bạn sẽ giảm bớt nỗi lo trong toàn bộ quá trình xây dựng, sửa chữa cải tạo nhà. Với 21 năm kinh nghiệm trong ngành kiến trúc, chúng tôi đã từng thực hiện hàng ngàn căn nhà 3 tầng biệt thự theo nhiều phong cách kiến trúc khác nhau, ở mọi tỉnh thành trên cả nước. Sơn Hà tự hào có đội ngũ thiết kế, giám sát, các đối tác cung cấp vật liệu chất lượng đảm bảo bạn sẽ thấy hài lòng về tổ ấm yêu thương sau khi hoàn thiện.
Tùy thuộc vào quy mô, diện tích và phong cách kiến trúc, chi phí xây dựng biệt thự 3 tầng có thể dao động. Sơn Hà Group cung cấp dịch vụ thiết kế và thi công trọn gói với chi phí hợp lý và cam kết chất lượng. Dưới đây là giá xây nhà trọn gói mới nhất mà gia chủ có thể tham khảo tại Sơn Hà Group.
| HẠNG MỤC | ĐƠN GIÁ (VND/m2) | GHI CHÚ |
| Chi phí xây dựng phần thô | 3.000.000 – 4.000.000 | Đây chỉ là mức giá trung bình. Tùy theo yêu cầu xây dựng của gia chủ và công trình thực tế, mức giá sẽ có sự biến động nhất định. |
| Chi phí hoàn thiện | 7.000.000 – 8.000.000 | Đây chỉ là mức giá trung bình. Tùy theo yêu cầu xây dựng của gia chủ và công trình thực tế, mức giá sẽ có sự biến động nhất định. |
| STT | LOẠI HÌNH CÔNG TRÌNH | GÓI THIẾT KẾ | THỜI GIAN | |||
|---|---|---|---|---|---|---|
| THIẾT KẾ KIẾN TRÚC | THIẾT KẾ NỘI THẤT | |||||
| 1 | Nhà ống | Nhà ống hiện đại | 150.000đ/m2 | 150.000đ/m2 | 6.000.000 đ/phòng | – Kiến trúc = 35 ngày
– Nội thất = 45 ngày |
| 2 | Nhà ống tân cổ điển | 150000đ/m2 – 170.000đ/m2 | 150.000đ/m2 – 170.000đ/m2 | 7.000.000 đ/phòng | ||
| 3 | Nhà ống cổ điển | |||||
| 4 | Biệt thự | Biệt thự hiện đại | 180.000đ/m2-200.000đ/m2 | 180.000đ/m2 – 200.000đ/m2 | 8.000.000đ – 10.000.000đ/phòng | – Kiến trúc = 60 ngày
– Nội thất = 70 ngày |
| 5 | Biệt thự tân cổ điển | 180.000đ/m2-200.000đ/m2 | 180.000đ/m2 – 200.000đ/m2 | 8.000.000đ – 10.000.000đ/phòng | ||
| 6 | Biệt thự kiểu Pháp | 200.000đ/m2-220.000đ/m2 | 200.000đ/m2 – 250.000đ/m2 | 8.000.000đ – 10.000.000đ/phòng | ||
| 7 | Biệt thự vườn | 200.000đ/m2-220.000đ/m2 | 200.000đ/m2-250.000đ/m2 | 8.000.000đ – 10.000.000đ/phòng | ||
| 8 | Biệt thự lâu đài | 250.000đ/m2-300.000đ/m2 | 250.000đ/m2 – 300.000đ/m2 | 10.000.000đ/phòng – 15.000.000đ/phòng | ||
| HẠNG MỤC | ĐƠN GIÁ (VND/m2) | GHI CHÚ |
| Thi công kiến trúc biệt thự | 5.500.000 – 7.000.000 | Đây chỉ là mức giá trung bình. Tùy theo yêu cầu xây dựng của gia chủ và công trình thực tế, mức giá sẽ có sự biến động nhất định. |
| Thi công nội thất biệt thự | 5.500.000 – 8.000.000 | Tùy thuộc vào thương hiệu và mức độ cao cấp, xa xỉ của vật liệu nội thất hoàn thiện mà mức giá này sẽ có những biến đổi nhất định. |
| Thi công trọn gói biệt thự | 10.000.000 – 15.000.000 | Đây chỉ là mức giá trung bình. Tùy theo yêu cầu xây dựng của gia chủ và công trình thực tế, mức giá sẽ có sự biến động nhất định. |
Trên đây là bảng giá dịch vụ xây nhà trọn gói của Sơn Hà Group theo các hạng mục cụ thể. Để được tư vấn chi tiết về thiết kế và giá xây nhà trọn gói, gia chủ hãy liên hệ với Sơn Hà Group qua hotline 0906.222.555 hoặc để lại thông tin cần tư vấn qua form sau.

Sơn Hà Group tự hào là đơn vị thiết kế và thi công các mẫu nhà biệt thự 3 tầng uy tín, chuyên nghiệp. Chúng tôi mang đến cho khách hàng những công trình đẳng cấp, độc đáo và đáp ứng đầy đủ yêu cầu của gia chủ.
Hãy liên hệ ngay với Sơn Hà Group để nhận báo giá chi tiết và tư vấn miễn phí về các mẫu biệt thự 3 tầng bạn nhé!
Ảnh khác
Bình luận