Trong hành trình tìm kiếm một không gian sống vừa đẳng cấp thẩm mỹ vừa hài hoà phong thuỷ, biệt thự 3 tầng tân cổ điển luôn là lựa chọn được giới tinh hoa ưu ái. Công trình MR THAI'S VILLA do Sơn Hà Group thiết kế tại Hưng Yên là minh chứng rõ nét cho sự kết hợp hoàn hảo giữa nghệ thuật kiến trúc tân cổ điển và triết lý phong thuỷ Á Đông, đặc biệt dành riêng cho gia chủ sinh năm 1986.
Không chỉ gây ấn tượng bởi ngoại thất 3D sang trọng, công trình còn chinh phục chủ đầu tư nhờ mặt bằng công năng khoa học, tối ưu sinh khí và tài lộc. Đây là mẫu biệt thự 3 tầng tân cổ điển được nghiên cứu kỹ lưỡng từ tỷ lệ kiến trúc, hướng nhà, hình khối đến từng chi tiết phào chỉ.
NỘI DUNG CHÍNH

Mặt tiền nhà 3 tầng tân cổ điển gây ấn tượng mạnh với bố cục đăng đối, hình khối vững chãi và các chi tiết mang tinh thần châu Âu cổ điển nhưng đã được tiết chế để phù hợp với khí hậu và gu thẩm mỹ Việt Nam.
Hệ cột Ionic và Corinthian được xử lý tinh xảo, chạy xuyên suốt các tầng, tạo cảm giác cao ráo, uy nghi. Các vòm cửa cong mềm mại không chỉ mang lại vẻ đẹp cổ điển mà còn có ý nghĩa phong thuỷ giúp dẫn khí tốt vào không gian bên trong.
Tông màu trắng kem chủ đạo đại diện cho hành Kim và Thổ - rất phù hợp với gia chủ tuổi Bính Dần 1986 mệnh Hỏa khi áp dụng nguyên lý tương sinh. Màu sắc này giúp công trình luôn sáng sủa, thanh lịch và bền đẹp theo thời gian.

Lan can sắt nghệ thuật, cửa gỗ tự nhiên kết hợp kính cường lực và hệ mái dốc lợp ngói cao cấp vừa nâng cao giá trị thẩm mỹ, vừa đảm bảo yếu tố phong thuỷ về sự che chở và tích tụ vượng khí.
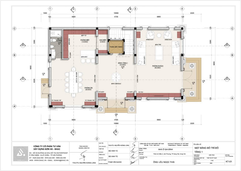
Tầng 1 được bố trí phòng khách lớn ngay sau sảnh chính - vị trí tụ khí quan trọng nhất của nhà tân cổ điển 3 tầng. Phòng khách liên thông sảnh tạo sự thông thoáng, đón ánh sáng tự nhiên và dòng khí tốt.

Khu bếp và phòng ăn đặt phía sau, tách biệt vừa đủ để đảm bảo riêng tư nhưng vẫn thuận tiện sinh hoạt. Bếp được xoay hướng tốt theo mệnh gia chủ, tránh các đại kỵ phong thuỷ như đối diện cửa chính hay nhà vệ sinh.
>>> Có thể bạn quan tâm: Phong thủy nhà bếp cho tuổi Bính Dần sung túc, đón tài rước lộc
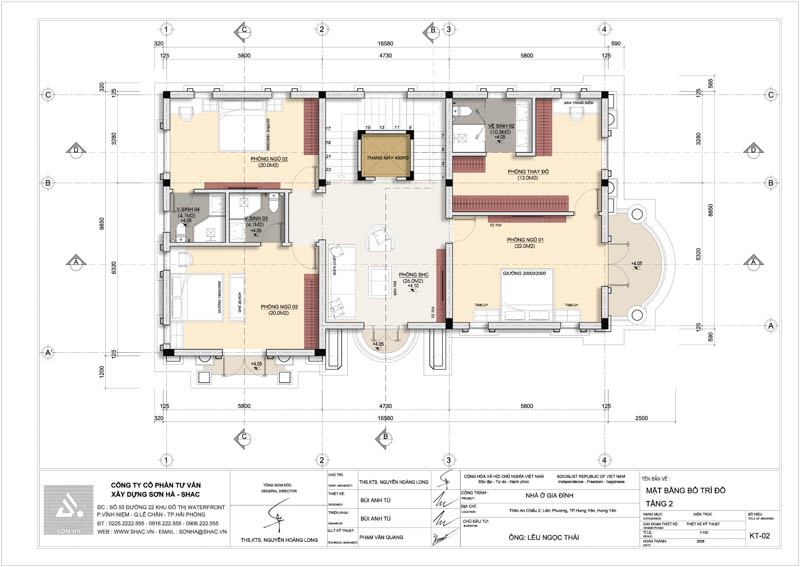
Tầng 2 là nơi bố trí các phòng ngủ chính, mỗi phòng đều có ban công hoặc cửa sổ lớn giúp lưu thông không khí. Phòng ngủ master được ưu tiên diện tích và hướng đẹp, phù hợp với tuổi 1986 nhằm tăng cường sức khoẻ và tài lộc cho gia chủ.

Các phòng ngủ phụ được thiết kế hài hoà, đảm bảo sự cân bằng âm dương - yếu tố then chốt trong phong thuỷ nhà ở.

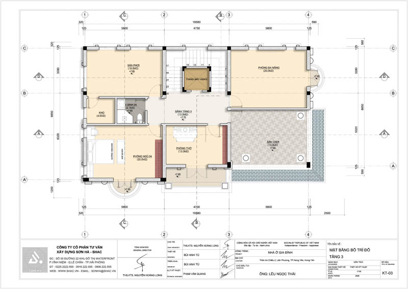
Tầng 3 bố trí phòng thờ trang nghiêm, đặt ở vị trí cao ráo, hướng tốt theo Bát Trạch, thể hiện sự tôn kính tổ tiên. Ngoài ra, sân chơi và khu vườn nhỏ trên cao giúp điều hoà khí hậu, tạo khoảng thở xanh cho toàn bộ biệt thự tân cổ điển 3 tầng.
>>> Xem ngay: 10+ Không gian phòng thờ đẹp cho gia chủ tuổi Dần

Để thiết kế mẫu biệt thự 3 tầng tân cổ điển hợp phong thuỷ tuổi Bính Dần 1986 trước hết chúng ta cần tìm hiểu những yếu tố sau:
Gia chủ sinh năm 1986 thuộc tuổi Bính Dần, mệnh Lư Trung Hỏa. Theo phong thuỷ, các hướng tốt bao gồm:
Trong mẫu nhà tân cổ điển 3 tầng này, Sơn Hà Group đã nghiên cứu kỹ hướng đất để bố trí cửa chính và trục giao thông phù hợp, giúp gia chủ đón tài lộc và hạn chế vận xấu.
Theo phong thuỷ và hạn Tam Tai - Kim Lâu - Hoang Ốc, các năm xây nhà đẹp cho tuổi Bính Dần có thể kể đến:
Chính vì thấu hiểu tầm quan trọng của yếu tố phong thuỷ trong việc an cư lập nghiệp, gia chủ đã tin tưởng lựa chọn Xây dựng Sơn Hà làm đơn vị thiết kế ngay từ cuối năm 2025, nhằm chuẩn bị kỹ lưỡng về hồ sơ và phương án kiến trúc, sẵn sàng khởi công vào đầu năm 2026 - thời điểm được xem là cát lợi, hanh thông và phù hợp với tuổi Bính Dần 1986.
Sơn Hà Group không chỉ là đơn vị thiết kế biệt thự uy tín top đầu Việt Nam mà còn là người đồng hành cùng gia chủ trong việc kiến tạo không gian sống mang dấu ấn cá nhân và chuẩn phong thuỷ. Mỗi mẫu biệt thự 3 tầng tân cổ điển đều được nghiên cứu riêng biệt, tránh sao chép, đảm bảo tính độc bản và giá trị lâu dài.

Từ phối cảnh 3D, bản vẽ 2D mặt bằng công năng đến giải pháp vật liệu và phong thuỷ, tất cả đều được đội ngũ kiến trúc sư giàu kinh nghiệm thực hiện với sự tận tâm và am hiểu sâu sắc.
MR THAI'S VILLA là hình mẫu lý tưởng cho những ai đang tìm kiếm biệt thự 3 tầng tân cổ điển vừa sang trọng, vừa hợp phong thuỷ tuổi 1986. Công trình không chỉ là nơi ở mà còn là tuyên ngôn về đẳng cấp sống, sự thịnh vượng và bền vững qua thời gian.

Nếu bạn đang ấp ủ giấc mơ sở hữu nhà biệt thự 3 tầng chuẩn phong thuỷ, hãy để Sơn Hà Group đồng hành và biến mong muốn đó thành hiện thực.
Ảnh khác
Bình luận