Mẫu thiết kế biệt thự tân cổ điển kết hợp kinh doanh 6 tầng tại Hải Phòng tối ưu công năng, chi phí, thi công nhanh và thu hồi vốn hiệu quả cùng Sơn Hà Group.
NỘI DUNG CHÍNH
Khi nhịp sống đô thị ngày càng năng động, xu hướng thiết kế biệt thự tân cổ điển kết hợp kinh doanh trở thành lựa chọn thông minh cho những chủ đầu tư muốn tối ưu hóa giá trị bất động sản.
Giữa lòng thành phố Hải Phòng, ngôi biệt thự 6 tầng 1 tum của Mr Kính do Sơn Hà Group thiết kế chính là minh chứng rõ ràng cho một tư duy kiến trúc mới, nơi vẻ đẹp sang trọng tân cổ điển được kết hợp tinh tế cùng giải pháp công năng và tài chính tối ưu.
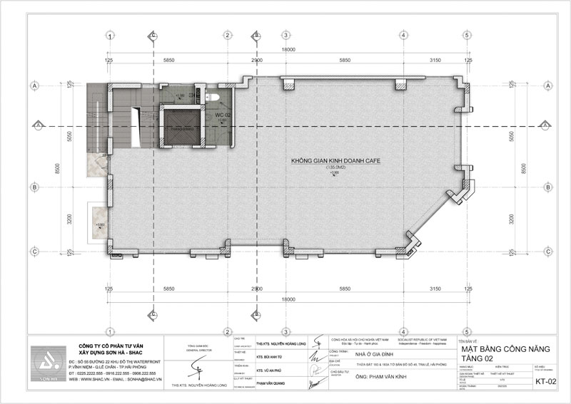
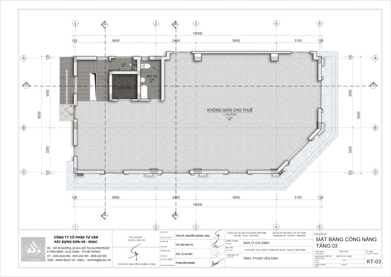
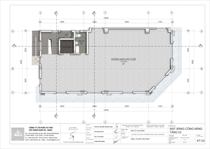
Ba tầng dưới của công trình được thiết kế dành cho hoạt động kinh doanh, với bố cục mở, linh hoạt và hiện đại.



Điểm đáng chú ý là các kết cấu chịu lực và tường bao được tính toán tối ưu, giảm thiểu diện tích cột, giúp mặt bằng mở rộng, dễ bố trí nội thất, tăng giá trị khai thác thương mại mà vẫn đảm bảo độ bền vững của công trình.
“Giải pháp của Sơn Hà Group không chỉ là thiết kế đẹp - mà còn là thiết kế mang lại lợi nhuận.”
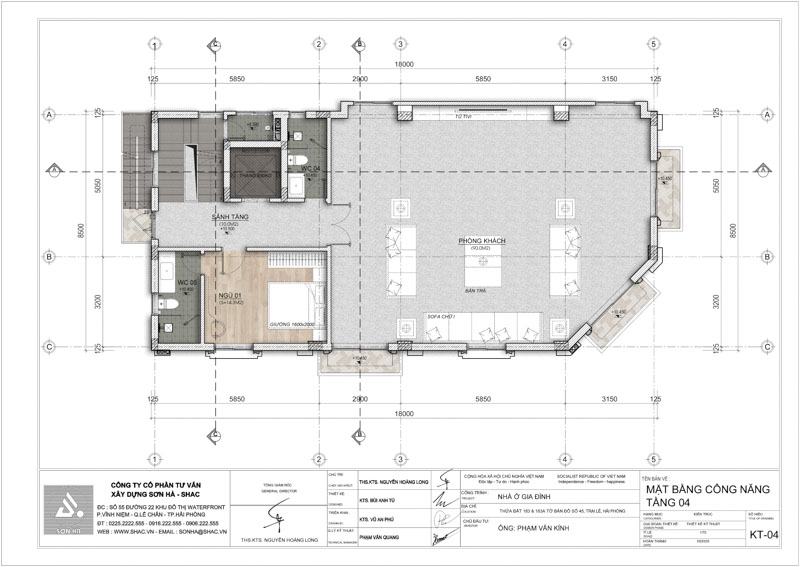
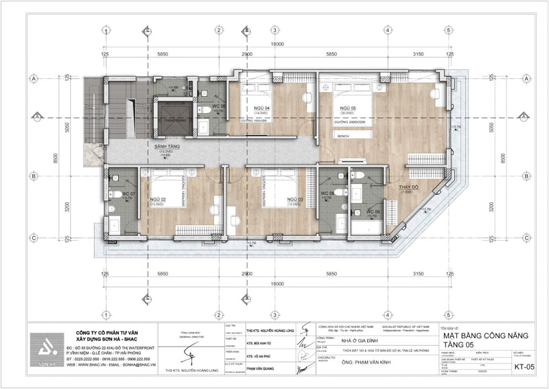
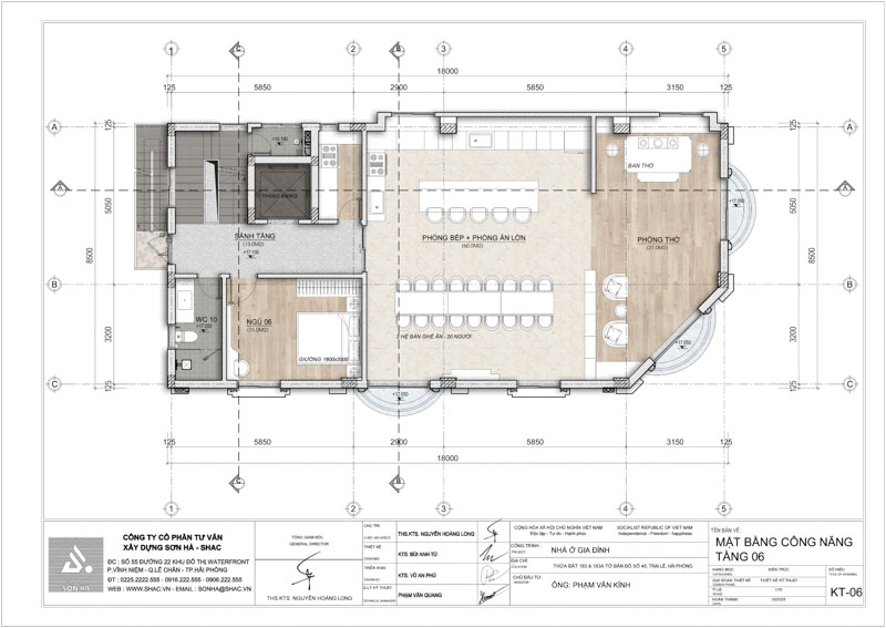
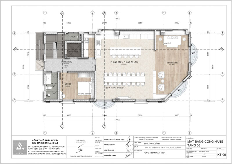
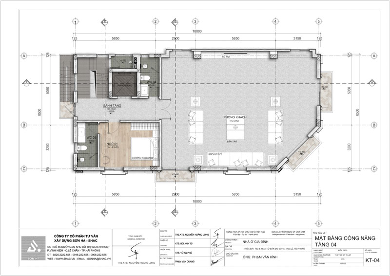
Từ tầng 4 trở lên, biệt thự chuyển đổi hoàn toàn sang mục đích sinh hoạt gia đình.
Cách phân chia tầng hợp lý giúp không gian sống tách biệt hoàn toàn với khu vực kinh doanh, tạo nên sự riêng tư, yên bình giữa lòng phố thị.





Nhờ cách tổ chức mặt bằng hợp lý, mọi không gian đều có ánh sáng, gió tự nhiên và tầm nhìn thoáng, hạn chế sử dụng điều hòa, tiết kiệm năng lượng và chi phí vận hành lâu dài.

Nếu như trước đây, biệt thự tân cổ điển thường được gắn liền với sự đồ sộ, chi tiết cầu kỳ, thì ở công trình này, các KTS Sơn Hà Group đã chắt lọc tinh hoa, giữ lại những nét đặc trưng nhất nhưng được thể hiện bằng ngôn ngữ tinh giản và hiện đại hơn.
Toàn bộ kiến trúc toát lên phong thái “tân cổ điển tối giản” vừa giữ tinh thần sang trọng, vừa đáp ứng thực tế thi công hiện đại: thi công nhanh - tiết kiệm chi phí - thẩm mỹ bền vững.
Sơn Hà Group không chỉ thiết kế đẹp mà còn mang đến giải pháp thi công đồng bộ nhằm giúp chủ đầu tư thu hồi vốn nhanh:
Các hệ dầm, sàn và vách chịu lực được tính toán kỹ để giảm khối lượng bê tông, sắt thép mà vẫn đảm bảo an toàn. Điều này giúp giảm 8-12% chi phí thi công phần thô.
Mọi khoảng diện tích đều có giá trị sử dụng thực tế. Không gian phụ được rút gọn, hành lang bố trí khoa học, giúp tăng diện tích kinh doanh và sinh hoạt lên đến 15% so với cách bố trí truyền thống.
Nhờ thiết kế mặt bằng logic, hạn chế thay đổi kết cấu phức tạp, công trình có thể hoàn thiện trước 1-2 tháng so với tiến độ thông thường, giúp chủ đầu tư sớm đưa vào khai thác kinh doanh.
Phong cách tân cổ điển tinh gọn loại bỏ các mảng phù điêu, hoa văn cầu kỳ thay vào đó là mảng khối trang trí nhẹ, phào chỉ âm tường. Vừa giữ vẻ sang trọng, vừa tiết kiệm đáng kể chi phí vật liệu và nhân công.
Mỗi nét vẽ của Sơn Hà Group không chỉ hướng đến cái đẹp mà còn hướng đến hiệu quả đầu tư và giá trị sử dụng lâu dài.

Ngoài ra, công trình còn được trang bị hệ thống thang thoát hiểm độc lập bố trí khéo léo ở mặt bên, vừa đảm bảo an toàn phòng cháy chữa cháy, vừa không phá vỡ tổng thể kiến trúc.
Kết cấu thép chịu lực được xử lý chống gỉ, sơn tĩnh điện màu đồng bộ với tông ngoại thất, tạo cảm giác hài hòa, tinh tế.
Nhờ giải pháp này, công trình đạt tiêu chuẩn an toàn cao, giúp chủ đầu tư yên tâm khai thác kinh doanh mà vẫn giữ trọn vẻ sang trọng đặc trưng của biệt thự tân cổ điển kết hợp kinh doanh.
Công trình là ví dụ tiêu biểu cho tư duy “thiết kế thực dụng sang trọng” một hướng đi hiện đại trong dòng biệt thự tân cổ điển.
Nhờ cách quy hoạch thông minh, mỗi tầng đều được phân vùng rõ ràng, dễ dàng vận hành độc lập:
Điều này không chỉ giúp tối đa hóa lợi nhuận đầu tư, mà còn tăng giá trị sử dụng và độ bền công trình theo thời gian.

Mẫu biệt thự tân cổ điển kết hợp kinh doanh tại Hải Phòng là minh chứng sống động cho tư duy thiết kế mới: đẹp - tối ưu - hiệu quả.
Một công trình mang dáng dấp cổ điển nhưng được kiến tạo trên nền tảng hiện đại, phù hợp với xu hướng đầu tư bất động sản thông minh hiện nay.
Sơn Hà Group đã chứng minh rằng, thiết kế biệt thự tân cổ điển không nhất thiết phải cầu kỳ để sang trọng
Sự sang trọng thật sự nằm ở tỷ lệ cân đối, công năng hợp lý, chi phí tối ưu và hiệu quả khai thác lâu dài.
Nếu bạn đang tìm kiếm một giải pháp thiết kế biệt thự kinh doanh vừa đẹp, vừa hiệu quả, vừa giúp thu hồi vốn nhanh, Sơn Hà Group chính là đối tác đáng tin cậy để biến tầm nhìn ấy thành hiện thực.
Mọi chi tiết xin liên hệ:
CÔNG TY CỔ PHẦN TƯ VẤN XÂY DỰNG SƠN HÀ (SHAC)
Trụ sở chính: Số 55, đường 22, KĐT Waterfront City, Lê Chân, Hải Phòng
Văn phòng đại diện
Ảnh khác
Bình luận