14 Mẫu Biệt Thự 3 Tầng Kiểu Pháp Ấn Tượng, Xu Hướng 2023
Hiện nay, các mẫu biệt thự 3 tầng kiểu Pháp đang rất được ưa chuộng trên thị trường đầu tư cũng như phục vụ nhu cầu sinh hoạt. Nắm bắt được nhu cầu đó, Sơn Hà Group đã liệt kê 14 mẫu biệt thự kiểu Pháp 3 tầng trong bài viết dưới đây. Mời quý khách hàng cùng theo dõi!
>>>> TÌM HIỂU THÊM: 100 Mẫu biệt thự 3 tầng đẹp, hiện đại, đẳng cấp 2023
1. Biệt thự 3 tầng kiểu Pháp mái thái
1.1. Mẫu biệt thự 3 tầng diện tích 160m2 tại Hải Phòng – SH BTP 0140
Thông tin chi tiết mẫu biệt thự:
- Chủ đầu tư: Ông Phạm Quang Trọng
- Loại hình: Thiết kế biệt thự tân cổ điển
- Diện tích: 160,41m2 (8,62m x 18,61m)
- Mặt tiền: 8m62
- Đơn vị thực hiện: Sơn Hà Group (#SHAC)
- Công năng:
- Tầng 1: Phòng khách lớn, phòng bếp ăn, 1 phòng ngủ, 1 phòng vệ sinh chung cho cả tầng.
- Tầng 2: Bố trí 1 phòng sinh hoạt chung, 1 phòng ngủ master, 2 phòng ngủ trẻ em và 1 vệ sinh chung cho cả tầng.
- Tầng 3: Phòng thờ, phòng thể thao, 1 phòng ngủ (hoặc có thể tận dụng làm kho để đồ), sân giặt phơi, sân chơi, 1 vệ sinh chung cho cả tầng.
Mẫu biệt thự 3 tầng kiểu Pháp tân cổ điển tại Hải Phòng được thiết kế theo phong cách linh hoạt. Các cột trụ được sử dụng khá nhiều, nó giúp kiến trúc bên ngoài ngôi biệt thự không bị trống trơn và bố cục không bị nặng nề. Nhìn từ không gian bên ngoài, mẫu biệt thự 3 tầng mang đến vẻ uy nghi và sang trọng trong nghệ thuật kiến trúc châu Âu.

Với khối óc sáng tạo tài hoa, các kiến trúc sư Sơn Hà Group đã tạo nên mẫu thiết kế nhà biệt thự đẹp hội tụ đầy đủ những nét đặc trưng của kiến trúc tân cổ điển. Hệ mái thái nổi bật trên nền sơn trắng vàng trang nhã. Tường, cột đắp, chỉ phào với những nét vẽ tối giản mang sức gợi lớn. Tone màu vàng kem được sử dụng là màu chủ đạo cho căn biệt thự. Vô cùng thông minh khi sử dụng hệ thống cửa màu đỏ sẫm trên nền tường trắng để tạo điểm nhấn cho cả căn biệt thự.

Biệt thự đẹp kiểu Pháp không chỉ gây ấn tượng bởi kiến trúc bên ngoài mà phần thiết kế bên trong cũng được bố trí rất khoa học. Các phòng được bố trí khá hợp lý để tối ưu không gian và khiến cho tổng thể căn phòng sẽ trông rộng rãi hơn. Cụ thể, quý khách hàng có thể xem chi tiết thông qua bản vẽ của ngôi nhà dưới đây:




1.2. Biệt thự phố 3 tầng mặt tiền 12m rộng 180m2 – SH BTP 0147
Thông tin chi tiết mẫu biệt thự:
- Chủ đầu tư: Ông Vũ Tất Thành
- Loại hình: Thiết kế biệt thự tân cổ điển
- Diện tích: 180m2 (12m x 15m)
- Mặt tiền:12m
- Đơn vị thực hiện: Sơn Hà Group (#SHAC)
- Công năng:
- Tầng 1: Phòng khách, phòng bếp, phòng ăn, phòng học, nhà vệ sinh chung.
- Tầng 2: Phòng sinh hoạt chung, 1 phòng ngủ master, 1 phòng ngủ thường, nhà vệ sinh chung.
- Tầng 3: Phòng thờ, 1 phòng ngủ master, kho, sân phơi, sân chơi.
Nét kiều diễm của kiến trúc cổ điển và vẻ đẹp đơn giản, khỏe khoắn của phong cách hiện đại được kết hợp hài hòa trong mẫu biệt thự 3 tầng kiểu Pháp này. Ngay từ cái nhìn đầu tiên ta đã có thể dễ dàng nhận ra một mẫu biệt thự đẹp được thiết kế, xây dựng theo phong cách tân cổ điển với những đặc điểm rất riêng biệt.

Thông thường, các mẫu biệt thự phong cách tân cổ điển thường được phối màu nhẹ nhàng như màu vàng, trắng kem, xám, màu be. Đó là những gam màu khá tự nhiên nhưng lại vô cùng đẳng cấp. Trong thiết kế của biệt thự tân cổ điển đẹp 3 tầng SH BTP 0147, chúng ta bắt gặp ở đó là sự kết hợp hoàn mĩ giữa những đường nét mềm mại và màu trắng kem thanh thoát, trang nhã. Cụ thể, mặt tiền ngôi nhà được trang trí bởi nhiều chi đối xứng một cách có chủ ý. Tập trung vào những nét vẽ mềm mại nhưng không quên bố trí hài hòa, các kiến trúc sư Sơn Hà đã thành công trong việc thu hút ánh nhìn của mọi người đối với căn biệt thự.

Một thiết kế biệt thự hoàn hảo không chỉ cần vẻ đẹp kiến trúc bên ngoài mà quan trọng hơn cả vẫn là tiện ích sử dụng bên trong. Từng không gian trong ngôi biệt thự 3 tầng đều được tính toán kỹ lưỡng sao cho hợp lý nhất, cũng như vận dụng các yếu tố phong thủy, địa khí. Cụ thể, trên diện tích sàn 180m2 (12m x 15m) công năng ngôi biệt thự 3 tầng kiểu Pháp tân cổ điển của gia đình anh Thành được bố trí như sau:



1.3. Mẫu biệt thự kiểu Pháp 3 tầng diện tích 100m2 – SH BTP 0075
Thông tin chi tiết mẫu biệt thự:
- Chủ đầu tư: Ông Phạm Đức Hoan
- Loại hình: Thiết kế biệt thự tân cổ điển
- Diện tích: 104m2 (13m x 8m)
- Mặt tiền:13m
- Đơn vị thực hiện: Sơn Hà Group (#SHAC)
- Công năng: Gara ô tô; phòng khách; phòng bếp ăn; phòng xông hơi; 5 phòng ngủ; các phòng vệ sinh
Về cơ bản, nguyên liệu tạo nên mẫu biệt thự phố 2 mặt tiền sang trọng này rất đơn giản. Tuy nhiên, sự tinh tế và khoáng đạt luôn hiện hữu trong kiến trúc đẹp mắt của ngôi biệt thự 3 tầng phong cách Pháp này. Hệ thống cửa được phân bổ vô cùng hợp lý khiến cho không gian trở nên thoáng mát hơn bao giờ hết. Các chủ đầu tư đã thật sự bị thuyết phục bởi mẫu biệt thự đẹp và ấn tượng này.

Phần lớn, ngôi biệt thự 3 tầng diện tích 100m2 mã số SH BTP 0075 được thiết kế bởi những nguyên liệu kiến trúc cổ điển. Tuy nhiên, không gian của ngôi biệt thự cũng được đan xen bởi các chi tiết hiện đại mạch lạc. Điểm nhấn ấn tượng trong mẫu thiết kế biệt thự kiểu Pháp này là việc sử dụng hệ mái chéo đẹp mắt với mật độ phân bổ hợp lý. Sự cách tân độc đáo đã mang đến cho mẫu thiết kế biệt thự 3 tầng kiểu Pháp này diện mạo mới lạ và khang trang. Sự kết hợp một cách hoàn hảo giữa gam màu trắng tinh khôi của tường và sắc đỏ rực rỡ của mái chéo đẳng cấp đã mang đến cho ngôi biệt thự vẻ đẹp đầy cuốn hút.

Căn biệt thự 3 tầng chứa đựng các tiện nghi vô cùng hấp dẫn và thuận tiện cho gia chủ khi sinh hoạt. Gỗ là chất liệu được sử dụng xuyên suốt của nội thất căn biệt thự. Đây là một trong những vật liệu không chỉ đẹp, dễ chế tạo mà còn vô cùng bền bỉ. Hầu hết, các phòng đều được bố trí phục vụ mục đích tối ưu không gian và khiến căn phòng trở nên rộng rãi. Đây là một trong những yếu tố góp phần tạo nên sự thành công cho căn biệt thự.


>>>> XEM THÊM: 50 Mẫu biệt thự 3 tầng tân cổ điển đẹp, sang trọng, đẳng cấp
2. Mẫu biệt thự 3 tầng kiểu Pháp mái ngói
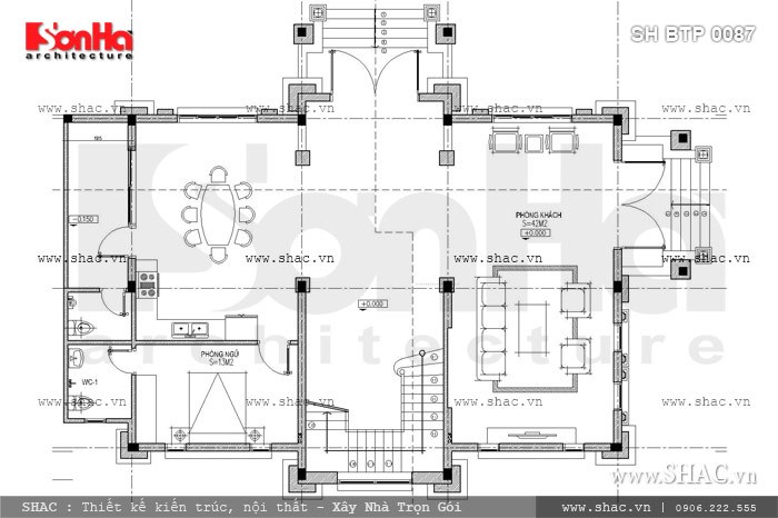
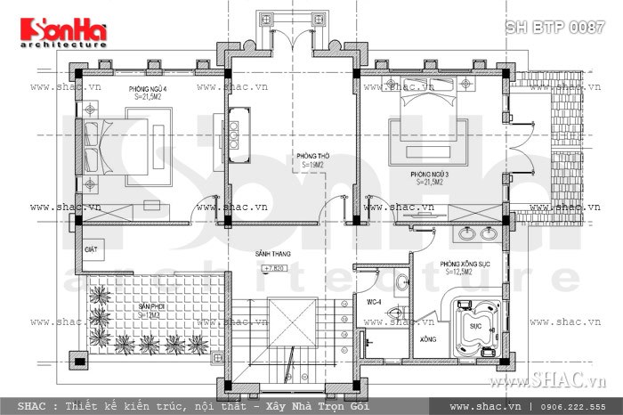
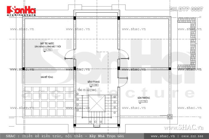
2.1. Mẫu biệt thự kiến trúc Pháp 3 tầng mái ngói – SH BTP 0087
Thông tin chi tiết mẫu biệt thự:
- Chủ đầu tư: Ông Phạm Văn Thắm
- Loại hình: Thiết kế Biệt thự pháp
- Diện tích: 152m2 (16m x 9,5m)
- Mặt tiền:16m
- Đơn vị thực hiện: Sơn Hà Group (#SHAC)
- Công năng: Gara để xe; phòng khách; phòng bếp ăn; các phòng vệ sinh; 4 phòng ngủ
Điều ấn tượng nhất trong thiết kế của căn biệt thự 3 tầng kiểu Pháp này chính là việc giản lược các yếu tố rườm rà. Điều này nhằm tạo sự thanh thoát và tập trung cao vào cách bố trí công năng sao cho hợp lý, khoa học và ưu tiên tính tiện dụng trong sinh hoạt của gia chủ. Ngoài ra, hệ thông chỉ phào và hoa văn được các kiến trúc sư khéo léo lồng ghép, tô điểm khiến cho tổng thể căn biệt thự trở nên vô cùng uy nghiêm và tráng lệ.

Thật vậy, căn biệt thự có phong cách kiến trúc cổ điển sang trọng và cách phối màu vô cùng đẳng cấp, hợp thời. Đặc biệt là sự nổi bật của hệ mái chéo giật cấp tinh tế đã giúp SH BTP 0084 ngay lập tức chinh phục mọi ánh nhìn từ lúc mới được trình làng. Hệ thông phào chỉ được các kiến trúc sư khéo léo lồng ghép đã khiến cho tổng thể căn biệt thự trở nên vô cùng uy nghiêm và tráng lệ.

Từng không gian trong ngôi biệt thự 3 tầng đều được tính toán kỹ lưỡng sao cho hợp lý nhất, cũng như vận dụng các yếu tố phong thủy, địa khí. Cả căn biệt thự gồm 3 tầng cùng với những công năng vô cùng tiện nghi. Cách bố trí cũng rất hợp lý khi không gian phòng khách nằm ngay chính điện của tầng 1.
- Tầng 1: Không gian rộng nhất phía trước chúng tôi dành để bố trí phòng khách. Tiếp nổi thang dẫn lên tầng 2, chúng tôi chia đôi không gian để bố trí một phòng ngủ có diện tích 13m2 (vệ sinh khép kín) cùng phòng bếp ăn và vệ sinh của cả tầng.
- Tầng 2: Diện tích của tầng này chúng tôi bố trí 1 phòng sinh hoạt chung. Cùng với đó, chúng tôi bố trí hai phòng ngủ diện tích rộng hơn 20m2 có phòng thay đồ nhỏ xinh cho các phòng ngủ này.
- Tầng 3: Tại tầng này chúng tôi bố trí hai phòng ngủ nữa; 1 phòng thờ; 1 phòng xông sục. Diện tích còn lại chúng tôi dung để bố trí sân phơi và khu nghỉ ngơi cho các thành viên trong gia đình.
Dưới đây là bản vẽ thể hiện phương án bố trí công năng chúng tôi đã lên cho công trình biệt thự sân vườn. SHAC mời bạn đọc tham khảo thêm:




2.2. Mẫu thiết kế biệt thự Pháp 3 tầng mái ngói đỏ tại Hải Phòng – SH BTP 0105
Thông tin chi tiết mẫu biệt thự:
- Chủ đầu tư: Ông Bùi Văn Thiêm
- Loại hình: Thiết kế biệt thự kiến trúc Pháp
- Diện tích: 88.2m2 (8.4mx10.5m)
- Mặt tiền: 8m4
- Đơn vị thực hiện: Sơn Hà Group (#SHAC)
- Công năng: Gara để xe, phòng khách, phòng bếp ăn, 4 phòng ngủ, phòng thờ, sân phơi, sân chơi
Tổng thể kiến trúc ngôi biệt thự 3 tầng kiểu Pháp vô cùng khang trang với kiểu dáng đẹp, sang trọng theo kiến trúc Châu Âu lịch lãm. Hệ thống phào chỉ được đắp vẽ tinh tế cùng hệ cột trụ được bố trí cân xứng, vững chãi. Hơn hết, nó giúp giữ được nét đẹp truyền thống của ngôi nhà Việt xưa thông qua hệ mái ngói ấn tượng

Để làm nên sự ấn tượng và chinh phục mọi ánh nhìn, KTS Sơn Hà đã khéo léo lựa chọn các nguyên liệu mang phong cách kiến trúc cổ điển sang trọng. Chúng được kết hợp một cách nhuần nhuyễn nhằm tạo nên bố cục mặt tiền mạch lạc. Ngoài ra, phong cách phối màu hợp thời, đặc biệt là sự nổi bật của hệ mái ngói đỏ đồng nhất với màu sắc của cửa sổ đã mang tới diện mạo khang trang cho công trình.

Cùng với kiến trúc ngoại thất sang trọng, ngôi biệt thự 3 tầng kiểu Pháp mái ngói đỏ tại Hải Phòng còn thuyết phục chủ đầu tư bởi phương án thiết kế bản vẽ mặt bằng công năng khoa học phù hợp với diện tích sàn 88m2 mỗi tầng và đảm bảo nhu cầu sinh hoạt tiện nghi nhất cho gia đình chủ đầu tư Bùi Thanh Thiêm. Mời Quý vị bạn đọc cùng theo dõi những hình ảnh mặt bằng công năng biệt thự 3 tầng cổ điển SH BTP 0105 dưới đây:




>>>> GỢI Ý: 5 Mẫu biệt thự 3 tầng chữ l đẹp, hiện đại được ưa chuộng
2.3. Thiết kế biệt thự Pháp 2 mặt tiền mái ngói đỏ tại Quảng Ninh – SH BTP 0111
Thông tin chi tiết mẫu biệt thự:
- Chủ đầu tư: Ông Đoàn Đắc Thọ
- Loại hình: Thiết kế biệt thự kiến trúc Pháp
- Diện tích: 234m2 (9mx26m)
- Mặt tiền: 9m
- Đơn vị thực hiện: Sơn Hà Group (#SHAC)
- Công năng: Phòng khách, phòng bếp, phòng ăn, phòng sinh hoạt chung, phòng ngủ chính, phòng ngủ ông bà, phòng ngủ con trai, phòng thay đồ, phòng làm việc, phòng ngủ khách, phòng ngủ con trai, phòng thờ, sân phơi, giặt, kho, sân thượng.
Phong cách cổ điển Pháp đã được KTS Sơn Hà lựa chọn khéo léo kết hợp với những yếu tố cách tân, mới mẻ để tạo nên diện mạo bắt mắt cho ngoại thất biệt thự nhà vườn. Gam trắng chủ đạo được phối nhẹ nhàng với màu vàng kem hoàng gia. Đặc biệt, gam màu nâu của hệ thống cửa sổ gỗ được bố trí trải đều khắp mặt tiền các tầng là một điểm nhấn đặc sắc.

Mái ngói đỏ nổi bật cũng là một chi tiết ấn tượng đáng được nhắc đến trong kiến trúc biệt thự mái thái 3 tầng này. Với các tạo hình bố cục cân đối từ đường nét đến kiến trúc, mặt tiền của biệt thự đã tạo nên góc bánh chưng khá vuông vắn. Cuối cùng, hệ cột trụ và công sơn được thiết kế đơn giản, chúng không được đắp vẽ hoa văn phào chỉ những vẫn tạo nên được nét đẹp đẳng cấp.

Biệt thự 3 tầng kiểu Pháp 2 mặt tiền sang trọng với 4 phòng ngủ rộng, thoáng đãng và đầy đủ tiện nghi. Bên cạnh đó, các phòng chức năng của ngôi biệt thự cũng được bố trí hợp lý tại 3 tầng trên diện tích sàn mỗi tầng là 234m2. Khu đất rộng, quy mô bề thế, giải pháp bố trí công năng mẫu thiết kế biệt thự Pháp tại Quảng Ninh do KTS Sơn Hà thực hiện đã hoàn toàn thuyết phục gia chủ.





3. Mẫu biệt thự 3 nhà vườn kiểu Pháp
3.1. Mẫu biệt thự nhà vườn đẹp kiểu Pháp 3 tầng tại Hưng Yên – SH BTP 0122
Thông tin chi tiết mẫu biệt thự:
- Chủ đầu tư: Ông Đỗ Xuân Đồng
- Loại hình: Biệt thự Pháp
- Diện tích: 315,71m2 (13,1m x 24,1m)
- Mặt tiền: 13m1
- Đơn vị thực hiện: Sơn Hà Group (#SHAC)
- Kinh phí: 4,2 tỷ
- Công năng: Sảnh, đại sảnh, phòng khách lớn, phòng ăn, 6 phòng ngủ, 5 phòng vệ sinh, 2 phòng thờ.
Với mẫu biệt thự 3 tầng kiểu Pháp này, sự cuốn hút không chỉ bởi ngoại thất mà còn bao gồm cả thế giới nội thất phong phú và vô cùng tinh tế của nó. Vẻ đẹp xa hoa, tráng lệ của thiết kế biệt thự kiểu Pháp được tạo nên một cách đầy khôn ngoan và khéo léo. Chúng ta đều hiểu rằng phào chỉ được xem là những vật liệu thần thánh khiến cho căn nhà trở nên đẹp và hoàn hảo hơn. Nó đã được sử dụng và khai thác lợi thế một cách tốt nhất trong thiết kế biệt thự mái thái 3 tầng đẹp tại Hưng Yên của gia đình anh Đồng.

Ngôi biệt thự 3 tầng mái thái kiểu Pháp đẹp được lựa chọn gam màu chủ đạo trắng và vàng. Đây là gam màu mà gia đình anh Đồng rất yêu thích. Hai màu này được sử dụng hài hòa và tinh tế với nhau trong từng chi tiết kiến trúc. Thêm vào đó, vật liệu phào chỉ được sử dụng trong các thiết kế của biệt thự này là vật liệu xi măng và thạch cao chống nước.

Biệt thự 3 tầng kiểu Pháp không chỉ gây ấn tượng bởi kiến trúc bên ngoài mà phần thiết kế bên trong cũng được bố trí rất khoa học. Các phòng được bố trí khá hợp lý để tối ưu không gian và làm tổng thể căn phòng sẽ trông rộng rãi và thông thoáng hơn. Cụ thể, quý khách hàng có thể xem chi tiết thông qua bản vẽ của ngôi nhà dưới đây:





>>>> THAM KHẢO NGAY: 8 Mẫu biệt thự 3 tầng mái dốc hiện đại, được săn đón nhất
3.2. Biệt thự 3 tầng kiến trúc Pháp đẹp – BTP 0012
Thông tin chi tiết mẫu biệt thự:
- Chủ đầu tư: Ông Nguyễn Quang Trung
- Loại hình: Thiết kế biệt thự Pháp
- Diện tích: 285m2 (15mx19m)
- Mặt tiền: 15m
- Đơn vị thực hiện: Sơn Hà Group (#SHAC)
- Công năng: Sân vườn, phòng khách, phòng giải trí, phòng bếp-ăn, sảnh lớn và cầu thang, 7 phòng ngủ, phòng xem phim, khu tập thể thao, khu cafe mini, phòng thờ.
Hiện diện giữa đất trời với vẻ ngoài kiêu hãnh và lộng lẫy, ngôi biệt thự 3 tầng đẹp theo cách riêng mà khó có công trình nào có được. Hệ thống phào chỉ nhẹ nhàng điểm trên ban công, vòm cửa và các trụ to nhỏ tạo nên điểm nhấn đắt giá cho toàn bộ ngoại thất. Mái ngói được cắt gọt chuẩn xác theo kiến trúc Pháp cổ điển, biến công trình thành một “thực thể” luôn luôn biến đổi và luân chuyển không ngừng trong không gian sống.

Nếu như ví cửa sổ là đôi mắt của tâm hồn thì khoảng sân trước biệt thự với tiểu cảnh xinh đẹp chính là đôi mắt của cả căn biệt thự. Nó giúp thu hút sự chú ý, cho bạn cảm giác lạc vào thiên đường hiếm thấy. Với cách bài trí và thiết kế tiểu cảnh độc đáo càng tôn lên giá trị của công trình biệt thự 3 tầng kiểu Pháp giữa muôn sắc màu của thiên nhiên.

Không gian phòng khách được ưu ái bởi đây là điểm nhấn quan trọng thể hiện địa vị và phong thái của chủ sở hữu biệt thự. Sử dụng nội thất mang phong cách lịch lãm phảng phất chút cổ điển là điểm quyến rũ nhẹ nhàng mà phòng khách tạo ra không chỉ dành riêng cho bản thân nó mà còn cho cả ngôi nhà. Cả căn biệt thự với những công năng vô cùng tiện nghi và bố trí hợp lý.



4. Mẫu biệt thự 3 tầng kiểu Pháp cổ điển
4.1. Biệt thự 4 tầng kiến trúc Pháp cổ điển điện tích 140m2 – SH BTP 0051
Thông tin chi tiết mẫu biệt thự:
- Chủ đầu tư: Ông Kiều Cao Trung
- Loại hình: Biệt thự kiểu Pháp
- Diện tích: 143m2 (11m x 13m)
- Mặt tiền: 11m
- Đơn vị thực hiện: Sơn Hà Group (#SHAC)
- Công năng: Gara ô tô, phòng khách lớn, phòng bếp-ăn, phòng ngủ đẳng cấp (4 phòng) với vệ sinh riêng, phòng sinh hoạt chung, phòng karaoke, phòng thờ
Ngôi biệt thự 3 tầng kiểu Pháp này tập trung điểm nhấn vào tone màu. Cụ thể, màu trắng thanh nhã được bao phủ trọn ngoại thất công trình tạo nên phông nền bắt mắt. Màu xanh xám được dùng cho mái làm nổi bật lên cả căn biệt thự giữa dòng thành phố. Bên cạnh đó, thiết kế nhà theo phong cách kiến trúc cổ điển Pháp nên rất chú ý đến việc đảm bảo thiết kế các phòng phải cao và thoáng.

Tường của ngôi biệt thự 3 tầng cổ điển màu trắng này được xây bằng gạch chịu lực. Kết hợp vào đó, căn biệt thự sử dụng kính cho các cửa của ngôi nhà nhằm tạo sự thoáng mát vào mùa hè và ấm áp vào mùa đông. Cũng tại bản thiết kế biệt thự cổ điển SH BTP 0051, cột và tường kết hợp và thiết kế theo gam màu trắng giúp không gian nội và ngoại thất của công trình càng thêm tinh tế và trang nhã.

Để tạo “sức nặng” cho mặt tiền ấn tượng, các kiến trúc sư đã lựa chọn cách bo tròn các chi tiết chạm khắc tinh xảo một cách độc đáo và sáng tạo. Với những chi tiết trang trí mang đặc trưng của phong cách châu Âu, các kiến trúc sư SHAC đã rất thành công trong việc làm toát lên nét thanh thoát, nhẹ nhàng của công trình.

>>>> THAM KHẢO NGAY: 8 Mẫu biệt thự 3 tầng mái ngói đẹp không thể rời mắt
4.2. Biệt thự 3 tầng kiến trúc Pháp độc đáo – SH BTP 0050
Thông tin chi tiết mẫu biệt thự:
- Chủ đầu tư: Ông Phạm Hữu Sỹ
- Loại hình: Biệt thự Pháp
- Diện tích: 221m2 (13m x 17m)
- Mặt tiền: 13m
- Đơn vị thực hiện: Sơn Hà Group (#SHAC)
- Công năng: Gara để xe; phòng khách lớn; phòng bếp-ăn; phòng ngủ; phòng ngủ; phòng thờ; bể bơi ngoài trời; sân vườn tiểu cảnh
Được thiết kế theo phong cách kiến trúc cổ điển với hai mặt tiền thoáng liền kề, công trình được mở tối đa mặt thoáng với những tạo hình đa dạng. Cùng với đó, bể bơi hoành tráng với vật dụng cao cấp được bố trí ngay mặt tiền lớn khiến không gian biệt thự trở nên rộng rãi giống như một khu nghĩ dưỡng. Nhìn tổng thể căn biệt thự 3 tầng kiểu Pháp này vô cùng uy nghiêm và sang trọng.

Đi sâu vào phương án thiết kế mặt tiền – chi tiết kiến trúc “đắt” và “sáng” nhất trong bản vẽ thiết kế biệt thự 3 tầng kiểu Pháp. Khối lượng vòng cung lớn làm điểm dẫn giữa 2 mặt tiền đã nhận được những đánh giá cao từ chủ đầu tư. Cụ thể, các kiến trúc sư SHAC đã đặt trong những phòng sinh hoạt các tạo hình mềm mại, duyên dáng. Cách xử lý này không những hiệu quả trong việc mở rộng không gian mà còn mang đến sự mới lạ cho công trình khi phát huy sáng tạo những nguyên tắc thiết kế truyền thống.

Liền kề với không gian này là bếp – ăn ngăn nắp, sang trọng với nội thất gỗ. Cùng với đó, 4 phòng ngủ được bố trí cho ngôi biệt thự. Ngoài ra là các không gian chức năng phục vụ nhu cầu thư giãn, giải trí cho các thành viên trong gia đình như: bể bơi, phòng sinh hoạt, sân vườn tiểu cảnh rực rỡ sắc màu,… Dĩ nhiên, kiến trúc của mỗi phòng đều được thiết kế theo phong cách cổ điển của Pháp tạo cảm giác ấm cúng, gần gũi.



4.3. Mẫu thiết kế biệt thự kiến trúc Pháp cổ điển – SH BTP 0047
Thông tin chi tiết mẫu biệt thự:
- Chủ đầu tư: Ông Bùi Văn Long
- Loại hình: Biệt thự kiến trúc Pháp
- Diện tích: 144m2 (8m x 18m)
- Mặt tiền: 8m
- Đơn vị thực hiện: Sơn Hà Group (#SHAC)
- Công năng: Gara ô tô tại tầng hầm, phòng khách, phòng bếp – ăn lớn, phòng ngủ (4 phòng) với vệ sinh được đầu tư hoành tráng, phòng sinh hoạt chung, phòng tập gym tại nhà, phòng thờ
Khu đất thuộc sở hữu của chủ đầu tư Bùi Văn Long có lợi thế về chiều sâu (18m). Bên cạnh đóm mặt tiền 8m cũng khá thuận lợi cho việc tạo hình của các kiến trúc sư. Do vậy, chúng tôi đã lựa chọn khai thác không gian khu đất theo chiều dọc và bố trí công năng liên hoàn để biệt thự 3 tầng kiểu Pháp SH BTP 0047 trở thành không gian sống đẳng cấp và tiện nghi.

Kiến trúc công trình được phân thành 3 chức năng với màu sắc điển hình. Vật liệu đá vàng sắc dùng để ốp không gian tầng hầm. Tiếp đó là vàng hoàng gia dùng để phủ kín 3 tầng của ngôi biệt thự kiểu Pháp mặt tiền 8m. Sau cùng là màu xanh đen đặc trưng của vật liệu đá dùng làm mái của SH BTP 0047. Sự linh hoạt trong phân chia không gian theo “tỉ lệ vàng” khiến căn biệt thự mang đầy đủ nét uy quyền, sang trọng của dòng kiến trúc Pháp.

Thật không thể phủ nhận rằng căn biệt thự đã thành công thu hút sự chú ý của các nhà đầu tư. Với phong cách thiết kế đậm chất Châu Âu, căn biệt thự trở nên vô cùng khang trang và uy nghiêm hơn bao giờ hết. Bên cạnh đó, bố cục của nó cũng được sắp xếp vô cùng hợp lý và khoa học. Cả ngôi biệt thự được chia làm 3 tầng với nhiều tiện ích khác nhau, trải đều từ tầng 1 cho đến tầng 3, mang đến sự thuận tiện cho gia chủ trong đời sống sinh hoạt:


5. Mẫu biệt thự Tân cổ điển Pháp
5.1. Mẫu biệt thự 3 tầng diện tích 70m2 – SH BTP 0082
Thông tin chi tiết mẫu biệt thự:
- Chủ đầu tư: Ông Nguyễn Văn Đắc
- Loại hình: Thiết kế biệt thự Pháp
- Diện tích: 70m2 (7m x 10m)
- Mặt tiền: 7m
- Đơn vị thực hiện: Sơn Hà Group (#SHAC)
- Công năng: Gara để xe; phòng khách; phòng sinh hoạt chung; phòng bếp ăn; các phòng ngủ với vệ sinh tiện nghi; phòng thờ
Vẫn là cách tạo hình thường thấy của biệt thự phong cách Pháp, ngôi biệt thự 2 mặt tiền này nổi bật với tone màu vàng truyền thống kết hợp với mái ngói đỏ tươi. Cùng với đó, những yếu tố cách tân được nhấn nhá khéo léo như ban công thanh nhã, các mảng khối ấn tượng đã làm nên sự cân đối hài hòa cho toàn căn biệt thự.

Mọi góc trong căn biệt thự đều khá ấn tượng và thu hút. Sự thanh nhã toát lên trong từng tiểu tiết thiết kế kiến trúc và nội thất của ngôi biệt thự mái thái. Bên cạnh đó, cách sử dụng và phối hợp màu sắc rất có chiều sâu. Nó không chỉ thu hút mọi ánh nhìn mà còn mang lại cảm giác uy nghiêm, vô cùng khang trang.

Một thiết kế biệt thự hoàn hảo không chỉ cần vẻ đẹp kiến trúc bên ngoài mà quan trọng hơn cả vẫn là tiện ích sử dụng bên trong. Từng không gian trong ngôi biệt thự 3 tầng kiểu Pháp đều được tính toán kỹ lưỡng sao cho hợp lý nhất, cũng như vận dụng các yếu tố phong thủy, địa khí. Quý khách hàng có thể tham khảo bản vẽ chi tiết của ngôi biệt thự dưới đây:



>>>> CLICK NGAY: 50 Mẫu biệt thự 3 tầng mái thái hiện đại theo xu hướng
5.2. Mẫu biệt thự Pháp 3 tầng mái ngói có thiết kế đẹp – SH BTP 0088
Thông tin chi tiết mẫu biệt thự:
- Chủ đầu tư: Ông Vũ Huy Đông
- Loại hình: Thiết kế biệt thự Pháp
- Diện tích: 156m2 (13m x 12m)
- Mặt tiền: 13m
- Đơn vị thực hiện: Sơn Hà Group (#SHAC)
- Công năng: Gara ô tô, phòng khách, phòng bếp, phòng ăn, 4 phòng ngủ, các phòng vệ sinh, phòng tập, phòng thờ
Căn biệt thự đặc biệt ấn tượng với hệ mái ngói đỏ kết hợp một cách ăn ý với gam màu trắng của tường. Tổng thể căn biệt thự đều mang đậm chất cổ điển của dòng kiến trúc Pháp. Bên cạnh đó, hệ thống chỉ phào và hoa văn đã được các kiến trúc sư khéo léo lồng vào khiến cho căn biệt thự trở nên vô cùng tráng lệ và sang trọng. Không chỉ nổi bật bởi phong cách thiết kế đặc trưng mà căn biệt thự còn chứa đựng nhiều công năng cực kỳ tiện lợi khác.

Với những nguyên liệu thường thấy của dòng kiến trúc cổ điển, tại mặt tiền biệt thự 3 tầng kiểu Pháp SH BTP 0088 đã được lựa chọn một cách có chọn lọc các chi tiết hoa văn phào chỉ không quá cầu kỳ mà vẫn thể hiện được sự sang trọng vốn có của nó. Hệ thống cửa sổ cũng được bố trí hợp lý tại các tầng để mang tới sự thoáng đãng và ánh sáng cho không gian biệt thự

Nói thêm về kiến trúc của công trình, không thể không thừa nhận sự thành công của SHAC trong việc kết hợp chi tiết và lựa chọn màu sắc có chiều sâu. Kết quả của nỗ lực này đó là sự xuất hiện biệt thự 3 tầng 2 mặt tiền SH BTP 0088 với mặt tiền khang trang, hoàn toàn thuyết phục các chủ đầu tư khó tính. Thật vậy, kiến trúc công trình màn đến cảm giác thanh nhã, nhẹ nhàng nhưng vẫn toát lên cốt cách sang trọng, đẳng cấp.



5.3. Biệt thự tân cổ điển 5 phòng ngủ tại Quảng Ninh rộng 130m2 – SH BTP 0154
Thông tin chi tiết mẫu biệt thự:
- Chủ đầu tư: Ông Lục Vĩnh Lâm
- Loại hình: Thiết kế biệt thự tân cổ điển
- Diện tích: 127,62m2 (9,72m x 13,13m)
- Mặt tiền: 9m72
- Đơn vị thực hiện: Sơn Hà Group (#SHAC)
- Công năng:
- Tầng 1: Phòng khách, phòng bếp ăn có mini bar, 1 phòng ngủ, vệ sinh chung cho cả tầng.
- Tầng 2: Bố trí 1 phòng ngủ master và 2 phòng ngủ có vệ sinh khép kín.
- Tầng 3: Phòng thờ, phòng sinh hoạt chung, 1 phòng ngủ, phòng giặt phơi, sân chơi.
Ngoại thất của ngôi biệt thự 3 tầng tân cổ điển tại Quảng Ninh không những thể hiện được sự khỏe khoắn về hình khối, hài hoà về màu sắc mà còn ấn tượng bởi từng tiểu tiết. Kiến trúc biệt thự vốn không chỉ đồ sộ về hình khối, nó còn sử dụng ngoại thất cùng với những họa tiết, hoa văn tinh tế để làm nổi bật sự sang trọng của phối cảnh thiết kế. Từ hàng rào cho đến các tầng hay kiến trúc mái, tất cả đều phải có sự thống nhất và chuẩn về bố cục.

Phải khẳng định rằng mặt tiền kiến trúc của ngôi biệt thự đã chiếm lĩnh thị giác với thiết kế đẹp mắt, bền vững và sang trọng. Hệ thống cửa chính được lắp đặt gỗ cao cấp, chứa vân gỗ tự nhiên. Phần tường được ốp đá màu vàng, hoa văn xám góp phần tạo nên vẻ ngoài sang trọng cho căn biệt thự. Bên cạnh đó, hệ thống trụ cột Ionic chạy thẳng lên đến tầng mái, vừa chống đỡ kết cấu chịu lực cho phần mái chung vừa giúp tổng quan mặt tiền thoáng và ấn tượng hơn.

Căn cứ trên nhu cầu sử dụng, thói quen sinh hoạt và sở thích của các thành viên trong gia đình, công năng ngôi biệt thự tân cổ điển 3 tầng được thiết kế theo mục đích của từng mặt sàn 9,72m x 13,13m gồm:
- Tầng 1: Phòng khách, phòng bếp ăn có mini bar, 1 phòng ngủ, vệ sinh chung cho cả tầng.
- Tầng 2: Bố trí 1 phòng ngủ master và 2 phòng ngủ có vệ sinh khép kín.
- Tầng 3: Phòng thờ, phòng sinh hoạt chung, 1 phòng ngủ, phòng giặt phơi, sân chơi.
Chi tiết cách sắp xếp của từng tầng, mời bạn tham khảo các bản vẽ sau đây:



6. Kinh nghiệm thiết kế biệt thự 3 tầng kiểu Pháp
6.1. Vị trí và điều kiện ngoại cảnh thiết kế biệt thự
Đây là một trong những yếu tố quan trọng nhất khi thiết kế biệt thự 3 tầng kiểu Pháp. Gia chủ cần xem xét và đánh giá vị trí và các điều kiện ngoại cảnh xung quanh của căn biệt thự để tạo nên một không gian sống tốt nhất.
6.2. Chú ý phong thủy khi thiết kế biệt thự Pháp
Xưa nay, phong thủy luôn là một vấn đề mà gia chủ quan tâm khi muốn xây dựng một ngôi nhà cũng như đối với biệt thự 3 tầng kiểu Pháp. Trong biệt thự Pháp mỗi không gian có một nguyên tắc phong thủy khác nhau. Nó phụ thuộc nhiều vào vị trí đất và tuổi, mệnh của gia chủ và các thành viên trong gia đình. Chẳng hạn đối với gia chủ mệnh Kim thì nên chọn màu phong thủy là màu trắng, bạc, ánh kim, vàng,.. nhằm mang lại tài lộc và may mắn.

6.3. Dự kiến chi phí đầu tư
Đây là một lưu ý cực kỳ quan trong, vì chi phí để xây dựng một ngôi biệt thự Pháp thường rất cao. Chính vì thế, gia chủ và kiến trúc sư, đơn vị thi công cần quan tâm đến vấn đề tài chính. Họ có thể thảo luận với nhau để có một bản thiết kế đẹp sang trọng và phù hợp. Tránh tình trạng khó khăn trong quá trình thi công do thiếu tài chính làm ảnh hưởng đến thời gian và chất lượng công trình.
6.4. Chú ý mặt tiền thiết kế biệt thự
Không chỉ trong thiết kế biệt thự kiểu Pháp nói riêng mà trong bất kỳ phong cách kiến trúc nào, mặt tiền luôn là vấn đề được quan tâm hàng đầu vì nó là bộ mặt của ngôi nhà với bên ngoài, thể hiện được đẳng cấp và thẩm mỹ. Với kiến trúc sang trọng của biệt thự Pháp, mặt tiền cần đặc biệt chú ý trong việc lựa chọn chất liệu cũng như phong cách thiết kế để thể hiện được nét đẹp thẩm mỹ đặc trưng của lối kiến trúc này.
6.5. Lựa chọn đơn vị thiết kế uy tín
Để có một thiết kế biệt thự 3 tầng kiểu Pháp đẹp và chất lượng thì vấn đề tìm ra một đơn vị thiết kế là một vấn đề quan trọng. Nếu không cẩn thận trong việc lựa chọn đơn vị thiết kế và xây dựng uy tín, nó có thể phá hủy ngôi nhà mơ ước của bạn và gây nên nhiều thiệt hại về tiền bạc và công sức.

Sơn Hà Group luôn được nhiều khách hàng tin tưởng và lựa chọn bởi những lí do sau:
- Kiến trúc sư thiết kế là người có kinh nghiệm, năng lực… giải quyết rất nhiều trường hợp, yêu cầu từ mọi khách hàng trên cả nước
- Chi phí thiết kế thi công cạnh tranh, hợp lý
- Sơn Hà Group tự tin mang đến cho khách hàng những phương án thiết kế kiến trúc và nội thất mãn nhãn, phù hợp với văn hóa và yêu cầu của mỗi gia chủ
- Đơn vị có nhiều mẫu nhà và biệt thự cho quý khách hàng lựa chọn, đa dạng về phong cách thiết kế, màu sắc, phong thủy,...
- Thái độ làm việc tích cực, hợp tác, chuyên nghiệp
- Sơn Hà Group luôn nỗ lực sáng tạo và phát triển không ngừng với hệ thống nhà xưởng sản xuất quy mô lớn, máy móc hiện đại cùng với đội ngũ công nhân giỏi giàu kinh nghiệm.
Trên đây là những thông tin về các mẫu biệt thự 3 tầng kiểu Pháp đẹp và ấn tượng mà Sơn Hà Group đã cung cấp. Hy vọng với những chia sẻ này có thể giúp khách hàng chọn lựa được một căn biệt thự ưng ý nhất. Quý khách hàng có thể liên hệ ngay Sơn Hà Group để được tư vấn khi có vấn đề hoặc cần giải đáp thắc mắc.
Mọi chi tiết xin liên hệ:
CÔNG TY CỔ PHẦN TƯ VẤN XÂY DỰNG SƠN HÀ (SHAC)
Trụ sở chính: Số 55, đường 22, KĐT Waterfront City, Lê Chân, Hải Phòng
- Điện thoại: 0225 2222 555
- Hotline: 0906 222 555
- Email: sonha@shac.vn
Văn phòng đại diện
- Tại Hà Nội: Số 4/172, Ngọc Hồi, Huyện Thanh Trì, TP. Hà Nội
- Tại Quảng Ninh: Số 289 P. Giếng Đáy, TP. Hạ Long, Tỉnh. Quảng Ninh
- Tại Đà Nẵng: Số 51m đường Nguyễn Chí Thanh, P. Thạch Thang. Quận Hải Châu, TP. Đà Nẵng
- Tại Sài Gòn: Số 45 Đường 17 khu B, An Phú, Quận 2, TP. Hồ Chí Minh
- Xưởng nội thất: Số 45 Thống Trực, Nam Sơn. Kiến An, TP. Hải Phòng
>>>> CLICK NGAY:

