50 Mẫu Biệt Thự 3 Tầng Mái Thái Hiện Đại Theo Xu Hướng
Bạn đang muốn thiết kế biệt thự 3 tầng tầng với kiểu mái Thái? Hãy cùng tìm hiểu ngay những mẫu biệt thự 3 tầng mái Thái hiện đại được cập nhật mới nhất với nhiều thiết kế sang trọng, kiêu sa được nhiều khách hàng lựa chọn nhất năm 2023 qua bài viết dưới đây của Sơn Hà Group ngay nhé!
>>> XEM NGAY: 100 mẫu biệt thự đẹp 3 tầng hiện đại, đẳng cấp 2023
1. Ưu điểm của biệt thự 3 tầng mái thái
1.1. Tính thẩm mỹ
Cũng như các công trình cùng phong cách, thiết kế nhà biệt thự đẹp 3 tầng mái Thái không hề bị bó buộc theo bất kỳ khuôn mẫu nào giúp các kiến trúc sư có thể thỏa sức sáng tạo ra những ngôi nhà độc đáo có một không hai. Đặc trưng của phong cách kiến trúc hiện đại là thường chú trọng đến sự đơn giản, sang trọng, khỏe khoắn, thông thoáng và gần gũi với thiên nhiên. Chính những điều này làm nổi bật chiều sâu của căn nhà, vừa tạo ra vẻ ngoài bắt mắt khiến người khác tò mò và mong muốn khám phá những điều thú vị bên trong các mẫu biệt thự 3 tầng hiện đại.

1.2. Sự tiện lợi
Biệt thự mái thái có 3 tầng nên sẽ có không gian rộng rãi, nhiều phòng, đáp ứng đủ nhu cầu sinh hoạt của cả gia đình có 2 – 3 thế hệ. Bên cạnh đó thì cách bố trí này kết hợp với hệ mái Thái giúp cho hai tầng sinh hoạt luôn mát mẻ vào mùa hè. Bởi hệ mái thái vốn có khả năng chống nóng, thoát nhiệt tốt, nên 2 tầng sinh hoạt lại được che chắn bởi tầng 3 ở phía trên.
1.3. Đa dạng phong cách kiến trúc
Mẫu nhà biệt thự 3 tầng mái Thái hiện đại có hình thức thiết kế rất đa dạng từ phong cách kiến trúc cổ điển, tân cổ điển cho đến hiện đại, nhà vườn, song lập,… Hệ mái Thái sẽ mang đến vẻ đẹp phong phú, đáp ứng nhu cầu, sở thích khác nhau của các chủ đầu tư.

1.4. Tiết kiệm chi phí
Do thiết kế chồng tầng nên biệt thự 3 tầng mái Thái hiện đại tốn ít diện tích nền móng và chi phí thi công hơn so với biệt thự 1 tầng. Nhờ đó, mà gia chủ có thể tiết kiệm chi phí hoặc có thêm nhiều diện tích cho sân vườn, cảnh quan và các hạng mục phụ trợ khác, có thể kể đến như bể bơi, gara ô tô, bể cá Koi, lầu vọng cảnh, bàn uống trà,…
Liên hệ ngay để được tư vấn miễn phí.
Tư vấn thiết kế miễn phí: 0906.222.555
1.5. Phù hợp với điều kiện thời tiết Việt Nam
Phù hợp với điều kiện khí hậu nhiệt đới gió mùa của Việt Nam nên những mẫu biệt thự 3 tầng mái thái đang rất được các gia đình có điều kiện tài chính lựa chọn xây dựng. Ngoài ra đặc điểm kiến trúc mái Thái là có hệ thống vỉ kèo nhẹ, đơn giản, vì thế mà sẽ không gây áp lực cho công trình. Việc mái có độ dốc cũng khiến cho nước mưa không bị đọng lại gây hiện tượng ẩm mốc trong nhà.

1.6. Phong thủy trong thiết kế
Hệ mái Thái hiện nay có nhiều màu sắc khác nhau để gia chủ có thể lựa chọn thiết kế phù hợp với vận mệnh của mình. Bên cạnh đó thiết kế chồng tầng nên biệt thự 3 tầng mái thái tốn ít diện tích nền móng hơn so với biệt thự 1 tầng thông thường. Nên cũng nhờ đó, mà gia chủ có thêm nhiều diện tích để thiết kế sân vườn, cảnh quan phù hợp với phong thủy và các hạng mục phụ trợ khác có thể kể đến như: bể bơi, gara ô tô, bể cá Koi, lầu vọng cảnh, bàn uống trà,…
>>>> GỢI Ý: 10 Mẫu biệt thự 3 tầng cổ điển đẹp, sang trọng, cao cấp
2. Mẫu biệt thự mái thái 3 tầng đẹp, được ưa chuộng
2.1. Mẫu biệt thự 3 tầng mái thái hiện đại
Không giống với những phong cách kiến trúc cổ điển hay tân cổ điển, biệt thự hiện đại luôn nổi bật bởi những mảng khối phi logic, phi đối xứng, nhằm thể hiện cá tính, phong cách của chủ đầu tư. Các đường nét kiến trúc mạch lạc, khỏe khoắn tạo ấn tượng độc đáo với các chủ đầu tư. Biệt thự 3 tầng mái Thái hiện đại thường sử dụng những ô cửa lớn, vách kính rộng, hàng hiên thoáng đáng,... để nhằm kết nối không gian bên trong và bên ngoài biệt thự. Cách thiết kế không gian mở này sẽ giúp hạn chế sự phân chia không gian bên trong tạo nên mặt bằng công năng thoáng mát, thoải mái.
Dưới đây là một số mẫu biệt thự 3 tầng mái Thái hiện đại mà bạn có thể tham khảo:
Mẫu 1: Biệt thự đẹp 3 tầng hiện đại mái thái 155m2 tại Hải Phòng – SH BTD 0075
Thông tin chi tiết mẫu biệt thự
- Chủ đầu tư: Ông Nguyễn Văn Ước
- Loại hình: Biệt thự hiện đại
- Diện tích: 153,75m2 (12,3m x 12,5m)
- Mặt tiền: Mặt tiền 12m3
- Đơn vị thực hiện: Sơn Hà Group (#SHAC)
- Công năng:
- Tầng 1: Phòng khách; phòng bếp ăn; 1 phòng ngủ với vệ sinh khép kín.
- Tầng 2: Bố trí 3 phòng ngủ; 2 phòng vệ sinh (trong đó có 1 phòng ngủ master).
- Tầng 3: Phòng thờ; phòng thể thao (phòng sinh hoạt chung); khu phơi giặt; kho; 1 phòng ngủ trẻ em và 1 phòng vệ sinh.

Mang vẻ đẹp thanh nhã, sang trọng của lối kiến trúc hiện đại, biệt thự 3 tầng mái Thái hiện đại SH BTD 0075 sử dụng tone màu trắng nhã nhặn làm chủ đạo. Diện tường để trơn và có thiết kế ốp gạch giả đá màu đen ở diện ở một vài khu vực để làm điểm nhấn. Ban công kính với kích thước lớn được sử dụng triệt để ở các diện tường. Thiết kế này vừa giúp kết nối với không gian bên ngoài lại vừa mang lại vẻ đẹp sang trọng cho công trình.

Mẫu 2: Biệt thự hiện đại mái thái 3 tầng diện tích 9m x 20m tại Quảng Ninh- SH BTD 0077
Thông tin chi tiết mẫu biệt thự
- Chủ đầu tư: Ông Phạm Quang Thuận
- Loại hình: Biệt thự hiện đại
- Diện tích: 180m2 (9m x 20m)
- Mặt tiền: Mặt tiền 9m
- Đơn vị thực hiện: Sơn Hà Group (#SHAC)
- Công năng:
- Tầng 1: Phòng khách; phòng bếp ăn; 1 phòng ngủ thường; 1 nhà vệ sinh chung.
- Tầng 2: Bố trí 2 phòng ngủ master khoa học.
- Tầng 3: Phòng thờ; 1 phòng ngủ trẻ em; sân giặt; sân phơi.

Với hệ mái Thái quen thuộc được thiết kế giật kép tạo ra vẻ uy nghi, đẳng cấp cho công trình. Bên cạnh đó còn được phối hợp với cách tổ chức hình khối ở bên dưới tạo nên những ấn tượng thị giác hút mắt người nhìn ngay từ lần đầu tiên. Đặc biệt, tone màu xám ghi của mái kết hợp hài hòa với tone màu trắng của biệt thự đã càng làm tôn lên vẻ đẹp nhã nhặn, thanh lịch cho công trình hơn.

Điền vào form dưới đây để được tư vấn miễn phí nha.
>>>> BẬT MÍ THÊM: 50 Mẫu biệt thự tân cổ điển 3 tầng đẹp, sang trọng, đẳng cấp
2.2. Biệt thự mái thái 3 tầng phong cách tân cổ điển
Kiến trúc biệt thự tân cổ điển là sự kết hợp hài hòa vẻ quyền quý, sang trọng của phong cách cổ điển và nét độc đáo, tinh tế của kiến trúc đương thời. Hiện nay, biệt thự 3 tầng mái Thái hiện đại đang dần trở thành xu hướng cho những chủ đầu tư muốn thiết kế biệt thự tân cổ điển. Vì hệ mái này giúp mang lại vẻ ngoài bề thế, quyền lực, khẳng định địa vị cho chủ đầu tư.
Dưới đây là một số mẫu biệt thự 3 tầng tân cổ điển mái Thái mà bạn có thể tham khảo:
Mẫu 1: Biệt thự tân cổ điển 3 tầng diện tích 300m2 tại Hải Phòng – SH BTP 0166
Thông tin chi tiết mẫu biệt thự
- Chủ đầu tư: Ông Nguyễn Văn Tuấn
- Loại hình: Biệt thự tân cổ điển
- Diện tích: 300m2 (15m x 20m)
- Mặt tiền: Mặt tiền 15m
- Đơn vị thực hiện: Sơn Hà Group (#SHAC)
- Công năng:
- Tầng 1: Gara; Phòng khách; Phòng ăn + bếp; WC; phòng ngủ 1
- Tầng 2: 1 phòng ngủ master cùng phòng thay đồ và WC; 2 phòng ngủ thường +WC; Phòng sinh hoạt chung
- Tầng 3: 1 phòng ngủ thường + WC; Phòng thể thao; phòng thờ; 2 sân chơi
- Tầng áp mái: 2 kho; 1 phòng sinh hoạt chung

Toàn bộ căn biệt thự 3 tầng mái Thái hiện đại SH BTP 0166 này đều được sử dụng màu sơn vàng kem kết hợp với trắng ngà sang trọng, tinh tế, mang đến cảm giác cổ điển mà thanh lịch, hiện đại. Ngoài ra, hệ mái thái có độ dốc tiêu chuẩn cũng là ý tưởng của kiến trúc sư Sơn Hà Group. Thiết kế này vừa khiến tổng thể thiết kế biệt thự thêm cao ráo, thanh thoát lại vừa giúp cho việc thoát nước trên mái nhanh chóng khi trời mưa, tránh được các rủi ro về ngấm, dột mái.

Mẫu 2: Biệt thự 3 tầng mặt tiền 10m rộng 140m2 – SD BTP 0167
Thông tin chi tiết mẫu biệt thự
- Chủ đầu tư: Ông Khá
- Loại hình: Biệt thự tân cổ điển
- Diện tích: 140m2 ( 10*14m)
- Mặt tiền: Mặt tiền 10m
- Đơn vị thực hiện: Sơn Hà Group (#SHAC)
- Công năng: Nhà ở gia đình với nhiều công năng tiện ích

Thiết kế mái Thái của biệt thự SD BTP 0167 có độ dốc vừa phải, khiến tổng quan biệt thự cũng trở nên thanh thoát và cao ráo hơn. Bên cạnh đó thiết kế mái Thái màu xám ghi với những đường nét tối giản, không cầu kỳ cũng phù hợp với những chi tiết trang trí cổ điển trên mặt tiền của biệt thự 3 tầng mái thái hiện đại này.

2.3. Mẫu biệt thự 3 tầng mái thái phong cách châu Âu
Đặc trưng của phong cách cổ điển, của biệt thự phong cách châu Âu là đề cao thiết kế không gian mở với các chi tiết như cổng vòm, hàng rào, các cột và ô cửa sổ,.... để có thể kết nối không gian bên trong và bên ngoài biệt thự. Biệt thự 3 tầng mái Thái hiện đại phong cách châu Âu thường được xây dựng trên diện tích lớn, kết hợp với chiều cao của hệ mái Thái mang tới sự thanh thoát, cao ráo và sang trọng cho toàn bộ công trình.
Dưới đây là một số mẫu biệt thự 3 tầng phong cách Châu Âu mái Thái mà bạn có thể tham khảo:
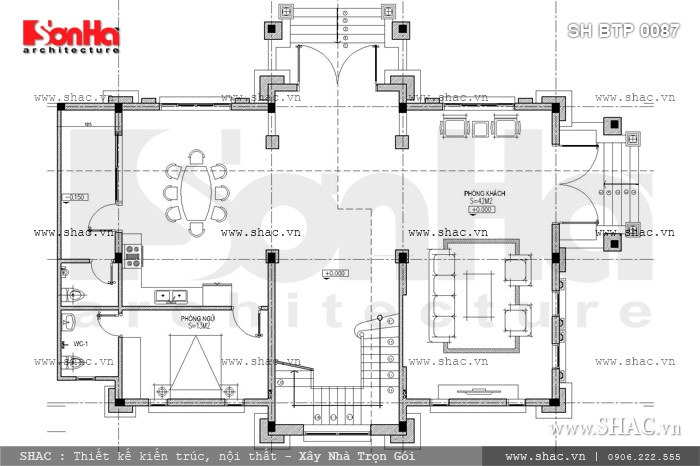
Mẫu 1: Biệt thự kiến trúc Pháp 3 tầng mái ngói – SH BTP 0087
Thông tin chi tiết mẫu biệt thự
- Chủ đầu tư: Ông Phạm Văn Thắm
- Loại hình: Biệt thự kiểu Pháp
- Diện tích: 152m2 (16m x 9,5m)
- Mặt tiền: Mặt tiền 16m
- Đơn vị thực hiện: Sơn Hà Group (#SHAC)
- Công năng: Gara để xe; phòng khách; phòng bếp ăn; các phòng vệ sinh; 4 phòng ngủ

Với ưu thế tiếp giáp 2 mặt đường, biệt thự SH BTP 0087 đã phô diễn trọn vẹn vẻ ngoài sang trọng, bề thế, khẳng định vị thế của chủ đầu tư. Ngoài sự vượt trội về công năng ra, thì biệt thự 3 tầng mái Thái hiện đại này còn được đánh giá cao về thẩm mỹ. Đó là nhờ sử dụng hệ mái Thái giúp biệt thự trông thanh thoát và mang đậm phong cách cổ điển Pháp hơn.

Mẫu 2: Thiết kế biệt thự Pháp 3 tầng 1 hầm diện tích 320m2 – SH BTP 0066
Thông tin chi tiết mẫu biệt thự
- Chủ đầu tư: Ông Hồ Thế Khiên
- Loại hình: Biệt thự kiểu Pháp
- Diện tích: 320m2 (16m x 20m)
- Mặt tiền: Mặt tiền 16m
- Đơn vị thực hiện: Sơn Hà Group (#SHAC)
- Công năng: Gara ô tô; phòng khách lớn; phòng bếp ăn; phòng sinh hoạt chung; 4 phòng ngủ; phòng thờ; sân phơi; vệ sinh riêng của phòng ngủ và vệ sinh chung của tầng

Được thiết kế theo phong cách Châu Âu cổ điển, mẫu biệt thự SH BTP 0066 mang đến không gian sống đẳng cấp, tiện nghi mà ai cũng ao ước. Nổi bật đó là hệ mái Thái màu cam sinh động, cùng các cột trụ vuông, tròn được phào chỉ nhẹ nhàng càng làm tăng thêm tính thẩm mỹ và tạo cho căn nhà sự bề thế, sang trọng.

Liên hệ ngay số điện thoại dưới đây để được tư vấn miễn phí nha.
Tư vấn thiết kế miễn phí: 0906.222.555
>>>> XEM THÊM: 5 Mẫu biệt thự 3 tầng chữ l đẹp, hiện đại được ưa chuộng
2.4. Biệt thự mái thái 3 tầng phong cách cổ điển
Biệt thự 3 tầng mái Thái hiện đại phong cách cổ điển đã chinh phục nhiều chủ đầu tư bởi vẻ đẹp nguy nga, lộng lẫy. Thiết kế biệt thự cổ điển luôn thể hiện tính đối xứng đặc trưng, đăng đối trong bố cục, hệ thức cột mạnh mẽ. Các chi tiết thiết kế hoa văn, hệ thống phào chỉ đều được chạm trổ cầu kỳ kết hợp màu sắc trang nhã, tinh tế thể hiện sự vương giả và quyền uy của gia chủ.
Dưới đây là một số mẫu biệt thự 3 tầng cổ điển mái Thái mà bạn có thể tham khảo:
Mẫu 1: Biệt thự cổ điển mái ngói đỏ ấn tượng tại Hưng Yên – SH BTP 0115
Thông tin chi tiết mẫu biệt thự
- Chủ đầu tư: Ông Nguyễn Văn Dũng
- Loại hình: Thiết kế biệt thự cổ điển
- Diện tích: 146m2 (10.82mx13.52m)
- Mặt tiền: Mặt tiền 10m82
- Đơn vị thực hiện: Sơn Hà Group (#SHAC)
- Công năng: Phòng khách, phòng bếp, phòng ăn, 5 phòng ngủ, ban công thông thoáng, phòng karaoke, phòng thể thao, phòng thờ, kho, sân giặt phơi, sân chơi.

Điểm nhấn nổi bật trên tổng thể gam màu trắng chủ đạo đó là hệ mái Thái ngói đỏ tươi được kết hợp vô cùng tinh tế. Bên cạnh đó, bố trí hệ thống cửa sổ và hành lang ban công phân bổ đều tại 3 tầng giúp tạo khoảng sáng và thông gió hợp lý. Thêm vào đó là thiết kế khuôn viên sân rộng của biệt thự 3 tầng mái Thái hiện đại với hàng rào và cổng sắt đồng nhất về màu sắc và vật liệu cũng giúp làm tăng thêm tính thẩm mỹ cho biệt thự.

Mẫu 2: Biệt thự cổ điển mái ngói ấn tượng tại Hà Nội – SH BTP 0112
Thông tin chi tiết mẫu biệt thự
- Chủ đầu tư: Ông Nguyễn Duy Giang
- Loại hình: Thiết kế biệt thự cổ điển
- Diện tích: 198m2 (9mx22m)
- Mặt tiền: Mặt tiền 9m
- Đơn vị thực hiện: Sơn Hà Group (#SHAC)
- Công năng: phòng khách, phòng bếp ăn, phòng ngủ, phòng xông hơi, phòng sinh hoạt chung, phòng tắm, phòng thờ

Được thiết kế theo kiến trúc cổ điển, biệt thự 3 tầng mái Thái hiện đại SH BTP 0112 thu hút người nhìn bởi màu sắc trang nhã, sang trọng. Thêm vào đó là bố cục thiết kế đăng đối, cân xứng, mang tới không gian sống đẳng cấp, tiện nghi. Với việc bố trí thêm ban công vừa tạo điểm nhấn cho công trình, vừa mang đến không gian thoáng đãng, gần gũi thiên nhiên.

>>>> THAM KHẢO NHANH: 11 Mẫu biệt thự 3 tầng 4 phòng ngủ yêu thích nhất hiện nay
3. Những lưu ý khi xây dựng biệt thự 3 tầng mái thái
3.1. Lựa chọn đơn vị thiết kế, thi công có nhiều kinh nghiệm
Để đảm bảo được hai khâu thiết kế và thi công khi xây dựng biệt thự 3 tầng mái Thái hiện đại thì các nhà đầu tư nên lựa chọn một đơn vị kiến trúc uy tín, có nhiều kinh nghiệm. Những đơn vị kiến trúc có thể đảm nhiệm cả hai khâu hay đơn vị thiết kế, thi công khác nhau nhưng đảm bảo làm việc ăn ý.
3.2. Lựa chọn kiến trúc phù hợp
Để sở hữu một căn biệt thự 3 tầng mái Thái hiện đại đẹp và phù hợp với chi phí, thì trước khi thiết kế, xây dựng, gia chủ phải lựa chọn được phong cách kiến trúc phù hợp. Bởi vì phong cách kiến trúc để thiết kế nên biệt thự sẽ quyết định tới hình thức biểu hiện, bố cục, đường nét kiến trúc và cách sử dụng các hoa văn, họa tiết trang trí. Đối với biệt thự 3 tầng mái thái, có 3 phong cách chính mà bạn có thể tham khảo đó là cổ điển, tân cổ điển, hiện đại.

Điền vào form dưới đây để được Sơn Hà tư vấn miễn phí nha.
>>>> TÌM HIỂU THÊM: 7 Mẫu biệt thự mini 3 tầng giá tốt, đẹp lôi cuốn
3.3. Công năng của biệt thự
Bên cạnh việc lựa chọn kiến trúc phù hợp thì việc thiết kế, bố trí công năng cho các tầng của biệt thự 3 tầng mái Thái hiện đại cũng quan trọng không kém. Cụ thể như:
- Chiều rộng mặt tiền của biệt thự đảm bảo phải cân đối với chiều cao 3 tầng. Ngoài ra, thì cũng cần phải tính toán sao cho có đủ diện tích để thiết kế phần đua của mái Thái.
- Cần phải đảm bảo được giao thông trong nhà (sảnh, hành lang mỗi tầng, cầu thang) được thiết kế sao cho tối ưu được diện tích nhưng vẫn thuận tiện trong quá trình sử dụng
3.4. Kinh phí thiết kế và xây dựng
So với các kiểu biệt thự khác, chi phí thiết kế, xây dựng biệt thự mái thái 3 tầng hiện đại sẽ phải chăng hơn. Chi phí của mỗi phong cách thiết kế hay yêu cầu của khách hàng có thể chênh lệch nhưng đảm bảo mức chênh lệch sẽ không quá nhiều. Do đó mà thiết kế biệt thự mái Thái sẽ phù hợp với những chủ đầu tư trẻ muốn sở hữu một không gian sống lý tưởng.

3. Đơn vị nhận thiết kế biệt thự 3 tầng mái thái hiện đại, đẹp uy tín
Khi xây dựng biệt thự 3 tầng mái Thái hiện đại, thì vai trò của đơn vị thiết kế và thi công đóng vị trí vô cùng quan trọng. Từng tỉ lệ thân công trình, phần đế, phần mái cho đến tỉ lệ giữa độ dốc của mái, chiều cao công trình, vật liệu hoàn thiện mái đều phải được phối hợp một cách hài hòa nhất. Vì từ đó mới đảm bảo tính thẩm mỹ và an toàn cho toàn bộ công trình được.
Đến với Sơn Hà Group bạn sẽ không còn phải lo lắng và bâng khuâng về những vấn đề đó nữa. Với đội ngũ kiến trúc sư có chuyên môn cao và nhiều năm kinh nghiệm, SHAC cam kết mang tới cho khách hàng những công trình kiến trúc ấn tượng, độc đáo và dẫn đầu xu thế. Đến với SHAC, bạn có thể hoàn toàn an tâm về chất lượng dịch vụ, chi phí cũng như thời gian thi công mang tới không gian sống hoàn mỹ, trường tồn cùng thời gian.

Nhưng ưu điểm vượt trội của SHAC so với các đơn vị khác trên thị trường có thể kể đến như:
- Thiết kế, thi công theo nhu cầu thực tế: Bản vẽ thiết kế sẽ được hoàn thiện dựa trên đặc điểm thực tế của mặt bằng tổng thể của khu đất, nhu cầu, sở thích và mong muốn của chủ đầu tư. Các phương án, ý tưởng thiết kế sẽ đều được các kiến trúc sư tính toán cẩn thận để có tỷ lệ công trình hợp lý và đủ diện tích cho phần đua ra của mái Thái.
- Thiết kế nhiều phong cách kiến trúc khác nhau: SHAC luôn không ngừng sáng tạo, tìm kiếm, cập nhật những xu thế thiết kế mới nhất từ Á sang Âu nhằm để tạo nên những công trình đẹp, độc đáo, nổi bật để phù hợp với nhiều đối tượng khách hàng khác nhau.
- Chi phí hợp lý: song hành chất lượng cao, thì các thiết kế SHAC luôn đảm bảo có chi phí thiết kế hợp lý, phù hợp với nhiều phân khúc khách hàng.
4. Chi phí xây biệt thự 3 tầng mái thái tại Sơn Hà là bao nhiêu?
Chi phí xây dựng biệt thự 3 tầng mái Thái hiện đại sẽ được tính như sau:
- Gói thiết kế biệt thự hiện đại, tân cổ điển, cổ điển
- Gói Kiến trúc thiết kế biệt thự hiện đại + tân cổ điển: 220.000đ/m2
- Gói thiết kế biệt thự cổ điển: 250.000đ/m2
- Gói thiết kế nội thất : 250.000đ -300.000đ/m2
- Gói thi công biệt thự từ 9.000.000 vnđ đến 11.000.000đ/m2

Tuy nhiên chi phí này thay đổi vì chịu ảnh hưởng mức giá của thị trường và nhiều yếu tố khác. Cụ thể như: yêu cầu của khách hàng, diện tích công trình, vật liệu xây dựng,... Do đó để có thể biết được mức giá chi tiết thì bạn có thể liên hệ ngay qua HOTLINE dưới đây để được nhân viên tư vấn miễn phí.
Tham khảo ngay bảng giá thiết kế tại Sơn Hà Group bạn nhé.
Thiết kế nhà ống
- Nhà ống hiện đại, nhà ống tân cổ điển
- Thời gian thiết kế: 30 ngày
- Tư vấn phong thủy
- Bản vẽ măt bằng công năng
- Bản vẽ xin phép xây dựng
- Bản vẽ phối cảnh mặt tiền
- Bản vẽ chi tiết kiến trúc
- Bản vẽ chi tiết kết cấu
- Bản vẽ điện, cấp thoát nước
- Tư vấn bố trí vật dụng nội thất
- Giám sát quyền tác giả
Thiết kế biệt thự
- Biệt thự hiện đại, Biệt thự tân cổ điển
- Được tư vấn bởi đội ngũ KTS 5+ năm kinh nghiệm
- Thời gian thiết kế: 45 ngày
- Tư vấn phong thủy
- Bản vẽ măt bằng công năng
- Bản vẽ xin phép xây dựng
- Bản vẽ phối cảnh mặt tiền
- Bản vẽ chi tiết kiến trúc
- Bản vẽ chi tiết kết cấu
- Bản vẽ điện, cấp thoát nước
- Tư vấn bố trí vật dụng nội thất
- Giám sát quyền tác giả
Thiết kế VIP
- Lâu đài, Biệt thự cổ điển
- Được tư vấn bởi đội ngũ KTS 10+ năm kinh nghiệm
- Thời gian thiết kế: 60 ngày
- Tư vấn phong thủy
- Bản vẽ măt bằng công năng
- Bản vẽ xin phép xây dựng
- Bản vẽ phối cảnh mặt tiền
- Bản vẽ chi tiết kiến trúc
- Bản vẽ chi tiết kết cấu
- Bản vẽ điện, cấp thoát nước
- Tư vấn bố trí vật dụng nội thất
- Giám sát quyền tác giả
5. Cách phân biệt biệt thự 3 tầng mái thái
Biệt thự 3 tầng mái Thái hiện đại có thể dễ dàng phân biệt vì thiết kế mái có dạng ngói xếp chồng lên nhau và độ dốc tương đối lớn. Tùy vào nhu cầu sử dụng và diện tích của dự án mà mái Thái sẽ được xây dựng với kiểu dáng và chi phí khác nhau. Tuy nhiên, một mẫu nhà biệt thự 3 tầng mái Thái sẽ có đặc điểm chung đó là phần mái có độ dốc lớn và xếp chồng lên nhau, rất dễ phân biệt.

Trên là những chia sẻ chi tiết của Sơn Hà Group về những mẫu biệt thự 3 tầng mái Thái hiện đại. Hy vọng qua thông tin hữu ích trên đã giúp bạn lựa chọn được mẫu thiết kế phù hợp với mình.
>>>> XEM THÊM BÀI VIẾT LIÊN QUAN:

