Trong những năm gần đây, những mẫu biệt thự 3 tầng 4 phòng ngủ đang ngày càng được ưa chuộng. Có không ít khách hàng tìm kiếm thông tin về chúng để thực hiện đầu tư cũng như phục vụ cho nhu cầu nhà ở. Cùng Sơn Hà Group tham khảo những mẫu biệt thự 3 tầng đẹp, độc đáo và ấn tượng dưới đây nhé!
>>>> THAM KHẢO: 100 Mẫu thiết kế biệt thự 3 tầng đẹp, hiện đại, đẳng cấp 2022
NỘI DUNG CHÍNH
Phong cách tân cổ điển là sự lựa chọn phù hợp cho những căn biệt thự trong cuộc sống hiện đại ngày nay. Biệt thự 3 tầng 4 phòng ngủ thiết kế theo phong cách tân cổ điển sẽ toát lên một không gian sang trọng, tinh tế và hiện đại.
Thông tin chi tiết mẫu biệt thự:
Đặc điểm thiết kế và phối cảnh 3D biệt thự
Đi theo lối thiết kế nhà biệt thự tân cổ điển, toàn bộ những món đồ nội thất trong căn biệt thự 3 tầng 4 phòng ngủ này đều được kiến tạo từ những tông màu ấm áp như: nâu sáng, vàng kem, trắng kem,… Kết hợp cùng hệ thống chiếu sáng chuyên nghiệp và chất liệu nội thất cao cấp, tổng thể đem đến một không gian đầy ấm cúng, đẳng cấp.

Có thể nhận thấy, yếu tố tân cổ điển được thể hiện rất rõ nét trên các đường nét thiết kế: ghế sofa, bàn ăn, phào chỉ tường, đèn chùm, các họa tiết trang trí chân bàn, chân ghế,…. Căn biệt thự được lát gạch khổ lớn sáng màu, tông màu kem sáng hài hòa. Kết hợp cùng hệ phào chỉ tường tinh tế, những chi tiết giấy dán, chi tiết sơn vàng. Đặc biệt với sự kết hợp của màu gỗ tự nhiên cao cấp, tạo nên một tổng thể thu hút ánh nhìn.

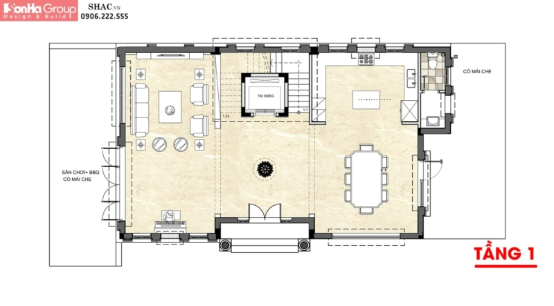
Bản vẽ mặt bằng bố trí công năng
Với diện tích sàn lý tưởng, Sơn Hà Group đã bố trí công năng một cách phù hợp với nhu cầu và thói quen sinh hoạt của từng thành viên trong gia đình gia chủ. Với thiết kế 3 tầng 1 tum, toàn bộ công năng sử dụng được chia như sau:




Thông tin chi tiết mẫu biệt thự:
Đặc điểm thiết kế và phối cảnh 3D biệt thự
Đi theo phong cách thiết kế biệt thự Tân cổ điển làm chủ đạo, căn biệt thự 3 tầng 4 phòng ngủ đem đến không gian sống sang trọng và hiện đại. Nhà biệt thự 3 tầng này được cấu thành bởi các hình khối mạnh mẽ toát lên vẻ uy quyền và vững chãi. Điều này cũng thể hiện đẳng cấp, uy quyền và danh thế của gia chủ. Thêm vào đó, trên các cột trụ có sử dụng hoa văn làm cho căn biệt thự trở nên trang nhã và mềm mại hơn.

Với mẫu thiết kế này, căn biệt thự sử dụng tông màu trắng làm chủ đạo, toàn bộ mặt tiền của biệt thự cũng như tường bao quanh đều được phủ tông màu sang trọng này.
Ngoài ra những chi tiết gỗ ấm áp và kim loại sơn đen sang trọng trên lan can, cửa sổ cũng là điểm nhấn độc đáo mang tính thẩm mỹ cao. Đặc biệt phải kể đến hệ mái thái độc đáo không chỉ bảo vệ ngôi nhà giúp chống nóng chống lạnh mà còn mang màu xanh sang trọng, tương phản hoàn hảo với màu sơn của biệt thự, cho hiệu ứng sang trọng và đẳng cấp.

Bản vẽ mặt bằng bố trí công năng
Với diện tích 140m2 (10m x 13m), thiết kế biệt thự tân cổ điển được chia thành 3 tầng khác nhau. Các tầng khác nhau đều được bố trí công năng sử dụng khác nhau, phù hợp với nhu cầu, sở thích của từng thành viên trong gia đình. Sau đây là cách chia công năng mỗi tầng:



>>>> XEM NGAY: 6 Mẫu biệt thự 3 tầng mặt tiền 8m được săn lùng nhiều nhất
Thông tin chi tiết mẫu biệt thự:
Đặc điểm thiết kế và phối cảnh 3D biệt thự
Nhà biệt thự 3 tầng 4 phòng ngủ này được thiết kế theo phong cách tân cổ điển. Với sự cầu kỳ, cân đối với những tỷ lệ vàng, tạo nên sức cuốn hút về sự vững chắc của hình khối. Ngoài ra, nhà biệt thự 3 tầng đẹp hiện đại còn thể hiện sự uyển chuyển, kết nối và kiến tạo không gian thiết kế. kết hợp làm showroom áo cưới nên toàn bộ mặt tiền công trình được thiết kế ưu tiên hoàn toàn cho không gian trưng bày.

Với thiết kế độc đáo này, chúng ta còn cảm nhận được sự kết hợp linh hoạt của những thức cột tròn và cột vuông, cùng với những đường gờ chạy dọc, kết hợp với đèn treo tường và mái thái đua rộng, tạo nên một sự cân đối trong tổng thể chung. Chân cột và đầu cột không thiết kế khắc họa những chi tiết quá cầu kỳ và tỉ mỉ, thiết kế kiến trúc với những đường nét khỏe khoắn.

Bản vẽ mặt bằng bố trí công năng
Với diện tích sàn, công năng ngôi nhà biệt thự này gồm:





>>>> TÌM HIỂU THÊM: 7 Mẫu biệt thự mini 3 tầng giá tốt, đẹp lôi cuốn
Thông tin chi tiết mẫu biệt thự:
Đặc điểm thiết kế và phối cảnh 3D biệt thự
Căn biệt thự 3 tầng 4 phòng ngủ được thiết kế theo phong cách cổ điển, lấy màu trắng làm tông màu chủ đạo thể hiện nét tinh tế, sang trọng theo kiến trúc kiểu Pháp.

Căn biệt thự toát lên dáng dấp hoàng gia đẳng cấp với hệ cột trụ với đầy đủ kích thước, kiểu dáng vuông tròn được thiết kế tỉ mỉ trên mặt đứng và được phân bổ đều và tương xứng các bên. Ở sảnh chính, hệ trụ được thiết kế lớn với hai cột trụ tròn sơn màu trắng cùng với những họa tiết, phào chỉ đắp nổi tinh xảo tạo nên sự nhẹ nhàng, thanh thoát, sang trọng và đẹp mắt. Cùng với đó, hệ thống cột trụ được thiết kế cao thoáng chống đỡ phần mái đua ra, kết hợp với hệ trụ cột vuông khỏe khoắn chắc chắn ốp nửa vào tường biệt thự, tô đậm chất cổ điển cho ngôi nhà.

Bản vẽ mặt bằng bố trí công năng
Công năng ngôi biệt thự này được phân chia như sau:







Thông tin chi tiết mẫu biệt thự:
Đặc điểm thiết kế và phối cảnh 3D biệt thự
Căn biệt thự này có không gian sống đậm chất nghệ thuật và toát lên cốt cách sang trọng bởi bao quanh là các chi tiết trang trí tỉ mỉ tinh tế được kết hợp một cách có duyên trên kiến trúc ngoại thất. Cách xử lý chi tiết này đã mang đến cho ngôi biệt thự tân cổ điển diện mạo kiến trúc đẹp mắt sang trọng chinh phục mọi ánh nhìn người qua đường.

Được thiết kế theo gam màu theo tone lạnh dịu nhẹ là sự hòa quyện giữa phong cách hiện đại và cổ điển. Sự nhẹ nhàng, tươi mới của gam màu trong thiết kế tạo nên cảm giác thư thái, tinh tế và ấm áp, mang đến không gian ngoại thất sự dịu nhẹ, tươi tắn.

>>>> BẬT MÍ: 8 Mẫu biệt thự 3 tầng mái dốc hiện đại, được săn đón nhất
Thông tin chi tiết mẫu biệt thự:
Đặc điểm thiết kế và phối cảnh 3D biệt thự
Nói về thiết kế mặt tiền, công trình lần này mang đậm nét những đặc điểm của một công trình tân cổ điển cơ bản. Bao gồm sự sắp xếp hình khối bề thế, hiên ngang, hệ cột trụ nổi bật, các hoa văn phào chỉ trang trí và hệ cửa sổ cổ kính. Các chi tiết này cùng nhau tạo nên bản giao hưởng tân cổ điển độc đáo, sang trọng và đậm tính nghệ thuật

Bên cạnh thiết kế kiến trúc và kết cấu công trình, màu sắc và chất liệu cũng là yếu tố quan trọng không kém làm nên một công trình hoàn hảo.
Màu sơn trắng huyền thoại của bất cứ tòa lâu đài cổ điển nào đã được tái hiện hoàn hảo trong công trình này. Đồng thời màu sơn trắng này cũng tương phản hoàn hảo với hệ mái mansard xanh đen, tạo nên nét kiến trúc thú vị giữa lòng thành phố.

Như mục đích ban đầu, công trình được thiết kế và xây dựng để vừa có thể làm tòa nhà văn phòng, vừa có thể làm nhà ở thông thường. Chính vì thế, với tổng quan 3 tầng, mặt sàn mỗi tầng 150m2, Sơn Hà Group đã có cách chia công năng phù hợp với từng nhu cầu. Cụ thể, tầng 1 dành cho văn phòng, tầng 2 và 3 dành riêng cho công năng nhà ở.



>>>> THAM KHẢO: 8 Mẫu biệt thự 3 tầng mái ngói đẹp không thể rời mắt
Thông tin chi tiết mẫu biệt thự:
Đặc điểm thiết kế và phối cảnh 3D biệt thự
Căn biệt thự được thiết kế bởi cách ứng dụng những tỷ lệ và hình khối vô cùng thú vị. Đi theo lối thiết kế bất đối xứng với những hình hộp xếp chồng so le nhau, điều này khiến tạo hiệu ứng thị giác, mở rộng không gian hơn con số 10m của mặt tiền biệt thự.
Không chỉ “ăn điểm” về hình khối, cách bố trí cửa ra vào, cửa sổ và lỗ thông khí cũng được nghiên cứu tỉ mỉ để hài hòa với toàn bộ căn nhà. Chi tiết này còn giúp căn nhà luôn được điều hòa không khí một cách tự nhiên và ít khi phải dùng đến ánh sáng nhân tạo.

Ngoài ra, sự kết hợp các màu sắc như xám, trắng phía ngoài mặt tiền cùng với vật liệu ốp đá tự nhiên một lần nữa khiến căn biệt thự 3 tầng 4 phòng ngủ trở nên hiện đại và tinh tế hơn.

Bản vẽ mặt bằng bố trí công năng



Thông tin chi tiết mẫu biệt thự:
Đặc điểm thiết kế và phối cảnh 3D biệt thự
Mặt tiền của ngôi biệt thự phố hiện đại được phân chia làm 2 khối chính rõ ràng. Gần như tất cả phần tường ngoại thất của tầng 1, tầng 2 trong công trình được sử dụng loại gạch thẻ dạng đá mảnh ốp tường ngoại thất.
Gam màu gạch được lựa chọn là tone màu ghi sáng tạo cho công trình điểm nhấn ở khu vực mặt tiền của căn nhà. Còn lại, tất cả các không gian, diện tường, cột còn lại trong mẫu nhà 3 tầng đẹp hiện đại đều được sử dụng chi tiết phẳng, trơn, nhẵn,… làm nên điểm nhấn mạnh mẽ và rõ ràng cho không gian kiến trúc, nổi bật hơn phong cách kiến trúc hiện đại.

Với việc sử dụng tone màu trắng kết hợp cùng tone màu ghi của vật liệu ốp tường cũng làm tăng thêm tính hiện đại, mới mẻ và đặc biệt nổi trội cho kiến trúc ngoại thất của công trình. Vẻ đẹp được tạo nên từ sự đối lập, sự tinh tế trong các chi tiết đã làm nên điều ấn tượng và thu hút cho từng chi tiết dù là nhỏ nhất.

Bản vẽ mặt bằng bố trí công năng



>>>> BẬT MÍ: 3 Mẫu biệt thự 3 tầng có bể bơi đẹp ấn tượng 2022
Thông tin chi tiết mẫu biệt thự:
Đặc điểm thiết kế và phối cảnh 3D biệt thự
Căn biệt thự 3 tầng 4 phòng ngủ này sử dụng các hình khối kiến trúc vuông vắn tạo nên một tổng thể vững chãi, uy nghiêm rất độc đáo, mang đậm phong cách hiện đại. Các khối kiến trúc trong toàn bộ công trình có tính kết nối với nhau về mặt màu sắc, hình dạng đồng điệu, hay cách sử dụng vật liệu, thiên nhiên, ánh sáng. Điều này tạo nên tính hài hòa và thẩm mỹ cho căn biệt thự.

Với thiết kế tối giản, không cầu kỳ, không sử dụng các họa tiết hoa văn. Thêm vào đó là sự kết hợp của màu sắc và vật liệu để tăng tính hiện đại, mới mẻ cho căn biệt thự. Phong cách thiết kế được bố trí nhiều cửa kính cùng với hệ thống cây xanh làm cho không gian của căn biệt thự thêm thoáng đãng, gần gũi với thiên nhiên.

Bản vẽ mặt bằng bố trí công năng
Nhìn chung, công năng ngôi biệt thự được chia như sau:



Thông tin chi tiết mẫu biệt thự:
Đặc điểm thiết kế và phối cảnh 3D biệt thự
Kiến trúc biệt thự mái thái của căn biệt thự toát lên sự mạnh mẽ, chắc chắn. Sự kết hợp của màu sắc đều nhẹ nhàng trang nhã mà vô cùng ấn tượng. Căn biệt thự sử dụng gam màu trắng mang lại nét tinh tế và sáng đẹp cho ngôi nhà. Các vật liệu xây dựng hiện đại và màu sắc hợp thời tạo cho thiết kế căn biệt thự hiện đại và có sức hút khó cưỡng.

Cùng với cách sử dụng vật liệu hiện đại, sang trọng thì mẫu thiết kế biệt thự 3 tầng 4 phòng ngủ hiện đại còn mang đến sự ấn tượng, bởi rằng hệ thống lan can ban công bằng kính hiện đại phù hợp với kiến trúc ngôi nhà. Điểm đặt biệt của căn biệt thự là được thiết kế theo phong cách mái thái. Toàn bộ phần mái được đổ bê tông, sau đó dán ngói lên trên tạo nên sự mới mẻ, ấn tượng và khác biệt cho ngoại thất ngôi nhà đẹp.

Bản vẽ mặt bằng bố trí công năng
Việc quy hoạch và đặt ngôi nhà trong mảnh đất xây dựng 300m2 của gia đình chị Huyền được thực hiện một cách chính xác. Sau đây là các bản vẽ mặt bằng công năng của công trình:




Đặc điểm thiết kế và phối cảnh 3D biệt thự
Mẫu biệt thự lâu đài 3 tầng được thiết kế theo phong cách kiến trúc cổ điển châu Âu sang trọng. Căn biệt thự được tạo hình vô cùng tinh xảo, hệ thống hoa văn phào chỉ nổi được đắp vẽ dày đặc. Cùng với đó là sự phối hợp 2 gam màu cổ điển hoàng gia, trắng và vàng kem giúp căn biệt thự trở nên trang nghiêm, thanh lịch.

Đặc biệt là họa tiết độc đáo được thiết kế và sắp xếp ngay chính trung tâm của căn biệt thự tạo nên điểm độc đáo và thu hút mọi ánh nhìn. Ngoài ra, sự phối hợp nhịp nhàng giữa những chi tiết nhẹ nhàng, uyển chuyển được thiết ở sảnh và phần mái đã tạo nên một sự kết hợp hài hòa, nhịp nhàng. Nổi bật hơn hết là hệ mái chóp xanh đen đẳng cấp trang trí cho ngoại thất biệt thự lâu đài thêm phần tráng lệ, nguy nga hơn.

Bản vẽ mặt bằng bố trí công năng
Không chỉ làm say đắm bất cứ ai chiêm ngưỡng bởi kiến trúc mặt tiền sang trọng, mẫu biệt thự lâu đài 3 tầng 1 tum còn mang đến không gian sống hoàn hảo và tiện nghi cho chủ đầu tư khi được KTS Sơn Hà lên phương án thiết kế bản vẽ mặt bằng công năng hoàn chỉnh, khoa học phù hợp trên tổng diện tích sàn 290m2 tại mỗi tầng.






Sơn Hà Group là thương hiệu uy tín trong lĩnh vực thiết kế nội ngoại thất và xây nhà trọn gói tại Việt Nam. Chúng tôi tự hào gắn tên trên công trình cả nước với các giải pháp thiết kế thi công nội ngoại thất đảm bảo thẩm mỹ, khoa học về công năng và tối ưu chi phí. Hầu hết khách hàng đều lựa chọn Sơn Hà Group là vì:
Trên đây là những mẫu biệt thự 3 tầng 4 phòng ngủ thiết kế đẹp và hiện đại mà Sơn Hà Group đã giới thiệu. Hi vọng sau những chia sẻ này, khách hàng sẽ có nhiều thông tin hơn để đưa ra những quyết định phù hợp. Khách hàng có nhu cầu hoặc thắc mắc có thể liên hệ với Sơn Hà Group để được hỗ trợ và tư vấn tận tình nhé.
>>>> ĐỪNG BỎ LỠ:
Ảnh khác
Bình luận