Mẫu thiết kế biệt thự hiện đại 3 tầng mang phong cách tối giản được Sơn Hà Group kiến tạo từ những mong muốn riêng của gia chủ. Một không gian sống đúng với bản sắc cá nhân - đầy cảm xúc và chiều sâu.
NỘI DUNG CHÍNH
Tầng 1: Phòng khách, Phòng bếp ăn, Sảnh chính, Sảnh phụ, wc

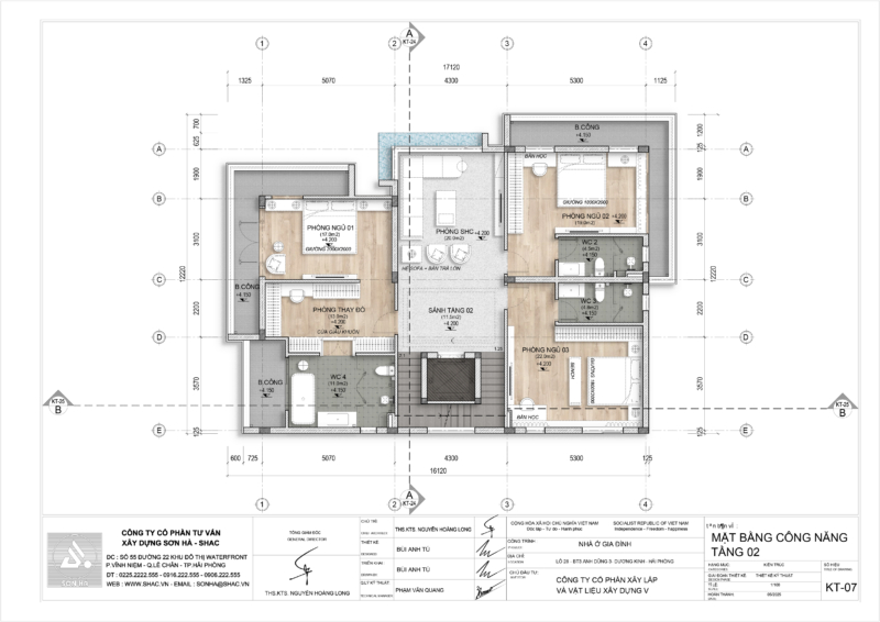
Tầng 2: 03 Phòng ngủ, 03 wc, Phòng thay đồ, Phòng sinh hoạt chung, Sảnh tầng, Ban công

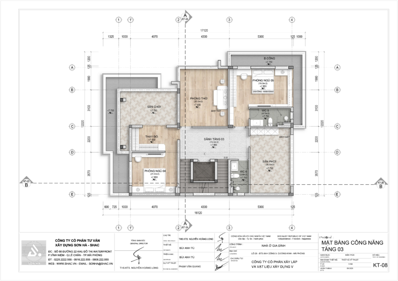
Tầng 3: 02 Phòng ngủ, 02 wc, Phòng thay đồ, Phòng thờ, Sân phơi, Sân chơi, Ban công

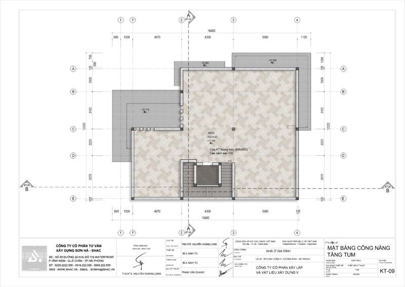
Tầng tum: Kho

Căn nhà là ấp ủ của 2 vợ chồng chị H. Chị H là Phó Giám đốc một công ty truyền thông - người phụ nữ hiện đại, mạnh mẽ, cá tính và cực kỳ rõ ràng trong gu thẩm mỹ. Căn nhà đầu tiên chị sở hữu gần như hoàn hảo trong mắt người khác: Thiết kế ấn tượng, nội thất cao cấp, đầy đủ tiện nghi. Ai đến cũng phải trầm trồ. Nhưng chỉ sau vài tháng, chị chia sẻ:
“Tôi thấy như đang sống trong nhà của người khác. Đẹp đấy, nhưng không dành cho tôi.”

Bếp thì kín đáo đến mức chị không thể vừa nấu ăn vừa trò chuyện với người thân. Phòng ngủ sang trọng nhưng lại lạnh lẽo và thiếu ánh sáng tự nhiên - thứ năng lượng mà chị yêu thích mỗi sớm mai. Còn góc làm việc được đầu tư đủ đầy, nhưng chẳng thể truyền cảm hứng như quán café nhỏ chị vẫn hay ghé. Ngôi nhà không sai - nhưng nó không đúng với chị.

Chúng tôi gặp chị khi chị đã hiểu rõ một điều: nhà không chỉ để ở. Nhà là nơi để sống, để yêu, để trở về và là chính mình. Và từ đó, hành trình thiết kế mới bắt đầu với một câu hỏi duy nhất:
“Anh chị muốn sống thế nào trong ngôi nhà của mình?”
Thiết kế biệt thự hiện đại ĐÚNG với từng gia chủ không phải là chọn màu sơn nào, gạch lát gì hay phong cách nội thất nào đang thịnh hành - mà là cách sống, thói quen, cá tính, và những khoảnh khắc chị muốn tận hưởng trong chính tổ ấm của mình.

Ngôi nhà mới là một căn biệt thự 3 tầng nằm giữa khu dân cư yên tĩnh. Toàn bộ kiến trúc được lấy cảm hứng từ triết lý tối giản Nhật Bản, kết hợp cùng sự mạnh mẽ của các khối hình học đan cài và sự tinh tế trong từng chi tiết nội thất.


Không gian bên trong là nơi giao thoa giữa tiện nghi và chất riêng. Mỗi phòng, mỗi khoảng đệm đều đóng vai trò như một lớp chuyển tiếp tự nhiên - đưa ánh sáng, gió, và cả cảm xúc nhẹ nhàng len lỏi qua từng tầng.
Khu bếp: mở hơn, sáng hơn và gần gũi - nơi chị có thể vừa nấu ăn vừa nhìn thấy nụ cười của con, tiếng trò chuyện từ phòng khách vang vọng.


Phòng ngủ: chan hòa ánh sáng tự nhiên, tối giản nội thất để dành chỗ cho sự thư giãn và những cuốn sách chị yêu thích.

Góc làm việc: chỉ một chiếc bàn nhỏ đặt cạnh khung cửa lớn - vừa đủ để sáng tạo, vừa đủ để tâm trí được thảnh thơi mỗi khi cần nghỉ.

Tất cả không gian đều liền mạch, nhẹ nhàng, đúng như cá tính của chị - một người phụ nữ hiện đại nhưng sâu sắc, yêu sự tự do nhưng cũng cần chốn về ấm cúng.

Sơn Hà Group gìn giữ vẻ đẹp mộc mạc ấy bằng tư duy thiết kế hiện đại, để mỗi căn phòng không chỉ đẹp mà còn có linh hồn. Một phong cách sống được định hình bằng chất liệu tự nhiên - giản dị nhưng sang trọng, gần gũi nhưng đẳng cấp.

Với Sơn Hà Group, thiết kế không bắt đầu bằng catalogue. Chúng tôi bắt đầu bằng việc lắng nghe. Vì một ngôi nhà không chỉ cần đẹp - mà cần đúng: đúng với người sống trong đó, đúng với thói quen, cảm xúc và cả những điều chưa nói thành lời.
Và khi khách hàng bước vào tổ ấm ấy - không phải là sự choáng ngợp - mà là cảm giác: "Đây là nhà của tôi."

Chúng tôi không xây nhà mẫu - chúng tôi đưa ra giải pháp cá nhân hóa cho từng công trình, từng gia chủ. Mỗi thiết kế là một hành trình riêng, không lặp lại, không rập khuôn.
Bạn muốn sống thế nào trong ngôi nhà của mình?
Hãy bắt đầu bằng câu hỏi đó - và Sơn Hà Group sẽ cùng bạn tìm ra câu trả lời.
Ngôi nhà của chị H giờ đây không chỉ là không gian sống - mà là nơi chị tìm thấy chính mình. Nơi mọi chi tiết đều được thiết kế để chị được là chị - một cách đúng đắn và trọn vẹn nhất.
Nếu bạn cũng đang tìm kiếm một không gian như thế - hãy để chúng tôi cùng bạn kiến tạo nên tổ ấm mang dấu ấn riêng.
>> Nhắn cho Sơn Hà Group - chúng tôi không xây nhà mẫu, chúng tôi tạo nên những không gian thuộc về bạn.
Mọi chi tiết xin liên hệ:
CÔNG TY CỔ PHẦN TƯ VẤN XÂY DỰNG SƠN HÀ (SHAC)
Trụ sở chính: Số 55, đường 22, KĐT Waterfront City, Lê Chân, Hải Phòng
Văn phòng đại diện
Ảnh khác
Bình luận