Sơn Hà Group mang đến giải pháp thiết kế biệt thự tân cổ điển 2 tầng mái Nhật tối ưu khí hậu Việt Nam, kết hợp sân vườn thư giãn, phù hợp cho gia chủ Việt kiều về quê nghỉ dưỡng.
NỘI DUNG CHÍNH

Nhu cầu xây dựng biệt thự tân cổ điển 2 tầng ngày càng tăng trong những năm gần đây, đặc biệt với những gia chủ mong muốn một không gian sống sang trọng nhưng vẫn gần gũi với thiên nhiên. Trong dự án này, chủ đầu tư là một Việt kiều đã nhiều năm sinh sống tại châu Âu, mong muốn xây dựng một nơi nghỉ dưỡng tại quê nhà - nơi ông có thể trở về và tận hưởng cuộc sống yên bình.
Tuy nhiên, để tạo ra một không gian vừa sang trọng, bền vững, vừa phù hợp khí hậu nhiệt đới gió mùa của Việt Nam, đòi hỏi một giải pháp thiết kế tổng hòa về kiến trúc, công năng và cảnh quan.
Sơn Hà Group chính là đơn vị đã nghiên cứu và đưa ra giải pháp tối ưu đó.
>>> Có thể bạn quan tâm: Biệt thự 3 tầng mái Nhật hiện đại - Tuyệt tác nghệ thuật vạn người mê từ Sơn Hà Group
Gia chủ yêu thích vẻ đẹp cổ điển châu Âu, nhưng không muốn chi tiết nặng nề, cầu kỳ.
Nhiệt độ cao, độ ẩm lớn, mưa nhiều - nếu không xử lý tốt sẽ dễ thấm dột, nóng bức, nhanh xuống cấp.

Gia chủ muốn một ngôi nhà có sân vườn rộng, có hồ nước, có góc thư giãn ngoài trời, có cảnh quan xanh mát.
Phong cách tân cổ điển giữ lại sự sang trọng, tinh tế từ kiến trúc châu Âu.
Tối giản phào chỉ để không gây nặng nề cho công trình.
Tạo vẻ đẹp thanh lịch - trường tồn theo thời gian.
Biệt thự kiểu Nhật Bản với hệ mái Nhật có độ dốc vừa phải giúp thoát nước mưa nhanh, hạn chế thấm dột.
Giảm hấp thụ nhiệt, giải quyết vấn đề nóng bức.
Tỉ lệ mái hài hòa với hình khối biệt thự 2 tầng, tạo vẻ cân đối thanh thoát.
=> Đây là giải pháp tốt nhất cho khí hậu Việt Nam và mong muốn của gia chủ.

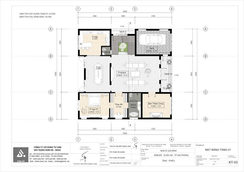
Phòng khách rộng, liên thông bếp - ăn để tăng sự kết nối giữa các thành viên.
Phòng ngủ khép kín dành cho người lớn tuổi thuận tiện sinh hoạt.
Gara xe đặt cạnh sảnh phụ, dễ di chuyển, tránh mùi vào nhà.
Ban thờ Thiên Chúa đặt vị trí trang trọng, hợp phong thủy.

3 phòng ngủ đều có WC riêng, đảm bảo riêng tư.
Phòng sinh hoạt chung là điểm kết nối cảm xúc.
Phòng karaoke cách âm, phục vụ nhu cầu giải trí tại gia.
Ban công và sân chơi mở ra không gian thư giãn thoáng mát.
=> Tổng thể công năng tạo ra nhịp sống hài hòa, thoải mái, thư giãn.

Hồ nước đặt trước nhà tạo vượng khí - mát mẻ quanh năm.
Tượng trang trí kết hợp ánh sáng tạo điểm nhấn thẩm mỹ ban đêm.

Hệ lối đi được thiết kế đường cong mềm, giảm cảm giác khô cứng, tạo sự thư thái khi bước chân.
Ghế sofa sân vườn tạo không gian đọc sách, uống trà, đón bình minh.
=> Cảnh quan không chỉ đẹp, mà còn đúng tinh thần nghỉ dưỡng.
Theo yêu cầu của gia chủ, căn biệt thự được bố trí nội thất theo phong cách Tân cổ điển luxury với không gian phòng khách bếp xa hoa, phòng ngủ tối giản nhưng vẫn đẹp cuốn hút.

Căn mẫu nhà tân cổ điển 2 tầng này là minh chứng cho việc đẹp không chỉ là thẩm mỹ, mà còn ở giải pháp phù hợp với nhu cầu và môi trường sống.
Sơn Hà Group đã:
- Chọn đúng phong cách kiến trúc.
- Chọn đúng hệ mái phù hợp khí hậu.
- Bố trí công năng thông minh.
- Tạo cảnh quan xanh mát đem lại cảm giác nghỉ ngơi.
Nếu bạn cũng muốn xây dựng một không gian sống để trở về, để an trú, để tận hưởng cuộc sống - Sơn Hà Group luôn sẵn sàng đồng hành.
Ảnh khác
Bình luận