Trong những năm gần đây, xu hướng thiết kế biệt thự 3 tầng hiện đại đang trở thành lựa chọn ưu tiên của nhiều gia đình. Không còn rườm rà phào chỉ hay quá nặng tính cổ điển, kiến trúc hiện đại hướng đến hình khối mạch lạc, vật liệu cao cấp và không gian mở tràn ngập ánh sáng tự nhiên.
Tại Hải Phòng - thành phố cảng năng động bậc nhất miền Bắc, nhu cầu xây dựng biệt thự riêng lẻ ngày càng tăng mạnh. Chủ đầu tư không chỉ tìm kiếm một ngôi nhà, mà là một không gian sống thể hiện vị thế và gu thẩm mỹ cá nhân.
Công trình Thiết kế biệt thự 3 tầng hiện đại tại Hải Phòng của gia đình anh Tuấn Anh là minh chứng rõ nét cho xu hướng đó. Với diện tích xây dựng 200m2, kiến trúc độc đáo, công năng tối ưu cho nhiều thế hệ, đây là mẫu biệt thự tiêu biểu cho phong cách sống hiện đại, đẳng cấp và bền vững với khí hậu biển.
NỘI DUNG CHÍNH

Ngay từ buổi trao đổi đầu tiên, gia chủ đã xác định rõ 4 tiêu chí cốt lõi mà bản vẽ cần có đó là:
Những yêu cầu này trở thành nền tảng để đội ngũ kiến trúc sư Sơn Hà triển khai phương án Thiết kế biệt thự 3 tầng hiện đại vừa đảm bảo thẩm mỹ, vừa tối ưu kỹ thuật.

Quan sát tổng thể công trình, chúng ta có thể thấy rõ tinh thần hiện đại được thể hiện qua:
Tầng 1 sử dụng mảng khối đặc chắc chắn làm nền cho toàn bộ công trình. Tầng 2 và 3 được xử lý nhẹ hơn bằng kính và lam nhựa giả gỗ trang trí, tạo cảm giác thanh thoát. Phần mái dốc cách điệu giúp tổng thể căn biệt thự hiện đại không bị khô cứng như các mẫu nhà hộp thông thường.
Đây là điểm nổi bật giúp thiết kế biệt thự 3 tầng hiện đại tại Hải Phòng này tạo dấu ấn khác biệt so với các công trình lân cận.
Giá trị kiến trúc không chỉ đến từ hình khối mà còn từ cách lựa chọn vật liệu:
Sự kết hợp giữa đá - nhựa vân gỗ - kính tạo nên bảng màu trung tính sang trọng. Vật liệu không quá cầu kỳ nhưng được phối hợp tinh tế, đúng tinh thần thiết kế biệt thự hiện đại cao cấp.
Khác với mái bằng đơn thuần, công trình sử dụng mái dốc nhẹ kết hợp viền mái đua rộng. Giải pháp này giúp căn biệt thự:
Ngoài ra ban công các tầng đều bố trí cây xanh, tạo lớp đệm sinh thái tự nhiên. Đây là chi tiết quan trọng trong thiết kế biệt thự 3 tầng hiện đại giúp công trình hài hòa hơn với môi trường sống.
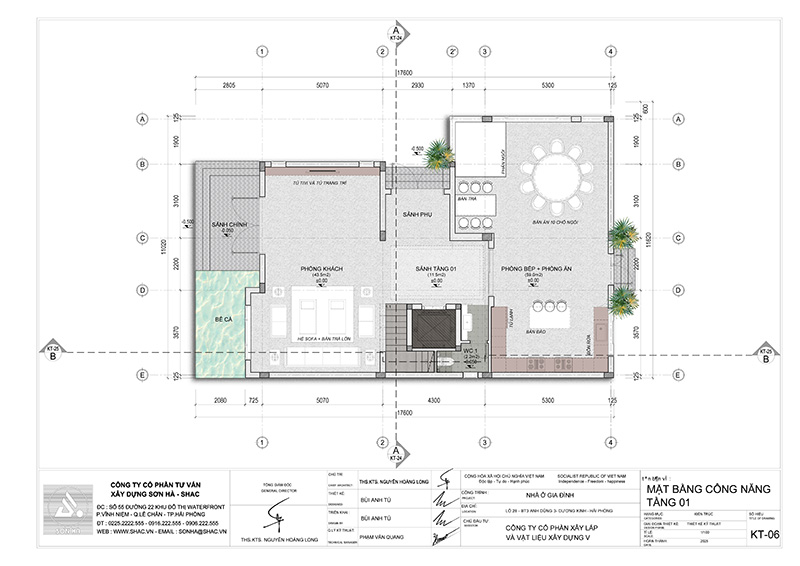
Đằng sau diện mạo ấn tượng là sự tính toán kỹ lưỡng về công năng. Giải pháp sắp xếp không gian được các KTS của Sơn Hà Group triển khai như sau:

Tầng 1 được quy hoạch mở, liên thông nhưng vẫn có sự phân định rõ ràng:

Gỗ tự nhiên được sử dụng làm vật liệu chủ đạo, phủ lên không gian gam màu ấm áp tựa ánh nắng cuối ngày, vừa tôn lên vẻ sang trọng vừa gợi cảm giác an yên nhẹ nhàng.

Hương thơm của gỗ thoảng trong không khí, len lỏi khắp căn nhà như một lời chào tinh tế gửi đến những vị khách ghé thăm. Nhờ đó, từng bước chân trở nên chậm rãi hơn, tâm trí cũng dịu lại giữa nhịp sống thường nhật.

Không chỉ dừng ở giá trị thẩm mỹ, chất liệu tự nhiên này còn khơi gợi những rung cảm rất riêng. Khi chạm tay vào từng thớ gỗ, có thể cảm nhận được độ mịn màng, chắc chắn và sức sống bền bỉ ẩn sâu bên trong - một nét đẹp pha chút hoài niệm, chút ấm nồng và cả sự kiêu hãnh đầy tinh tế. Chính điều đó làm cho tổng thể không gian thêm phần sâu lắng, nghệ thuật và đủ mềm mại để nâng niu mọi khoảnh khắc sum vầy.
Ở góc nhìn phong thuỷ, gỗ tự nhiên còn tượng trưng cho sự sinh trưởng và cân bằng, góp phần lan tỏa nguồn năng lượng tích cực, mang đến cảm giác hài hòa và may mắn cho gia chủ.

Tiếp nối ngôn ngữ thiết kế của phòng khách, vật liệu chủ đạo được sử dụng cho không gian bếp - ăn 59m2 vẫn là gỗ tự nhiên. Với bàn ăn 10 chỗ, khu vực này trở thành tâm điểm kết nối, nơi cả gia đình quây quần trong những ngày lễ Tết hay những buổi tiệc cuối tuần rộn ràng.

Sảnh phụ kết hợp cùng khoảng đệm sân trước hình thành một lớp chuyển tiếp mềm mại giữa bên ngoài và không gian bên trong ngôi nhà. Nhờ cách tổ chức này, luồng di chuyển được phân tách rõ ràng, đảm bảo sự thông suốt và linh hoạt, đặc biệt thuận tiện trong những dịp gia đình đón tiếp đông khách.

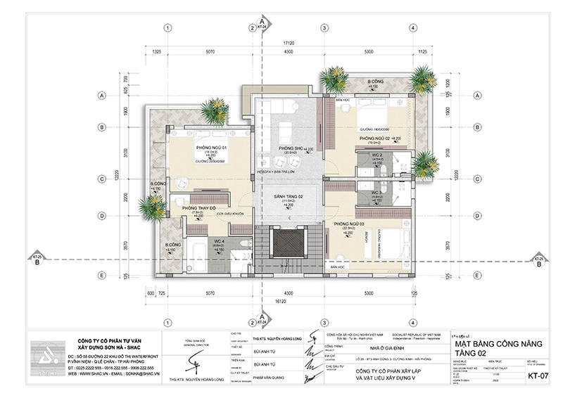
Tầng 2 được thiết kế như Resort riêng tư” của các thành viên trong gia đình. Tại đây, không gian sử dụng được ưu tiên cả về diện tích lẫn trải nghiệm sống. Trong tổng thể Thiết kế biệt thự 3 tầng, phòng ngủ master và các phòng ngủ phụ tầng 2 được tổ chức khoa học, tối ưu ánh sáng tự nhiên, đảm bảo sự thoải mái lâu dài.
Phòng ngủ master được định hướng như một “suite nghỉ dưỡng tại gia” - nơi tái tạo năng lượng và thể hiện phong cách sống của gia chủ.

Căn phòng đón trọn nguồn sáng tự nhiên qua hệ cửa kính lớn mở ra ban công phủ sắc xanh dịu mát. Sàn gỗ tông ấm cùng vách ốp đầu giường tạo nên tổng thể hài hòa và sang trọng. Tại vị trí trung tâm, giường king size đặt cân đối, tôn lên vẻ bề thế và chuẩn mực trong bố cục thẩm mỹ.

Với thiết kế chuẩn VIP, đề cao sự riêng tư và trải nghiệm nghỉ ngơi trọn vẹn, không gian ngủ được tách biệt hoàn toàn khỏi khu thay đồ và vệ sinh, đảm bảo sự yên tĩnh tuyệt đối, không bị vướng hệ tủ quần áo hay các hoạt động sinh hoạt khác.

Khu thay đồ bố trí riêng biệt, kết nối tinh tế với WC khép kín tạo thành một trục công năng thuận tiện và khoa học. Lavabo đôi cùng vách kính tắm hiện đại nâng tầm tiện nghi, trong khi sự phân tách hợp lý giữa các khu vực giúp mỗi thành viên sử dụng thoải mái mà không ảnh hưởng đến người còn lại. Tổng thể phòng master không chỉ sang trọng mà còn được tính toán kỹ lưỡng để tối ưu công năng và trải nghiệm.

Đây không chỉ là một phòng ngủ, mà là không gian khẳng định đẳng cấp trong tổng thể thiết kế biệt thự hiện đại dành cho gia chủ thành đạt tại Hải Phòng.
Bên cạnh phòng master sang trọng, các phòng ngủ phụ tầng 2 trong căn biệt thự 3 tầng hiện đại diện tích 200m2 này được định hướng như những không gian cá nhân hóa - nơi mỗi thành viên đều có “thế giới riêng” đầy đủ tiện nghi và cảm xúc.

Với diện tích dao động từ 19m2 đến 22m2, không gian đủ rộng để sắp xếp giường cỡ lớn, tủ âm tường cùng bàn học hoặc bàn làm việc đặt cạnh cửa sổ một cách gọn gàng và khoa học. Hệ cửa kính mở ra ban công không chỉ đưa ánh sáng tự nhiên vào phòng mà còn đón gió trời, giúp không khí lưu thông liên tục và giữ cho căn phòng luôn thoáng đãng, dễ chịu.

Tông màu nội thất được xử lý linh hoạt theo từng độ tuổi - có thể trẻ trung, năng động cho con cái hoặc ấm áp, tối giản nếu dành cho ông bà. WC riêng khép kín mang lại sự thuận tiện và nâng cao tính riêng tư, thể hiện rõ tư duy thiết kế biệt thự hiện đại chú trọng trải nghiệm sống cá nhân.


Với diện tích rộng rãi và bố trí trung tâm, không gian này đóng vai trò như phòng khách thu nhỏ - nơi mọi người có thể trò chuyện, xem phim hoặc thư giãn cùng nhau trước khi trở về phòng riêng. Hệ cửa mở ra ban công giúp căn phòng luôn sáng và thông thoáng, tạo cảm giác dễ chịu suốt cả ngày.

Thiết kế nội thất ưu tiên sự thoải mái với sofa êm ái, kệ tivi gọn gàng và ánh sáng ấm áp. Nhờ cách tổ chức hợp lý, phòng sinh hoạt chung trong tổng thể thiết kế biệt thự 3 tầng trở thành nơi gắn kết các thế hệ trong một không gian hiện đại và đầy tính nhân văn.

Đây chính là giá trị cốt lõi mà công trình biệt thự 3 tầng tại Hải Phòng hướng tới - mỗi thành viên đều được tôn trọng không gian riêng, nhưng vẫn sống trong một tổng thể kiến trúc hài hòa và đẳng cấp.


Nếu tầng 2 là không gian nghỉ dưỡng riêng tư, thì tầng 3 trong Thiết kế biệt thự hiện đại tại Hải Phòng lại mang sắc thái trầm lắng hơn - nơi dành cho sự tĩnh tại, mở rộng và cân bằng cảm xúc.

Các phòng ngủ tầng 3 được bố trí linh hoạt với diện tích từ 14m2 đến 22m2, đảm bảo đầy đủ giường lớn, tủ âm tường và cửa mở ra ban công hoặc sân chơi. Ánh sáng tự nhiên được khai thác tối đa qua hệ cửa kính, kết hợp khoảng sân thoáng giúp không khí lưu thông liên tục. Không gian vì thế luôn sáng, thoáng và nhẹ nhàng - rất phù hợp cho phòng ngủ của khách hoặc con lớn cần sự độc lập.


Điểm nhấn đặc biệt của tầng 3 là phòng thờ riêng biệt 16m2 sử dụng hoàn toàn gỗ tự nhiên mang lại gam màu ấm áp.

Tọa lạc ở vị trí cao nhất của ngôi nhà, mang đến cảm giác trang nghiêm và tĩnh lặng. Khoảng lùi phía trước đóng vai trò như một lớp đệm, giúp khu vực thờ cúng tách biệt với không gian nghỉ ngơi, giữ trọn sự riêng tư và thanh tịnh cần có.
Thiết kế biệt thự Hải Phòng không thể bỏ qua yếu tố khí hậu đặc thù - nóng ẩm, mưa nhiều, gió biển mạnh.

Giải pháp này giúp giảm phụ thuộc điều hòa, tiết kiệm năng lượng.

Những chi tiết này giúp Thiết kế biệt thự 3 tầng hiện đại tại Hải Phòng bền vững theo thời gian.

Trong thiết kế biệt thự Hải Phòng, giải pháp xử lý nắng hướng Tây được tính toán kỹ để giảm bức xạ nhiệt buổi chiều.
Hệ lam che nắng kết hợp mảng đua ban công rộng tạo lớp chắn trực tiếp cho cửa kính, đồng thời cây xanh tầng cao đóng vai trò như lớp lọc nhiệt tự nhiên. Nhờ đó, không gian bên trong luôn mát mẻ hơn, hạn chế hấp thụ nhiệt và tăng hiệu quả tiết kiệm năng lượng.
Chi phí thiết kế biệt thự 3 tầng không cố định mà phụ thuộc vào:
Đối với các công trình cao cấp như dự án này, hồ sơ thiết kế cần thể hiện đầy đủ kiến trúc - kết cấu - điện nước để đảm bảo thi công chính xác.

Sơn Hà Group triển khai dự án theo quy trình chuyên nghiệp:
Quy trình này đảm bảo Thiết kế biệt thự 3 tầng hiện đại tại Hải Phòng được hiện thực hoá theo mong muốn của chủ đầu tư.
Với kinh nghiệm thực chiến suốt 23 năm, Sơn Hà không chỉ thiết kế thi công trọn gói mà còn kiến tạo giá trị sống bền vững.
Anh chỉ có thể tham khảo 1 số công trình biệt thự 3 tầng hiện đại do Sơn Hà Group thiết kế thi công tại đây:
>>> Mẫu thiết kế biệt thự 3 tầng hiện đại tại Vũng Tàu - Không gian sống phá cách với sân BBQ trên tầng thượng của nữ gia chủ trẻ
>>> Biệt thự 3 tầng mái Nhật hiện đại - Tuyệt tác nghệ thuật vạn người mê từ Sơn Hà Group
>>> Biệt thự hiện đại 3 tầng tại Kiên Giang - Dấu ấn Sơn Hà giữa miền Tây Nam Bộ
Biệt thự 3 tầng hiện đại diện tích 200m2 của gia đình anh Tuấn Anh là sự hòa quyện tinh tế giữa vẻ đẹp kiến trúc và cách tổ chức không gian khoa học. Những đường nét ngoại thất khỏe khoắn, kết hợp cùng vật liệu cao cấp và giải pháp thích ứng với khí hậu biển, tạo nên một tổng thể sang trọng, tối ưu công năng để mang lại trải nghiệm sống tiện nghi cho cả gia đình.

Nếu bạn đang tìm kiếm một phương án thiết kế biệt thự Hải Phòng vừa sang trọng vừa bền vững, hãy để Sơn Hà Group đồng hành.
Đăng ký tư vấn thiết kế biệt thự tại Hải Phòng ngay hôm nay để sở hữu không gian sống xứng tầm đẳng cấp của bạn.
Ảnh khác
Bình luận