Hôm nay, với tư cách là KTS của Sơn Hà, tôi muốn mời bạn cùng đồng hành trong một hành trình đặc biệt - một tour 3D bằng chính trí tưởng tượng của bạn, nơi mọi cảm xúc, âm thanh và ánh sáng như đang sống động ngay trước mắt. Và công trình chúng ta ghé thăm hôm nay không chỉ là một ngôi nhà, mà là nơi trái tim gia tộc được nâng niu, gìn giữ qua nhiều thế hệ.
Không gian ấy chính là một thiết kế biệt thự hình chữ U mang phong cách Indochine sang trọng, hoài niệm, dịu dàng mà sâu lắng. Một công trình được kiến tạo từ bản vẽ 2D đến phối cảnh ngoại thất 3D, gửi gắm tâm huyết của gia chủ và sự tinh tế của đội ngũ Sơn Hà.
NỘI DUNG CHÍNH

Hãy nhắm mắt trong một thoáng, bạn sẽ cảm nhận mình đang đứng trước cánh cổng biệt thự. Trước mắt bạn là mái ngói gạch đỏ trầm, những đường cong lan can gỗ, những chi tiết kim loại uốn mềm mại - tất cả tạo nên vẻ đẹp đặc trưng của thiết kế biệt thự phong cách indochine.
Nắng ban mai rọi lên bức tường sơn giả vữa mịn màng, tạo cảm giác như đang đứng trước một công trình sống cùng thời gian. Gió nhẹ đưa hương gỗ thoang thoảng, khẽ đánh thức ký ức về kiến trúc Pháp cổ hòa quyện hơi thở Á Đông - tinh thần Indochine mà Sơn Hà luôn gìn giữ.
Khi bước đến sảnh chính, bố cục thiết kế biệt thự hình chữ U phong cách indochine dần hiện rõ. Không gian mở rộng hai cánh như vòng tay ôm trọn mọi thành viên trong nhà, dẫn bạn tiến sâu hơn vào trung tâm - nơi linh thiêng nhất của ngôi biệt thự.

Bước chân bạn như chậm lại khi tiến gần trung tâm: Nhà thờ gia tộc. Đây không chỉ là linh hồn của toàn bộ công trình, mà còn là nơi quá khứ và hiện tại giao thoa, nơi mỗi hoa văn gỗ đều kể một câu chuyện về cội nguồn.
Ánh sáng vàng từ hệ cửa Indochine đổ xuống, chạm vào từng chi tiết chạm trổ, khiến bạn như cảm nhận được nhịp thở của ký ức, của gia phong được nâng niu qua nhiều thế hệ.
Rời gian thờ, cánh cửa dẫn bạn bước thẳng vào một khoảng trời xanh mướt. Tiểu cảnh sân vườn mở ra như một nốt lặng bình yên giữa bản hòa âm kiến trúc.

Tiếng chim, tiếng gió, tiếng nước róc rách hòa vào nhau như một giai điệu thư thái. Lối lát đá dẫn bạn đi qua những mảng xanh mềm mại, tre nhỏ đung đưa gợi lại hình ảnh làng quê Việt, tạo nên sự kết nối hài hòa giữa kiến trúc và thiên nhiên - đúng tinh thần thiết kế biệt thự chữ U mà chúng tôi hướng đến.

Bạn theo chúng tôi bước lên cầu thang gỗ ấm màu, từng nhịp chân như vang lên âm sắc của kiến trúc Đông Dương. Trên tầng hai, ban công rộng mở cho bạn tầm nhìn toàn cảnh biệt thự phong cách Indochine.
Từ đây, bạn thấy rõ sự hòa quyện tuyệt đẹp giữa mái ngói đỏ, lan can nghệ thuật, những vòm cong Pháp cổ và hệ cửa gỗ truyền thống. Tất cả hòa thành bản giao hưởng Indochine mềm mại và thanh lịch.
Những buổi chiều quây quần, tiếng cười trẻ thơ, khung trời mở rộng... khiến bạn hiểu rằng nơi này được tạo ra không chỉ để sống, mà để giữ gìn yêu thương.
Gió trên tum mạnh hơn, nắng vàng hơn. Nhìn từ đây, toàn bộ biệt thự hình chữ U như một vòng tay ôm trọn cuộc sống gia đình - một sự che chở vô hình từ tổ tiên dành cho con cháu.
Để giữ trọn tinh thần Indochine và tối ưu trải nghiệm sống cho đại gia đình nhiều thế hệ, chúng tôi đã nghiên cứu kỹ lưỡng và sắp đặt công năng một cách khoa học. Trong quá trình thực hiện mẫu thiết kế biệt thự hình chữ U, toàn bộ không gian được tối ưu theo hướng tiện nghi - hợp lý - liền mạch, giúp gia chủ cảm nhận sự thoải mái trong từng bước di chuyển.
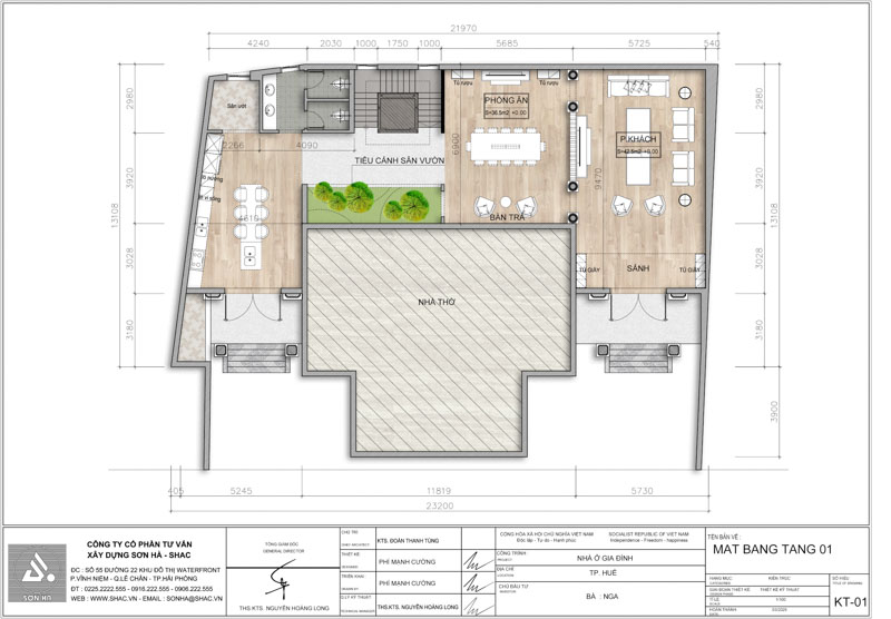
Tổng thể gồm 5 tầng và 1 tầng tum, được bố trí như sau:

Khi bạn quay lại tầng một trong hành trình tour 3D, bạn sẽ nhận ra ngay cảm giác thoáng rộng mà chiều cao thông sàn 5m mang lại. Không gian này như nơi giao lưu cảm xúc của cả gia đình, gồm:
Bố cục chữ U cho phép tầm nhìn mở thẳng về khu nhà thờ ở trung tâm, tạo cảm giác gia tộc luôn ở cạnh nhau.

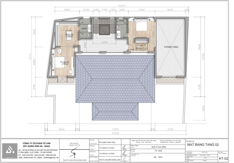
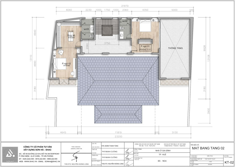
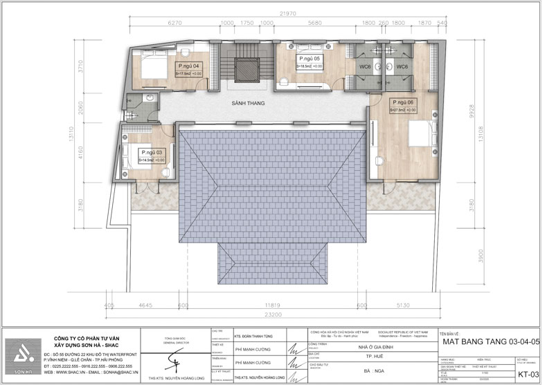
Khi bước lên tầng hai, bạn cảm nhận ngay sự yên bình của không gian nghỉ ngơi. Tầng này được bố trí:
Đây là tầng đóng vai trò cầu nối giữa sinh hoạt và tâm linh, được KTS chú trọng phong thủy và thẩm mỹ.

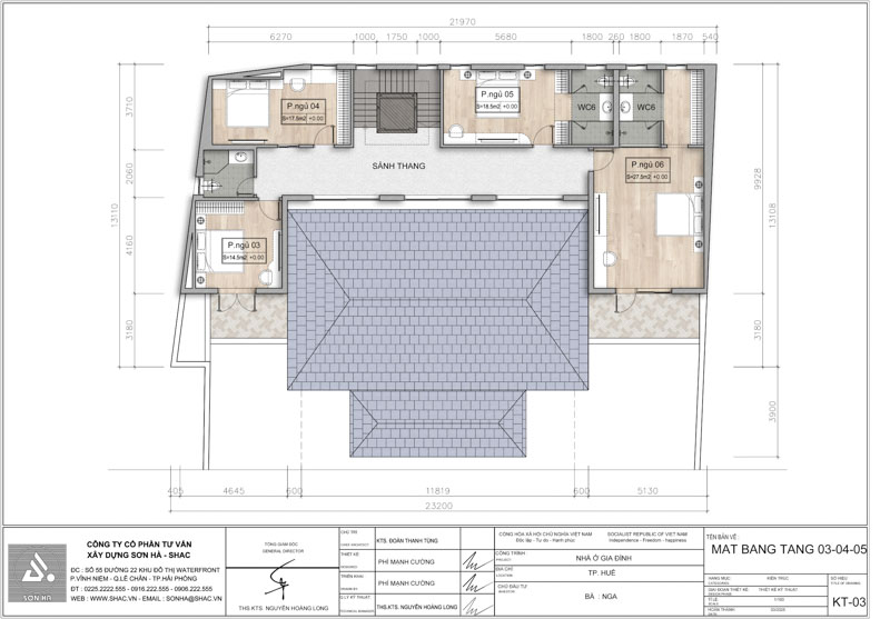
Ba tầng trên được thiết kế tương đồng, tối ưu cho gia đình đông người:
Nhờ ưu thế của thiết kế biệt thự hình chữ U, toàn bộ phòng ngủ đều nhận được nắng gió tự nhiên, mang đến cảm giác nghỉ dưỡng như resort.
Khi hành trình tour 3D khép lại, có lẽ bạn vẫn mang theo cảm giác ấm áp như được ôm trọn bởi chính không gian này.
Bởi với Sơn Hà, chúng tôi không chỉ thiết kế nhà, mà còn kiến tạo những giá trị gia đình - nơi yêu thương được nuôi dưỡng và gìn giữ qua nhiều thế hệ.

Nếu bạn đang ấp ủ một tổ ấm mang dấu ấn riêng, hãy để Sơn Hà đồng hành cùng bạn từ bản phác đầu tiên đến từng hơi thở cuối cùng của công trình.
Ảnh khác
Bình luận