Căn biệt thự hiện đại kết hợp kinh doanh tại Bình Chánh là minh chứng cho hành trình biến ước mơ thành hiện thực sau nhiều năm tích góp. Khám phá mẫu thiết kế do Sơn Hà Group thực hiện - nơi công năng, thẩm mỹ và cảm xúc hòa quyện.
NỘI DUNG CHÍNH
Mỗi căn nhà đều ẩn chứa một câu chuyện. Và câu chuyện của căn biệt thự hiện đại kết hợp kinh doanh tại Bình Chánh này bắt đầu từ ước mơ giản dị: tạo dựng một nơi an cư, đồng thời mở ra cơ hội kinh doanh bền vững.

Sau nhiều năm nỗ lực, gia chủ quyết định biến ước mơ ấy thành hiện thực. Ông mong muốn một không gian sống thật hiện đại, đẹp và sang trọng, nhưng vẫn chan chứa giá trị gia đình. Đồng thời, ngôi nhà cũng phải là “người bạn đồng hành” trong hành trình kinh doanh - tạo thêm nguồn thu nhập và giá trị lâu dài.
Và đó chính là lúc Sơn Hà Group được tin tưởng giao phó trọng trách - hiện thực hóa giấc mơ bằng một công trình biệt thự kinh doanh đầy cảm hứng.

Căn biệt thự tọa lạc tại Bình Chánh, với quy mô 1 hầm - 1 trệt - 3 lầu - 1 tum. Ngay từ ánh nhìn đầu tiên, công trình đã gây ấn tượng mạnh bởi phong cách thiết kế biệt thự hiện đại: khỏe khoắn, tinh tế và sang trọng.
Mỗi mảng khối, đường nét kiến trúc đều được tính toán kỹ lưỡng, vừa toát lên vẻ hiện đại, vừa giữ được sự mềm mại nhờ cây xanh và những khoảng thông thoáng.
Đặc biệt, sự phân chia công năng không chỉ để ở mà còn phục vụ kinh doanh linh hoạt. Đó chính là sự tinh tế trong tư duy thiết kế của đội ngũ Sơn Hà Group.

Tầng hầm là nơi cất giữ những tài sản giá trị, từ ô tô, xe máy cho đến kho chứa đồ. Không gian này được thiết kế rộng rãi, dốc thoải hợp lý, xe bán tải và xe máy di chuyển dễ dàng.

Bên cạnh đó, việc bố trí thang máy kính và thang bộ ngay trong hầm giúp kết nối tiện lợi đến toàn bộ các tầng trên.
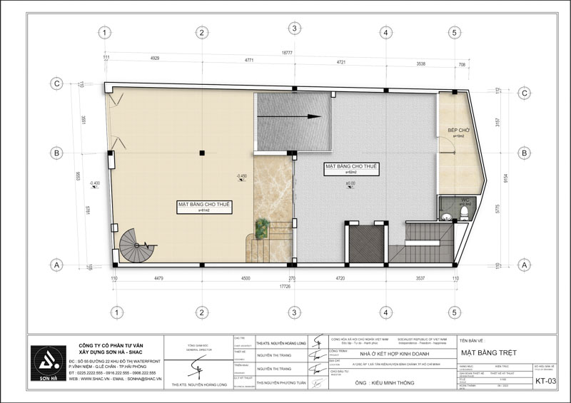
Tầng trệt của căn biệt thự hiện đại kết hợp kinh doanh được gia chủ dành trọn cho mục đích khai thác thương mại. Toàn bộ mặt bằng được thiết kế thoáng rộng, phù hợp để bố trí showroom, cửa hàng hoặc cho thuê kinh doanh.

Ngay lối vào, thang máy kính và thang bộ được đặt ở vị trí trung tâm, giúp khách hàng và gia chủ dễ dàng di chuyển giữa các tầng. Bên cạnh đó, khu bếp chờ tinh gọn được thiết kế để hỗ trợ nhu cầu phục vụ khi cần, đồng thời vẫn giữ sự sang trọng, gọn gàng cho tổng thể không gian.
Một điểm nhấn quan trọng là WC được bố trí lùi về phía sau, vừa đảm bảo tính tiện dụng cho khách thuê vừa giữ sự riêng tư, sạch sẽ cho toàn khu vực.
Với cách sắp xếp công năng hợp lý, tầng trệt không chỉ là nơi kinh doanh hiệu quả mà còn thể hiện tầm nhìn xa của gia chủ – biến không gian sống thành nguồn sinh lợi bền vững.
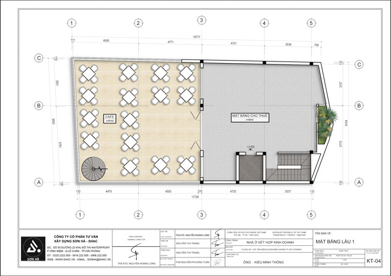
Lầu 1 là một quán café hiện đại, nơi ánh sáng chan hòa qua những khung cửa kính lớn. Đây không chỉ là điểm kinh doanh mà còn là nơi lưu giữ khoảnh khắc, nơi mỗi vị khách ngồi lại đều cảm nhận sự thư thái.

Bên cạnh đó, diện tích còn lại có thể linh hoạt làm mặt bằng cho thuê, tối ưu hiệu quả khai thác kinh tế.

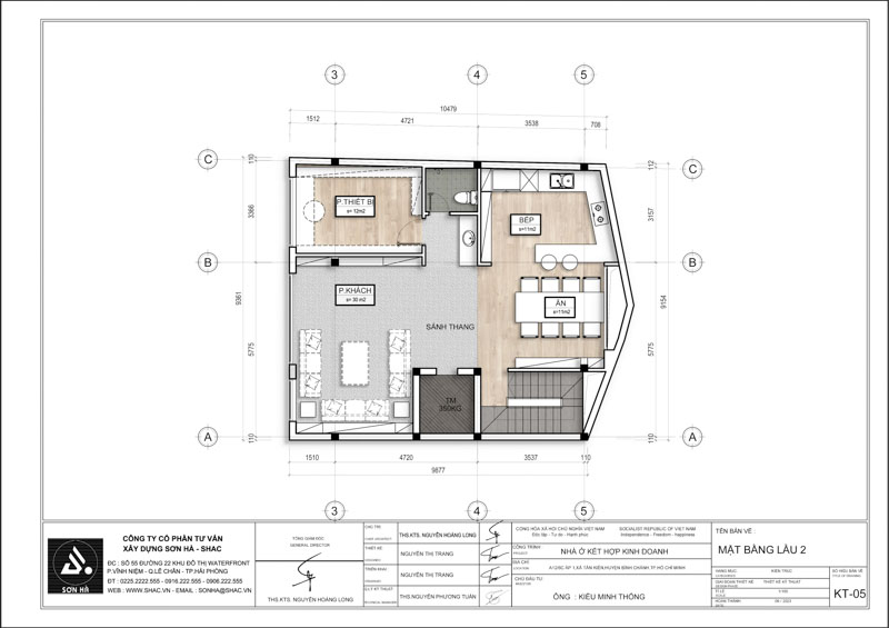
Lầu 2 được dành riêng cho những phút giây đoàn viên. Nơi đây bao gồm phòng khách, phòng thiết bị, bếp và phòng ăn. Thiết kế mở giúp các thành viên dễ dàng kết nối, chia sẻ, để mỗi bữa cơm không chỉ là bữa ăn mà còn là kỷ niệm.

Ba phòng ngủ khép kín được bố trí thông minh, mỗi phòng đều có WC riêng, cửa sổ lớn và ban công thoáng đãng. Đây là không gian để mỗi thành viên có thể “rút lui” về sự yên bình sau ngày dài, tận hưởng giấc ngủ trọn vẹn.

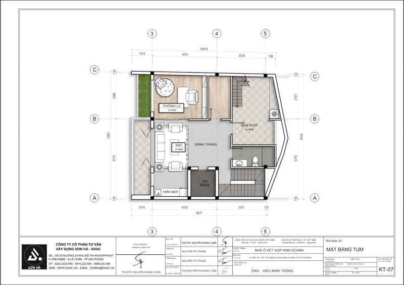
Tum không chỉ là không gian kỹ thuật mà còn là nơi phòng sinh hoạt chung và phòng làm việc được bố trí. Đây chính là “trạm kết nối” của gia đình - nơi cả nhà cùng nhau sum vầy, cùng uống trà, trò chuyện, hay cùng nhau làm việc, học tập.

Trên cùng là sân uống trà đầy thi vị, nơi gia chủ có thể ngắm nhìn không gian xung quanh. Phía sau, các thiết bị kỹ thuật (cục nóng điều hòa, téc nước, bình năng lượng mặt trời 10kw) được bố trí gọn gàng, vừa đảm bảo thẩm mỹ vừa vận hành hiệu quả.

Phong cách hiện đại: Mạnh mẽ nhưng tinh tế, sang trọng nhưng vẫn gần gũi.
Công năng thông minh: Sống - kinh doanh song song, không chồng chéo mà bổ trợ lẫn nhau.
Không gian xanh: Cây xanh len lỏi khắp nơi, từ ban công đến mái, tạo cảm giác gần gũi thiên nhiên.
Giá trị cảm xúc: Đây không chỉ là một ngôi nhà, mà là giấc mơ thành hiện thực, là thành quả của cả hành trình dài.

Với kinh nghiệm hơn 22 năm trong lĩnh vực thiết kế biệt thự hiện đại đẹp, Sơn Hà Group đã trở thành cái tên quen thuộc cho những công trình kiến trúc mang tính biểu tượng.
Ở dự án này, đội ngũ KTS không chỉ đơn thuần thiết kế - họ đã lắng nghe, thấu hiểu để cùng gia chủ viết nên câu chuyện về một tổ ấm, một không gian kinh doanh, và trên hết là một giấc mơ được chạm đến.
| STT | LOẠI HÌNH CÔNG TRÌNH | GÓI THIẾT KẾ | THỜI GIAN | |||
|---|---|---|---|---|---|---|
| THIẾT KẾ KIẾN TRÚC | THIẾT KẾ NỘI THẤT | |||||
| 1 | Biệt thự | Biệt thự hiện đại | 180.000đ/m2-200.000đ/m2 | 180.000đ/m2 – 200.000đ/m2 | 8.000.000đ – 10.000.000đ/phòng | - Kiến trúc = 45-60 ngày (Tuỳ thuộc vào dòng kiến trúc thiết kế)
- Nội thất = 70 ngày |
| 2 | Biệt thự tân cổ điển | 180.000đ/m2-200.000đ/m2 | 180.000đ/m2 – 200.000đ/m2 | 8.000.000đ – 10.000.000đ/phòng | ||
| 3 | Biệt thự kiểu Pháp | 200.000đ/m2-220.000đ/m2 | 200.000đ/m2 – 250.000đ/m2 | 8.000.000đ – 10.000.000đ/phòng | ||
| 4 | Biệt thự vườn | 200.000đ/m2-220.000đ/m2 | 200.000đ/m2-250.000đ/m2 | 8.000.000đ – 10.000.000đ/phòng | ||
| 5 | Biệt thự lâu đài | 250.000đ/m2-300.000đ/m2 | 250.000đ/m2 – 300.000đ/m2 | 10.000.000đ/phòng – 15.000.000đ/phòng | ||
Trên đây là bảng giá thiết kế biệt thự của Sơn Hà Group theo loại hình kiến trúc. Để được tư vấn chi tiết về thiết kế và giá xây dựng, gia chủ hãy liên hệ với Sơn Hà Group qua hotline 0906.222.555 hoặc để lại thông tin muốn tư vấn qua form sau.

Mẫu thiết kế biệt thự hiện đại kết hợp kinh doanh tại Bình Chánh chính là sự giao hòa giữa khát khao - nỗ lực - và thành quả. Không chỉ mang đến không gian sống hiện đại, tiện nghi, công trình còn khẳng định tầm nhìn dài hạn trong việc kết hợp sinh hoạt và kinh doanh.
Nếu bạn cũng đang ấp ủ giấc mơ về một căn biệt thự kinh doanh, vừa là nơi an cư, vừa là nền tảng phát triển sự nghiệp, hãy để Sơn Hà Group đồng hành cùng bạn.
Mọi chi tiết xin liên hệ:
CÔNG TY CỔ PHẦN TƯ VẤN XÂY DỰNG SƠN HÀ (SHAC)
Trụ sở chính: Số 55, Đường 22, KĐT Waterfront City, Phường Lê Chân, TP. Hải Phòng
CÁC VĂN PHÒNG ĐẠI DIỆN
Ảnh khác