Trong những năm gần đây, mẫu biệt thự 3 tầng mặt tiền 15m đang ngày càng được ưa chuộng. Có không ít khách hàng tìm kiếm thông tin về chúng để thực hiện đầu tư cũng như phục vụ cho nhu cầu nhà ở. Cùng Sơn Hà Group tham khảo những mẫu biệt thự 3 tầng đẹp và ấn tượng dưới đây nhé!
>>>> XEM THÊM: 100 Mẫu thiết kế biệt thự hiện đại 3 tầng đẹp, đẳng cấp 2022
NỘI DUNG CHÍNH
Thông tin chi tiết mẫu biệt thự:
Ngay từ cái nhìn đầu tiên, bất cứ ai cũng sẽ bị ấn tượng bởi mặt tiền được thiết kế vô cùng đặc biệt của biệt thự 3 tầng mặt tiền 15m này. Với phong cách thiết kế bất đối xứng kết hợp với các mảng hình khối độc đáo, căn biệt thự đã thành công thu hút sự chú ý của các nhà đầu tư. Một trong những điều làm nên sự thành công trong kiến trúc của mẫu nhà biệt thự 3 tầng đẹp này đó chính là màu sắc. Các gam màu xám, kem, đen phối hợp nhịp nhàng với nhau đã làm cho căn biệt thự trở vô cùng tinh tế và sang trọng trong từng chi tiết.

Có thể nói, phong cách tối giản hiện đại là một ngọn gió mới, nó đang rất được ưa chuộng hiện nay. Mẫu thiết kế biệt thự này được thiết kế với các chi tiết vô cùng đơn giản nhưng lại rất sang trọng. Chất liệu kính được sử dụng xuyên suốt để làm khung cửa sổ trông vô cùng hiện đại.

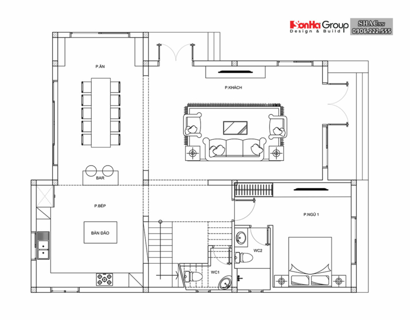
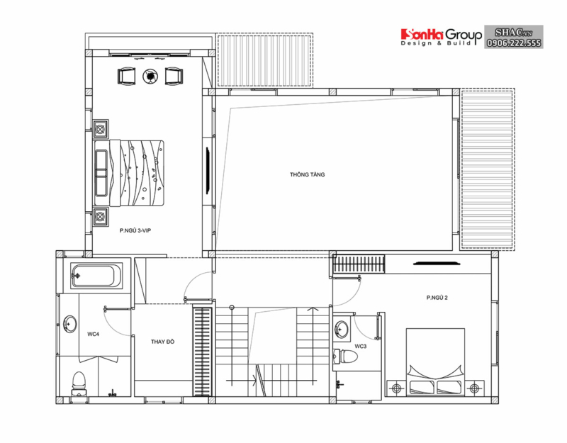
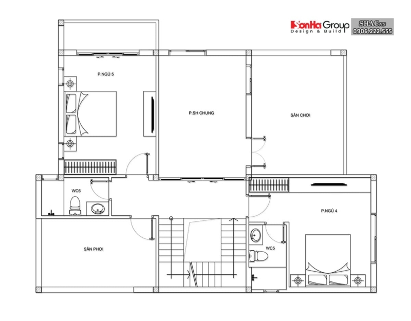
Sở hữu diện tích đất 300m2, các công năng và tiện ích trong căn nhà được bố trí vô cùng hợp lý. Tầng 1 của biệt thự được dành làm không gian chung. Tầng 2 là phòng ngủ và tầng 3 là sân chơi. Cụ thể:



>>>> CLICK NGAY: 15 Mẫu biệt thự 3 tầng 2 mặt tiền sang trọng, đầy thu hút
Thông tin chi tiết mẫu biệt thự:
Tiêu chí trẻ trung, hiện đại được lấy làm phong cách thiết kế chính cho mẫu biệt thự 3 tầng mặt tiền 15m này. Hình khối kiến trúc đa dạng kết hợp với nhau tạo nên tính thẩm mỹ cho cả căn biệt thự. Bên cạnh đó, mặt tiền được trang trí cực kỳ mãn nhãn khi khéo léo sử dụng gạch thẻ màu sắc lạ mắt đi kèm với phần kính ở ban công.

Căn biệt thự có đường nét vuông vắn, kiến trúc hiện đại với mái thái. Ngoài ra, tất cả cửa kính lớn đều hướng ra mặt tiền giúp tận dụng triệt để nguồn ánh sáng tự nhiên. Điều này giúp tạo nên những khoảng không gian sống độc đáo, mới mẻ và thân thiện với thiên nhiên.

Căn biệt thự này có quy mô hoành tráng, 3 tầng rộng lớn chứa đầy đủ các tiện nghi. Mẫu biệt thự 3 tầng mặt tiền 15m có bố cục chính là các khối nhà kết hợp với mái Thái rất tinh tế. Nó mang màu sắc sinh động và thu hút mọi ánh nhìn. Ban công của mỗi tầng đều sử dụng kính để rào chắn, mang đến sự sang trọng cho cả căn biệt thự. Phần ban công rộng rãi, gia chủ có thể tận dụng để trồng vài loại hoa, cây cảnh yêu thích.

Thông tin chi tiết mẫu biệt thự:
Có thể nói, sự thành công của mẫu biệt thự 2 mặt tiền đẹp này không thể thiếu cách bố trí công năng hợp lý. Trao đổi thêm về giải pháp thiết kế ngôi nhà, chủ đầu tư cho biết thêm rằng họ thấy hoàn toàn đúng đắn khi dành diện tích không nhỏ để làm thông tầng cho ngôi nhà với trang trí cây xanh và tiểu cảnh đẹp mắt.

Không những nổi bật với không gian ngoại cảnh xung quanh, căn biệt thự còn khiến các chủ đầu tư phải ngoái nhìn bởi thiết kế vô cùng hiện đại. Gam màu trắng kem của tường tuy có phần đơn giản nhưng lại tạo được cảm giác sang trọng và quý phái. Bên cạnh đó, tổng thể phần kiến trúc của hàng rào cũng rất đặc trưng với phong cách thiết kế đồng nhất với căn biệt thự.

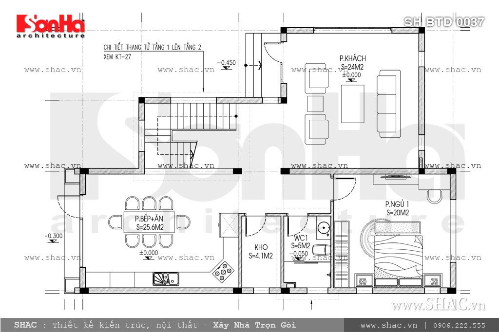
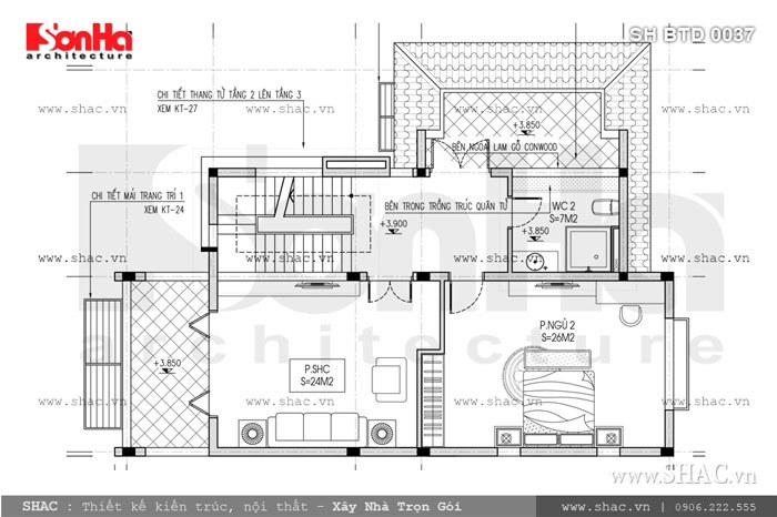
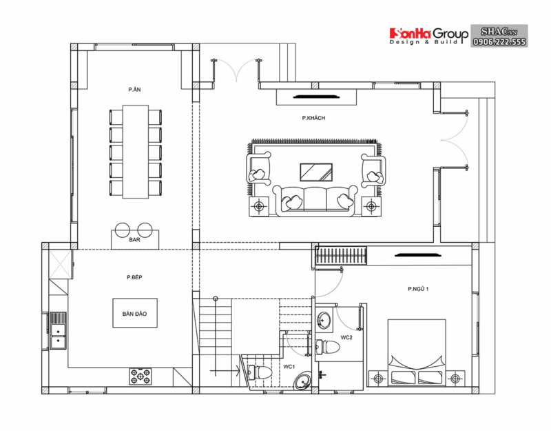
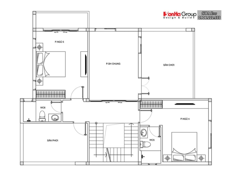
Căn biệt thự được thiết kế vô cùng tiện nghi, các công năng được sắp xếp vô cùng thuận tiện cho gia chủ trong cả 3 tầng. Tầng 1 bao gồm phòng khách, 1 phòng ngủ kèm WC, phòng bếp + ăn và một kho chứa đồ. Tầng 2 gồm phòng ngủ, phòng vệ sinh, phòng sinh hoạt chung,.. Tầng 3 gồm các tiện ích khác như sân phơi, giặt đồ, phòng thờ.


Thông tin chi tiết mẫu biệt thự:
Biệt thự 3 tầng mặt tiền 15m BTD0024 dùng nhiều mảng, khối kết hợp với các đường nét tạo nên nét độc đáo trông thiết kế. Biệt thự sử dụng gam màu trắng là chủ đạo kết hợp với phần mái màu xanh đen trông vô cùng lịch lãm. Tất cả cửa của căn biệt thự đều sử dụng khung bằng gỗ giúp tạo độ chắc chắn và gia tăng thêm tính thẩm mỹ cho cả tòa nhà.

Biệt thự này ưu tiên sử dụng các nguyên vật liệu đơn giản nhưng phù hợp với xu hướng của thời đại. Không những nó giúp tôn thêm vẻ đẹp thời thượng mà còn gia tăng vẻ đẹp trẻ hóa của ngôi biệt thự 3 tầng. Các ô cửa kính khung gỗ nâu tạo nên những điểm nhấn đắt giá và sang trọng cho ngoại thất của biệt thự mái thái.

Sự kết hợp hài hòa và nhã nhặn giữa các tone màu: trắng tinh khôi của tường, nâu trầm ấm của cửa, mái ngói xanh – đen giúp tạo nên một nét hòa hợp không thể nào đẹp hơn của căn biệt thự.

>>>> XEM NGAY: Thiết kế biệt thự 3 tầng mặt tiền 7m đẹp, sáng tạo
Thông tin chi tiết mẫu biệt thự:
Biệt thự xây trên mảnh đất rộng 300m2 (mặt tiền 15m dài 20m). Kích thước móng nhà có diện tích 150m2 (mặt tiền 11m, dài 13m). Như vậy, ngôi nhà có một khoảng sân vườn khá rộng, tạo nên một không gian thông thoáng cho căn nhà.

Ngôi biệt thự 3 tầng mặt tiền 15m có phong cách thiết kế hiện đại. Những đường nét tối giản, tinh tế được sắp xếp một cách thông minh tạo nên nét đặc trưng cho căn nhà. Thiết kế này không chỉ phù hợp với thẩm mỹ hiện đại mà còn có tính ứng dụng cao về sau này. Đặc biệt hơn, phong cách hiện đại tối giản giúp căn nhà phố trở nên đặc biệt hơn bao giờ hết.

Trong công trình thiết kế biệt thự lần này, các hình khối được bố trí theo tỷ lệ khoa học vô cùng ấn tượng. Những hình khối mang tỷ lệ khác nhau nhưng khi đặt chung lại tạo nên sự hòa hợp và ăn khớp. Biệt thự được thiết kế bằng cách sắp xếp các hình khối theo cấu trúc bất đối xứng giúp tạo nên sự hiện đại và cá tính cho cả kiến trúc mặt tiền.

Với diện tích sàn lên đến 150m2, căn biệt thự được đánh giá là phù hợp và tiện dụng. Mời khách hàng cùng tìm hiểu công năng từng tầng:



Thông tin chi tiết mẫu biệt thự:
Ngôi biệt thự 3 tầng mặt tiền 15m này nằm tại quận Kiến An của Thành phố Hải Phòng. Với kiến trúc độc đáo, căn biệt thự này trông giống như những tòa lâu đài tại phương Tây – nơi kiến trúc tân cổ điển rất thịnh hành. Nhìn vào mặt tiền của mẫu thiết kế biệt thự tân cổ điển này, các tỷ lệ và hình khối được sắp xếp một cách thông minh trông vô cùng tinh tế và mãn nhãn.

Về màu sắc, toàn bộ căn biệt thự được sử dụng màu sơn vàng kem kết hợp với trắng ngà mang đến cảm giác cổ điển mà thanh lịch. Ngoài ra, việc sử dụng gam màu cam nổi bật trên mái cũng là một điểm nhấn thú vị, tương phản với phần thân nhà. Hệ mái thái có độ dốc tiêu chuẩn khiến tổng thể thiết kế biệt thự thêm cao ráo và thanh thoát.

Là một trong những dự án được hoàn thiện ở nửa cuối năm 2020 nhưng công trình thiết kế biệt thự tân cổ điển 3 tầng tại Hải Phòng đã trở thành một trong những công trình trọng điểm. Đây cũng chính là niềm tự hào không của chỉ gia chủ mà còn của đội ngũ thiết kế và thi công căn biệt thự.

Mời khách hàng cũng tìm hiểu cách bố trí và sắp xếp công năng sử dụng phía trong biệt thự. Với diện tích lên đến 300m2, căn biệt thự được chia thành 3 tầng và 1 tum, mỗi tầng lại có một chức năng và nhiệm vụ riêng biệt. Chi tiết như sau:





>>>> GỢI Ý: 6 Mẫu biệt thự 3 tầng mặt tiền 8m được săn lùng nhiều nhất
Thông tin chi tiết mẫu biệt thự:
Ngôi biệt thự 3 tầng mặt tiền 15m tân cổ điển tại Quảng Ninh được thiết kế 3 tầng trên diện tích sàn 330m2 (15m x 22m). Hai mặt tiền đẹp chính là nhân tố chính tạo nên nét đặc trưng cho cả căn biệt thự. Nhìn tổng thể, căn biệt thự màu trắng toát vẻ trang trọng, uy nghiêm và vô cùng sang trọng.

Căn biệt thự sử dụng gam màu trắng tinh tế, lối thiết kế vô cùng đơn giản, không chứa đựng những hoa văn cầu kỳ. Đây là kết quả của sự hội tụ tinh hoa kiến trúc cổ điển và hiện đại. Ngôi biệt thự trở nên sang trọng, quý phái nhưng không hề hào nhoáng, phô trương.

Việc khoác lên công trình vẻ đẹp đậm chất Pháp, các kiến trúc sư đã khiến ngôi biệt thự làm siêu lòng cả những chủ đầu tư khó tính nhất. Ngôi biệt thự 3 tầng mặt tiền 15m nổi bật giữa không gian xanh mát với vẻ đẹp trong trắng, nhẹ nhàng giữa lòng thành phố hoa lệ.

Toàn bộ hệ thống cửa của ngôi biệt thự này sử dụng chất liệu kính cường lực kết hợp cùng khung nhôm màu nâu. Hệ thống cửa sổ, ban công khá nhiều giúp cho không gian bên trong nhà trở nên sáng sủa, thoáng đãng hơn. Ngoài ra, việc thiết kế cửa bằng kính còn tạo ra các khoảng view đẹp mắt hướng ra các khung cảnh thiên nhiên.
Với diện tích lên đến 300m2, ngôi biệt thự được chia thành 3 tầng và 1 tum, mỗi tầng có chức năng và nhiệm vụ riêng biệt. Chi tiết như sau:


Việc đánh giá một căn biệt thự là đẹp hay xấu cần phải dựa trên một vài tiêu chí nhất định. Đương nhiên, tiêu chí đánh giá cũng chỉ áp dụng ở mức tương đối, không có hạn mức nào để đánh giá được chính xác về cái đẹp. Tuy nhiên, khách hàng có thể tham khảo một vài tiêu chí tiêu biểu dưới đây:



>>>> ĐỪNG BỎ LỠ:
Sơn Hà Group là một trong những đơn vị thiết kế và thi công biệt thự đảm bảo chất lượng, thẩm mỹ và công năng. Bên cạnh đó, chi phí để xây dựng cũng là tiêu chí được đơn vị đưa lên hàng đầu. Đến với Sơn Hà Group, quý khách hàng sẽ được hưởng những ưu điểm sau:
Trên đây là những mẫu biệt thự 3 tầng mặt tiền 15m đẹp và thu hút mà Sơn Hà Group đã giới thiệu. Hi vọng sau những chia sẻ này, khách hàng sẽ có nhiều thông tin hơn để đưa ra những quyết định phù hợp. Khách hàng có nhu cầu hoặc thắc mắc có thể liên hệ với Sơn Hà Group để được hỗ trợ, tư vấn.
>>>> CÓ THỂ BẠN MUỐN BIẾT:
Ảnh khác
Bình luận