Đã có rất nhiều quan điểm đồng tính rằng những ngôi biệt thự châu Âu luôn dễ dàng khiến cho bất cứ ai dù chỉ một lần vô tình ngắm nhìn cũng không khỏi choáng ngợp. Họ bị choáng ngợp bởi sự tinh tế có chiều sâu, bởi độ rộng lớn, bởi kiến trúc hoa mĩ theo phong cách cổ điển xa hoa, tráng lệ nhưng đã được lược bớt các chi tiết để phù hợp hơn với cuộc sống hiện đại ngày nay.
>>>> XEM NGAY: Biệt thự mẫu
[su_thong_tin_chu_dau_tu chu_dau_tu="Bà Sơn" dia_chi="Quận 8" tinh_thanh="TP." ten_tinh_thanh="Hồ Chí Minh" link_tinh_thanh="https://shac.vn/tag/tp-hcm" loai_hinh="Biệt thự phong cách châu Âu" link_loai_hinh="https://shac.vn/thiet-ke-biet-thu-chau-au" so_tang="4 tầng" note_so_tang="+ 1 tầng áp mái" link_so_tang="https://shac.vn/tag/4-tang" mat_tien="Mặt tiền 18m" note_mat_tien="3" link_mat_tien="https://shac.vn/tag/mat-tien-18m" dien_tich="475,9m2 (18,3mx26,9m)" cong_nang="Gara để xe; phòng khách; phòng bếp ăn; các phong ngủ với vệ sinh và khu thay đồ khép kín; phòng sinh hoạt chung; phòng thờ; khu phơi giặt." nam_thuc_hien="2018" kinh_phi="7,3 tỷ"]Thông tin công trình[/su_thong_tin_chu_dau_tu]NỘI DUNG CHÍNH
Thật vật, khi ngắm nhìn những căn biệt thự phong cách châu Âu chắc hẳn ai cũng cảm nhận được sự sang trọng, nét tinh tế toát lên từ cốt cách và thần thái của phong cách thiết kế đã tồn tại từ rất lâu đời và cho đến nay vẫn giữ nguyên sức hút. Xin chia chia sẻ thêm rằng để hoàn thiện những mẫu thiết kế biệt thự châu Âu đẹp mãn nhãn thì người thiết kế phải cực kì am hiểu, có nhiều kinh nghiệm về dòng thiết kế này, chỉ một sai sót nhỏ cũng có thể dẫn đến hỏng không gian kiến trúc đòi hỏi sự cầu kì, tỉ mỉ và chính xác này. Công ty Cổ phần Tư vấn Xây dựng Sơn Hà (SHAC, Sơn Hà Architecture) vui mừng một lần nữa khẳng định năng lực với hồ sơ công trình được bàn giao mới nhất tại Sài Gòn – hồ sơ thiết kế biệt thự tân cổ điển châu Âu 18,3 x 26,9m thuộc sở hữu của gia đình chủ đầu tư Sơn.
Mời bạn cùng theo dõi bài viết và cùng tìm hiểu chi tiết hơn phương án thiết kế tổng thể từ công năng, kiến trúc đến nội thất của công trình.
Lĩnh vực thiết kế biệt thự tại Sài Gòn của SHAC đã đạt được những thành công đáng tự hào với các công trìn quy mô, đa dạng về phong cách từ nhà phố cho đến những mẫu biệt thự đẹp hoặc các công trình cao tầng như thiết kế khách sạn, văn phòng,... Đáng kể, thành phố mang tên Bác đã khẳng định nét duyên của biệt thự cổ điển mang thương hiệu SHAC uy tín và giù bản sắc với các vị chủ đầu tư sành điệu.
Sự xuất hiện của biệt thự đẹp SH BTP 0131 đã mang lại màu sắc mới cho bức tranh thiết kế biệt thự tài năng và đa phong cách các kiến trúc sư công ty thiết kế biệt thự uy tín đã xây dựng được.

Rõ ràng phong cách cổ điển châu Âu không còn xa lạ với các gia chủ người Việt. Tuy nhiên, điều đặc biệt khiến những ngôi biệt thự kiểu châu Âu được lưu tâm chính là sự vận dụng thông minh và sáng tạo dòng kiến trúc trời Âu này với văn hóa địa phương để tạo nên công trình biệt thự cổ điển lộng lẫy mãn nhãn, sang trọng và kiêu kỳ.
Cụ thể, qua phối cảnh công trình chúng tôi giới thiệu sau đây bạn sẽ thấy những chi tiết gờ phào chỉ tinh tế với hệ thống trụ cột vững chắc làm căn biệt thự cổ điển châu Âu thêm cuốn hút người nhìn. Có thể thấy rằng các kiến trúc sư SHAC đã dày công nghiên cứu kỹ lưỡng để lên phương án tối ưu nhất, mang đến cho biệt thự đầy đủ các không gian chức năng được bố trí hợp lý, chất lượng và thẩm mỹ cao.

Với hệ mái đặc trưng lối kiến trúc phong cách cổ điển kết hợp cùng màu sơn trang nhã khiến cho sự bề thế của “dinh thự” thuộc sở hữu của gia đình chủ đầu tư Sơn càng tăng lên nhiều lần. Mặt khác, các kiến trúc sư đã chọn giải Pháp tầng trệt để xe nên căn dinh thự này không chỉ đẹp về kiến trúc mà các không gian xung quanh cũng góp phần tạo nên đẳng cấp vượt trội. Hẳn nhiên là vậy, nếu bạn mong muốn được sống trong một không gian của ngôi biệt thự đẹp nhất Việt Nam với phong cách độc đáo thì đây là lựa chọn khá ưu việt cho bạn cùng gia đình mình.
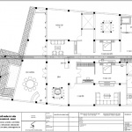
Trong phần đầu bài viết, chúng tôi đã tóm tắt những nội dung cơ bản nhất về cách phân chia công năng trên diện tích sàn hơn 475m2 của ngôi biệt thự này. Tại phần nội dung là các bản vẽ thể hiện cụ thể nhất cách sắp xếp của từng không gian, mời bạn cùng xem thêm:





Chúng tôi khẳng định rằng ngay khi còn chưa hết bất ngờ và choàng ngợp với lối thiết kế kiến trúc đồ sộ thì bạn sẽ lại tiếp tục bị “hạ gục” khi bước chân vào không gian đẳng cấp bên trong ngôi biệt thự.
Xuyên suốt nội thất ngôi biệt thự được sử dụng nhiều vật dụng nội thất làm từ gỗ tự nhiên bọc da cao cấp. Kết hợp với đó là sự tinh tường và am hiểu trong cách kết hợp vật liệu ốp lát của các kiến trúc sư, của gia chủ khiến nơi đây xứng tầm không gian xa hoa đáng sống, nơi từng phút giây trôi qua theo cách được trân quý nhất.
Sau đây là các bản vẽ không gian nội thất của công trình, chúng tôi xin được giới thiệu thêm đến bạn:















Trên đây chúng tôi vừa giới thiệu đến bạn hồ sơ thiết kế ngôi biệt thự châu Âu được trình làng mới nhất của SHAC tại thành phố Hồ Chí Minh. Trong các bài viết sau chúng tôi sẽ tiếp tục cập nhật các nội dung liên quan. Cảm ơn bạn đã theo dõi bài viết.
Quý vị cũng có thể xem thêm về bộ sưu tập thiết kế nhà đẹp của SHAC tại đây:
Mọi chi tiết xin liên hệ:
CÔNG TY CỔ PHẦN TƯ VẤN XÂY DỰNG SƠN HÀ (SHAC)
Trụ sở chính: Số 55, đường 22, KĐT Waterfront City, Lê Chân, Hải Phòng
Văn phòng đại diện
Ảnh khác