Biệt thự Địa Trung Hải là thiết kế hoàn hảo để gia đình tận hưởng cuộc sống gần gũi với thiên nhiên giữa nhịp sống vội vã của xã hội. Nằm tại trung tâm thành phố, biệt thự Địa Trung Hải đã tìm cách để cá tính riêng hòa nhịp với giá trị chung của đô thị.
NỘI DUNG CHÍNH
Một đặc điểm của các ngôi nhà xây dựng trong khu đô thị đó là diện tích đất xây dựng bị giới hạn và thiết kế bị hạn chế tính cá nhân để hòa hợp với yêu cầu về kiến trúc và quy hoạch chung của đô thị.

Với Sunshine Villa, biệt thự Địa Trung Hải được chúng tôi xây dựng tại Gia Lai, các yếu tố mang tính cá nhân hóa cao đều bị loại bỏ, thay vào đó là một thiết kế với các hình khối cơ bản, màu sắc trung tính, hài hòa với môi trường xung quanh.

Xung quanh biệt thự, các ô cửa với kích thước và kiểu dáng khác nhau được thêm vào để đảm bảo yếu tố thoáng sáng cho không gian, giúp biệt thự luôn nhận được đủ lượng ánh nắng cần thiết trong ngày.
Hàng cây xanh, đặc biệt là giàn hoa giấy đặt trên mái nhà, được trồng để tán bớt cái nắng gay gắt của vùng đất và tạo điểm nhấn đầy sức sống cho biệt thự. Nhờ vậy, biệt thự luôn có không khí mát mẻ và tràn ngập ánh nắng.
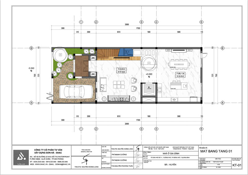
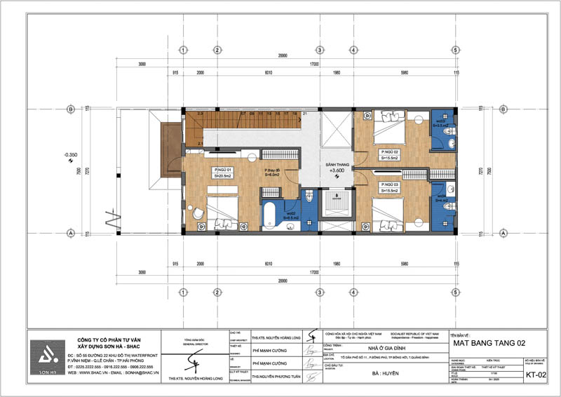
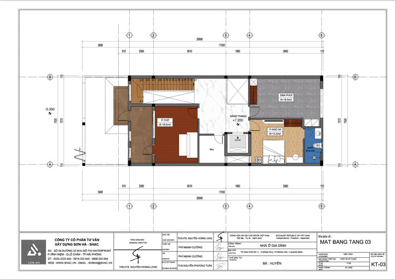
Các không gian bên trong biệt thự được bố trí hợp lý để tối ưu không gian sống cho các thành viên trong gia đình.
Chủ nhân của ngôi nhà vốn là một doanh nhân thường bận rộn với công việc, bởi vậy nên anh chị muốn một không gian sống tiện nghi và có những không gian thư giãn phù hợp để cải thiện chất lượng cuộc sống cả về thể chất lẫn tinh thần.


Là gia đình có trẻ nhỏ, các khu vực dành cho con trẻ như góc học tập hay sân chơi đều rất quan trọng. Anh chị muốn tạo ra một môi trường tốt nhất cho sự phát triển của con. Bên cạnh không gian để phơi đồ, khoảng sân thoáng rộng trên tầng tum chính là khoảng không tuyệt vời để bố mẹ cùng con trẻ thư giãn và dành thời gian cho nhau.

Biệt thự Địa Trung Hải hiện là phong cách thiết kế đang được yêu thích hiện nay bởi vẻ đẹp sang trọng và gần gũi với thiên nhiên, phù hợp với xu hướng kiến trúc hiện tại.
Đặc biệt, biệt thự Địa Trung Hải càng được yêu thích bởi:
Màu sắc thường xuất hiện trong biệt thự Địa Trung Hải là các gam màu gợi nhắc về thiên nhiên như màu trắng, xanh lam, xanh lá hay vàng nhạt. Ngoài ra, bạn có thể phối hợp thêm các màu sắc khác với tỉ lệ phù hợp để tạo điểm nhấn và cá tính cho không gian.
Việc phối màu cho biệt thự Địa Trung Hải cần lưu ý tuân theo các nguyên tắc cơ bản trong phối màu để đảm bảo hiệu quả và mang lại hiệu ứng phù hợp cho không gian sống.

Có thể chia phong cách biệt thự Địa Trung Hải thành 3 phong cách chính bao gồm:
Mỗi phong cách sẽ có những đặc trưng riêng biệt. Tùy theo sở thích và nhu cầu thiết kế mà chủ đầu tư có thể lựa chọn phong cách kiến trúc phù hợp với mình nhất.
Diện tích tối thiểu cho một biệt thự Địa Trung Hải sẽ có sự khác nhau tùy theo quy định của từng địa phương. Tuy nhiên, để không gian sống thoải mái, tiện nghi, thể hiện được các yếu tố của biệt thự Địa Trung Hải, diện tích tối thiểu của biệt thự nên đạt từ 100m2 trở lên.
Việc chuẩn bị cho quá trình quản lý và bảo trì công trình biệt thự thường được Sơn Hà Group tư vấn và thực hiện trong quá trình thiết kế cho các khách hàng. Kiến trúc sư sẽ tư vấn những lựa chọn phù hợp, nhằm giúp khách hàng đơn giản hóa quá trình chăm sóc công trình của mình. Quá trình thi công kỹ lưỡng sẽ giúp các gia chủ hạn chế được các rủi ro, đảm bảo giá trị thẩm mỹ lẫn tuổi thọ kết cấu của biệt thự.
Biệt thự Địa Trung Hải là không gian sống tuyệt vời dành cho các gia chủ muốn sở hữu một không gian sống rộng rãi, thoáng đãng, kết hợp không gian sống bên ngoài và bên trong ngôi nhà. Với sự tận tâm và chuyên nghiệp, Sơn Hà Group sẽ giúp bạn biến không gian sống mơ ước thành hiện thực.
Mọi chi tiết xin liên hệ:
CÔNG TY CỔ PHẦN TƯ VẤN XÂY DỰNG SƠN HÀ (SHAC)
Trụ sở chính: Số 55 đường 22 KĐT Waterfront, Lê Chân, Hải Phòng
Văn phòng đại diện
Ảnh khác
Bình luận