Trong đô thị ồn ào, có một căn biệt thự 4 tầng là nơi sinh sống và là chốn trú ẩn bình yên của gia đình. Nơi mà mọi thành viên có thể sống chậm lại và dành thời gian kết nối với bản thân và những người xung quanh. Căn biệt thự là sự phối hợp hài hòa giữa vẻ đẹp của kiến trúc hiện đại với sự ấm áp, tinh tế của chất gỗ, lưu giữ lại những khoảnh khắc chậm trôi của thời gian.
NỘI DUNG CHÍNH
Tọa lạc tại khu đô thị ven sông, ngôi nhà là không gian sống yên bình của một đại gia đình trong thành phố. Bên cạnh thiết kế hiện đại với gam màu tối giản, các không gian trong nhà đều được các kiến trúc sư sắp đặt với mục đích duy nhất. Đó là để các thành viên trong gia đình tận hưởng trọn vẹn không gian nghỉ dưỡng tại gia và dành thời gian cho khoảnh khắc sum họp gia đình.

Từ khi bắt đầu, biệt thự đã được tạo ra với mục tiêu tạo ra một không gian sống đủ đầy, gắn kết không gian sống với thiên nhiên xung quanh và kéo các thành viên lại gần nhau hơn.
Nội thất gỗ là chất liệu được sử dụng và yêu thích trong biệt thự bởi cảm giác ấm cúng và sang trọng mà nó mang lại. Hơn thế nữa, thiết kế hiện đại hướng tới sự tinh giản nhưng vẫn chứa đựng những chi tiết tạo hình tinh tế, đã thành công tạo ra vẻ đẹp độc đáo cho không gian sống của gia đình.

Không gian có rất ít sự khác biệt về màu sắc. Các gam màu được lựa chọn chủ yếu là các màu trung tính và màu nâu nổi bật của chất gỗ. Nhưng cũng chính nhờ cách phối hợp này mà không gian đã không còn ranh giới ngăn cách và trở nên ấm cúng hơn bao giờ hết.


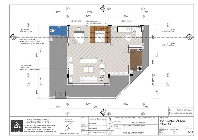
Sự thư thái được đề cao trong không gian tầng 1 với sự xuất hiện của phòng trà nhỏ cạnh phòng khách và những bản nhạc du dương từ chiếc đàn piano trong căn phòng. Chính trong không gian này, mọi sự mệt mỏi đều tan biến và nhường chỗ cho khoảnh khắc thư giãn quý giá trong ngày.




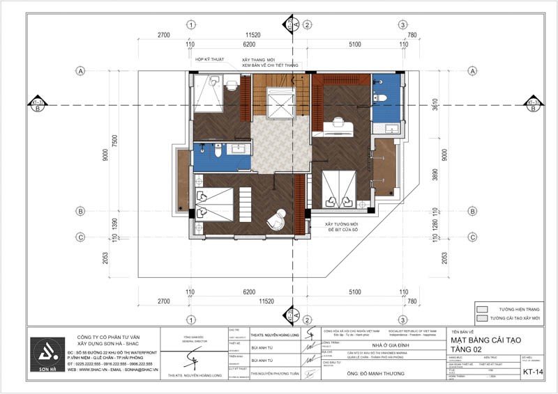
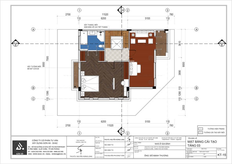
Tầng 2 và tầng 3 được dành cho các không gian nghỉ ngơi của gia đình. Mỗi căn phòng ngủ ở đây đều được thiết kế theo sở thích và nhu cầu sử dụng của từng thành viên trong nhà. Các chi tiết đường cong, tròn, bo góc làm tăng thêm sự tinh tế cho các không gian tại đây.








Ngoài các đặc điểm trên, căn biệt thự cũng có nhiều điểm nhấn thú vị. Thay vì dùng các màu sắc nổi bật, các kiến trúc sư đã lựa chọn ánh sáng là chất cảm để tạo sự thu hút độc đáo, vừa nhẹ dịu vừa ấn tượng.
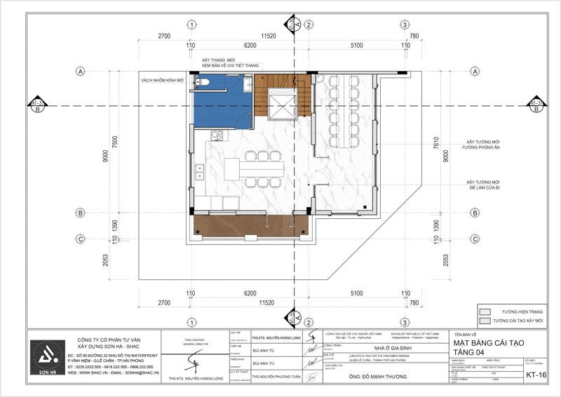
Phòng bếp - ăn được đặt trên tầng 4, nơi được lấp đầy với ánh sáng tự nhiên và những khoảng lặng tách biệt với sự ồn ào của phố thị.

Trong căn biệt thự 4 tầng này, thời gian dường như chậm lại, thong dong và bình thản đong đầy nhịp sống. Không sở hữu cách sắp đặt cầu kỳ, không có những thiết kế phức tạp nhưng mọi chi tiết trong biệt thự đều chung một nhịp điệu, một hệ giá trị, đó là lưu giữ sự gắn kết, bình yên của gia đình qua những khoảnh khắc chậm trôi của thời gian.
Thời gian để hoàn thiện một biệt thự Tân cổ điển phụ thuộc vào rất nhiều yếu tố như quy mô và diện tích xây dựng, kiến trúc và phong cách thiết kế, tình trạng nền đất, điều kiện thời tiết,…
Thông thường, thời gian hoàn thiện nội thất một biệt thự 4 tầng sẽ dao động từ 2 tháng đến nửa năm. Tuy nhiên, cũng có trường hợp thời gian xây dựng kéo dài lâu hơn do các yếu tố khác tác động.
Để được tư vấn cụ thể về thời gian xây dựng và các vấn đề xoay quanh biệt thự 4 tầng, bạn hãy liên hệ với Sơn Hà Group qua Fanpage, Website hoặc hotline 0906.222.555.

Các gia chủ hoàn toàn có thể tự mình lựa chọn thiết kế và nội thất cho biệt thự của mình. Tuy nhiên, khi có sự tư vấn của một kiến trúc sư, gia chủ sẽ nhận được các lợi ích như:
Việc có nên tự mình lựa chọn thiết kế và nội thất cho biệt thự hay không phụ thuộc vào thời gian, sở thích và khả năng thấu hiểu về không gian của bạn. Thông thường, việc có sự tư vấn của một kiến trúc sư giàu kinh nghiệm sẽ giúp gia chủ tiết kiệm được rất nhiều thời gian, công sức và dễ dàng sở hữu một không gian sống hoàn hảo.
Chi phí xây biệt thự 4 tầng hay chi phí xây biệt thự 3 tầng phụ thuộc vào nhiều yếu tố như diện tích, địa điểm xây dựng, nhu cầu và mong muốn xây dựng của chủ nhà. Dưới đây là bảng chi phí thiết kế biệt thự 4 tầng đẹp gia chủ có thể tham khảo tại Sơn Hà Group.
| STT | LOẠI HÌNH CÔNG TRÌNH | GÓI THIẾT KẾ | THỜI GIAN | ||
|---|---|---|---|---|---|
| THIẾT KẾ KIẾN TRÚC | THIẾT KẾ NỘI THẤT | ||||
| 1 | Biệt thự hiện đại | 180.000đ/m2-200.000đ/m2 | 180.000đ/m2 – 200.000đ/m2 | 8.000.000đ – 10.000.000đ/phòng | – Kiến trúc = 60 ngày
– Nội thất = 70 ngày |
| 2 | Biệt thự tân cổ điển | 180.000đ/m2-200.000đ/m2 | 180.000đ/m2 – 200.000đ/m2 | 8.000.000đ – 10.000.000đ/phòng | |
| 3 | Biệt thự kiểu Pháp | 200.000đ/m2-220.000đ/m2 | 200.000đ/m2 – 220.000đ/m2 | 8.000.000đ – 10.000.000đ/phòng | |
| 4 | Biệt thự vườn | 200.000đ/m2-220.000đ/m2 | 200.000đ/m2 – 220.000đ/m2 | 8.000.000đ – 10.000.000đ/phòng | |
| 5 | Biệt thự lâu đài | 250.000đ/m2-300.000đ/m2 | 250.000đ/m2 – 300.000đ/m2 | 10.000.000đ/phòng – 15.000.000đ/phòng | |
*Báo giá thi công nội thất biệt thự
| HẠNG MỤC | ĐƠN GIÁ (VND/m2) | GHI CHÚ |
| Thi công nội thất biệt thự | 5.000.000 – 8.000.000 | Tùy thuộc vào thương hiệu và mức độ cao cấp, xa xỉ của vật liệu nội thất hoàn thiện mà mức giá này sẽ có những biến đổi nhất định. |
| Thi công trọn gói biệt thự | 10.000.000 – 15.000.000 | Đây chỉ là mức giá trung bình. Tùy theo yêu cầu xây dựng của gia chủ và công trình thực tế, mức giá sẽ có sự biến động nhất định. |
Trên đây là bảng giá để các gia chủ tham khảo mức chi phí xây nhà biệt thự 4 tầng. Ngoài ra, gia chủ có thể tham khảo thêm các mẫu thiết kế nhà biệt thự hiện đại để chọn ra mẫu thiết kế phù hợp cho công trình của mình. Để biết chi tiết về chi phí đầu tư cho biệt thự 4 tầng, gia chủ hãy liên hệ với Sơn Hà Group để được tư vấn cụ thể và báo giá chi tiết nhất.
Việc lựa chọn vật liệu thi công nội thất là vô cùng quan trọng. Bạn nên ưu tiên các loại vật liệu có độ bền cao, dễ vệ sinh và thân thiện với môi trường. Để tối ưu chi phí mà vẫn đảm bảo chất lượng, bạn nên:
Tại Sơn Hà Group, chúng tôi rất sẵn lòng đưa gia chủ tham quan các công trình thực tế mà chúng tôi đã thiết kế để bạn có thêm cái nhìn trực quan về dịch vụ thiết kế, thi công của chúng tôi. Ngoài việc tới trực tiếp công trình, gia chủ cũng có thể xem các hình ảnh công trình thực tế của chúng tôi trên các kênh Website, Facebook và Pinterest hoặc trực tiếp tại Sơn Hà Group để có đánh giá khách quan nhất.

Là đơn vị có hơn 21 năm kinh nghiệm thiết kế, thi công các công trình nhà ở như ý cho khách hàng trong cả nước, Sơn Hà Group tự hào là đơn vị đồng hành, cùng gia chủ tạo ra không gian sống như ý với cam kết:

Trên đây là các chia sẻ của chúng tôi về mẫu biệt thự 4 tầng được thiết kế theo phong cách hiện đại tại Hải Phòng. Với sự chuyên nghiệp và tận tâm, Sơn Hà Group tự hào là đơn vị đồng hành, cùng gia chủ biến không gian sống trong mơ trở thành hiện thực.
Ảnh khác
Bình luận