Thiết kế biệt thự hiện đại là xu hướng được các gia chủ lựa chọn cho không gian sống của mình. Với yêu cầu ngày càng cao, các gia chủ mong muốn nơi sinh sống của mình không chỉ tiện nghi, hiện đại mà còn là nơi kết nối con người với thiên nhiên và kết nối con người với con người.
NỘI DUNG CHÍNH
Biệt thự hiện đại là thiết kế được ưa chuộng bởi sự phóng khoáng, gọn gàng, tiện nghi và thực tế. Với mong muốn sở hữu một không gian mang đầy đủ đặc trưng của phong cách hiện đại, gia chủ đã cùng chúng tôi thảo luận và tìm ra giải pháp thiết kế phù hợp cho tổ ấm của mình.

Dưới đây, mời bạn hãy cùng tìm hiểu những giải pháp chúng tôi đã ứng dụng cho căn biệt thự 2 tầng 1 tum này.
Nhìn từ bên ngoài, biệt thự sở hữu những hình khối đơn giản, có đặc có rỗng, tạo ra một nhịp điệu uyển chuyển thu hút ánh nhìn.

Điểm xuyết cho mặt tiền biệt thự là những khoảng xanh được thêm thắt vào tường rào, sân trong và ban công. Cửa và lan can bằng kính là chất liệu tuyệt vời mang đến cho gia chủ tầm nhìn khoáng đạt và tạo hiệu ứng xuyên suốt, xa gần thú vị cho không gian.
Tổng thể mặt tiền tập trung vào sự tối giản, bỏ đi mọi chi tiết thừa, đưa thiết kế tập trung vào các chi tiết, vật liệu hoàn thiện cơ bản, vững chắc và an toàn.
Bên cạnh sự tiện nghi, thoáng sáng, biệt thự được thiết kế với mong muốn gắn kết các thành viên trong gia đình. Để làm điều đó, chúng tôi đã đặt các không gian đóng-mở xen kẽ và hài hòa với nhau trong tổng thể biệt thự.

Không gian được tận dụng tối đa diện tích cho những công năng phù hợp, mang đến trải nghiệm sống thoải mái cho gia đình.
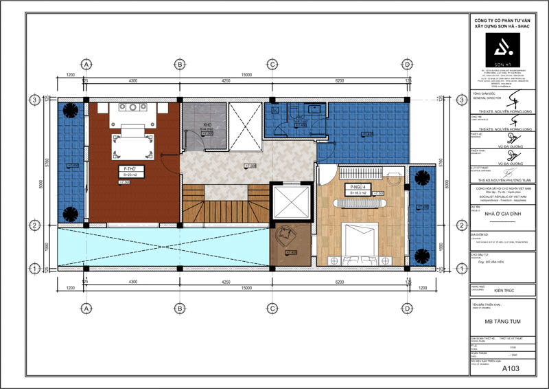
Để giúp bạn hiểu rõ hơn về giải pháp thiết kế chúng tôi đã ứng dụng cho biệt thự này, mời bạn cùng đến với mặt bằng công năng của từng tầng trong biệt thự.

Tầng 1 được thiết kế tập trung vào các công năng chính cho cả gia đình như phòng khách, bếp ăn. Bên cạnh đó, một khoảng xanh được thêm vào bên ngoài phòng khách, mang đến góc nhìn thư thái cho gia chủ.

Tầng 2 được thiết kế tập trung vào công năng nghỉ ngơi của biệt thự. Đây là khu vực dành cho các phòng ngủ của gia đình.

Tầng tum được sử dụng cho các không gian phòng ngủ, phòng thờ, sân chơi, mang đến khoảng không cho gia đình cùng thư giãn, sinh hoạt.
Phong cách hiện đại là phong cách hướng tới sự đơn giản, gọn gàng và tinh tế. Phong cách này cũng chú trọng đến sự cân bằng các yếu tố trong không gian ngôi nhà, bên cạnh các yếu tố như sự sang trọng, tiện nghi và thực tế.
Hiện nay, có rất nhiều gia chủ yêu thích và lựa chọn phong cách thiết kế này cho công trình nhà ở của mình. Đây là phong cách được nhiều gia chủ lựa chọn để thể hiện cá tính và gu thẩm mỹ của bản thân vào thiết kế.
Thời gian để hoàn thiện một biệt thự hiện đại phụ thuộc vào rất nhiều yếu tố như quy mô và diện tích xây dựng, kiến trúc và phong cách thiết kế, tình trạng nền đất, điều kiện thời tiết,...
Thông thường, thời gian xây một biệt thự kết hợp kinh doanh dao dộng từ 6 tháng đến 1 năm. Tuy nhiên, cũng có trường hợp thời gian xây dựng lên đến 2 năm hoặc lâu hơn do các yếu tố khác tác động.
Để được tư vấn cụ thể hơn về thời gian xây dựng và các vấn đề xoay quanh biệt thự Địa Trung Hải, bạn hãy liên hệ với Sơn Hà Group qua Fanpage, Website hoặc hotline 0906.222.555.
Có rất nhiều cách để phân chia không gian sống hiện đại. Bạn có thể phân chia không gian theo chức năng, theo số tầng, theo mức độ riêng tư,… tùy thuộc vào nhu cầu sử dụng.
Diện tích tối thiểu cho một biệt thự hiện đại sẽ có sự khác nhau tùy theo quy định của từng địa phương. Tuy nhiên, để không gian sống thoải mái, tiện nghi, phù hợp với nhu cầu sống của gia chủ, diện tích tối thiểu của biệt thự nên đạt từ 100m2 trở lên.
Chi phí xây dựng một biệt thự hiện đại phụ thuộc vào nhiều yếu tố. Có thể kể đến như: Địa điểm xây dựng, kích thước biệt thự, thiết kế, vật liệu xây dựng và đặc biệt là nhu cầu cụ thể của gia chủ. Để biết chi tiết về chi phí đầu tư cho một biệt thự hiện đại, quý khách hãy liên hệ với Sơn Hà Group qua Fanpage, Website hoặc hotline 0906.222.555 để được tư vấn và báo giá chi tiết nhất.
Việc chuẩn bị cho quá trình quản lý và bảo trì công trình biệt thự thường được Sơn Hà Group tư vấn và thực hiện trong quá trình thiết kế cho các khách hàng. Kiến trúc sư sẽ tư vấn những lựa chọn phù hợp, nhằm giúp khách hàng đơn giản hóa quá trình chăm sóc công trình của mình. Quá trình thi công kỹ lưỡng sẽ giúp các gia chủ hạn chế được các rủi ro, đảm bảo giá trị thẩm mỹ lẫn tuổi thọ kết cấu của biệt thự.
Sơn Hà Group tự hào được là đơn vị đồng hành cùng bạn xây nên ngôi nhà mơ ước qua các dịch vụ: tư vấn phương án thi công, phong cách thiết kế hợp lý và chọn vật liệu phù hợp nhất với nhu cầu.
Với đội ngũ kiến trúc sư dày dặn kinh nghiệm và có khiếu thẩm mỹ cao, Sơn Hà Group sẽ hỗ trợ khách hàng thiết kế nội thất và tư vấn lựa chọn nội thất phù hợp. Chúng tôi sẽ giúp khách hàng chọn được những mẫu thiết kế phù hợp với không gian và cá tính của mình.
Để sở hữu một biệt thự hiện đại tinh tế, thoáng sáng và phù hợp với nhu cầu sử dụng của gia chủ, bạn cần chọn cho mình một đơn vị thiết kế, thi công uy tín, chất lượng cho không gian sống của mình.

Là đơn vị có hơn 20 năm kinh nghiệm thiết kế, thi công các biệt thự kết hợp kinh doanh cho khách hàng trong cả nước, Sơn Hà Group tự hào được đồng hành và cùng bạn tạo ra một không gian sống như ý với:
Trên đây là toàn bộ phương án thiết kế và thi công cho biệt thự hiện đại 2 tầng 1 tum 320m2 được chúng tôi thực hiện cho gia chủ tại Hải Phòng. Bạn đang tìm ý tưởng thiết kế phù hợp cho không gian sống của mình, hãy liên hệ với Sơn Hà Group để chúng tôi hỗ trợ và biến ngôi nhà mơ ước của bạn thành hiện thực nhé.
Mọi chi tiết xin liên hệ:
CÔNG TY CỔ PHẦN TƯ VẤN XÂY DỰNG SƠN HÀ (SHAC)
Trụ sở chính: Số 55 đường 22 KĐT Waterfront, Lê Chân, Hải Phòng
Điện thoại: 0225 2222 555
Hotline: 0906 222 555
Email: sonha@shac.vn
Văn phòng đại diện
Ảnh khác
Bình luận