Kiến tạo nên từ niềm tin và sự thành công của Celina Peninsula Resort, thiết kế khách sạn Bảo Ninh tại Quảng Bình mang phong cách tân cổ điển sang trọng, đánh dấu thêm một bước tiến mới của Sơn Hà Group trong hành trình sáng tạo công trình nghỉ dưỡng cao cấp tại miền Trung.
NỘI DUNG CHÍNH

Giữa miền cát trắng Quảng Bình, Celina Peninsula Resort đã trở thành điểm đến biểu tượng của nghỉ dưỡng cao cấp. Với lối kiến trúc tinh tế, dịch vụ chuẩn 5 sao và trải nghiệm nghỉ dưỡng đậm chất thiên nhiên, khu resort này đã mang về nguồn lợi nhuận ấn tượng hàng năm cho chủ đầu tư.

Sau thời gian vận hành thành công, chủ đầu tư tiếp tục đặt niềm tin vào Sơn Hà Group - Đơn vị đã thiết kế nên quần thể Celina Peninsula ban đầu để kiến tạo nên khách sạn Bảo Ninh, công trình tiếp nối hành trình thăng hoa của resort.
Tên dự án: Thiết kế khách sạn Bảo Ninh tại Quảng Bình - Khu du lịch sinh thái biển Bảo Ninh
Vị trí: Nằm trong quần thể Celina Peninsula Resort, TP. Đồng Hới, Quảng Bình (nay là Quảng Trị)
Đơn vị thiết kế: Sơn Hà Group - SHAC Design & Build
Phong cách kiến trúc: Tân cổ điển châu Âu
Từ bản vẽ mặt bằng 2D đến phối cảnh ngoại thất 3D, công trình thể hiện trọn vẹn tinh thần “kiến tạo giá trị bền vững” - nơi mỗi chi tiết không chỉ mang tính thẩm mỹ mà còn phục vụ công năng hoàn hảo cho vận hành khách sạn cao cấp.

Ở khách sạn Bảo Ninh, Sơn Hà Group lựa chọn phong cách tân cổ điển - một trong những xu hướng được ưa chuộng nhất hiện nay cho các công trình nghỉ dưỡng cao cấp.
Cảm hứng đến từ những công trình kiến trúc Pháp và Ý thế kỷ XVIII, thiết kế tân cổ điển tại đây được thể hiện qua:
Hệ cột Corinthian đăng đối, tạo thế vững chãi và uy nghi cho toàn khối nhà.
Các ô cửa vòm cao, vừa mang nét sang trọng vừa tối ưu ánh sáng tự nhiên.
Tông màu trắng kem chủ đạo, kết hợp khung viền nhôm đen - biểu tượng cho sự thanh lịch và tinh tế.
Phào chỉ và chi tiết hoa văn trang trí tinh xảo, làm điểm nhấn cho mặt tiền, khẳng định đẳng cấp của công trình.
Tất cả hòa quyện tạo nên một tổng thể hài hòa, sang trọng nhưng không phô trương, đúng tinh thần của kiến trúc tân cổ điển hiện đại mà Sơn Hà Group luôn theo đuổi.

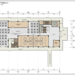
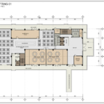
Theo bản mặt bằng kiến trúc 2D, khách sạn Bảo Ninh được quy hoạch khoa học, với 7 tầng chính và 1 tầng tum, đáp ứng hoàn hảo nhu cầu nghỉ dưỡng, ẩm thực và hội nghị:
Tầng 1: Khu lễ tân, sảnh đón khách, nhà hàng và quầy bar - tạo ấn tượng đầu tiên sang trọng cho du khách.

Tầng 2: Không gian hội nghị, phòng họp VIP và khu lounge thư giãn.

Tầng 3-7: Các phòng lưu trú hạng sang với ban công hướng biển, nội thất tiêu chuẩn 5 sao.

Tầng tum: Khu kỹ thuật, sân thượng, bar ngoài trời - nơi du khách có thể ngắm toàn cảnh biển Bảo Ninh.

Sơn Hà Group đã tính toán kỹ lưỡng tỷ lệ giao thông, thông thoáng, chiếu sáng, đảm bảo mọi khu vực đều đón được ánh sáng tự nhiên và gió biển, tạo cảm giác thư thái cho khách lưu trú.
Không chỉ là một công trình khách sạn đơn thuần, Bảo Ninh Hotel được bao quanh bởi hệ thống cảnh quan nhiệt đới ấn tượng - nối liền với khu hồ bơi ngoài trời, khu bar ven biển và chuỗi nhà hàng của Celina Peninsula.

Hồ bơi trung tâm có thiết kế uốn lượn mềm mại, bao quanh bởi hàng dừa xanh mướt và khu ghế tắm nắng, tạo cảm giác nghỉ dưỡng trọn vẹn.
Khu bar ngoài trời mái lá mang đậm phong cách resort biển, gần gũi và thư giãn.
Hệ thực vật được chọn lọc kỹ, với sự xen kẽ giữa dừa, cau, cọ và các loại cây bản địa - vừa tạo bóng mát vừa giúp công trình hòa mình vào thiên nhiên.

Sự kết hợp hài hòa giữa kiến trúc tân cổ điển và cảnh quan nhiệt đới công ty thiết kế khách sạn Sơn Hà Group đã khiến Bảo Ninh trở thành điểm nhấn kiến trúc độc đáo trong toàn khu resort.


Điều đặc biệt khiến dự án này thêm ý nghĩa chính là niềm tin tuyệt đối của chủ đầu tư dành cho Sơn Hà Group.
Sau thành công rực rỡ của Celina Peninsula Resort, họ đã không ngần ngại ký kết tiếp hợp đồng để Sơn Hà tiếp tục đồng hành trong việc thiết kế khách sạn mới - minh chứng cho chất lượng, năng lực và uy tín thương hiệu Sơn Hà trên thị trường kiến trúc Việt Nam.

Trong từng bản vẽ, từng đường nét phối cảnh, đội ngũ kiến trúc sư Sơn Hà Group luôn đặt trải nghiệm của con người làm trung tâm. Đó là lý do mỗi công trình của Sơn Hà không chỉ đẹp, mà còn “sống được”, “thở được” cùng thiên nhiên và cộng đồng.

KTS. Nguyễn Hoàng Long - Tổng Giám đốc Sơn Hà Group chia sẻ

Khẳng định thương hiệu nghỉ dưỡng cao cấp tại Quảng Bình
→ Với thiết kế tân cổ điển nổi bật, Bảo Ninh Hotel góp phần nâng tầm hình ảnh Celina Peninsula thành điểm đến đẳng cấp quốc tế.
Gia tăng hiệu quả khai thác và lợi nhuận đầu tư
→ Tư vấn thiết kế khách sạn tối ưu công năng, vận hành linh hoạt, tối đa hóa doanh thu phòng và dịch vụ.
Tạo điểm nhấn kiến trúc cho toàn khu resort
→ Thiết kế khách sạn Bảo Ninh tại Quảng Bình là công trình biểu tượng, kết nối cảnh quan giữa khu nghỉ dưỡng, nhà hàng và không gian giải trí ven biển.
Lan tỏa giá trị thương hiệu Sơn Hà Group
→ Mỗi dự án thành công là một minh chứng cho triết lý “Kiến tạo giá trị bền vững” hướng đến sự thịnh vượng của khách hàng và cộng đồng.

Với hơn 22 năm kinh nghiệm trong lĩnh vực kiến trúc & xây dựng, Sơn Hà Group đã kiến tạo hàng trăm công trình khách sạn - resort - biệt thự cao cấp trên toàn quốc, từ Hải Phòng, Hạ Long đến Phú Quốc, Quảng Bình, Đà Nẵng...
Mọi chi tiết xin liên hệ:
CÔNG TY CỔ PHẦN TƯ VẤN XÂY DỰNG SƠN HÀ (SHAC)
Trụ sở chính: Số 55, Đường 22, KĐT Waterfront City, Phường Lê Chân, TP. Hải Phòng
CÁC VĂN PHÒNG ĐẠI DIỆN
Ảnh khác