Giải pháp thiết kế khách sạn mini 12x20 tại Quan Lạn, Quảng Ninh do Sơn Hà Group thực hiện. Tối ưu diện tích, tối đa số phòng, thu hồi vốn nhanh, phong cách Địa Trung Hải độc đáo, khác biệt giữa lòng di sản.

NỘI DUNG CHÍNH

Quan Lạn - hòn đảo xinh đẹp thuộc Quảng Ninh, đang trở thành điểm đến du lịch hấp dẫn bởi vẻ đẹp nguyên sơ của biển trời và bãi cát trắng. Cùng với nhu cầu du lịch tăng cao, việc đầu tư khách sạn trở thành xu hướng tất yếu. Tuy nhiên, quỹ đất tại đây thường không lớn, đòi hỏi một giải pháp kiến trúc vừa thông minh vừa tối ưu.
Chính vì vậy, Sơn Hà Group đã đưa ra một giải pháp thiết kế khách sạn mini 12x20 tại Quan Lạn - nhỏ gọn nhưng tối đa hóa diện tích, đảm bảo số lượng phòng nghỉ nhiều nhất, giúp chủ đầu tư thu hồi vốn nhanh và tối ưu lợi nhuận kinh doanh.
>>> Xem thêm: Thiết Kế Khách Sạn Mini Đẹp - Giữ Hồn Xưa Trong Vóc Dáng Mới

Điểm đặc biệt khiến mẫu khách sạn mini 12x20 tại Quan Lạn trở nên nổi bật giữa hàng loạt công trình khác chính là kiến trúc Địa Trung Hải. Phong cách này mang đến nét phóng khoáng, lãng mạn và gần gũi thiên nhiên.
Ngoại thất trắng tinh khôi kết hợp mái vòm và cửa kính lớn, mở ra không gian thoáng đãng.
Ban công nghệ thuật với lan can sắt uốn lượn, tạo dấu ấn khác biệt so với các khách sạn xung quanh.
Không gian mở, chan hòa ánh sáng và gió biển, mang đến trải nghiệm gần gũi mà sang trọng cho du khách.
Chính sự kết hợp độc đáo này khiến khách sạn mini dù diện tích nhỏ, vẫn trở thành điểm nhấn thu hút du khách tìm kiếm sự mới mẻ.
>>> Có thể bạn quan tâm: Thiết Kế Khách Sạn Mini Phong Cách Tân Cổ Điển Trên Sườn Đồi Đà Lạt

Điều khiến dự án này trở nên đặc biệt hơn nữa chính là nguồn gốc của nó: một ngôi nhà cổ trăm năm tuổi. Sơn Hà Group không phá bỏ hoàn toàn mà lựa chọn giữ lại những giá trị cũ, kết hợp cùng kiến trúc hiện đại.

Những họa tiết cổ kính được gìn giữ như một phần ký ức.
Những chi tiết hiện đại được khéo léo lồng ghép, giúp công trình vừa đáp ứng công năng, vừa giữ hồn di sản.
Không gian trở thành sự giao thoa giữa quá khứ và tương lai, nơi mỗi vị khách có thể cảm nhận câu chuyện văn hóa sống động.
Khách sạn này chính là hành trình thắp sáng ký ức bằng giá trị mới, để di sản được tiếp tục sống cùng thời gian.
>>> Đừng bỏ lỡ: Giải pháp thiết kế khách sạn diện tích nhỏ: Khi 200m² có thể tạo ra một công trình sinh lời bền vững
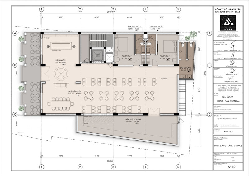
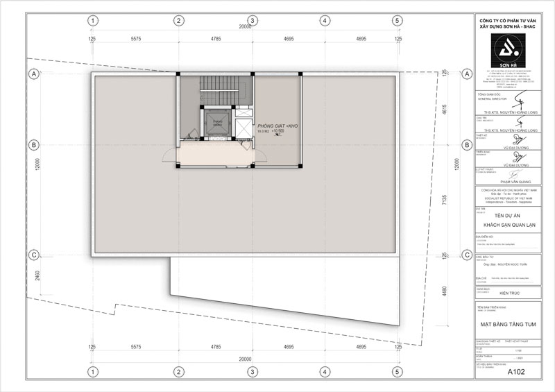
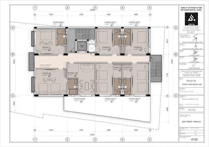
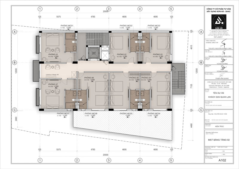
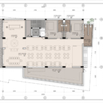
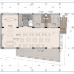
Khách sạn mini 12x20 được bố trí 3 tầng 1 tum, đảm bảo công năng hợp lý và tận dụng tối đa diện tích đất.

Sảnh lễ tân (37m2): trang nhã, kết hợp tủ rượu sang trọng
Nhà hàng ăn (100m2): có sân khấu nhỏ để phục vụ biểu diễn, sự kiện
2 phòng chức năng (16m2): linh hoạt làm văn phòng, phòng khách hoặc kho
Bếp nấu chính (47m2): bố trí gọn gàng, hỗ trợ nhà hàng
WC chung (12m2): phục vụ du khách dùng dịch vụ tại tầng 1

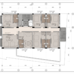
7 phòng ngủ (16 - 20m2/phòng), mỗi phòng có WC riêng
Thiết kế khoa học giúp tối đa số lượng phòng nghỉ, nâng cao hiệu suất khai thác
Nhiều phòng có ban công hướng biển, tạo trải nghiệm hấp dẫn cho du khách

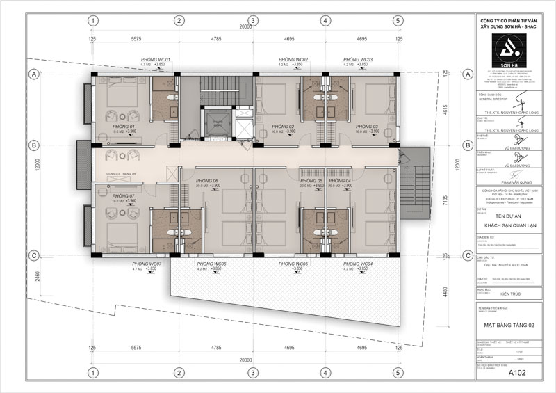
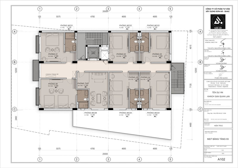
Tiếp tục bố trí hệ thống phòng ngủ diện tích 16 - 20m2 với WC khép kín
Phòng thờ (20m2): dành riêng cho gia chủ, giữ nét văn hóa truyền thống Việt
Không gian nội thất được nhấn nhá bằng console trang trí, nâng tầm thẩm mỹ

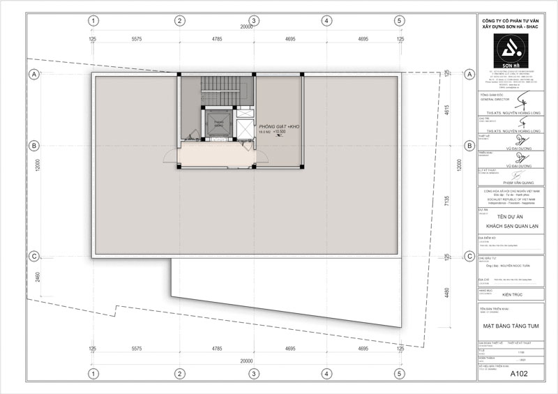
Phòng giặt + kho (18m2): phục vụ nhu cầu vận hành khách sạn
Có thể cải tạo thành café sân thượng hoặc bar ngoài trời, nơi du khách thưởng thức cảnh biển và hoàng hôn Quan Lạn

Sơn Hà Group không chỉ mang đến bản thiết kế đẹp mắt, mà còn đưa ra một giải pháp kinh doanh thực sự hiệu quả.
Tối đa hóa diện tích sử dụng để khai thác nhiều phòng nghỉ nhất
Đảm bảo công năng khoa học từ tiếp đón, ăn uống, nghỉ dưỡng đến dịch vụ hỗ trợ
Tạo bản sắc khác biệt bằng kiến trúc Địa Trung Hải, nâng tầm giá trị thương hiệu khách sạn
Thu hồi vốn nhanh, gia tăng lợi nhuận bền vững cho chủ đầu tư

Mẫu thiết kế khách sạn mini 12x20 tại Quan Lạn, Quảng Ninh chính là minh chứng cho triết lý của Sơn Hà Group: khách sạn nhỏ nhưng có võ. Với giải pháp tối ưu diện tích, tăng số lượng phòng, kết hợp kiến trúc Địa Trung Hải phóng khoáng và câu chuyện di sản giàu cảm xúc, khách sạn trở thành điểm đến độc đáo, khác biệt hoàn toàn với các công trình khác tại Quan Lạn.
Đây không chỉ là một dự án thiết kế - mà còn là hành trình gìn giữ và thăng hoa giá trị xưa, kiến tạo tương lai cho ngành du lịch biển đảo Quảng Ninh.

Bạn đang tìm kiếm giải pháp thiết kế khách sạn mini tối ưu diện tích, thu hồi vốn nhanh, và tạo dấu ấn khác biệt? Hãy để Sơn Hà Group đồng hành cùng bạn!
📞 Hotline: 0916.222.555 - 0906.222.555
🌐 Website: www.shac.vn
✉️ Email: sonha@shac.vn
Sơn Hà Group - Kiến tạo không gian, nâng tầm giá trị!
Ảnh khác
Bình luận