Trong nhịp sống hối hả của phố thị hiện đại, một không gian lưu trú không chỉ là nơi nghỉ chân – mà còn là điểm chạm tinh tế của nghệ thuật, ký ức và cảm xúc. Đó chính là tinh thần mà Sơn Hà Group gửi gắm vào công trình thiết kế khách sạn mini đẹp – một dự án cải tạo từ ngôi nhà cũ 5 tầng thành Boutique Hotel đẳng cấp, mang đậm dấu ấn Tân cổ điển hòa quyện cùng phong cách Indochine.
NỘI DUNG CHÍNH

Trong bối cảnh đô thị ngày càng phát triển, khách sạn mini trở thành lựa chọn tối ưu cho các chủ đầu tư thông minh:
Diện tích vừa phải, dễ quản lý
Chi phí đầu tư hợp lý
Linh hoạt trong kiến trúc và công năng
Dễ tạo dấu ấn riêng biệt qua thiết kế và trải nghiệm khách hàng
Khi mà đại đa số khách du lịch hướng đến sự tiện nghi, độc đáo và cảm xúc, thì một mẫu khách sạn mini đẹp – thiết kế chỉn chu, phong cách rõ nét – chính là lời chào mời cuốn hút nhất.
Tại Hưng Yên, một ngôi nhà 5 tầng cũ kỹ, nhuốm màu thời gian đã tìm thấy hơi thở mới nhờ bàn tay tài hoa của đội ngũ KTS Sơn Hà Group. Không phá bỏ, không lãng quên – chúng tôi lựa chọn tái sinh.
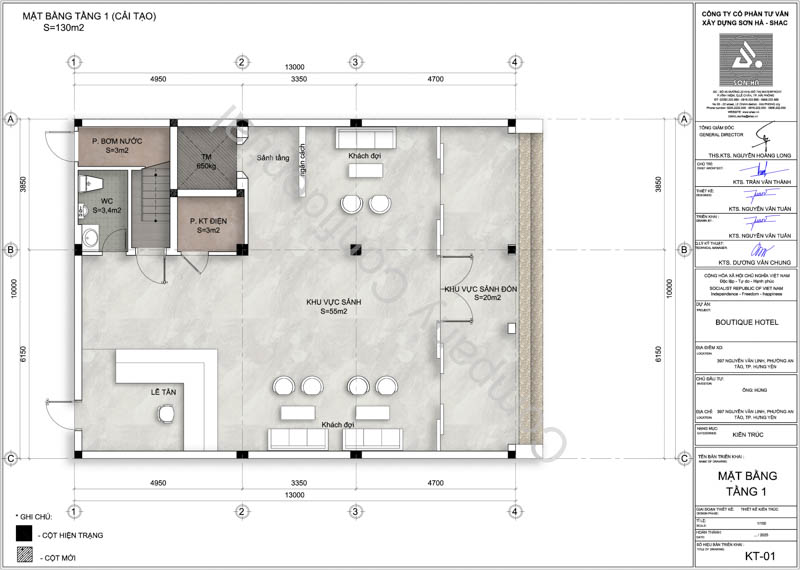
Trên nền móng cũ 130m², chúng tôi khảo sát kỹ kết cấu và địa chất, đưa ra giải pháp cải tạo tối ưu để nâng thêm 2 tầng, tạo nên một khách sạn mini 7 tầng vững chãi và hài hòa trong tổng thể.

Sự cải tạo không đơn thuần là thay mới – đó là hành trình khôi phục giá trị xưa, kết hợp hài hòa với hơi thở hiện đại để tạo nên một mẫu thiết kế khách sạn mini đẹp, đúng nghĩa là “vượt thời gian”.







Dựa trên tinh thần hoài cổ mà thanh thoát, phong cách Tân cổ điển pha lẫn Indochine được chọn làm chủ đạo:
Mái sắt dốc thanh thoát gợi hình ảnh đặc trưng Đông Dương
Cửa vòm mềm mại gợi nhớ kiến trúc Pháp xưa
Phào chỉ, phù điêu nhẹ nhàng nhưng đầy chất nghệ thuật
Gam màu kem - trắng chủ đạo, vừa nền nã, vừa sang trọng
Lan can sắt mỹ thuật uốn cong duyên dáng, mang đậm chất boutique
Tất cả cùng kể một câu chuyện xuyên thời gian – nơi quá khứ và hiện đại bắt tay nhau, tạo nên một không gian nghỉ dưỡng thi vị mà đầy ấn tượng.
Công năng mỗi tầng được Sơn Hà Group tính toán kỹ lưỡng để đáp ứng trọn vẹn nhu cầu vận hành thực tế:
Tầng 1: Khu lễ tân + sảnh chờ sang trọng, khu vực để xe tiện lợi
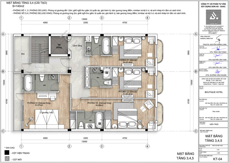
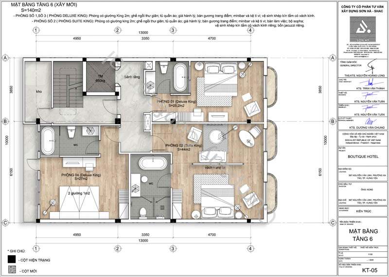
Tầng 2 – 6: Các phòng nghỉ tiện nghi, thiết kế nội thất đồng bộ với kiến trúc tổng thể, mỗi phòng là một “thế giới riêng” đầy cảm hứng
Tầng 7: Khu cà phê sân thượng – nơi lý tưởng ngắm phố thị, tận hưởng khí trời và phong cách sống boutique
Cấu trúc khách sạn tuy nhỏ gọn nhưng không gian bên trong lại rộng mở, thoáng đãng nhờ ánh sáng tự nhiên, thiết kế mở và những điểm nhấn trang trí hợp lý.

Đẹp thôi chưa đủ, một khách sạn mini muốn vận hành hiệu quả cần được xây dựng trên nền tảng kỹ thuật và tư duy kinh tế vững chắc:
Hệ thống điện nước, PCCC được tính toán đạt chuẩn. (Tham khảo Tiêu chuẩn Việt Nam TCVN 6161:1996 về phòng cháy chữa cháy)
Vật liệu chọn lọc vừa đảm bảo thẩm mỹ vừa tiết kiệm năng lượng
Giải pháp cách âm, cách nhiệt tối ưu mang đến trải nghiệm yên tĩnh, dễ chịu cho khách lưu trú
Sơn Hà Group không chỉ thiết kế – chúng tôi đồng hành từ ý tưởng đến thi công, đảm bảo mỗi công trình là một tổng thể hoàn hảo giữa kỹ thuật, nghệ thuật và cảm xúc.
Bạn đang tìm kiếm một mẫu thiết kế khách sạn mini đẹp để đầu tư? Đừng bỏ lỡ những gợi ý dưới đây từ bộ sưu tập đã được ứng dụng thực tế:

Khác với những công trình nằm lọt thỏm giữa dãy phố, khách sạn này sở hữu lợi thế lô góc 2 mặt tiền, tạo nên góc nhìn mở, thông thoáng và thu hút ánh nhìn từ mọi hướng.
Tọa lạc tại trung tâm thành phố Hà Nam – nơi những tuyến phố giao nhau tạo nên những dòng chảy đô thị năng động – một khách sạn mang vẻ đẹp kiêu kỳ, uyển chuyển vừa được Sơn Hà Group hoàn thiện thiết kế khách sạn phong cách tân cổ điển, gồm 4 tầng 1 tum 1 lửng, 35 phòng, nổi bật tại vị trí lô góc kim cương.

Trong vai trò vừa là kiến trúc sư, vừa là người kể chuyện bằng không gian, Sơn Hà Group đã đưa ngôn ngữ tân cổ điển – vốn mang nét lãng mạn, thanh lịch – hòa quyện cùng khí chất hiện đại của thành phố đang phát triển, tạo nên một công trình không chỉ “đẹp để nhìn” mà còn “đắt để trải nghiệm”.

Ngày nay, xu hướng du lịch nghỉ dưỡng tại Đà Lạt – “thành phố ngàn hoa” – không chỉ dừng lại ở cảnh quan mộng mơ mà còn đòi hỏi những không gian lưu trú mang dấu ấn kiến trúc tinh tế, đẳng cấp. Tiêu biểu cho tư duy thiết kế tiên phong đó là dự án thiết kế khách sạn mini phong cách tân cổ điển 5 tầng do Sơn Hà Group thực hiện.

Mẫu khách sạn mini tân cổ điển này tọa lạc trên một sườn đồi dốc, thách thức đội ngũ kiến trúc sư và kỹ sư kết cấu phải đưa ra giải pháp toàn diện: từ móng đến mái, từ phào chỉ ngoại thất đến ánh sáng nội thất.
Việc thiết kế khách sạn mini phong cách tân cổ điển và tiến hành xây dựng trên địa hình đồi dốc đặc trưng của Đà Lạt đặt ra nhiều thách thức lớn cả về kiến trúc lẫn kỹ thuật. Các kiến trúc sư của Sơn Hà Group không chỉ phải nghiên cứu kỹ địa hình để bố trí công năng hợp lý, đảm bảo tầm nhìn đẹp từ mọi vị trí, mà còn cần kết hợp hài hòa với cảnh quan thiên nhiên xung quanh, giữ được vẻ mềm mại, thanh lịch cho tổng thể công trình.


Huyện đảo Cô Tô, Quảng Ninh không chỉ là điểm đến nổi tiếng với vẻ đẹp thiên nhiên hoang sơ và bãi biển thơ mộng, mà còn được nâng tầm với thiết kế khách sạn Cô Tô – một kiệt tác kiến trúc đẳng cấp.
Công trình do Sơn Hà Group, đơn vị thiết kế khách sạn hàng đầu Việt Nam thực hiện, không chỉ đơn thuần là một nơi nghỉ dưỡng mà còn là biểu tượng nghệ thuật kiến trúc tân cổ điển, góp phần khẳng định vị thế du lịch của huyện đảo Cô Tô.


Phong cách tân cổ điển luôn được coi là biểu tượng của sự sang trọng và tinh tế. Ngôn ngữ thiết kế khách sạn Cô Tô với mặt tiền mang đậm dấu ấn của kiến trúc tân cổ điển là minh chứng hoàn hảo cho điều đó:
Nhằm mục đích đáp ứng nhu cầu kinh doanh mới, chủ đầu tư mong muốn cải tạo khách sạn từ diện mạo bên ngoài cho đến kiến trúc bên trong. Với hiện trạng ban đầu là một khách sạn mini 5 tầng chỉ tập trung vào công năng nghỉ ngơi và chưa tận dụng hết diện tích hiện có, thiết kế khách sạn mini hiện đại tại Quảng Ninh đã khoác lên mình diện mạo mới ấn tượng hơn.


Với diện tích không lớn, các khách sạn mini thường được tạo ra để đáp ứng nhu cầu lưu trú cơ bản nhưng vẫn mang đến cho khách hàng trải nghiệm thoải mái.

Với hơn 22 năm kinh nghiệm, Sơn Hà Group tự hào là đơn vị đồng hành cùng hàng trăm chủ đầu tư trên khắp cả nước trong lĩnh vực thiết kế và thi công khách sạn mini, biệt thự, nhà phố, công trình dân dụng...
Chúng tôi không chỉ xây nhà – mà xây nên giá trị. Không chỉ cải tạo – mà là tái sinh một linh hồn kiến trúc.
Bạn đang sở hữu một công trình cũ và mong muốn biến nó thành mẫu khách sạn mini đẹp, ấn tượng, thu hút khách hàng?
Hãy để Sơn Hà Group cùng bạn vẽ nên những đường nét đầu tiên cho giấc mơ ấy.
Mọi chi tiết xin liên hệ:
CÔNG TY CỔ PHẦN TƯ VẤN XÂY DỰNG SƠN HÀ (SHAC)
Trụ sở chính: Số 55, đường 22, KĐT Waterfront City, Lê Chân, Hải Phòng
Văn phòng đại diện
Ảnh khác
Bình luận