Cải tạo khách sạn là công việc cần được các chủ đầu tư lên kế hoạch và thực hiện định kỳ để đảm bảo khách sạn luôn có diện mạo thu hút và dịch vụ cung cấp đáp ứng được nhu cầu của khách hàng. Dự án cải tạo khách sạn mini tại Quảng Ninh được chúng tôi thực hiện nhằm mang đến sự tối ưu trong công năng và khoác lên diện mạo mới ấn tượng hơn cho khách sạn.
NỘI DUNG CHÍNH
Nhằm mục đích đáp ứng nhu cầu kinh doanh mới, chủ đầu tư mong muốn cải tạo khách sạn từ diện mạo bên ngoài cho đến kiến trúc bên trong. Với hiện trạng ban đầu là một khách sạn mini 5 tầng chỉ tập trung vào công năng nghỉ ngơi và chưa tận dụng hết diện tích hiện có, khách sạn mini tại Quảng Ninh đã khoác lên mình diện mạo mới ấn tượng hơn.
Dưới đây mời bạn cùng chúng tôi tìm hiểu giải pháp thiết kế chúng tôi đã sử dụng cho mẫu cải tạo khách sạn mini 5 tầng này tại Quảng Ninh.
Lựa chọn phong cách hiện đại cho thiết kế mặt tiền, chủ đầu tư mong muốn khách sạn sở hữu diện mạo ấn tượng, thu hút khách hàng ngay từ cái nhìn đầu tiên.
Hiểu được mong muốn của chủ đầu tư, chúng tôi đã mang đến cho chị hai mẫu thiết kế mặt tiền độc đáo với hai sắc thái khác biệt cho diện mạo mới của khách sạn.

Điểm nổi bật của thiết kế này là các hình khối đặc rỗng được bố trí linh hoạt, đan xen vào nhau trong kiến trúc. Điểm xuyết trên mặt tiền là gam màu vàng đất tạo điểm nhấn cho kiến trúc bên cạnh các gam màu trung tính chủ đạo là trắng, đen, xám.
Yếu tố cây xanh tạo thẩm mỹ và thu hút cho mặt tiền khách sạn.

Dù vẫn sử dụng gam màu trung tính kết hợp với một màu sắc nổi bật nhưng ở mẫu thiết kế thứ 2, màu sắc sử dụng mang đến cảm giác thoáng sáng hơn với gam màu cam đất. Các ô cửa sổ với kích thước vừa phải được thêm vào các vị trí cần thiết, tạo khoảng thở đan xen giữa khối kiến trúc đặc của khách sạn. Thiết kế mang đến cảm giác vững chắc, riêng tư hơn so với mẫu thiết kế đầu tiên.
Với diện tích không lớn, các khách sạn mini thường được tạo ra để đáp ứng nhu cầu lưu trú cơ bản nhưng vẫn mang đến cho khách hàng trải nghiệm thoải mái. Ở dự án cải tạo khách sạn mini 5 tầng tại Quảng Ninh, chúng tôi đã bổ sung thêm các tiện ích vào không gian khách sạn.
Nếu ban đầu khách sạn chỉ được thiết kế để phục vụ cho nhu cầu nghỉ ngơi của du khách thì ở thiết kế cải tạo, chúng tôi đã thêm tiện ích quán coffee tại tầng 1 để khách hàng có thêm không gian thư giãn khi lưu trú tại đây.


Các phòng nghỉ cũng được cải tạo thành các căn hộ với khu vực bếp đáp ứng nhu cầu sinh hoạt, nấu ăn và nghỉ ngơi cho khách hàng là gia đình, nhóm bạn có nhu cầu lưu trú dài ngày tại khách sạn.
Đặc biệt, các khoảng thông tầng được sử dụng đan xen trong thiết kế khách sạn, tạo khoảng mở và điểm nhấn thú vị cho không gian bên trong khách sạn.
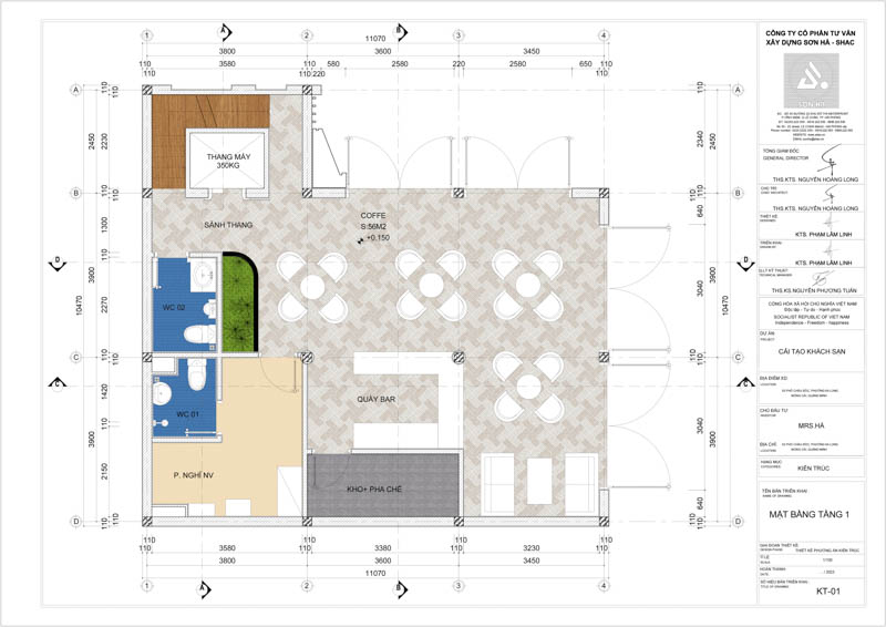
Bên cạnh mặt tiền thu hút, khách sạn mini 5 tầng tại Quảng Ninh cũng được cải tạo và sắp đặt lại công năng cho các không gian bên trong, giúp khách sạn tận dụng tối đa diện tích hiện có và mang đến các dịch vụ chất lượng cho khách hàng.


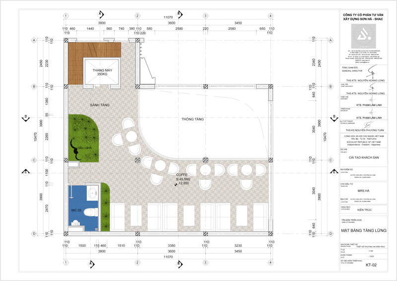
Không gian tầng 1 và tầng lửng khách sạn được tận dụng để đặt một quán cafe tại đây. Vị trí thuận lợi để kinh doanh quán coffee, đồng thời, tăng thêm trải nghiệm cho khách hàng khi lưu trú tại khách sạn.


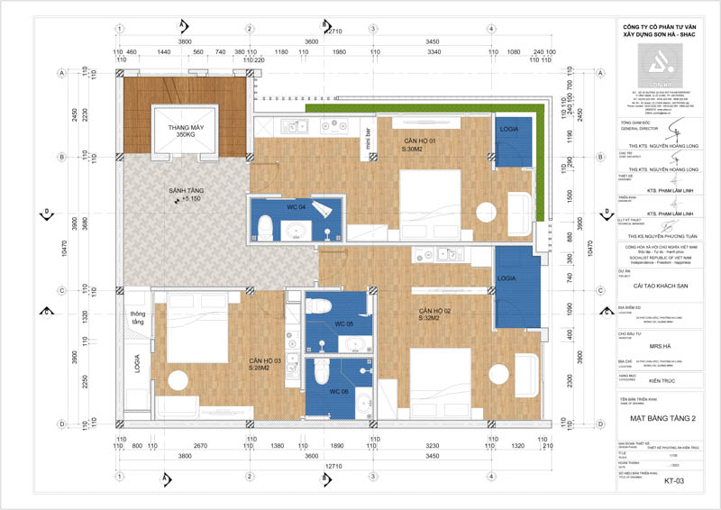
Khu vực tầng 2 và tầng 3 là khu vực bao gồm 6 phòng ngủ với thiết kế giường đôi, phục vụ nhu cầu nghỉ ngơi của du khách.


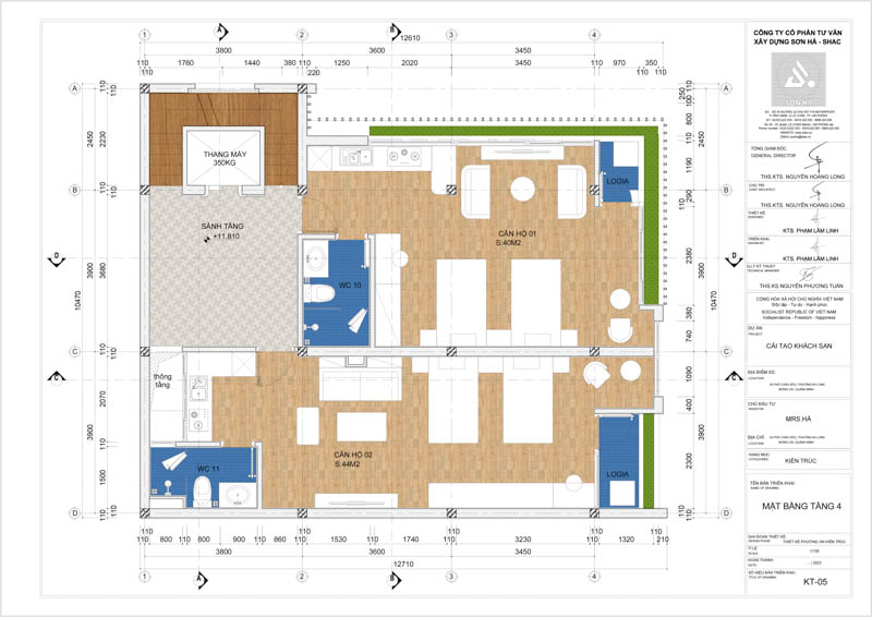
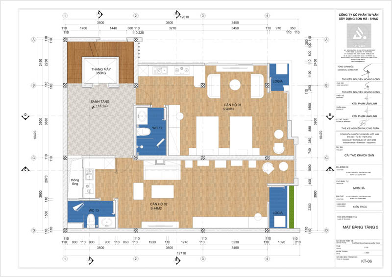
Khác với các căn hộ tại tầng 2 và tầng 3, căn hộ tại tầng 4 và 5 bao gồm các thiết kế giường đơn, phù hợp cho các khách hàng đi theo hội nhóm, gia đình. Bên cạnh đó, một khu vực logia nhỏ được đặt tại các tầng này, mở rộng thêm không gian thư giãn cho khách hàng.

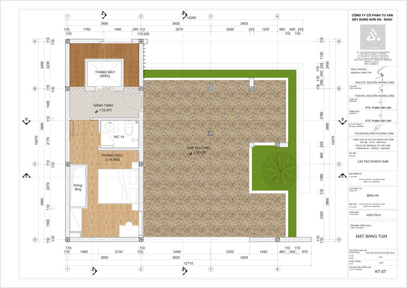
Tầng tum được tận dụng để đặt một phòng ngủ cho chủ khách sạn đồng thời là khoảng sân thượng rộng rãi với tầm nhìn thoáng đãng ra khung cảnh thành phố.
Khi lựa chọn phong cách thiết kế để cải tạo khách sạn, chủ đầu tư nên lựa chọn các phong cách thiết kế phù hợp với nhu cầu, sở thích của khách hàng mục tiêu và ngân sách hiện có của mình.
Một số phong cách thiết kế phổ biến cho khách sạn hiện nay là: phong cách Hiện đại, Phong cách Cổ điển, Phong cách Tân cổ điển, Phong cách Tối giản, Phong cách Indochine,...
Cải tạo khách sạn mini gồm các hạng mục chính sau:
Ngoài ra, việc cải tạo khách sạn mini có thể bao gồm việc cải tạo các khu vực chức năng, không gian chức năng khác tùy theo nhu cầu và mục đích cải tạo của chủ đầu tư.
Để cải tạo khách sạn mini thành công, các chủ đầu tư cần lưu ý:
Chi phí cải tạo khách sạn phụ thuộc vào nhiều yếu tố như hạng mục cải tạo, quy mô khách sạn, vị trí khách sạn, giá vật liệu và nhân công,... Để biết chi tiết về chi phí này, quý khách hãy liên hệ với Sơn Hà Group để được tư vấn và báo giá chi tiết nhất.
Thời gian cải tạo khách sạn phụ thuộc vào nhiều yếu tố như: tình trạng trước cải tạo của khách sạn, hạng mục cải tạo, quy mô khách sạn,... Thông thường, thời gian cải tạo một khách sạn mini thường từ 3-6 tháng.
Khi cải tạo khách sạn mini, chủ đầu tư cần lưu ý đến các vấn đề sau:
- Có kế hoạch cải tạo chi tiết, tránh phát sinh chi phí ngoài ý muốn
- Lựa chọn giải pháp thiết kế hợp lý, đảm bảo tính thẩm mỹ, công năng và đáp ứng nhu cầu của du khách hàng.
- Kiểm tra, nghiệm thu kỹ lưỡng công trình trước khi đưa vào sử dụng
Ngoài ra, chủ đầu tư cũng cần tìm hiểu các quy định của Pháp luật về xây dựng và kinh doanh khách sạn để đảm bảo dự án được thực hiện đúng quy định.
Việc chuẩn bị cho quá trình quản lý và bảo trì khách sạn thường được Sơn Hà Group tư vấn và thực hiện trong quá trình thiết kế cho các khách hàng. Kiến trúc sư sẽ tư vấn những lựa chọn phù hợp, nhằm giúp khách hàng đơn giản hóa quá trình chăm sóc công trình của mình. Quá trình thi công kỹ lưỡng sẽ giúp các gia chủ hạn chế được các rủi ro, đảm bảo giá trị thẩm mỹ lẫn tuổi thọ kết cấu của khách sạn.
Sơn Hà Group tự hào được là đơn vị đồng hành cùng bạn xây nên các mẫu khách sạn thu hút qua các dịch vụ: tư vấn phương án thi công, phong cách thiết kế hợp lý và chọn vật liệu phù hợp nhất với nhu cầu.
Với đội ngũ kiến trúc sư dày dặn kinh nghiệm và có khiếu thẩm mỹ cao, Sơn Hà Group sẽ hỗ trợ khách hàng thiết kế, cải tạo và tư vấn lựa chọn phương án thiết kế phù hợp.
Để sở hữu một mẫu thiết kế khách sạn sang trọng, tiện nghi theo tiêu chuẩn Quốc tế, đáp ứng nhu cầu sử dụng của du khách, bạn cần chọn cho mình một đơn vị thiết kế, thi công uy tín, chất lượng cho dự án của mình.

Là đơn vị có hơn 20 năm kinh nghiệm thiết kế, thi công các mẫu khách sạn mini cho khách hàng trong cả nước, Sơn Hà Group tự hào được đồng hành và cùng bạn tạo ra một không gian sống như ý với:
Trên đây là toàn bộ phương án thiết kế và cải tạo cho khách sạn mini 5 tầng 122m2 được chúng tôi thực hiện cho chủ đâu tư tại Quảng Ninh. Bạn đang tìm ý tưởng thiết kế phù hợp cho không gian sống của mình, hãy liên hệ với Sơn Hà Group để chúng tôi hỗ trợ và giúp bạn biến không gian mơ ước thành hiện thực.
Mọi chi tiết xin liên hệ:
CÔNG TY CỔ PHẦN TƯ VẤN XÂY DỰNG SƠN HÀ (SHAC)
Trụ sở chính: Số 55 đường 22 KĐT Waterfront, Lê Chân, Hải Phòng
Văn phòng đại diện
Ảnh khác
Bình luận