Thiết kế Crown Hotel 10 tầng tại Hưng Yên là bản giao hưởng của kiến trúc tân cổ điển sang trọng và tư duy khai thác thương mại hiện đại. Tọa lạc tại trung tâm Phố Hiến - vùng đất giàu truyền thống lịch sử và đang chuyển mình mạnh mẽ về kinh tế - công trình không chỉ là một khách sạn lưu trú mà còn là biểu tượng thẩm mỹ mới, góp phần định hình diện mạo đô thị khu vực.
Với quy mô 132m2 x 10 tầng, phong cách thiết kế khách sạn tân cổ điển tinh tế, cùng giải pháp công năng tối ưu cho khai thác dài hạn, Crown Hotel hứa hẹn trở thành điểm dừng chân lý tưởng cho du khách, doanh nhân và chuyên gia nước ngoài đang sinh sống, làm việc tại các khu công nghiệp trọng điểm của tỉnh Hưng Yên.
NỘI DUNG CHÍNH
Phố Hiến (Hưng Yên) từng là thương cảng sầm uất bậc nhất miền Bắc thế kỷ XVII - XVIII, nơi giao thương của người Việt, Trung Hoa, Nhật Bản và phương Tây. Ngày nay, khu vực này tiếp tục giữ vai trò quan trọng khi Hưng Yên trở thành điểm sáng thu hút FDI với hàng loạt khu công nghiệp lớn.
Chính nhờ vị trí chiến lược này, thiết kế Crown Hotel tại Hưng Yên được định hướng phục vụ song song hai nhóm khách hàng:
Sự kết hợp giữa yếu tố văn hóa - lịch sử và phát triển công nghiệp tạo nên nhu cầu lưu trú chất lượng cao, ổn định quanh năm. Đây chính là nền tảng để mô hình thiết kế khách sạn 10 tầng phát huy tối đa hiệu quả đầu tư.

Crown Hotel gây ấn tượng mạnh bởi bố cục mặt đứng đăng đối, tỷ lệ hình khối cân bằng và trục trung tâm xuyên suốt từ tầng đế đến mái. Hệ cột giả, phào chỉ, ban công sắt nghệ thuật được bố trí nhịp nhàng, tạo chiều sâu không gian và hiệu ứng thị giác sang trọng.
Đây là đặc trưng nổi bật của thiết kế khách sạn tân cổ điển - đề cao tính chuẩn mực, tinh tế nhưng không phô trương.
Công trình sau khi hoàn thiện sẽ khoác lên mình sắc trắng kem trang nhã. Gam màu này không chỉ giúp công trình nổi bật giữa phố thị mà còn mang lại cảm giác sạch sẽ, cao cấp và trường tồn với thời gian.
Sắc trắng kem khi kết hợp cùng ánh sáng vàng ấm từ hệ đèn ngoại thất sẽ tạo nên hiệu ứng lung linh về đêm - yếu tố quan trọng đối với một khách sạn cần nhận diện thương hiệu mạnh mẽ.
Cổng chính của khách sạn 10 tầng này được ốp đá tự nhiên cao cấp, mang đến vẻ chắc chắn, bề thế. Đây không chỉ là giải pháp thẩm mỹ mà còn giúp tăng độ bền, chống bám bẩn và giữ công trình luôn mới trong quá trình khai thác lâu dài.

Các chi tiết kim loại mạ tinh xảo tại lan can, bảng hiệu “CROWN HOTEL” và khung cửa chính được xử lý tinh tế, tạo điểm nhấn sang trọng nhưng vẫn hài hòa tổng thể.

Sảnh khách sạn được thiết kế với cửa vòm kính lớn, khung sắt mỹ thuật uốn lượn mềm mại. Hệ đèn chùm treo trần tạo điểm nhấn trung tâm, kết hợp cùng bậc tam cấp ốp đá và chậu cây xanh bố trí đối xứng hai bên.
Tất cả tạo nên một không gian đón tiếp trang trọng, chuyên nghiệp - yếu tố quan trọng trong việc nâng tầm hình ảnh thương hiệu khách sạn.
Các tầng trên sử dụng hệ cửa kính lớn khung nhôm tối màu, vừa tạo sự tương phản thẩm mỹ vừa đảm bảo khả năng lấy sáng, thông gió tối ưu. Ban công sắt nghệ thuật giúp tăng giá trị trải nghiệm cho từng phòng lưu trú.
Đối với mô hình thiết kế khách sạn 10 tầng diện tích 130m2, việc khai thác ánh sáng tự nhiên giúp tiết kiệm năng lượng và nâng cao chất lượng không gian bên trong.
>>> Xem thêm các mẫu khách sạn 10 tầng do Sơn Hà thiết kế tại đây

Đẹp thôi chưa đủ, một khách sạn mini muốn vận hành hiệu quả cần được xây dựng trên nền tảng kỹ thuật an toàn và tư duy kinh tế vững chắc:
Hệ thống điện nước, PCCC được tính toán đạt chuẩn. (Tham khảo Tiêu chuẩn Việt Nam TCVN 6161:1996 về phòng cháy chữa cháy)
Vật liệu chọn lọc vừa đảm bảo thẩm mỹ vừa tiết kiệm năng lượng
Giải pháp cách âm, cách nhiệt tối ưu mang đến trải nghiệm yên tĩnh, dễ chịu cho khách lưu trú
Sơn Hà Group không chỉ thiết kế - chúng tôi đồng hành từ ý tưởng đến thi công, đảm bảo mỗi công trình là một tổng thể hoàn hảo giữa kỹ thuật, nghệ thuật và cảm xúc.

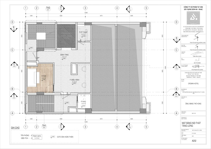
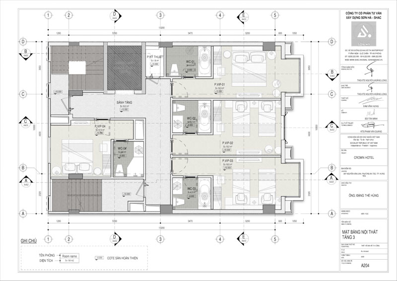
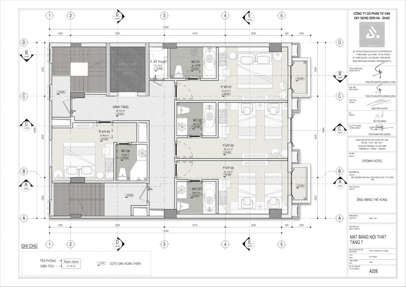
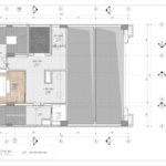
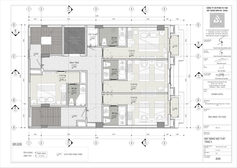
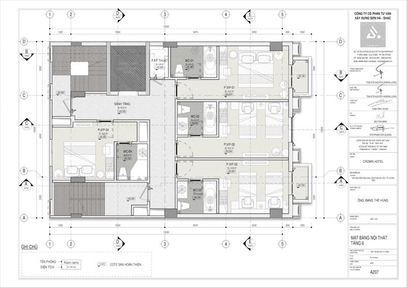
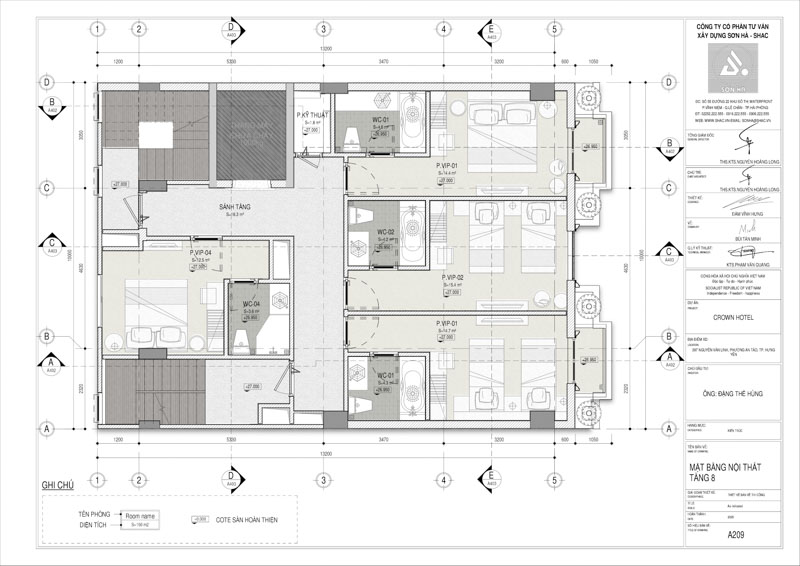
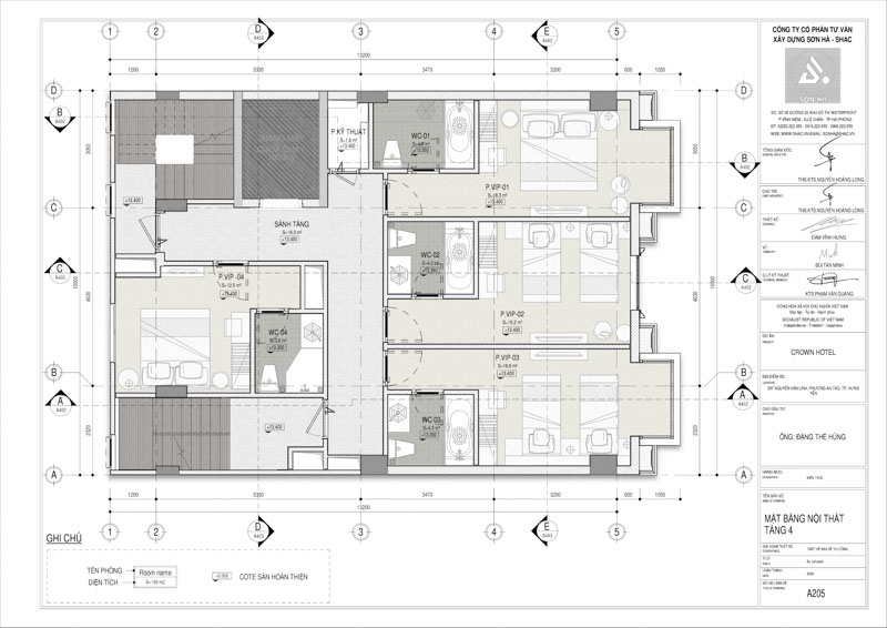
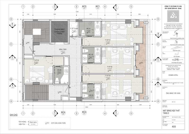
Với diện tích 130m2 mỗi sàn, đội ngũ kiến trúc sư Sơn Hà Group đã nghiên cứu kỹ lưỡng để đảm bảo sự cân bằng giữa thẩm mỹ và hiệu quả vận hành.






Thiết kế theo phương án này giúp tối ưu số lượng phòng, đảm bảo dòng tiền ổn định và linh hoạt điều chỉnh mô hình kinh doanh theo từng giai đoạn.
Đây chính là yếu tố làm nên sự khác biệt của thiết kế Crown Hotel 10 tầng tại Hưng Yên so với các mô hình khách sạn quy mô nhỏ lẻ thông thường.
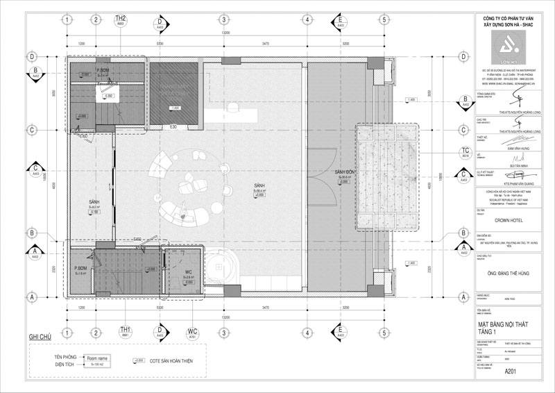
Không gian nội thất khách sạn được thiết kế theo hơi hướng Indochine tái hiện vẻ đẹp giao thoa giữa nét hoài cổ Á Đông và sự tinh tế của kiến trúc Pháp, mang lại cảm giác sang trọng nhưng vẫn gần gũi, ấm áp.
Từ sảnh lễ tân tới các phòng nghỉ, nhà hàng buffet của khách sạn, mọi chi tiết đều được chăm chút với tinh thần Indochine xuyên suốt, tạo nên một hành trình trải nghiệm liền mạch, đậm chất thẩm mỹ và đầy cảm xúc

Trong bối cảnh Hưng Yên phát triển mạnh về công nghiệp và dịch vụ, nhu cầu lưu trú chất lượng cao ngày càng tăng. Crown Hotel không chỉ là công trình kiến trúc đẹp mà còn là chiến lược đầu tư dài hạn, bền vững.
Với phong cách tân cổ điển sang trọng, vị trí đắc địa và quy mô hợp lý, công trình hứa hẹn mang lại:
Khách sạn được thiết kế theo phong cách tân cổ điển, nhấn mạnh sự sang trọng, đăng đối và chi tiết tinh xảo.
Dự án có diện tích 132 m2 mỗi sàn, tổng cộng 10 tầng.
Du khách tham quan Phố Hiến và chuyên gia, doanh nhân làm việc tại các khu công nghiệp Hưng Yên.
Quy mô 10 tầng giúp tối ưu số lượng phòng, nâng cao hiệu quả kinh doanh và tạo lợi thế cạnh tranh về hình ảnh.
Ảnh khác