Ngày đăng 04/16/2026
Ngày cập nhật 04/16/2026
Đánh giá post

Tọa lạc tại khu du lịch Đồi Rồng Đồ Sơn, dự án Dragon Nest là một hướng đi khác biệt trong xu hướng thiết kế khách sạn ven biển hiện nay. Khi phần lớn công trình xung quanh theo đuổi sự nổi bật với màu sắc rực rỡ, Dragon Nest lựa chọn triết lý ngược lại - tối giản, tinh tế và giàu chiều sâu cảm xúc.

Dựa trên bản vẽ mặt bằng và phương án nội thất, công trình không chỉ giải quyết bài toán thẩm mỹ mà còn tối ưu vận hành, công suất khai thác và độ bền trong môi trường biển đặc thù. Bài viết dưới đây sẽ cho quý Anh/Chị công thức tạo nên khách sạn mini sinh lời bền vững.

Tổng quan dự án thiết kế khách sạn Dragon Nest

Thiết kế khách sạn ven biển Dragon Nest Đồ Sơn Hải Phòng - Khám phá công thức tạo nên khách sạn mini sinh lời bền vững 1
Thiết kế khách sạn ven biển Dragon Nest Đồ Sơn Hải Phòng - Khám phá công thức tạo nên khách sạn mini sinh lời bền vững 2
Thiết kế khách sạn ven biển Dragon Nest Đồ Sơn Hải Phòng - Khám phá công thức tạo nên khách sạn mini sinh lời bền vững 3
Thiết kế khách sạn ven biển Dragon Nest Đồ Sơn Hải Phòng - Khám phá công thức tạo nên khách sạn mini sinh lời bền vững 4
Thiết kế khách sạn ven biển Dragon Nest Đồ Sơn Hải Phòng - Khám phá công thức tạo nên khách sạn mini sinh lời bền vững 5
Thiết kế khách sạn ven biển Dragon Nest Đồ Sơn Hải Phòng - Khám phá công thức tạo nên khách sạn mini sinh lời bền vững 6
Thiết kế khách sạn ven biển Dragon Nest Đồ Sơn Hải Phòng - Khám phá công thức tạo nên khách sạn mini sinh lời bền vững 7
Thiết kế khách sạn ven biển Dragon Nest Đồ Sơn Hải Phòng - Khám phá công thức tạo nên khách sạn mini sinh lời bền vững 8
Thiết kế khách sạn ven biển Dragon Nest Đồ Sơn Hải Phòng - Khám phá công thức tạo nên khách sạn mini sinh lời bền vững 9
Thiết kế khách sạn ven biển Dragon Nest Đồ Sơn Hải Phòng - Khám phá công thức tạo nên khách sạn mini sinh lời bền vững 10
Thiết kế khách sạn ven biển Dragon Nest Đồ Sơn Hải Phòng - Khám phá công thức tạo nên khách sạn mini sinh lời bền vững 11
Thiết kế khách sạn ven biển Dragon Nest Đồ Sơn Hải Phòng - Khám phá công thức tạo nên khách sạn mini sinh lời bền vững 12
Thiết kế khách sạn ven biển Dragon Nest Đồ Sơn Hải Phòng - Khám phá công thức tạo nên khách sạn mini sinh lời bền vững 13
Thiết kế khách sạn ven biển Dragon Nest Đồ Sơn Hải Phòng - Khám phá công thức tạo nên khách sạn mini sinh lời bền vững 14
Thiết kế khách sạn ven biển Dragon Nest Đồ Sơn Hải Phòng - Khám phá công thức tạo nên khách sạn mini sinh lời bền vững 15
Thiết kế khách sạn ven biển Dragon Nest Đồ Sơn Hải Phòng - Khám phá công thức tạo nên khách sạn mini sinh lời bền vững 16
Thiết kế khách sạn ven biển Dragon Nest Đồ Sơn Hải Phòng - Khám phá công thức tạo nên khách sạn mini sinh lời bền vững 17
Thiết kế khách sạn ven biển Dragon Nest Đồ Sơn Hải Phòng - Khám phá công thức tạo nên khách sạn mini sinh lời bền vững 18
Thiết kế khách sạn ven biển Dragon Nest Đồ Sơn Hải Phòng - Khám phá công thức tạo nên khách sạn mini sinh lời bền vững 19
Thiết kế khách sạn ven biển Dragon Nest Đồ Sơn Hải Phòng - Khám phá công thức tạo nên khách sạn mini sinh lời bền vững 20
Thiết kế khách sạn ven biển Dragon Nest Đồ Sơn Hải Phòng - Khám phá công thức tạo nên khách sạn mini sinh lời bền vững 21
Thiết kế khách sạn ven biển Dragon Nest Đồ Sơn Hải Phòng - Khám phá công thức tạo nên khách sạn mini sinh lời bền vững 22
Thiết kế khách sạn ven biển Dragon Nest Đồ Sơn Hải Phòng - Khám phá công thức tạo nên khách sạn mini sinh lời bền vững 23
Thiết kế khách sạn ven biển Dragon Nest Đồ Sơn Hải Phòng - Khám phá công thức tạo nên khách sạn mini sinh lời bền vững 24
Thiết kế khách sạn ven biển Dragon Nest Đồ Sơn Hải Phòng - Khám phá công thức tạo nên khách sạn mini sinh lời bền vững 25
Thiết kế khách sạn ven biển Dragon Nest Đồ Sơn Hải Phòng - Khám phá công thức tạo nên khách sạn mini sinh lời bền vững 26
Thiết kế khách sạn ven biển Dragon Nest Đồ Sơn Hải Phòng - Khám phá công thức tạo nên khách sạn mini sinh lời bền vững 27
Thiết kế khách sạn ven biển Dragon Nest Đồ Sơn Hải Phòng - Khám phá công thức tạo nên khách sạn mini sinh lời bền vững 28
Thiết kế khách sạn ven biển Dragon Nest Đồ Sơn Hải Phòng - Khám phá công thức tạo nên khách sạn mini sinh lời bền vững 29
Thiết kế khách sạn ven biển Dragon Nest Đồ Sơn Hải Phòng - Khám phá công thức tạo nên khách sạn mini sinh lời bền vững 30
Thiết kế khách sạn ven biển Dragon Nest Đồ Sơn Hải Phòng - Khám phá công thức tạo nên khách sạn mini sinh lời bền vững 31
Thiết kế khách sạn ven biển Dragon Nest Đồ Sơn Hải Phòng - Khám phá công thức tạo nên khách sạn mini sinh lời bền vững 32
Thiết kế khách sạn ven biển Dragon Nest Đồ Sơn Hải Phòng - Khám phá công thức tạo nên khách sạn mini sinh lời bền vững 33
Thiết kế khách sạn ven biển Dragon Nest Đồ Sơn Hải Phòng - Khám phá công thức tạo nên khách sạn mini sinh lời bền vững 34
Thiết kế khách sạn ven biển Dragon Nest Đồ Sơn Hải Phòng - Khám phá công thức tạo nên khách sạn mini sinh lời bền vững 35
Thiết kế khách sạn ven biển Dragon Nest Đồ Sơn Hải Phòng - Khám phá công thức tạo nên khách sạn mini sinh lời bền vững 36
Thiết kế khách sạn ven biển Dragon Nest Đồ Sơn Hải Phòng - Khám phá công thức tạo nên khách sạn mini sinh lời bền vững 37
Thiết kế khách sạn ven biển Dragon Nest Đồ Sơn Hải Phòng - Khám phá công thức tạo nên khách sạn mini sinh lời bền vững 38
Thiết kế khách sạn ven biển Dragon Nest Đồ Sơn Hải Phòng - Khám phá công thức tạo nên khách sạn mini sinh lời bền vững 39
Thiết kế khách sạn ven biển Dragon Nest Đồ Sơn Hải Phòng - Khám phá công thức tạo nên khách sạn mini sinh lời bền vững 40
Thiết kế khách sạn ven biển Dragon Nest Đồ Sơn Hải Phòng - Khám phá công thức tạo nên khách sạn mini sinh lời bền vững 41
Thiết kế khách sạn ven biển Dragon Nest Đồ Sơn Hải Phòng - Khám phá công thức tạo nên khách sạn mini sinh lời bền vững 42
Thiết kế khách sạn ven biển Dragon Nest Đồ Sơn Hải Phòng - Khám phá công thức tạo nên khách sạn mini sinh lời bền vững 43
Thiết kế khách sạn ven biển Dragon Nest Đồ Sơn Hải Phòng - Khám phá công thức tạo nên khách sạn mini sinh lời bền vững 44
Thiết kế khách sạn ven biển Dragon Nest Đồ Sơn Hải Phòng - Khám phá công thức tạo nên khách sạn mini sinh lời bền vững 45
Thiết kế khách sạn ven biển Dragon Nest Đồ Sơn Hải Phòng - Khám phá công thức tạo nên khách sạn mini sinh lời bền vững 46
Thiết kế khách sạn ven biển Dragon Nest Đồ Sơn Hải Phòng - Khám phá công thức tạo nên khách sạn mini sinh lời bền vững 47
Thiết kế khách sạn ven biển Dragon Nest Đồ Sơn Hải Phòng - Khám phá công thức tạo nên khách sạn mini sinh lời bền vững 48
Thiết kế khách sạn ven biển Dragon Nest Đồ Sơn Hải Phòng - Khám phá công thức tạo nên khách sạn mini sinh lời bền vững 49
Thiết kế khách sạn ven biển Dragon Nest Đồ Sơn Hải Phòng - Khám phá công thức tạo nên khách sạn mini sinh lời bền vững 50
Thiết kế khách sạn ven biển Dragon Nest Đồ Sơn Hải Phòng - Khám phá công thức tạo nên khách sạn mini sinh lời bền vững 51
Thiết kế khách sạn ven biển Dragon Nest Đồ Sơn Hải Phòng - Khám phá công thức tạo nên khách sạn mini sinh lời bền vững 52
Thiết kế khách sạn ven biển Dragon Nest Đồ Sơn Hải Phòng - Khám phá công thức tạo nên khách sạn mini sinh lời bền vững 53
Thiết kế khách sạn ven biển Dragon Nest Đồ Sơn Hải Phòng - Khám phá công thức tạo nên khách sạn mini sinh lời bền vững 54
Thiết kế khách sạn ven biển Dragon Nest Đồ Sơn Hải Phòng - Khám phá công thức tạo nên khách sạn mini sinh lời bền vững 55
Thiết kế khách sạn ven biển Dragon Nest Đồ Sơn Hải Phòng - Khám phá công thức tạo nên khách sạn mini sinh lời bền vững 56
Thiết kế khách sạn ven biển Dragon Nest Đồ Sơn Hải Phòng - Khám phá công thức tạo nên khách sạn mini sinh lời bền vững 57
Thiết kế khách sạn ven biển Dragon Nest Đồ Sơn Hải Phòng - Khám phá công thức tạo nên khách sạn mini sinh lời bền vững 58
Thiết kế khách sạn ven biển Dragon Nest Đồ Sơn Hải Phòng - Khám phá công thức tạo nên khách sạn mini sinh lời bền vững 59
Thiết kế khách sạn ven biển Dragon Nest Đồ Sơn Hải Phòng - Khám phá công thức tạo nên khách sạn mini sinh lời bền vững 60
Thiết kế khách sạn ven biển Dragon Nest Đồ Sơn Hải Phòng - Khám phá công thức tạo nên khách sạn mini sinh lời bền vững 61
Thiết kế khách sạn ven biển Dragon Nest Đồ Sơn Hải Phòng - Khám phá công thức tạo nên khách sạn mini sinh lời bền vững 62
Thiết kế khách sạn ven biển Dragon Nest Đồ Sơn Hải Phòng - Khám phá công thức tạo nên khách sạn mini sinh lời bền vững 63
Thiết kế khách sạn ven biển Dragon Nest Đồ Sơn Hải Phòng - Khám phá công thức tạo nên khách sạn mini sinh lời bền vững 64
Thiết kế khách sạn ven biển Dragon Nest Đồ Sơn Hải Phòng - Khám phá công thức tạo nên khách sạn mini sinh lời bền vững 65
Thiết kế khách sạn ven biển Dragon Nest Đồ Sơn Hải Phòng - Khám phá công thức tạo nên khách sạn mini sinh lời bền vững 66
Thiết kế khách sạn ven biển Dragon Nest Đồ Sơn Hải Phòng - Khám phá công thức tạo nên khách sạn mini sinh lời bền vững 67
Thiết kế khách sạn ven biển Dragon Nest Đồ Sơn Hải Phòng - Khám phá công thức tạo nên khách sạn mini sinh lời bền vững 68
Thiết kế khách sạn ven biển Dragon Nest Đồ Sơn Hải Phòng - Khám phá công thức tạo nên khách sạn mini sinh lời bền vững 69
Thiết kế khách sạn ven biển Dragon Nest Đồ Sơn Hải Phòng - Khám phá công thức tạo nên khách sạn mini sinh lời bền vững 70
Chủ đầu tư: Ông Đỗ Lê Hải
Địa chỉ: , Đồ Sơn. Hải Phòng
Loại hình: Khách sạn mini ven biển
Đ/v thực hiện: Sơn Hà Group (#SHAC)
Số Tầng: 5 tầng 1 tum
Mặt tiền: 6m
Tổng diện tích: 100m2
Năm thực hiện: 2025
Công năng:
  • Tầng 1: Sân trước, Sân sau, Sảnh lễ tân, Nhà hàng
Thiết kế khách sạn ven biển Dragon Nest Đồ Sơn Hải Phòng - Mặt bằng tầng 1
Thiết kế khách sạn ven biển Dragon Nest Đồ Sơn Hải Phòng - Mặt bằng tầng 1
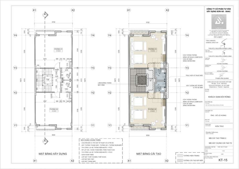
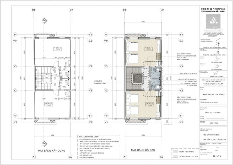
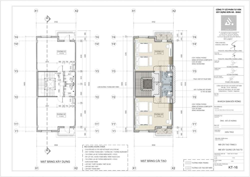
  • Tầng 2 - 4: 02 Phòng Twin
Thiết kế khách sạn ven biển Dragon Nest Đồ Sơn Hải Phòng - Mặt bằng tầng 2
Thiết kế khách sạn ven biển Dragon Nest Đồ Sơn Hải Phòng - Mặt bằng tầng 2
  • Tầng 5: 02 Phòng Double
Thiết kế khách sạn ven biển Dragon Nest Đồ Sơn Hải Phòng - Mặt bằng tầng 5
Thiết kế khách sạn ven biển Dragon Nest Đồ Sơn Hải Phòng - Mặt bằng tầng 5
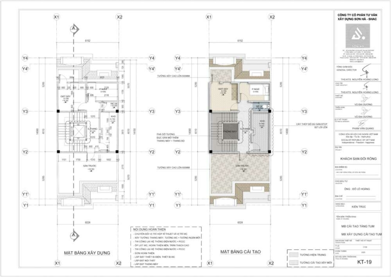
  • Tầng Tum: Phòng giặt sấy, Phòng nghỉ nhân viên, Kho, WC, Sảnh thang, Sân trước
Thiết kế khách sạn ven biển Dragon Nest Đồ Sơn Hải Phòng - Mặt bằng tầng tum
Thiết kế khách sạn ven biển Dragon Nest Đồ Sơn Hải Phòng - Mặt bằng tầng tum

Theo hồ sơ kỹ thuật, mỗi tầng được bố trí 2-4 phòng với diện tích dao động từ 22m2 đến 32m2, kết hợp hệ lõi giao thông gồm thang bộ và thang máy trung tâm, đảm bảo lưu thông thuận tiện và tối ưu diện tích kinh doanh.

Thiết kế khách sạn ven biển cần giải quyết bài toán gì?

Thiết kế khách sạn ven biển cần giải quyết bài toán gì?
Thiết kế khách sạn ven biển cần giải quyết bài toán gì?

Đặc thù khí hậu biển và tác động vật liệu

  • Hơi muối gây ăn mòn kim loại
  • Độ ẩm cao ảnh hưởng vật liệu nội thất
  • Gió biển mạnh tác động kết cấu

Giải pháp của các KTS Sơn Hà đưa ra và áp dụng:

  • Sử dụng vật liệu chống ăn mòn, ưu tiên nhôm kính, gỗ nhựa composite
  • Đường ống bọc bảo ôn chống ngưng tụ, giảm tiếng ồn trong quá trình xả nước
  • Kết cấu hạn chế khe hở, tăng độ bền lâu dài

Bài toán công suất và hoàn vốn

Tối đa số lượng phòng có giường đôi hoặc twin để rút ngắn thời gian thu hồi vốn
Tối đa số lượng phòng có giường đôi hoặc twin để rút ngắn thời gian thu hồi vốn

Với mô hình khách sạn mini, mỗi mét vuông đều mang giá trị kinh doanh. Bố trí mặt bằng cần đảm bảo:

  • Tối đa số lượng phòng
  • Không gian vẫn thoáng và dễ chịu
  • Tối ưu vận hành, giảm chi phí bảo trì

Dragon Nest giải quyết bằng cách tổ chức mặt bằng theo module lặp lại dễ thi công, sử dụng những vật liệu phù hợp với định hướng thiết kế và chi phí đề ra của chủ đầu tư, từ đó giúp kiểm soát chi phí tốt hơn.

Giải pháp thiết kế khách sạn mini ven biển tối ưu công năng

Giải pháp thiết kế khách sạn mini ven biển tối ưu công năng
Giải pháp thiết kế khách sạn mini ven biển tối ưu công năng

Tối ưu mặt bằng theo trục kỹ thuật

Từ bản vẽ cải tạo, các khu vệ sinh được gom về một trục kỹ thuật chung, giúp:

  • Rút ngắn đường ống cấp thoát nước
  • Dễ bảo trì, sửa chữa
  • Giảm chi phí thi công

Đây là giải pháp quan trọng trong thiết kế khách sạn hiện đại, đặc biệt với công trình nhiều tầng

Phân bổ diện tích phòng hợp lý

Các phòng được thiết kế linh hoạt:

  • Phòng tiêu chuẩn: 22-25m2
  • Phòng nâng cấp: 27-32m2

Diện tích này đủ để bố trí:

  • Giường đôi hoặc twin
  • Tủ đồ
  • WC riêng
  • Khu làm việc nhỏ

Nhờ vậy, công trình đạt cân bằng giữa số lượng phòng và trải nghiệm khách hàng.

Tối ưu trải nghiệm lưu trú

100% các phòng đều có đèn đọc sách
100% các phòng đều có đèn đọc sách

Một số tiêu chuẩn được áp dụng đồng bộ theo yêu cầu của chủ đầu tư:

  • 100% phòng có đèn đọc sách
  • Ánh sáng phân lớp: tổng thể - điểm nhấn - chức năng
  • Cửa kính lớn tăng ánh sáng tự nhiên

Những chi tiết nhỏ này giúp nâng cao đánh giá dịch vụ và tỷ lệ quay lại.

>>> Có thể bạn quan tâm: Tiêu chuẩn thiết kế khách sạn - TCVN 4391:2015

Ý tưởng thiết kế nội thất khách sạn ven biển tinh giản

Thiết kế khách sạn mini ven biển đẹp
Thiết kế khách sạn mini ven biển đẹp

Ngôn ngữ thiết kế - tối giản nhưng không đơn điệu

Phong cách chủ đạo là Modern Luxury tinh giản:

  • Tông màu: kem - trắng - beige
  • Hạn chế màu nóng và chi tiết rườm rà
  • Tạo cảm giác thư giãn, nhẹ nhàng

Sự lựa chọn này không chỉ giúp nới rộng không gian mà còn mang lại cảm giác sạch sẽ, mát mẻ - một yếu tố cực kỳ quan trọng đối với khách sạn ven biển. Việc tiết chế các màu sắc sặc sỡ giúp tâm trí khách lưu trú nhanh chóng được thả lỏng, rời xa sự ồn ào bên ngoài. Đây là hướng đi khác biệt so với nhiều khách sạn mini đẹp hiện nay.

Thiết kế mảng tường đầu giường đầy cảm xúc

Đường cong phay âm uốn lượn trên nền vách phẳng gợi liên tưởng đến những con sóng biển Đồ Sơn
Đường cong phay âm uốn lượn trên nền vách phẳng gợi liên tưởng đến những con sóng biển Đồ Sơn

Điểm nhấn quan trọng nằm ở headboard:

  • Đường cong phay âm uốn lượn trên nền vách phẳng gợi liên tưởng đến những con sóng biển Đồ Sơn, tạo sự kết nối ngầm với bối cảnh địa phương
  • Sự kết hợp giữa các mảng gỗ phẳng và hệ nan gỗ dọc (lam gỗ) ở hai bên tạo nên sự nhịp điệu và chiều sâu cho căn phòng.
  • Đèn LED hắt từ khe vách tạo ra hiệu ứng ánh sáng gián tiếp, mang lại vẻ lung linh, sang trọng vào buổi tối.

Những chi tiết đó vừa mang tính thẩm mỹ vừa tạo bản sắc riêng cho Dragon Nest .

Nội thất tối giản nhưng cao cấp

Thiết kế nội thất khách sạn mini đẹp
Thiết kế nội thất khách sạn mini đẹp
  • Giường ngủ: Cấu trúc phòng đôi (Twin Room) được bố trí đối xứng hoàn hảo. Giường có thiết kế chân thấp bọc nệm màu nâu trung tính, kết hợp với ga gối trắng tiêu chuẩn 5 sao, đảm bảo sự êm ái tối đa.
  • Tab đầu giường & Đèn ngủ: Thiết kế tối giản với thân đèn bằng đá tự nhiên, ánh sáng vàng ấm lan tỏa giúp không gian trở nên gần gũi, ấm cúng.
  • Tranh decor: Bức tranh trừu tượng với các chi tiết đắp nổi mạ vàng vừa là điểm nhấn đẳng cấp, vừa giữ đúng tinh thần trang nhã của tổng thể.

Hệ trần và ánh sáng nâng tầm không gian

Thiết kế khách sạn ven biển Dragon Nest Đồ Sơn Hải Phòng - Khám phá công thức tạo nên khách sạn mini sinh lời bền vững 71

  • Trần thạch cao bo cong mềm mại, loại bỏ cảm giác thô cứng
  • Đèn cove lighting tạo ánh sáng gián tiếp dịu nhẹ
  • Đèn rọi điểm được tính toán vị trí chính xác để tôn vinh các chi tiết nội thất và chất liệu vật liệu.
Trần thạch cao thiết kế uốn lượn như những con sóng biển
Trần thạch cao thiết kế uốn lượn như những con sóng biển

Giải pháp ánh sáng đóng vai trò quan trọng trong cảm nhận không gian, đặc biệt với khách sạn ven biển.

Kết nối thiên nhiên trong thiết kế khách sạn gần biển

Kết nối thiên nhiên trong thiết kế khách sạn gần biển
Kết nối thiên nhiên trong thiết kế khách sạn gần biển

Một trong những yếu tố quyết định trải nghiệm là sự kết nối với cảnh quan:

  • Cửa kính lớn sát trần: Tận dụng tối đa tầm nhìn hướng biển hoặc nội khu Đồi Rồng, đưa ánh sáng tự nhiên tràn ngập căn phòng.
  • Rèm hai lớp: Lớp voan trắng giúp lọc ánh sáng ban ngày trở nên dịu hơn, trong khi lớp rèm vải màu xám nhạt đảm bảo sự riêng tư tuyệt đối và khả năng cách nhiệt tốt.
  • Tận dụng view biển hoặc nội khu

Không gian bên trong luôn có sự “giao thoa” với thiên nhiên, đúng tinh thần nghỉ dưỡng.

Vật liệu và giải pháp kỹ thuật cho thiết kế khách sạn gần biển

Chống ăn mòn và tăng tuổi thọ công trình

Giải pháp kỹ thuật cho thiết kế khách sạn gần biển
Giải pháp kỹ thuật cho thiết kế khách sạn gần biển
  • Nhôm kính chống oxy hóa
  • Gỗ nhựa composite thay gỗ tự nhiên
  • Sơn hoàn thiện chuyên dụng môi trường biển

Hệ thống kỹ thuật đồng bộ

  • Đường ống bọc bảo ôn
  • Thiết kế trục kỹ thuật tập trung
  • Dễ bảo trì, giảm chi phí vận hành

Đây là yếu tố then chốt giúp công trình duy trì hiệu quả khai thác lâu dài.

Giá trị đầu tư từ thiết kế khách sạn ven biển Dragon Nest Đồ Sơn

Dragon Nest không chỉ là một công trình kiến trúc mà còn là bài toán kinh doanh được giải tốt:

  • Tối ưu chi phí đầu tư ban đầu
  • Rút ngắn thời gian hoàn vốn
  • Gia tăng giá trị khai thác lâu dài

Thiết kế tinh giản giúp hạn chế lỗi thời, giảm chi phí cải tạo trong tương lai - một lợi thế lớn với nhà đầu tư.

Giải pháp thiết kế khách sạn ven biển giúp tăng hiệu quả kinh doanh

Một thiết kế khách sạn gần biển hiệu quả cần hội tụ:

  • Công năng khoa học
  • Thẩm mỹ bền vững theo thời gian
  • Vật liệu phù hợp môi trường
  • Trải nghiệm khách hàng tốt

Dragon Nest là ví dụ điển hình cho cách thiết kế khách sạn ven biển theo hướng bền vững, tối ưu và khác biệt.

Đầu tư thiết kế khách sạn ven biển hiệu quả và bền vững

Thiết kế khách sạn ven biển Dragon Nest Đồ Sơn Hải Phòng - Khám phá công thức tạo nên khách sạn mini sinh lời bền vững
Thiết kế khách sạn ven biển Dragon Nest Đồ Sơn Hải Phòng - Khám phá công thức tạo nên khách sạn mini sinh lời bền vững

Nếu bạn đang tìm kiếm giải pháp thiết kế khách sạn ven biển tối ưu công suất và chi phí, Sơn Hà Group sẵn sàng đồng hành từ ý tưởng đến thi công hoàn thiện.


Đánh giá post
33Lượt xem

Xem thêm: Hồ sơ - Thiết kế khách sạn Hồ sơ - Thiết kế nội thất thiết kế nội thất khách sạn thiết kế nội thất khách sạn mini

YÊU CẦU TƯ VẤN
Nhận ưu đãi & tư vấn
🎁 GIẢM NGAY 50% phí thiết kế khi thi công trọn gói 🎁 MIỄN PHÍ kiểm tra giám sát các lần đổ móng, sàn, mái
🎁 MIỄN PHÍ khảo sát hiện trạng đất/nhà 🎁 HỖ TRỢ hồ sơ giấy xin cấp phép xây dựng
🎁 MIỄN PHÍ thiết kế cổng và tường rào 🎁 MIỄN PHÍ tư vấn thiết kế, tư vấn phong thủy

*Vui lòng để lại thông tin, nhân viên tư vấn sẽ liên hệ lại với quý khách trong thời gian sớm nhất

Tra cứu phong thủy
Xem hướng Nhà
Xem tuổi xây nhà
DỰ TOÁN CHI PHÍ

Bạn có thể tự tính toán chi phí xây dựng bằng phần mềm Dự toán Online của SHAC. Để lên dự trù chi phí xây dựng, hãy truy cập link sau (miễn phí):

Dự toán Chi phí xây dựng

Có liên quan

Yêu cầu tư vấn

YÊU CẦU TƯ VẤN Widget

Tìm theo số tầng

Tìm theo mặt tiền

Bài viết mới nhất

Yêu cầu tư vấn

YÊU CẦU TƯ VẤN Widget

Ảnh khác

.
.
0906.222.555