Mùa hè đang dần đến, nhu cầu đi du lịch cũng ngày càng tăng cao. Điều này khiến tạo nên cơn sốt thiết kế - thi công khách sạn, khu nghỉ dưỡng đang ngày càng được các chủ đầu tư quan tâm. Có thể nói bên cạnh chất lượng dịch vụ và các tiện ích khác nhau thì kiến trúc khách sạn đóng vai trò quan trọng trong việc thu hút và giữ chân khách hàng tiềm năng.
Trong bài viết ngày hôm nay, cùng Sơn Hà Group ghé thăm một khu nghỉ dưỡng cao cấp được thiết kế bởi Sơn Hà Group mang tên Celina Peninsula Resort, nằm tại Quảng Bình nhé!
NỘI DUNG CHÍNH
Nằm cạnh bên bãi biển Bảo Ninh, dự án thiết kế thi công khu nghỉ dưỡng Celina Peninsula Resort sở hữu "tọa độ vàng", gắn kết bãi biển này với trung tâm thành phố Đồng Hới. Khu resort cao cấp có tổng diện tích lên đến 32.500m2, được định hình là một món quà dành tặng cho những du khách đang cần tìm một không gian để nghỉ ngơi và thư giãn.

Với tiêu chuẩn 5 sao sang trọng, toàn bộ quy hoạch, thiết kế kiến trúc và nội thất của khách sạn đều được lên kế hoạch cụ thể, lựa chọn từ nhiều phương án khác nhau để từ đó mang đến thành quả hoàn hảo cuối cùng. Trong dự án lần này, Sơn Hà Group đã thành công trong việc hiện thực hóa tầm nhìn và giấc mơ của chủ đầu tư, mang đến một thiết kế đẳng cấp, sang trọng, xa hoa và đầy tinh tế!
Trong bất cứ thiết kế nào, mặt tiền luôn là thứ quan trọng nhất, thu hút sự chú ý cũng như mang đến cái nhìn tổng quan, tinh thần mà chủ đầu tư muốn truyền tải. Điều này càng đặc biệt quan trọng hơn trong các công trình mang tính thương mại như nhà hàng, khách sạn và các khu resort cao cấp như Celina Resort Quảng Bình.

Với đề bài đưa ra là phong cách sang trọng, đẳng cấp, thể hiện vị thế của một khách sạn 5 sao, Sơn Hà Group đã sử dụng tinh thần tân cổ điển của phong cách Pháp, kết hợp với âm hưởng thiết kế hiện đại để tạo nên thiết kế lần này. Mặt tiền 50m được sắp xếp các hình khối kiến trúc thông minh, với những chi tiết xếp chồng lên nhau, tạo nên những khoảng sáng tối và thu hút ánh nhìn. Hệ cột trụ xem kẽ cùng hoa văn phào chỉ tạo nên sự thanh lịch và sang trọng, trong khi đó những cửa sổ kính vòm lại mang lại cảm giác vừa cổ điển, vừa hiện đại.

Về tông màu chủ đạo, Sơn Hà Group đã chọn tông màu trắng cho toàn bộ ngoại thất của khách sạn. Tông màu trắng mang lại sự thanh lịch và nhã nhặn, thể hiện rõ triết lý thiết kế phía trên, đồng thời cũng làm nổi bật những chi tiết thiết kế cũng như những không gian ấn tượng khác. Tông màu trắng kết hợp cùng các chi tiết vàng kim, các khung kim loại trên cửa sổ, cửa chính và nội thất bên trong, tất cả tạo nên một thiết kế sang trọng và đẳng cấp.
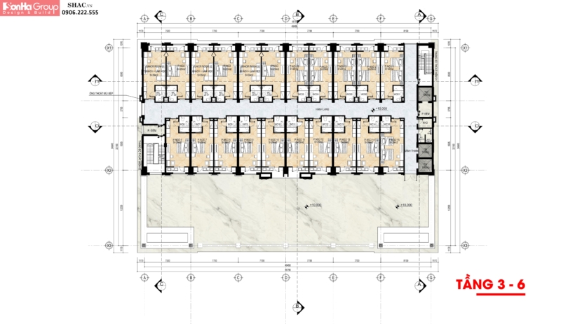
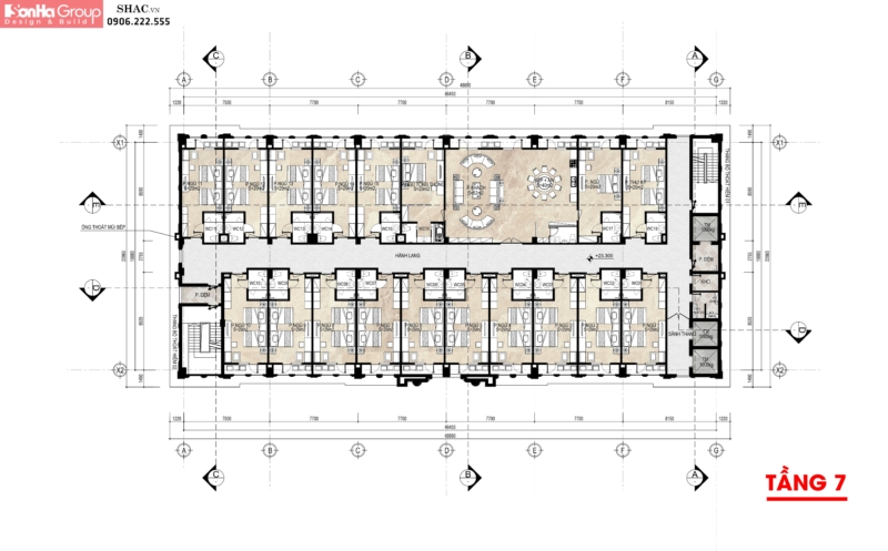
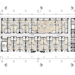
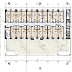
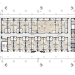
Bên cạnh vẻ đẹp ngoại thất, yếu tốt nội thất, công năng sử dụng cũng là thứ mà nhiều du khách quan tâm khi đi nghỉ dưỡng, ảnh hưởng rất nhiều đến quyết định đặt khách sạn và resort. Trong công trình lần này, với quy mô 7 tầng 1 tum, Sơn Hà Group mang đến cách chia công năng thông minh, tiện nghi và đặc biệt tối đa hóa không gian sử dụng. Cụ thể công năng khách sạn được chia như sau:

Tầng trệt là khu đón tiếp khách, vì thế Sơn Hà Group bố trí sảnh đón tiếp rộng thoáng, các không gian còn lại là khu buffer, bếp nấu, văn phòng làm việc, khu nhà kho và khu vệ sinh.

Tại tầng 2, không gian này được thiết kế nhà hàng kết hợp phòng họp hội nghị, các phòng hội thảo. Bên cạnh đó là khu phục vụ, khu vệ sinh và sảnh hành lang.

Từ tầng 3 đến tầng 6 được chia thành các phòng nghỉ. Trong đó mỗi tầng có 21 phòng nghỉ với không gian đa dạng và khác biệt. Các phòng được nối với nhau bởi hành lang rộng, trải dài theo diện tích sàn.

Tầng 7 là tầng dành cho 20 phòng nghỉ tương tự các tầng phía dưới. Tuy nhiên điểm đặc biệt của tầng này là có một phòng tổng thống với công năng và diện tích đặc biệt hơn các phòng còn lại.
Với diện tích xây dựng tổng lên đến 2150m2 và công năng chia như phía trên, Sơn Hà Group mời bạn tham quan những không gian nội thất phía trong khu nghỉ dưỡng. Với phong cách hiện đại, hòa hợp cùng âm hưởng Đông Dương tinh tế đã mang lại những trải nghiệm tuyệt vời và độc đáo. Việc kết hợp các màu sắc tươi sáng như vàng, xanh, cam,.. đi cùng sắc trắng tinh tế và những chi tiết kim loại ánh kim, Sơn Hà Group đem đến một gợi ý thiết kế khách sạn 5 sao, thiết kế khu nghỉ dưỡng resort tuyệt vời dành cho các gia chủ đang tìm kiếm một công trình tương tự. Cùng đón xem!
Những hình ảnh nội thất phía trên cũng đã kết thúc bài viết về thiết kế khu nghỉ dưỡng, khách sạn 5 sao Celina Peninsula Resort do Sơn Hà Group đảm nhiệm thiết kế và thi công trọn gói tại Quảng Bình. Với những hình ảnh và gợi ý trên, Sơn Hà Group tin rằng bạn đọc đã phần nào hiểu được tinh thần cũng như triết lý thiết kế của công trình ngày hôm nay. Cảm ơn và hẹn gặp lại tại các bài viết tiếp theo!
Ảnh khác
Bình luận