Dự án thiết kế khách sạn Labala phong cách Địa Trung Hải kết hợp Tân cổ điển do Sơn Hà Group thực hiện là điểm nhấn kiến trúc mới giữa lòng Khu công nghiệp Đồng Văn, hội tụ tinh hoa thiết kế hiện đại và nghệ thuật kiến tạo không gian nghỉ dưỡng đẳng cấp.
NỘI DUNG CHÍNH
Trong nhịp sống đô thị phát triển không ngừng, yêu cầu về các công trình kiến trúc khách sạn không chỉ dừng lại ở công năng sử dụng, mà còn đòi hỏi tính thẩm mỹ cao, hài hòa với thiên nhiên và kiến trúc cảnh quan đô thị. Dự án thiết kế khách sạn Labala do Sơn Hà Group thực hiện tại Đồng Văn, Hà Nam là minh chứng rõ nét cho xu hướng ấy - một công trình thiết kế khách sạn đẹp đậm chất Địa Trung Hải kết hợp tinh hoa Tân cổ điển, mang đến không gian nghỉ dưỡng chuẩn mực và đẳng cấp quốc tế.
Với tổng diện tích hơn 2.600m², công trình được định hướng trở thành khu khách sạn - thương mại - dịch vụ tổng hợp, hiện đại, đáp ứng nhu cầu lưu trú, hội nghị, ẩm thực và giải trí cho khách hàng trong và ngoài nước khi đến với khu công nghiệp trọng điểm miền Bắc.
Tầng hầm





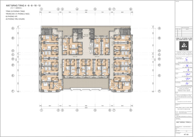
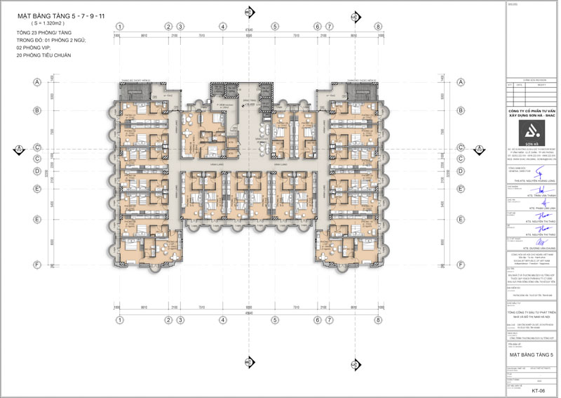
Tầng 5-7-9-11: Thiên đường nghỉ dưỡng với tổng 23 phòng/tầng. Trong đó 01 phòng 2 ngủ, 02 phòng VIP, 20 phòng tiêu chuẩn




Diện tích lô đất: 2.600,3 m²
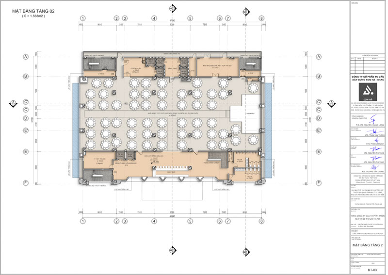
Diện tích xây dựng: 1.568 m²
Mật độ xây dựng: 60%
Tổng diện tích sàn: 16.833 m² (không kể tầng hầm)
Tầng cao: 01 tầng hầm + 12 tầng nổi + 01 tum thang
Chiều cao công trình: 48,05m
Những thông số kỹ thuật trên được tính toán chi tiết nhằm tối ưu hóa diện tích sử dụng, đồng thời đảm bảo sự thoáng đãng, thông gió và chiếu sáng tự nhiên trong toàn bộ công trình - một trong những yếu tố quan trọng làm nên kiến trúc khách sạn đẹp và thân thiện với môi trường.

Không giống với những công trình khách sạn hiện đại mang tính công nghiệp khô cứng, mẫu thiết kế khách sạn lần này mang linh hồn của biển cả, nắng vàng và làn gió mặn mà từ miền Địa Trung Hải. Những mái vòm cong uốn lượn, ban công phủ xanh rợp bóng cây, cùng màu sơn trắng tinh khôi tạo nên vẻ đẹp nhẹ nhàng, thư thái.
Kết hợp hài hòa với vẻ lãng mạn là những chi tiết Tân cổ điển đầy uy nghi: các thức cột đối xứng, phù điêu tinh xảo, cửa sổ cao rộng cùng ánh sáng vàng ấm áp. Tất cả kiến tạo nên một mẫu khách sạn đẹp vừa mềm mại vừa quyền quý - như thể một bản hoà tấu hoàn hảo giữa Đông và Tây, giữa hiện đại và cổ điển.
Tư vấn thiết kế miễn phí: 0906.222.555

Tầng hầm được quy hoạch không chỉ là nơi đỗ xe rộng rãi mà còn là trung tâm kỹ thuật, nơi đặt hệ thống giặt là, bếp nấu, kho lưu trữ, phòng kỹ thuật, PCCC,... giúp toàn bộ hoạt động của khách sạn diễn ra trơn tru, an toàn và hiệu quả.
Tầng 1: Không gian sảnh đón khách ấn tượng, nhà hàng buffet sáng, khu vực thương mại cho thuê, phòng chờ, kho hành lý...
Tầng 2: Khu vực tổ chức tiệc cưới, hội nghị chuyên nghiệp với thiết bị hiện đại, phòng hút thuốc, khu đệm.
Tầng 3: Dịch vụ giải trí - karaoke, massage, văn phòng quản lý và các phòng kỹ thuật.
Tại đây, mọi dịch vụ đều được bố trí liền mạch, thuận tiện di chuyển giữa các khu vực nhờ hệ thống giao thông đứng - thang máy, thang bộ - và hành lang hợp lý, đảm bảo thiết kế khách sạn luôn thân thiện với người sử dụng.
Với các phòng studio, suite và apartment được thiết kế đồng nhất về phong cách nội thất và tiện nghi hiện đại, khu phòng nghỉ từ tầng 4 đến tầng 12 chính là "trái tim" của trải nghiệm lưu trú. Các phòng đều có view mở, đón ánh sáng tự nhiên, được trang bị cách âm tối ưu, mang đến không gian riêng tư và yên tĩnh tuyệt đối.

Trên cùng là tầng tum - nơi đặt hồ bơi, khu nghỉ dưỡng mini trên cao, mang đến góc nhìn toàn cảnh khu công nghiệp Đồng Văn và thiên nhiên xung quanh - một trải nghiệm không thể bỏ lỡ khi lưu trú tại khách sạn này.
Với đặc điểm hoạt động liên tục nhưng công suất thay đổi theo giờ, việc ứng dụng hệ thống điều hòa trung tâm VRV kết hợp điều hòa treo tường giúp tối ưu chi phí đầu tư và tiết kiệm năng lượng vượt trội. Ngoài ra, công nghệ này còn góp phần làm nên không gian nội thất hiện đại, thoáng mát và tiết kiệm diện tích, giữ trọn vẻ đẹp cho mẫu thiết kế khách sạn này.
Dự án khách sạn của Sơn Hà Group không chỉ là một công trình thiết kế khách sạn đẹp mang tính thương mại mà còn hướng tới mục tiêu tạo lập một khu dân cư - dịch vụ mới, văn minh, hiện đại, gắn kết hài hoà với các khu vực xung quanh.
Với hệ thống hạ tầng kỹ thuật đồng bộ, liên kết chặt chẽ với quy hoạch tổng thể khu công nghiệp Đồng Văn, công trình kỳ vọng trở thành điểm nhấn kiến trúc ấn tượng, góp phần nâng tầm cảnh quan đô thị và chất lượng sống cho toàn khu vực.

Trên hành trình chinh phục những công trình mang dấu ấn vượt thời gian, Sơn Hà Group không ngừng đổi mới sáng tạo trong thiết kế, kết hợp hài hòa giữa công năng và thẩm mỹ để mang đến những mẫu khách sạn đẹp, phù hợp với xu hướng phát triển bền vững.
Sở hữu đội ngũ kiến trúc sư, kỹ sư chuyên môn cao và luôn cập nhật xu hướng thiết kế quốc tế, Sơn Hà Group cam kết đồng hành cùng khách hàng trong việc kiến tạo nên những mẫu thiết kế khách sạn đẹp, độc đáo và mang tính biểu tượng - như chính Labala Hotel tại Hà Nam là minh chứng rõ rệt cho năng lực và tâm huyết của đội ngũ Sơn Hà.
Nếu bạn đang tìm kiếm một đối tác thiết kế khách sạn uy tín, chuyên nghiệp, có tầm nhìn chiến lược và khả năng hiện thực hóa ý tưởng một cách xuất sắc - hãy để Sơn Hà Group đồng hành cùng bạn trong những dự án tương lai.
Mọi chi tiết xin liên hệ:
CÔNG TY CỔ PHẦN TƯ VẤN XÂY DỰNG SƠN HÀ (SHAC)
Trụ sở chính: Số 55, đường 22, KĐT Waterfront City, Lê Chân, Hải Phòng
Văn phòng đại diện
Ảnh khác
Bình luận