Có những căn biệt thự gây ấn tượng ngay từ cái nhìn đầu tiên, nhưng cũng có những ngôi nhà càng sống lâu càng khiến chủ nhân thêm yêu thích và gắn bó mỗi ngày.
Sự khác biệt không nằm ở lớp sơn, không nằm ở ban công kính hay mái đua rộng. Sự khác biệt nằm ở mặt bằng công năng biệt thự 3 tầng hiện đại - nơi từng bước chân, từng thói quen sinh hoạt đều được tính toán kỹ lưỡng.
Với công trình biệt thự 3 tầng phong cách hiện đại tại Hải Phòng do Sơn Hà Group thực hiện, điều làm nên giá trị thực sự chính là cách bố trí không gian thông minh, tinh tế và phù hợp với từng gia đình.
NỘI DUNG CHÍNH

Rất nhiều gia chủ từng chia sẻ với chúng tôi một điều giống nhau:
Ngôi nhà hoàn thiện rất đẹp khi bàn giao. Nhưng chỉ sau một thời gian sinh hoạt những phát sinh từ công năng mới xuất hiện khiến họ nhận ra rằng: Sự thuận tiện trong từng không gian mới là điều quyết định trải nghiệm sống.




Tất cả bắt nguồn từ việc chưa đầu tư đúng mức cho công năng biệt thự 3 tầng ngay từ bản vẽ đầu tiên.
Một khi tường đã xây, sàn đã đổ bê tông, việc thay đổi gần như không thể.
Ngoài việc vẽ nên một ngôi nhà đẹp, kiến trúc sư còn kiến tạo nên phong cách sống của gia chủ trong từng không gian.
Mặt bằng công năng biệt thự 3 tầng hiện đại là bản đồ hành vi sinh hoạt của cả gia đình:
Từng câu hỏi nhỏ ấy chính là nền tảng để hình thành một sơ đồ mặt bằng biệt thự 3 tầng tối ưu.


Sơn Hà Group thiết kế mỗi mặt bằng biệt thự 3 tầng như một giải pháp riêng biệt cho từng gia chủ. Không có một khuôn mẫu cố định nào được áp dụng cho mọi ngôi nhà.

Do chủ nhân của căn phòng này là người yêu thích sự tự do và phong cách sống hiện đại. Vì vậy, các kiến trúc sư đã thiết kế hệ cửa sổ rộng tối đa nhằm đón trọn ánh sáng tự nhiên và mở ra tầm nhìn thoáng đãng bên ngoài. Mỗi buổi sáng, chỉ cần khẽ kéo rèm, cả khoảng trời rộng mở như ùa vào không gian sống, mang đến cảm giác thư thái và tràn đầy năng lượng. Nhờ đó, căn phòng luôn sáng thoáng, dễ chịu và đặc biệt phù hợp với những người đề cao sự tự do, phóng khoáng trong cuộc sống.
Mỗi phương án bố trí được xây dựng dựa trên quá trình nghiên cứu kỹ lưỡng: từ thói quen sinh hoạt hàng ngày, cấu trúc gia đình, nhu cầu riêng tư, gu thẩm mỹ cho đến định hướng sử dụng lâu dài của công trình.

Chính sự thấu hiểu đó giúp mặt bằng không chỉ hợp lý về công năng, mà còn mang lại trải nghiệm sống thoải mái, tinh tế và bền vững theo thời gian. Một ngôi nhà đẹp có thể gây ấn tượng ngay từ cái nhìn đầu tiên, nhưng một mặt bằng được thiết kế đúng mới là yếu tố khiến gia chủ thực sự hài lòng trong nhiều năm sinh sống.
Một mặt bằng công năng biệt thự 3 tầng hiện đại đúng nghĩa phải mang lại cảm giác thuận tiện, thư thái và kết nối gia đình trong suốt nhịp sống mỗi ngày.

Ngôi nhà không chỉ dành cho hiện tại.
Đó là tầm nhìn dài hạn mà chỉ kiến trúc sư có kinh nghiệm mới dự đoán và chuẩn bị trước cho bạn.

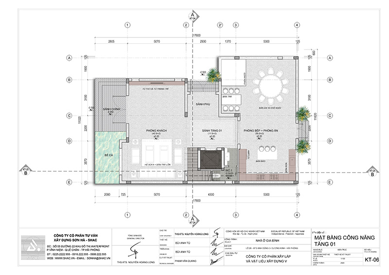
Bước qua cánh cổng hiện đại, cảm giác đầu tiên là sự thoáng đãng.
Nghệ thuật tổ chức công năng biệt thự 3 tầng nằm ở việc sắp đặt không gian một cách tinh tế, để mọi sinh hoạt trong ngôi nhà diễn ra mượt mà

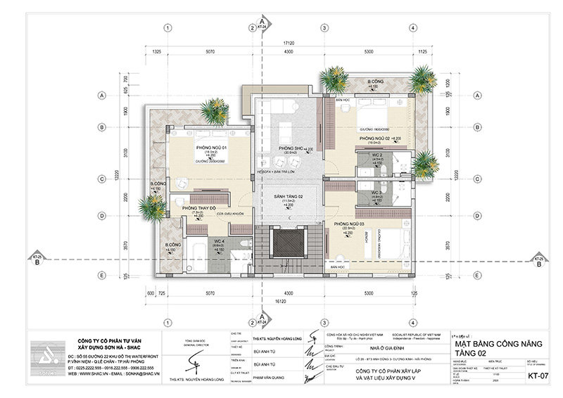
Nếu tầng 1 là nơi đón tiếp và kết nối bên ngoài, thì tầng 2 lại giống như một thế giới riêng, nơi mỗi không gian phản ánh cá tính, gu thẩm mỹ và vị thế của gia đình. Việc bố trí các phòng không chỉ nhằm phục vụ nhu cầu nghỉ ngơi, mà còn hướng tới cảm giác thoả mãn khi bước vào từng căn phòng được thiết kế đúng với phong cách sống của mình.
Phòng ngủ master được chăm chút như một không gian cá nhân mang tính biểu tượng của gia chủ - rộng rãi, tinh tế, tích hợp phòng thay đồ và WC khép kín. Mỗi chi tiết đều góp phần tạo nên cảm giác riêng tư, sang trọng và khẳng định gu thẩm mỹ của người sở hữu.


Hai phòng ngủ còn lại được sắp xếp cân đối quanh sảnh tầng, tạo nên một bố cục hài hòa và có chủ ý. Khoảng cách giữa các phòng vừa đủ để giữ sự tĩnh lặng, nhưng vẫn duy trì sự kết nối trong tổng thể không gian, giống như cách các thành viên trong gia đình luôn có sự gắn bó dù mỗi người có thế giới riêng.

Ở trung tâm tầng là phòng sinh hoạt chung - một không gian mang tính cảm xúc nhiều hơn chức năng. Đây là nơi những cuộc trò chuyện buổi tối diễn ra, nơi những khoảnh khắc gia đình được chia sẻ một cách tự nhiên. Không cần quá nhiều nghi thức, chỉ cần một không gian đủ ấm áp để mỗi người đều cảm thấy mình thuộc về nơi này.
Cách tổ chức này biến tầng 2 không chỉ là nơi ở, mà trở thành tầng không gian thể hiện phong cách sống, sự gắn kết và niềm tự hào của một gia đình về chính tổ ấm của mình.

Tầng tum được tổ chức như một không gian cân bằng giữa đời sống tinh thần và thư giãn. Phòng thờ đặt ở vị trí trang trọng, tách biệt với khu sinh hoạt để giữ sự yên tĩnh và đảm bảo yếu tố phong thuỷ.
Bên cạnh đó là phòng đa năng có thể dùng để tập luyện, đọc sách hoặc thư giãn. Khu xông khô - xông ướt mang đến trải nghiệm chăm sóc sức khỏe ngay tại nhà.

Ngoài ra, sân chơi và ban công xanh đóng vai trò lớp đệm khí hậu, giúp giảm bức xạ nhiệt và tạo cảm giác thoáng đãng. Nhờ cách bố trí hợp lý, tầng 3 trở thành không gian nghỉ ngơi và tái tạo năng lượng lý tưởng cho cả gia đình.
Trong thiết kế này, các KTS của Sơn Hà đã không để chỗ cho “diện tích chết”.
Quan trọng hơn, sự phân vùng ồn - tĩnh được nghiên cứu kỹ.
Đó là những chi tiết mà nếu không có kiến trúc sư, bạn rất dễ bỏ qua.
Nhiều gia chủ bắt đầu hành trình xây nhà với mong muốn tiết kiệm chi phí thiết kế ban đầu. Tuy nhiên sau khi ngôi nhà hoàn thiện, những bất tiện nhỏ trong sinh hoạt dần xuất hiện và lặp lại mỗi ngày: phòng thiếu ánh sáng tự nhiên, lối đi dài nhưng ít giá trị sử dụng, một vài không gian rộng nhưng lại không phù hợp với thói quen sinh hoạt của gia đình.
Những chi tiết tưởng chừng nhỏ này theo thời gian lại trở thành cảm giác tiếc nuối. Ngôi nhà vốn là nơi để trở về và tận hưởng cuộc sống, nhưng đôi khi lại khiến gia chủ nhận ra rằng mọi thứ có thể được sắp xếp hợp lý và trọn vẹn hơn ngay từ đầu.
Một kiến trúc sư chuyên nghiệp thường bắt đầu từ việc lắng nghe cách một gia đình thực sự sống: thói quen sinh hoạt, số lượng thành viên, những hoạt động diễn ra mỗi ngày và cả những mong muốn về cảm xúc trong không gian sống. Từ những dữ liệu đó, họ tổ chức lại toàn bộ mặt bằng để mỗi mét vuông đều mang một giá trị rõ ràng.
Các khu chức năng được bố trí mạch lạc, dòng di chuyển trong nhà trở nên tự nhiên, không gian đón sáng và đón gió hiệu quả hơn. Đồng thời, yếu tố kết cấu, thông gió, ánh sáng và phong thuỷ được cân nhắc ngay từ giai đoạn đầu để tạo nên một tổng thể hài hòa và bền vững.
Vì vậy, mặt bằng công năng biệt thự 3 tầng hiện đại ngoài việc là một bản vẽ kỹ thuật còn trở thành nền tảng định hình trải nghiệm sống mỗi ngày, đồng thời là một bản cam kết dài lâu cho sự tiện nghi, cảm xúc thoải mái và niềm tự hào về chất lượng sống của cả gia đình.
Một bản vẽ mặt bằng chỉ thể hiện kích thước và vị trí của các căn phòng. Tuy nhiên, trải nghiệm sống thực sự trong một ngôi nhà lại được quyết định bởi những giá trị tinh tế mà bản vẽ không thể truyền tải hết bằng các con số. Đó là cách ánh sáng tự nhiên được dẫn vào phòng đúng thời điểm trong ngày, cách các không gian liên kết với nhau để tạo nên dòng di chuyển mạch lạc, hay cảm giác rộng rãi và dễ chịu khi bước vào một căn phòng được tính toán tỷ lệ chuẩn xác.
Những yếu tố này chỉ được cảm nhận khi gia đình bắt đầu sinh hoạt trong ngôi nhà. Buổi sáng mở cửa sổ và đón trọn ánh sáng dịu nhẹ, buổi chiều không gian luôn thông thoáng nhờ luồng gió tự nhiên, buổi tối cả gia đình quây quần trong khu sinh hoạt chung với sự ấm cúng và gần gũi. Mỗi chi tiết nhỏ đều góp phần tạo nên cảm giác thoải mái và thoả mãn khi trở về nhà.

Chính vì vậy, những điều “không nhìn thấy trên giấy” thực chất là trải nghiệm sống được tính toán ngay từ giai đoạn thiết kế. Khi một ngôi nhà được quy hoạch bởi đội ngũ kiến trúc sư giàu kinh nghiệm của Sơn Hà Group, từng khoảng không gian, từng hướng mở cửa và từng mối liên kết giữa các phòng đều được nghiên cứu để mang lại sự cân bằng giữa thẩm mỹ, công năng và cảm xúc.
Qua thời gian, gia chủ cảm nhận rõ ràng sự khác biệt: ngôi nhà vận hành trơn tru, không gian luôn mang lại cảm giác dễ chịu, và mỗi góc nhỏ đều thể hiện sự chỉn chu, tinh tế trong thiết kế. Đây chính là giá trị lâu dài của một bản thiết kế chuyên nghiệp - nơi kiến trúc trở thành nền tảng nâng tầm chất lượng sống và niềm tự hào của gia đình.

Xây nhà là một trong những khoản đầu tư quan trọng của đời người, nơi mỗi quyết định đều ảnh hưởng trực tiếp đến chất lượng sống trong nhiều năm sau. Khi có sự chuẩn bị kỹ lưỡng và góc nhìn chuyên môn từ kiến trúc sư, mọi lựa chọn đều trở nên rõ ràng, chính xác và mang lại giá trị bền vững cho ngôi nhà tương lai.
Trong khi kiến trúc và nội thất mang lại vẻ đẹp thẩm mỹ thì công năng lại giữ vai trò cốt lõi, định hình cách con người sinh hoạt, kết nối và tận hưởng không gian mỗi ngày.
Nếu bạn đang chuẩn bị xây biệt thự, hãy dành thời gian trao đổi cùng kiến trúc sư Sơn Hà Group để được tư vấn 1 - 1, phân tích chi tiết nhu cầu và xây dựng sơ đồ mặt bằng biệt thự 3 tầng tối ưu nhất cho gia đình mình.
Ảnh khác