Thiết kế nhà phố mặt tiền hẹp đang trở thành nhu cầu phổ biến tại các đô thị lớn, khi quỹ đất ngày càng hạn chế nhưng nhu cầu về không gian sống tiện nghi ngày càng cao. Với đặc điểm chiều ngang nhỏ nhưng chiều sâu lớn, bài toán đặt ra cho kiến trúc sư là phải bố trí công năng khoa học để tối ưu từng mét vuông sử dụng mà vẫn đảm bảo yếu tố thẩm mỹ, thông thoáng và tiện nghi.
Dựa trên bản vẽ mặt bằng 2D và phối cảnh 3D thực tế của công trình do đội ngũ kiến trúc sư Sơn Hà triển khai, có thể thấy rõ cách tổ chức không gian thông minh giúp ngôi nhà phố nhiều tầng vẫn đảm bảo sự rộng rãi và hiện đại. Bài viết dưới đây sẽ phân tích chi tiết giải pháp nhà ống dài hẹp, giúp gia chủ hiểu rõ cách chia phòng nhà phố hợp lý và tối ưu diện tích hiệu quả.
NỘI DUNG CHÍNH
' nam_thuc_hien="2026"]
Nhà phố mặt tiền hẹp thường có chiều rộng từ 3-5m nhưng chiều sâu có thể lên tới 15-20m. Chính đặc điểm này khiến việc bố trí không gian trở nên phức tạp hơn so với các loại hình nhà ở khác.

Trong phương án thiết kế thực tế, kiến trúc sư đã lựa chọn phong cách hiện đại với hình khối vuông vức, hạn chế chi tiết rườm rà nhằm tạo cảm giác công trình cao ráo và rộng hơn. Hệ ban công bố trí xen kẽ cây xanh giúp tăng tính thẩm mỹ, đồng thời cải thiện vi khí hậu cho không gian sống.
Việc sử dụng vật liệu kính, lam trang trí và đá ốp mặt tiền giúp công trình vừa sang trọng vừa tối ưu ánh sáng tự nhiên. Đây là xu hướng thiết kế nhà phố nhiều tầng được ưa chuộng trong năm 2026.

Theo bản vẽ mặt bằng, tầng 1 được bố trí gara ô tô ngay phía trước, giúp gia chủ thuận tiện di chuyển và đảm bảo an toàn cho phương tiện.
Không gian phía trong có thể tận dụng làm khu sinh hoạt chung hoặc phòng tiếp khách nhỏ. Việc sử dụng cửa kính lớn giúp tăng ánh sáng tự nhiên, giảm cảm giác bí bách thường gặp ở nhà ống dài hẹp.
Tầng 2 được thiết kế thành khu sinh hoạt chung hoặc phòng khách chính, giúp đảm bảo sự riêng tư cho gia đình.
Ngoài ra, việc bố trí quầy bar hoặc tủ trang trí giúp tăng tính tiện nghi và hiện đại cho không gian sống.
Phòng ngủ master trong mẫu thiết kế nhà ống hiện đại này rộng rãi, tích hợp phòng thay đồ và nhà vệ sinh riêng.
Khu vực thông tầng giúp ánh sáng lan tỏa đều, đồng thời tăng sự thông thoáng cho toàn bộ không gian.

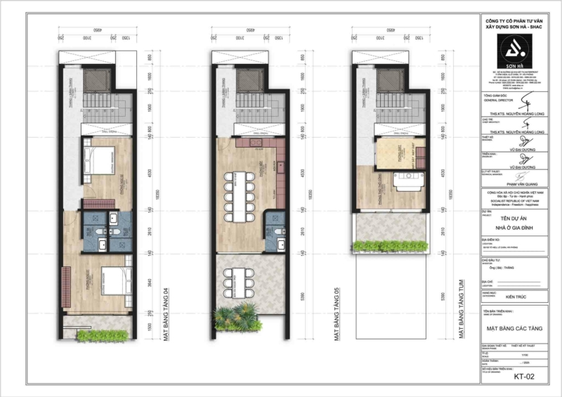
Tầng 4 bố trí 2 phòng ngủ cùng khu vệ sinh chung, phù hợp gia đình nhiều thế hệ.
Khác với thiết kế truyền thống, khu bếp được bố trí trên tầng cao nhằm hạn chế mùi ảnh hưởng đến các không gian khác.
Đây là giải pháp nhà ống dài hẹp được nhiều gia chủ lựa chọn trong những năm gần đây.
Tầng tum được bố trí phòng thờ và khu giặt phơi giúp tối ưu diện tích sử dụng.

Mặt tiền sử dụng các mảng khối vuông vức giúp công trình trông cao và thanh thoát hơn. Thiết kế ban công đua ra không chỉ tăng diện tích sử dụng mà còn tạo điểm nhấn kiến trúc.
Các bồn cây được bố trí tại ban công giúp công trình mềm mại hơn. Ngoài yếu tố thẩm mỹ, cây xanh còn giúp giảm nhiệt và cải thiện chất lượng không khí.
Kính cường lực, đá ốp trang trí và hệ trần lam giúp tăng độ bền và tạo điểm nhấn cho mặt tiền các mẫu nhà ống đẹp. Đây là xu hướng thiết kế nhà phố nhiều tầng phổ biến trong các công trình hiện đại.

Thông tầng là giải pháp quan trọng giúp nhà phố mặt tiền hẹp luôn thông thoáng. Ánh sáng tự nhiên có thể lan tỏa tới nhiều khu vực trong nhà, giúp tiết kiệm điện năng.
Cầu thang được bố trí tại vị trí trung tâm giúp giảm diện tích hành lang và tăng diện tích sử dụng thực tế. Điều này đặc biệt quan trọng với mặt bằng nhà phố dài hẹp.

Mỗi gia đình có nhu cầu khác nhau, do đó việc bố trí công năng thiết kế nhà ống hiện đại cần được cá nhân hóa để đảm bảo phù hợp với thói quen sinh hoạt.

Giếng trời, cửa kính lớn và ban công là những yếu tố quan trọng giúp cải thiện chất lượng không gian sống.
Phong cách hiện đại giúp tối ưu diện tích và đảm bảo tính thẩm mỹ lâu dài cho công trình.

Từ bản vẽ thực tế có thể thấy, việc thiết kế nhà phố mặt tiền hẹp hoàn toàn có thể đạt được sự tiện nghi và thẩm mỹ nếu được nghiên cứu kỹ lưỡng về công năng và hình khối kiến trúc.
Giải pháp nhà ống dài hẹp từ đội ngũ kiến trúc sư Sơn Hà giúp gia chủ tận dụng tối đa diện tích, đảm bảo không gian sống hiện đại, thông thoáng và phù hợp với xu hướng nhà ở đô thị năm 2026.
Liên hệ Sơn Hà Group để được tư vấn phương án thiết kế nhà phố mặt tiền hẹp tối ưu diện tích, đảm bảo công năng khoa học và phù hợp ngân sách đầu tư.
Ảnh khác