Khám phá mẫu thiết kế nhà ống Indochine 6 tầng hiện đại, nội thất Indochine tinh tế, công năng tối ưu. Sơn Hà Group thiết kế và thi công trọn gói, đẳng cấp vượt thời gian.
NỘI DUNG CHÍNH

Có những ngôi nhà không chỉ đơn thuần là nơi ở - chúng là cả một câu chuyện. Câu chuyện về căn nhà ống 80m2 tại Tây Hồ, Hà Nội bắt đầu từ một không gian sống kết hợp kinh doanh quán cà phê, nơi cả gia đình quây quần và tiếp đón bạn bè. Thế nhưng, theo thời gian, sự phát triển của các con, nhu cầu sinh hoạt thay đổi, không gian cũ đã trở nên chật hẹp và lỗi thời.
Đó là lúc gia chủ quyết định tìm đến Sơn Hà Group để "khoác áo mới" cho tổ ấm của mình - một thiết kế nhà ống Indochine 6 tầng mang hơi thở hiện đại, sang trọng nhưng vẫn giữ được tinh thần ấm áp, hài hòa của phong cách Đông Dương.

Ngay từ ánh nhìn đầu tiên, mặt tiền căn nhà chinh phục người xem bằng các đường nét khỏe khoắn, hình khối vững chắc, lan can kính tinh tế kết hợp mảng xanh được bố trí khéo léo trên từng tầng. Sự phối hợp hài hòa giữa đá tự nhiên, kính cường lực và trần ốp gỗ mang đến diện mạo hiện đại, sang trọng nhưng không hề lạnh lẽo.

Các tầng được xếp so le tạo chiều sâu, cùng hệ đèn LED âm trần khiến ngôi nhà nổi bật cả ban ngày lẫn đêm. Đây là ví dụ hoàn hảo của xu hướng nhà ống hiện đại phong cách Indochine kết hợp hơi thở đương đại - vừa trẻ trung, vừa đẳng cấp.



Tầng hầm được thiết kế khoa học, bao gồm kho rượu vang 16m2, nhà kho và một phòng ngủ phụ 11.5m2. Kho rượu được bố trí kệ gỗ tự nhiên, ánh sáng vàng ấm tạo cảm giác như một hầm rượu châu Âu thu nhỏ. Phòng ngủ nhỏ nhưng đủ tiện nghi, lý tưởng cho khách ở lại hoặc nhân viên giúp việc.


Với diện tích 33m2, gara ô tô hiện đại, cửa cuốn an toàn. Một góc tiểu cảnh nhỏ được thiết kế ngay lối vào - điểm nhấn giúp không gian đón tiếp trở nên sinh động. WC được bố trí gọn gàng, đảm bảo tiện lợi.

>>> Có thể bạn quan tâm : Nhà phố kinh doanh phong cách Indochine “vừa quen vừa lạ” tại Hải Phòng

Không gian mở 30m2 là nơi học tập và giải trí cho các con. Nội thất tối giản, an toàn, bàn học thông minh kết hợp giá sách gắn tường, tạo môi trường lý tưởng để trẻ phát triển.


Phòng khách 46m2 là "linh hồn" của ngôi nhà. Bộ sofa lớn bọc vải linen màu trung tính, bàn trà gỗ sồi kết hợp mặt đá tự nhiên.

Trần cao, đèn chùm phong cách Đông Dương tạo điểm nhấn nghệ thuật. Tông màu trắng - nâu - đen đặc trưng thiết kế nhà ống 6 tầng phong cách Indochine được thể hiện rõ rệt, vừa thanh lịch vừa ấm cúng.

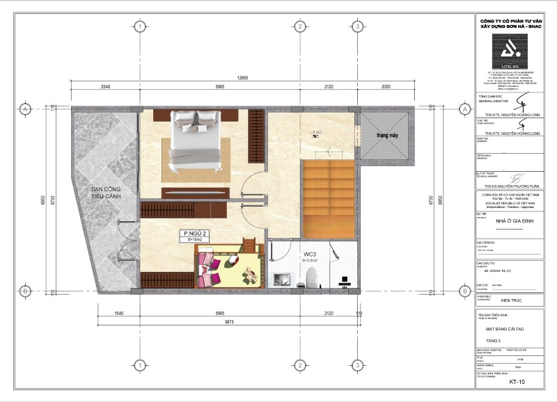
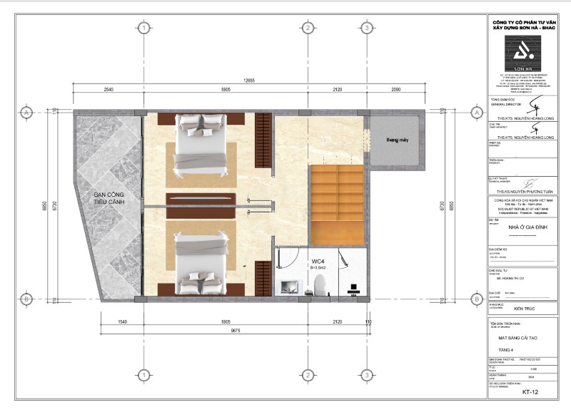
Hai tầng dành cho bốn phòng ngủ tiêu chuẩn 15m2, mỗi phòng phong cách thiết kế Indochine đều có cửa sổ rộng đón sáng, nội thất gỗ tối màu, rèm hai lớp giúp cân bằng ánh sáng tự nhiên.




Phòng ngủ tầng 4 trong thiết kế nhà ống 6 tầng nổi bật với gam màu đen - nâu trầm chủ đạo, mang đến cảm giác sang trọng và ấm cúng. Giường gỗ chạm khắc tinh tế, đầu giường tạo hình vòm cong mềm mại đặc trưng Indochine.

Giường tầng kiểu Indochine: Giường tầng được thiết kế độc đáo với các trụ tiện gỗ cao, lan can con tiện truyền thống, tạo cảm giác ấm áp và gần gũi. Cầu thang dẫn lên tầng trên có bậc hộp thông minh, tối ưu diện tích chứa đồ. Gam màu xanh xám và trắng tạo cảm giác nhẹ nhàng, phù hợp với trẻ nhỏ nhưng vẫn giữ được sự tinh tế.

Hệ tủ quần áo âm tường: Tủ cánh cao kịch trần sơn trắng kết hợp chi tiết ô lưới kính sọc mờ đặc trưng phong cách Đông Dương. Tay nắm đồng cổ điển tôn lên vẻ sang trọng và giúp tủ trở thành một phần trang trí quan trọng trong phòng.

Phòng ngủ tầng 4 trong căn nhà ống phong cách Indochine nổi bật với gam màu đen - nâu trầm chủ đạo, mang đến cảm giác sang trọng và ấm cúng. Giường gỗ chạm khắc tinh tế, đầu giường tạo hình vòm cong mềm mại.

Tủ quần áo cánh kính kẻ ô hình học kết hợp đèn LED âm tủ tạo hiệu ứng ánh sáng huyền ảo. Bàn trang điểm và kệ tivi đồng bộ chất liệu gỗ sơn đen, điểm xuyết tay nắm đồng cổ điển.


Rèm hai lớp cùng ánh sáng tự nhiên giúp không gian luôn thoáng đãng, hài hòa giữa hiện đại và cổ điển.


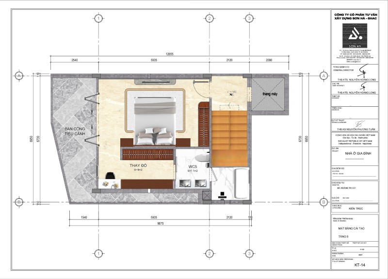
Điểm nhấn của toàn bộ căn nhà chính là phòng ngủ master 26m2 kết hợp phòng thay đồ 15m2. Giường gỗ tự nhiên, tab đầu giường gắn đèn treo thả kiểu Indochine, thảm dệt thủ công tăng cảm giác sang trọng.


Phòng thay đồ được thiết kế mở, tủ kịch trần với hệ thống đèn LED cảm ứng thông minh.




Bếp 46m2 với đảo bếp lớn, hệ tủ bếp chữ L bằng gỗ tự nhiên sơn phủ chống ẩm. Khu bàn ăn 8 ghế đặt cạnh cửa kính, đón ánh sáng tràn ngập buổi sáng, lý tưởng cho những bữa tối ấm cúng. Khu giặt phơi được bố trí gọn về phía sau, đảm bảo thẩm mỹ.


Phong cách Indochine được thể hiện xuyên suốt trong thiết kế: gỗ tự nhiên, mây tre đan, màu sắc trung tính, họa tiết kỷ hà và hoa lá cách điệu. Từng món nội thất đều được lựa chọn cẩn trọng, tạo nên sự hài hòa giữa cổ điển và hiện đại.
Phòng khách: Bộ sofa gỗ - vải, bàn trà mặt đá, tranh treo tường phong cảnh Đông Dương.
Phòng ngủ: Giường gỗ tối màu, đèn ngủ chao vải, sàn gỗ ấm áp.
Bếp - ăn: Bàn gỗ lớn kết hợp ghế bọc đệm, quạt trần cánh gỗ kiểu cổ điển, ánh sáng vàng nhẹ nhàng.
Hầm rượu: Không gian đậm chất châu Âu với giá gỗ, đèn treo kiểu vintage.

Thiết kế này không chỉ giải quyết bài toán công năng - mở rộng không gian sống - mà còn nâng tầm thẩm mỹ, mang đến tổ ấm mang tính cá nhân hóa cao. Căn nhà ống phong cách Indochine này là minh chứng rõ nét cho triết lý thiết kế của Sơn Hà Group: Đẹp - Bền vững - Tối ưu chi phí
Mẫu thiết kế nhà ống Indochine 6 tầng này là gợi ý lý tưởng cho các gia chủ yêu thích sự giao thoa giữa nét đẹp truyền thống và hơi thở hiện đại. Với mặt tiền tinh tế, công năng hợp lý và nội thất được đầu tư kỹ lưỡng, ngôi nhà trở thành không gian sống đẳng cấp, xứng tầm với gia chủ.
Nếu bạn đang tìm kiếm giải pháp thiết kế và thi công nhà ống 6 tầng, hãy liên hệ với Sơn Hà Group để được tư vấn trọn gói, tối ưu chi phí và đảm bảo chất lượng thi công đúng cam kết.
Ảnh khác
Bình luận