Mẫu nhà ống 5 tầng có thang máy do đội ngũ Kiến trúc sư Sơn Hà Group thiết kế mang đến một công trình hài hòa giữa thẩm mỹ hiện đại và công năng khai thác thương mại. Điểm nhấn nổi bật nằm ở mặt tiền lam nhựa giả gỗ có thể đóng mở linh hoạt, giúp ngôi nhà luôn thoáng sáng và giàu tính nhận diện. Không gian bên trong được tổ chức khoa học với 5 phòng học cho thuê và khu sinh hoạt tiện nghi cho gia đình, tạo nên lựa chọn lý tưởng cho những gia chủ muốn tối ưu diện tích nhưng vẫn khẳng định phong cách kiến trúc riêng.
NỘI DUNG CHÍNH
Giữa lòng phố thị sôi động, những công trình nhà ống đang không ngừng được sáng tạo nhằm khai thác tối đa diện tích và giá trị sử dụng. Mẫu nhà ống 5 tầng có thang máy của gia đình anh Thái tại Hải Phòng là minh chứng rõ nét cho tinh thần kiến tạo ấy - nơi vẻ đẹp hiện đại hòa quyện cùng công năng linh hoạt và giải pháp mặt tiền thông minh.
Tổng thể công trình gồm 5 tầng và 1 tum, đáp ứng đồng thời hai mục tiêu:
Tạo dựng không gian cho thuê gồm 5 phòng học đạt chuẩn
Mang lại nơi sinh hoạt tiện nghi - riêng tư - giàu cảm xúc cho gia đình
Sự kết hợp giữa thang máy bên trong và thang thoát hiểm ngoài trời giúp việc di chuyển trở nên an toàn và thuận tiện, đồng thời gia tăng giá trị khai thác khi công trình được sử dụng như một mô hình nhà ở kết hợp giáo dục - thương mại.


Những thanh lam được bố trí theo dạng module có thể đóng - mở linh hoạt tùy theo nhu cầu của gia chủ:
Khi đóng lại, mặt tiền mang dáng vẻ vững chãi và đồng nhất
Khi mở ra, căn nhà đón trọn gió trời, tạo hiệu ứng thoáng khí, điều hòa ánh sáng dịu nhẹ, giảm nóng hiệu quả
Lam nhựa giả gỗ còn có ưu điểm vượt trội:
Không cong vênh
Không phai màu
Chịu nắng gió tốt
Độ bền cao theo thời gian
Nhờ đó, mặt tiền của căn nhà luôn giữ được sắc thái tự nhiên, hiện đại và đầy sức sống.

Sự kết hợp giữa gam màu ghi xám của đá ốp, nâu ấm của lam gỗ và ánh sáng vàng hắt khe tạo nên một bức tranh hài hòa - mạch lạc. Đường nét vuông vắn, lớp lớp khối đua ra - thụt vào nhịp nhàng mang đến chiều sâu cho công trình nhà ống vốn có mặt tiền hẹp.

Tầng 1 được thiết kế thoáng rộng với gara đủ chỗ cho xe ô tô, lối lưu thông thuận tiện, cùng không gian lễ tân và khu chờ dành cho học viên hoặc khách đến liên hệ. Thang máy đặt tại trung tâm giao thông đứng, tạo trục di chuyển xuyên suốt toàn bộ công trình.

Đáp ứng yêu cầu của gia chủ, đội ngũ KTS Sơn Hà đã khéo léo bố trí 5 phòng học tiêu chuẩn trên 3 tầng gồm:
2 phòng 35 chỗ
3 phòng 40 chỗ
Không gian học được thiết kế tối ưu ánh sáng tự nhiên, thông gió tốt và tách biệt âm thanh để đảm bảo chất lượng giảng dạy. Mỗi tầng đều có khu vực sảnh chờ, tủ giày và lối đi rộng rãi đảm bảo khả năng vận hành thuận tiện cho số lượng học viên lớn.


Một điểm cộng đáng giá của công trình chính là hệ thang thoát hiểm ngoài trời, được bố trí tách biệt hoàn toàn với giao thông bên trong. Thiết kế này đáp ứng đầy đủ yêu cầu an toàn cháy nổ, giúp học viên và gia đình có thêm lối thoát hiểm độc lập trong các tình huống khẩn cấp. Thang thoát hiểm cũng góp phần giảm tải lưu lượng giao thông trong giờ cao điểm lên xuống lớp, tạo nên một vòng tuần hoàn di chuyển mạch lạc và an toàn.
Song song với đó, thang máy trở thành yếu tố không thể thiếu đối với một ngôi nhà 5 tầng kết hợp kinh doanh. Lợi ích mang lại vô cùng rõ rệt:
Di chuyển nhẹ nhàng và nhanh chóng giữa các tầng
Thuận lợi cho đối tượng trẻ nhỏ, người lớn tuổi hoặc người mang vật dụng nặng
Tăng tính chuyên nghiệp cho mô hình lớp học cho thuê
Gia tăng giá trị lâu dài của công trình
Trong mô hình nhà ống cao tầng tại đô thị, thang máy không còn là tiện ích xa xỉ mà đã trở thành tiêu chuẩn mới, tối ưu hóa trải nghiệm sống và chất lượng vận hành.

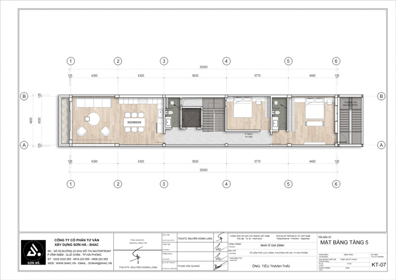
Khối nhà phía trên được dành hoàn toàn cho sinh hoạt của gia chủ.
Tầng 5 gồm hai phòng ngủ thoáng đãng, ưu tiên sự riêng tư và ánh sáng tự nhiên
Tầng tum bố trí phòng thờ trang nghiêm, kho và không gian mở thoáng mát
Tại đây, gia chủ có thể tận hưởng những phút giây thư thái, tách biệt hoàn toàn với nhịp vận hành sôi động ở các tầng dưới.


Việc bố trí 5 phòng học với sức chứa lớn giúp gia chủ khai thác nguồn thu ổn định và bền vững. Không gian giáo dục tách biệt hoàn toàn với nơi ở, đảm bảo sự riêng tư và chất lượng sống.
Hệ lam nhựa giả gỗ có tuổi thọ cao, chống chọi tốt với thời tiết và dễ bảo trì. Khối công trình hiện đại giữ được nét sang trọng theo thời gian, tạo nên giá trị bền vững.

Thiết kế mặt tiền đóng - mở linh hoạt tạo nên biểu tượng thị giác mạnh mẽ, giúp công trình nổi bật giữa dãy phố liền kề.

Công trình nhà ống 5 tầng có thang máy này là minh chứng cho khả năng hiện thực hóa không gian sống thông minh của Sơn Hà Group: tối ưu diện tích - đảm bảo thẩm mỹ - nâng cao trải nghiệm. Mỗi chi tiết đều được tính toán để mang lại hiệu quả sử dụng tối đa và cảm xúc sống trọn vẹn.

Với thiết kế hiện đại, công năng khoa học, thang máy tiện nghi và mặt tiền lam nhựa giả gỗ đóng mở linh hoạt, mẫu thiết kế nhà ống hiện đại 5 tầng của Sơn Hà Group thực sự chạm đến tiêu chuẩn sống mới của đô thị. Đây không chỉ là không gian an cư lý tưởng mà còn là mô hình kết hợp sinh hoạt và kinh doanh thông minh, bền vững, mang đến giá trị dài lâu cho những gia chủ biết tận dụng từng mét vuông một cách tối ưu.
Ảnh khác
Bình luận