Tìm hiểu mẫu thiết kế nhà ống 3 tầng 4x15 hiện đại, 1 trệt + 3 lầu tại TP.HCM do Sơn Hà Group thực hiện. Không gian đẹp, công năng tối ưu, chuẩn gu gia chủ trẻ trung sinh năm 2004.
NỘI DUNG CHÍNH

Trong nhịp sống năng động của TP.HCM, những mẫu thiết kế nhà ống 3 tầng 4x15 đang ngày càng được ưa chuộng bởi khả năng tối ưu diện tích, tiết kiệm chi phí nhưng vẫn mang lại không gian sống hiện đại và tiện nghi. Với diện tích 75m², ngôi nhà tại thành phố hoa lệ do Sơn Hà Group thiết kế và thi công là minh chứng hoàn hảo cho tư duy kiến trúc cầu tiến, hài hoà giữa gu thẩm mỹ cá nhân và giá trị sử dụng lâu dài.
Điểm đặc biệt của công trình này là nó không đơn thuần là một nơi ở, mà còn là món quà ý nghĩa người cha dành tặng con trai sinh năm 2004. Một ngôi nhà không chỉ để ở, mà là nền móng cho tương lai.




Gia chủ mong muốn công trình vừa có tính đầu tư (cho thuê), vừa đảm bảo riêng tư và tiện nghi cho con trai sử dụng các tầng trên. Yêu cầu đặt ra cho đội ngũ kiến trúc sư Sơn Hà Group là phải xử lý mặt bằng thông minh, đảm bảo yếu tố phong thuỷ (theo hướng nhà, hướng bếp, hướng bàn thờ) và vẫn giữ được vẻ đẹp hiện đại, trẻ trung của một người trẻ sinh năm 2004.

CẦU TOÀN không phải là giới hạn mà là cách chúng tôi chạm đến sự hoàn hảo.
Tháng 5 – mùa của nắng và những công trình đang dần thành hình. Khi nhịp thi công tạm lắng đôi chút, cũng là lúc các Kiến trúc sư Sơn Hà Group ngồi lại, lặng nhìn thành quả của mình – những không gian được tạo nên từ bản phác tay đầu tiên, cho đến từng đường nét hoàn thiện cuối cùng.
Ở mỗi giai đoạn, chúng tôi luôn giữ một tinh thần chung: cầu toàn đến từng chi tiết. Không chỉ để công trình đẹp hơn, mà để mỗi căn nhà thực sự "đúng gu" gia chủ, chuẩn về công năng, hài hòa với tự nhiên, và bền vững theo thời gian. Vì kiến trúc – với chúng tôi – là hành trình không ngừng làm mới chính mình.

Ngôi nhà sở hữu mặt tiền 4.5 m, nhưg không gian không hề chật chội hay gò bó. Các KTS Sơn Hà Group đã khéo léo chọn lối thiết kế hình khối mở, với những chi tiết cong mềm mại tạo cảm giác thân thiện và đồng thời rất trang nhã. Ban công các tầng được thiết kế lồi ra ngoài, tạo độ sâu và sự đa tầng về thị giác. Khắc hẳn với những mặt tiền trơn truổng, ngôi nhà này mang lại cảm hứng tự nhiên với màu sác hài hoà và vật liệu đồng bộ.
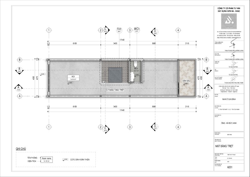
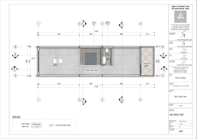
Hai tầng dưới được để trống theo đúng nguyện vọng gia chủ nhằm phục vụ mục đích cho thuê kinh doanh hoặc mở văn phòng sau này. KTS Sơn Hà Group đảm bảo hệ kết cấu vững chắc, hệ thống cấp thoát nước, điện, ánh sáng được bố trí sẵn sàng để thích ứng linh hoạt với mọi loại hình sử dụng trong tương lai.
Đây là khu vực sinh hoạt chính của cậu con trai 20 tuổi, nơi riêng tư, hiện đại nhưng vẫn gần gũi:

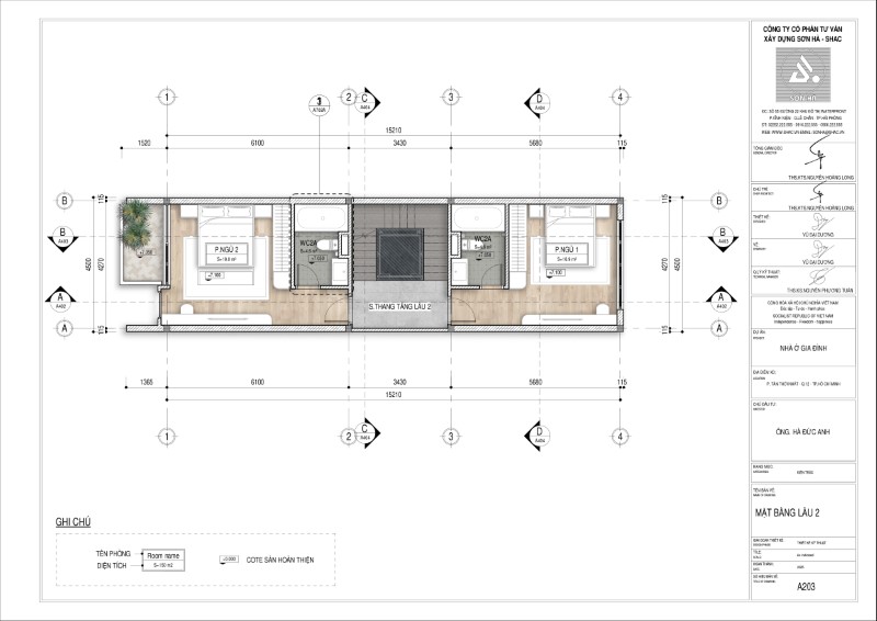
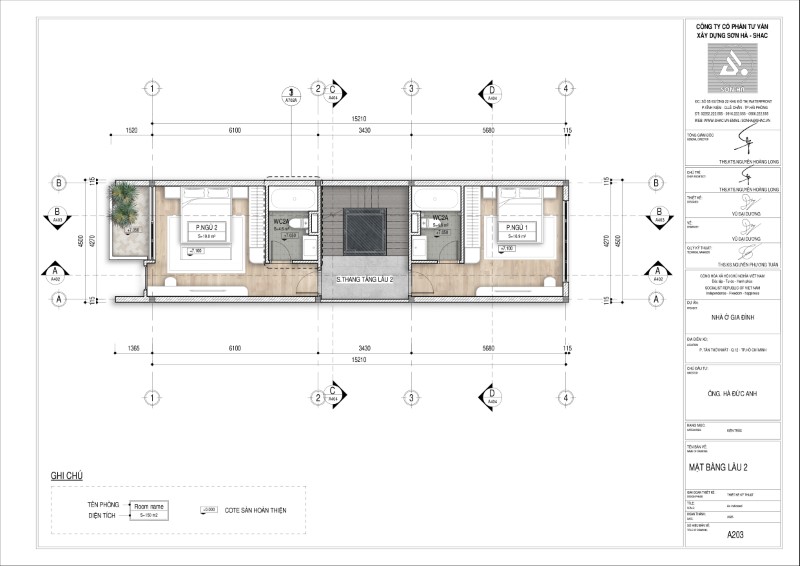
Tầng 3 là không gian sinh hoạt tập trung, với các không gian được bố trí thông minh:
Yêu cầu có thang máy là một chi tiết thể hiện tư duy dài hạn của gia chủ. Trong những ngôi nhà ống cao tầng, việc lắp thang máy vừa tăng giá trị sử dụng, vừa giúp người già, trẻ nhỏ dễ dàng di chuyển.

Về mặt thẩm mỹ, công trình lựa chọn phong cách hiện đại, tối giản nhưng tinh tế. KTS Sơn Hà Group sử dụng hình khối mạnh mẽ, mặt tiền xử lý thông thoáng bằng kính và lam chắn nắng, kết hợp gam màu trung tính như trắng – xám – nâu gỗ để tạo cảm giác ấm cúng, sang trọng.
Sự phối hợp giữa vật liệu hiện đại (kính, thép, gạch terrazzo...) và chi tiết trang trí tối giản giúp căn nhà luôn trẻ trung, trường tồn cùng thời gian.

Sơn Hà Group là đơn vị thiết kế & thi công chuyên nghiệp với hơn 22 năm đồng hành cùng hàng nghìn gia chủ trên toàn quốc. Chúng tôi am hiểu từng đặc thù đô thị, địa chất và nhu cầu sinh hoạt của từng vùng miền.
Mỗi căn nhà là một câu chuyện riêng. Chúng tôi không áp đặt, mà cùng bạn xây dựng bản sắc sống của chính mình.
Từ hướng nhà, bếp, ban thờ cho đến vật liệu, ánh sáng, thông gió – mọi thứ được cân nhắc hài hoà giữa thẩm mỹ, công năng và tâm linh.
Từ thiết kế kiến trúc, nội thất, xin phép xây dựng đến thi công trọn gói – Sơn Hà Group cam kết đồng hành cùng bạn đến ngày bàn giao.
Sơn Hà Group tự tin khẳng định chất lượng, chúng tôi mang đến giải pháp độc quyền:
Mẫu thiết kế nhà ống 3 tầng 4x15 tại TP.HCM là minh chứng cho tư duy kiến trúc hiện đại, cá nhân hoá và thực tế. Được kiến tạo từ tình yêu của người cha, chăm chút bởi bàn tay của những kiến trúc sư tâm huyết, công trình này không chỉ là một nơi ở, mà là nền móng cho một tương lai tươi sáng.
Bạn đang tìm kiếm mẫu thiết kế nhà ống hiện đại, đẹp và tối ưu như vậy?
Hãy để Sơn Hà Group đồng hành cùng bạn tạo nên không gian sống xứng tầm
Gói xây thô
Gói xây hoàn thiện
Gói xây trọn gói
Ảnh khác
Bình luận