Khi thiết kế và thi công nội thất biệt thự, không ít gia chủ rơi vào tình cảnh “dở khóc dở cười” khi nhận ra bản vẽ từ đơn vị mình thuê chứa đựng hàng loạt sai sót. Căn biệt thự tại Vinhome Vũ Yên cũng từng như vậy - một công trình có tiềm năng nhưng bị kìm hãm bởi những lỗi thiết kế cơ bản.
NỘI DUNG CHÍNH

Diện tích WC quá nhỏ, gây bất tiện khi sử dụng.

Cầu thang hẹp chỉ đủ một người đi, trong khi ngôi nhà có diện tích lớn, khiến di chuyển khó khăn và tiềm ẩn nguy hiểm.
Cửa phòng chỗ vòm, chỗ chữ nhật, thiếu sự thống nhất, không thể hiện rõ phong cách Tân Cổ Điển chủ đạo.
Đường ống nước bố trí sai kỹ thuật, tiềm ẩn rủi ro khi sử dụng lâu dài.
Nhưng thay vì chấp nhận, gia chủ đã kịp thời tìm đến Sơn Hà Group - công ty thiết kế thi công nội thất biệt thự uy tín để “giải cứu” công trình trước khi bước vào giai đoạn hoàn thiện.
Với kinh nghiệm dày dặn, đội ngũ kiến trúc sư Sơn Hà Group đã nhanh chóng khảo sát hiện trạng và đưa ra phương án xử lý triệt để.
Cầu thang được xây lại với chiều rộng chuẩn kỹ thuật, đủ để nhiều người di chuyển thoải mái. Tay vịn và chi tiết phào chỉ Tân Cổ Điển được bổ sung, biến cầu thang thành điểm nhấn nghệ thuật chứ không chỉ là lối đi.
Không gian WC được tính toán lại diện tích, phân bổ hợp lý để vừa đảm bảo công năng, vừa thuận tiện cho người sử dụng. Thiết kế mới còn chú trọng thông gió và ánh sáng, mang đến sự thoải mái thay vì cảm giác chật chội, bí bách.
Sơn Hà Group đã thay thế toàn bộ cửa vòm - chữ nhật lộn xộn, thống nhất lại theo hình chữ nhật - đúng tinh thần Tân Cổ Điển. Nhờ đó, tổng thể biệt thự đạt sự hài hòa, tinh tế và thể hiện cá tính kiến trúc rõ ràng.
Hệ thống cấp thoát nước được thiết kế lại hoàn toàn, tuân thủ chuẩn kỹ thuật và đảm bảo tính an toàn. Giải pháp mới giúp hạn chế tối đa sự cố rò rỉ, thấm dột về sau - một chi tiết nhỏ nhưng quyết định tuổi thọ công trình.

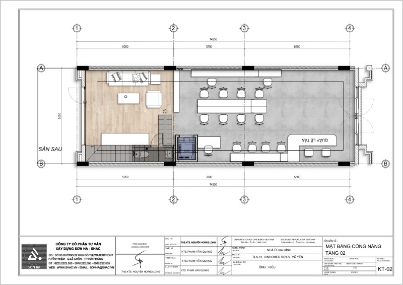
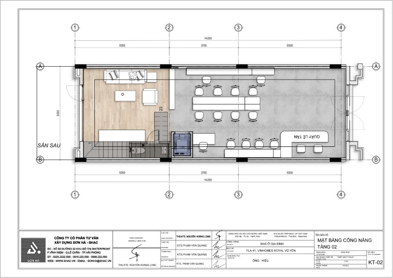
Không còn sự chật hẹp và rối rắm, tầng 1 được bố trí thành thiết kế nội thất phòng làm việc hiện đại với quầy lễ tân, phòng tiếp khách và khu bàn làm việc mở. Tone màu olive - kem giữ sự nhã nhặn, lịch sự - đúng tinh thần doanh nhân.

Phòng khách mang phong cách hiện đại kết hợp tinh tế với nét tân cổ điển, toát lên vẻ sang trọng nhưng vẫn giữ được sự ấm áp và gần gũi.
Nổi bật nhất là khu vực bàn thờ được thiết kế thông minh với cánh đóng mở linh hoạt: Thường ngày có thể khép lại để tạo sự riêng tư, gọn gàng; khi cần nghi lễ lại mở ra, mang đến không khí trang nghiêm và cân bằng hài hòa giữa đời sống hiện đại với yếu tố tâm linh truyền thống.


Bên cạnh đó, khu tiểu cảnh xanh được khéo léo bố trí, đưa hơi thở thiên nhiên vào không gian, trở thành điểm nhấn tươi mới, giúp phòng khách thêm phần sinh động và thư thái.

Không gian được mở rộng với bộ sofa màu kem nổi bật trên nền tường olive sang trọng, kết hợp cùng ánh sáng tự nhiên tràn ngập qua hệ cửa kính lớn, tạo cảm giác thoáng đãng và ấm áp.

Liền kề là khu bếp - ăn - trái tim của ngôi nhà, nơi bàn ăn gỗ tự nhiên cùng hệ tủ bếp cao kịch trần vừa tối ưu công năng, vừa đem lại vẻ đẹp tiện nghi, hoàn chỉnh cho tổng thể không gian sống.



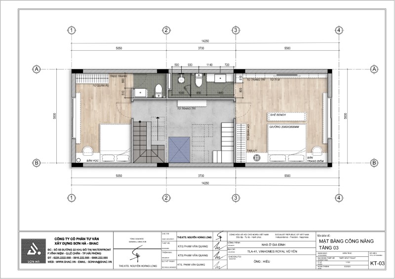
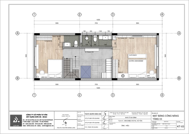
Phòng ngủ phụ với wc khép kín được thiết kế tinh tế theo tone màu olive dịu mắt kết hợp cùng sắc kem trang nhã, mang lại cảm giác thư giãn, ấm áp nhưng vẫn sang trọng. Giường ngủ bọc nệm êm ái với đầu giường bo cong nhẹ nhàng.

Hệ tủ quần áo cánh kính sang trọng, kết hợp ánh sáng hắt nhẹ, vừa tăng tính thẩm mỹ vừa giúp không gian gọn gàng và tinh tế.

Đối diện giường là hệ kệ tủ âm tường tích hợp kệ trang trí và TV, tạo điểm nhấn hiện đại và tiện nghi cho căn phòng. Cửa lớn với rèm buông mềm mại mang ánh sáng tự nhiên từ ban công tràn ngập, giúp không gian thêm thoáng đãng.

Tổng thể phòng ngủ phụ vừa mang nét thanh lịch, vừa thể hiện sự ấm cúng và riêng tư, là nơi nghỉ ngơi lý tưởng cho gia chủ.
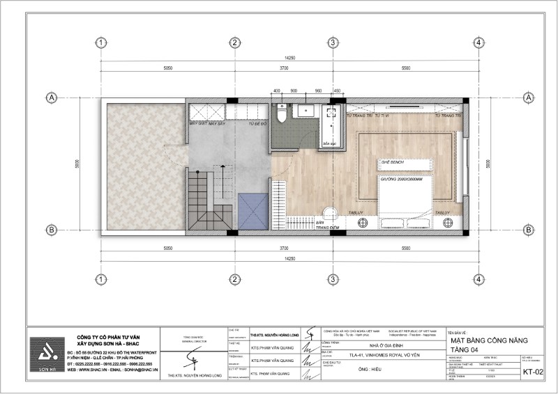
Phòng ngủ con được thiết kế theo phong cách hiện đại, tối giản nhưng vẫn đầy đủ tiện nghi. Gam màu chủ đạo là olive kết hợp kem, tạo nên không gian trẻ trung, nhẹ nhàng.

Bàn học được bố trí ngay cạnh cửa sổ lớn, tận dụng ánh sáng tự nhiên, kết hợp cùng hệ kệ mở treo tường vừa trang trí vừa tiện dụng cho việc lưu trữ sách vở, vật dụng cá nhân.

Hệ tủ quần áo cánh kính cao kịch trần mang lại cảm giác sang trọng và giúp không gian luôn ngăn nắp, gọn gàng.

Tổng thể căn phòng vừa đảm bảo sự thoải mái cho việc nghỉ ngơi, vừa là không gian học tập, sinh hoạt lý tưởng, phù hợp với lứa tuổi

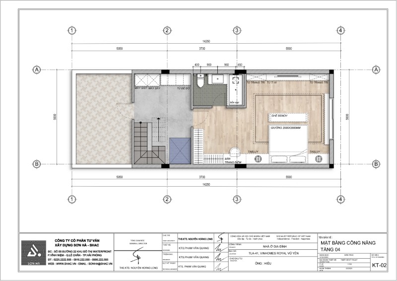
Phòng ngủ master tầng 4 được thiết kế đồng điệu như các phong khác, sử dụng tone màu olive kết hợp kem trang nhã, gợi cảm giác sang trọng, thư giãn nhưng vẫn ấm áp và gần gũi.

Giường ngủ kích thước lớn 2mx2m, đầu giường bọc nệm bo cong mềm mại, đi kèm ghế bench cuối giường, vừa tiện dụng vừa tạo điểm nhấn tinh tế. Hai bên giường bố trí tab đầu giường kết hợp đèn ngủ, tạo sự cân bằng đối xứng.

Đối diện giường là hệ tủ kệ trang trí và kệ TV gỗ công nghiệp với tone olive mê hoặc, thiết kế theo phong cách hiện đại - tân cổ điển, mang lại vẻ đẹp sang trọng, đồng thời tối ưu công năng lưu trữ. Bàn trang điểm được sắp đặt khéo léo gần giường, tiện lợi cho sinh hoạt hàng ngày.
Điểm đặc biệt của phòng ngủ master tầng 4 chính là WC tích hợp bồn sục hiện đại, mang đến trải nghiệm thư giãn tuyệt vời như spa tại gia. Với sự kết hợp hài hòa giữa công năng và thẩm mỹ, không gian này không chỉ là nơi nghỉ ngơi mà còn là chốn tận hưởng, chăm sóc sức khỏe và tinh thần cho gia chủ.

Khắc phục sai sót thiết kế cũ với giải pháp thông minh.
Đảm bảo kỹ thuật - thẩm mỹ song hành, tạo nên công trình hoàn chỉnh.
Đội ngũ kiến trúc sư giàu kinh nghiệm, am hiểu phong cách Tân Cổ Điển.
Thi công trọn gói, tiết kiệm chi phí và thời gian cho gia chủ.
Căn biệt thự Tân Cổ Điển tại Vinhome Vũ Yên là minh chứng sống động cho khả năng của Sơn Hà Group: Biến bản vẽ lỗi thành tuyệt tác Tân Cổ Điển. Mỗi chi tiết đều được “thổi hồn”, vừa bền vững vừa đầy cảm xúc.
Nếu bạn cũng đang cần một công ty thiết kế và thi công nội thất biệt thự để không chỉ tạo ra một ngôi nhà đẹp, mà còn sửa chữa những bất cập từ bản vẽ cũ, hãy để Sơn Hà Group đồng hành.
Ảnh khác
Bình luận