Suốt hơn 2 thập kỷ qua, Sơn Hà đã và đang hoàn thành hàng trăm công trình xây nhà trọn gói Hải Phòng. Từ những biệt thự nguy nga tới những căn nhà trong ngõ nhỏ... Mỗi tổ ấm là một câu chuyện, mỗi bản vẽ là một ước mơ. Và tiếp nối những thành tựu đó, hôm nay chúng tôi sẽ đưa bạn tới thăm căn nhà mặt phố 3 tầng 1 tum hiện đại của gia đình ông Phong.
NỘI DUNG CHÍNH





Vào một ngày hè tháng 6 đầy nắng, ông Phong tìm đến Sơn Hà Group với mong muốn hiện thực hóa giấc mơ về một tổ ấm hoàn hảo cho gia đình. Không đặt ra những yêu cầu cầu kỳ hay phức tạp, điều ông mong muốn chỉ đơn giản là một không gian sống hiện đại, đẹp mắt và tiện nghi, nơi mọi thành viên có thể thư giãn, quây quần bên nhau.
Thấu hiểu mong ước ấy, đội ngũ kiến trúc sư Sơn Hà Group đã tận tâm lên ý tưởng, thiết kế và thi công trọn gói để mang đến một căn nhà phố 3 tầng 1 tum, nơi hài hòa giữa thẩm mỹ và công năng, phản ánh phong cách sống tinh tế của gia chủ.

của căn nhà phố 3 tầng 1 tum mang phong cách hiện đại, tối giản nhưng đầy tinh tế, tạo nên vẻ đẹp sang trọng và hài hòa.
Tổng thể, căn nhà là sự kết hợp hài hòa giữa tính thẩm mỹ và công năng sử dụng, mang đến không gian sống tiện nghi, hiện đại và gần gũi với thiên nhiên.

Bước vào phòng khách, cảm giác đầu tiên chính là sự sang trọng và ấm cúng, nơi các chất liệu cao cấp được kết hợp một cách tinh tế:


Sự phối hợp giữa màu trắng – gỗ – xám giúp không gian phòng khách trở nên hài hòa, sang trọng nhưng vẫn giữ được sự ấm cúng cần thiết.

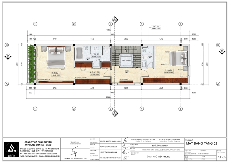
Căn nhà mặt phố 3 tầng 1 tum với chiều sâu 20,5m nên theo ý của gia chủ, các kiến trúc sư đã khéo léo bố trí 1 không gian bếp 21m2 rộng rãi thông ra sân sau. Thiết kế nội thất phòng bếp ăn sử dụng tông màu trung tính với sự kết hợp hài hòa giữa chất liệu gỗ ấm áp, đá marble sang trọng và kim loại bóng bẩy.

Trung tâm của bếp là bàn ăn dài với mặt đá vân mây đen độc đáo, đi kèm ghế bọc nệm êm ái, tạo nên cảm giác vừa ấm cúng vừa đẳng cấp. Hệ thống đèn thả hiện đại cùng tủ rượu kính cao sát trần với đèn LED âm giúp tăng chiều sâu và vẻ đẹp sang trọng cho không gian.

Điểm đặc biệt là cánh cửa lớn bằng kính dẫn ra khu sân sau xanh mát, giúp gian bếp luôn tràn ngập ánh sáng tự nhiên. Những tán cây ngoài sân không chỉ mang lại cảm giác thư thái mà còn giúp không khí trong lành lưu thông vào bên trong, tạo nên một không gian sống đầy cảm hứng và gần gũi với thiên nhiên.

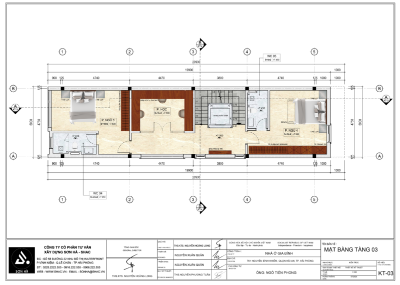
Việc thiết kế nội thất phòng ngủ là khâu cực kỳ quan trọng trong cả phương án xây nhà trọn gói tại Hải Phòng. Tiếp nối sự tinh tế trong thiết kế tổng thể, các phòng ngủ trong nhà được bài trí theo phong cách hiện đại, tối giản nhưng đầy đủ tiện nghi. Nội thất gỗ công nghiệp cao cấp được sử dụng chủ đạo, mang đến cảm giác gần gũi nhưng không kém phần sang trọng.



Sự đồng nhất trong màu sắc và chất liệu giúp không gian ngôi nhà có sự kết nối liền mạch, tạo nên một tổng thể hài hòa, thanh lịch và đầy cuốn hút.




Với diện tích vỏn vẹn chỉ 8m2, nhưng chính sự sắp xếp đối xứng của hệ tủ và bàn học vòng quanh ôm trọn lấy căn phòng đã tạo nên cảm giác cân bằng, hài hòa và mang đến khoảng trống trung tâm rộng rãi, vượt qua sự bức bối của không gian kín không cửa sổ.

Thiết kế nội thất phòng làm việc hoặc phòng học nên chọn màu sắc trung tính như gam trắng và vân gỗ ấm áp để mang lại sự thư thái, giúp tập trung tối đa. Các giá sách được thiết kế tinh gọn, kết hợp cùng hệ đèn LED ẩn giúp tăng thêm chiều sâu và sự sang trọng cho không gian.

Những chiếc ghế bọc da màu nâu nhạt không chỉ tạo điểm nhấn ấm áp mà còn đảm bảo sự thoải mái khi ngồi làm việc lâu. Ánh sáng từ đèn bàn với thiết kế tối giản góp phần tạo nên một không gian học tập và làm việc đầy cảm hứng.

Tổng thể, căn phòng này mang đến một môi trường học tập lý tưởng – vừa thanh lịch, chuyên nghiệp, vừa ấm áp và gần gũi.

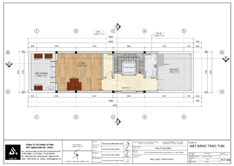
Hòa quyện giữa truyền thống và hiện đại, các KTS của Sơn Hà Group đã khéo léo sử dụng chất liệu gỗ tự nhiên với những đường nét chạm trổ tinh xảo để thổi hồn vào không gian, thể hiện sự tôn kính cũng như lòng thành của gia chủ đối với tổ tiên.
Mẫu thiết kế phòng thờ có bàn thờ được bố trí cân đối, hoa văn chạm khắc công phu, đi kèm những vật phẩm phong thủy như hạc đồng, lư hương, đèn dầu và bình hoa trang trí. Phía sau, vách ngăn gỗ với họa tiết cổ điển tạo sự riêng tư mà vẫn duy trì sự thoáng đãng.
Ánh sáng dịu nhẹ từ hệ thống đèn âm trần kết hợp với màu sắc trung tính của tường và sàn đá giúp căn phòng trở nên ấm cúng, trang nhã. Tấm chiếu và gối quỳ đặt ngay ngắn trên nền, tạo không gian thanh tịnh cho những phút giây tưởng nhớ và chiêm nghiệm.
Tổng thể, đây là một phòng thờ mang vẻ đẹp cổ điển, trang trọng, thể hiện tinh thần hiếu đạo và truyền thống văn hóa gia đình.

Với sự tận tâm và chuyên nghiệp, Sơn Hà Group không chỉ xây dựng một ngôi nhà, mà còn kiến tạo một không gian sống lý tưởng, nơi gia chủ có thể tận hưởng từng khoảnh khắc hạnh phúc bên gia đình.
Nếu bạn cũng đang tìm kiếm một đơn vị thiết kế – thi công trọn gói, hãy để Sơn Hà Group đồng hành cùng bạn!
Ảnh khác