Bên cạnh thiết kế kiến trúc ngoại thất, nội thất đóng một vai trò không hề nhỏ trong việc tạo nên một không gian sang trọng, tiện nghi và đặc biệt đáng sống. Trong các công trình biệt thự, nhà liền kề tại các dự án bất động sản, khi thiết kế ngoại thất được quy hoạch tương đồng thì thiết kế nội thất phía trong càng đóng vai trò quan trọng để thể hiện thẩm mỹ, cá tính riêng của chủ đầu tư. Với hệ thống nhà xưởng sản xuất chuyên nghiệp cùng đội ngũ thiết kế tài ba, Sơn Hà Group mang đến những không gian nội thất đầy tinh tế và sang trọng.
Trong bài viết ngày hôm nay, cùng đến thăm bên trong ngôi biệt thự tân cổ điển, với nội thất tiện nghi, thông minh được hoàn thiện theo phong cách tân cổ điển. Công trình nằm tại dự án bất động sản nổi tiếng LIDECO với quy mô 4 tầng, diện tích 170m2 tại Hà Nội.
NỘI DUNG CHÍNH
Là dự án biệt thự liền kề do Công ty Cổ phần phát triển đô thị Từ Liêm làm Chủ đầu tư, dự án khu đô thị LIDECO tọa lạc tại thị trấn Trạm Trôi, huyện Hoài Đức, cửa ngõ khu vực Tây Hà Nội. Được xây dựng hoàn thiện với đa dạng hạng mục công trình bao gồm biệt thự (song lập và đơn lập), nhà liền kề được thiết kế theo phong cách châu âu, hạ tầng kĩ thuật, môi trường đô thị hoàn thiện và đồng bộ: hồ điều hòa, cây xanh, trung tâm thương mại, hành chính, trường học…

Cụ thể về chi tiết, khu đô thị gồm 648 căn biệt thự nhà vườn và 136 căn liền kề được xây dựng trên tổng diện tích là 38.95 ha. Trong đó, toàn bộ kiến trúc ngoại thất hoàn thiện theo phong cách tân cổ điển sang trọng. Để nối liền cảm hứng kiến trúc và khiến không gian đồng bộ, Sơn Hà Group và chủ đầu tư Vũ Xuân Thành đã thống nhất lựa chọn phong cách tân cổ điển trong thiết kế nội thất. Trong phần tiếp theo của bài viết, hãy cùng tìm hiểu phong cách thiết kế được ứng dụng trong không gian nội thất cũng như cách phân chia công năng sử dụng hợp lý.
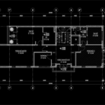
Cách bố trí công năng sử dụng thể hiện rất nhiều thói quen sinh hoạt và phong cách sống của chủ đầu tư cùng gia đình. Chính vì thế trước khi chia công năng sử dụng, đội ngũ Sơn Hà Group đã thảo luận cùng gia chủ và đưa ra nhiều phương án khác nhau để chọn lựa. Sau cùng, phương án được lựa chọn là phương án phù hợp nhất với thói quen sử dụng của cả gia đình, đồng thời mang những tiện lợi trong sinh hoạt. Chi tiết mời bạn đọc cùng đón xem:
Để có cái nhìn tổng quan hơn về từng không gian, mời bạn đọc tham khảo những hình ảnh dưới đây:





Như đã nhắc đến phía trên, không gian nội thất phía trong ngôi nhà được thiết kế theo kiểu tân cổ điển để hài hòa với thiết kế kiến trúc mặt ngoài. Có thể thấy tông màu chủ đạo trong từng không gian của ngôi nhà đều là tông màu sáng, trung tính như những tông đen, trắng, be,... Cùng đó là các đường nét thiết kế tối giản, tinh tế nhưng thể hiện đẳng cấp.





Bên cạnh đó, điểm sáng trong thiết kế nội thất còn là việc lựa chọn và kết hợp đa dạng các chất liệu khác nhau, ở đây là chất liệu da lộn, gạch ceramics, đá tự nhiên cùng với gỗ laminate. Việc kết hợp các chất liệu mang đến sự mềm mại đi cùng sự sang trọng trong tổng thể không gian. Cách thiết kế này được lặp lại và kế thừa trong toàn bộ các không gian khác của ngôi nhà như phòng khách, bếp, phòng ngủ,...


Những thông tin và hình ảnh phía trên đã cho bạn đọc cái nhìn tổng quát về công trình thiết kế nội thất trong biệt thự tân cổ điển 4 tầng 179m2 thuộc dự án LIDECO tại Hà Nội. Hi vọng với những thông tin phía trên, bạn đọc có thể tham khảo và ứng dụng vào trong công trình của mình tại dự án LIDECO nói riêng và các công trình biệt thự tân cổ điển khác nói chung. Cảm ơn và hẹn gặp lại tại các bài viết tiếp theo.
Ảnh khác
Bình luận