Ngày đăng 03/05/2026
Ngày cập nhật 03/05/2026
Đánh giá post

Hải Phòng - Thành phố cảng năng động, nơi nhịp sống hiện đại hòa cùng hơi thở biển cả. Nhưng cũng chính vị trí địa lý đặc thù ấy khiến khí hậu nơi đây trở thành yếu tố quan trọng trong các phương án thiết kế. Một công trình đẹp thôi chưa đủ - nó phải thích ứng được với nắng gắt mùa hè, độ ẩm cao quanh năm và những cơn bão lớn đặc trưng vùng duyên hải.

Với kinh nghiệm thực tế qua nhiều dự án thiết kế biệt thự Hải Phòng, đội ngũ kiến trúc sư Sơn Hà Group hiểu rằng: nếu không tính toán kỹ yếu tố khí hậu ngay từ đầu, chi phí sửa chữa và vận hành sau này có thể tăng lên đáng kể.

Căn biệt thự 3 tầng phong cách hiện đại dưới đây là minh chứng rõ nét cho tư duy thiết kế bền vững theo điều kiện địa phương.

NỘI DUNG CHÍNH

Tổng quan khí hậu Hải Phòng và tác động đến công trình kiến trúc nói chung và kiến trúc biệt thự nói riêng

Ảnh hưởng của bão tới công trình kiến trúc tại Hải Phòng
Ảnh hưởng của bão tới công trình kiến trúc tại Hải Phòng

Đặc trưng khí hậu Hải Phòng - nóng ẩm, mưa nhiều, bão lớn

Hải Phòng nằm trong vùng khí hậu nhiệt đới gió mùa ven biển với những đặc điểm rõ rệt:

  • Nhiệt độ mùa hè cao, bức xạ mạnh
  • Độ ẩm trung bình cao quanh năm
  • Lượng mưa lớn, tập trung theo mùa
  • Ảnh hưởng của bão và gió biển

Mùa hè có thể lên tới 32 - 46 độ C, kết hợp độ ẩm cao khiến cảm giác oi bức tăng mạnh. Mùa mưa kéo dài với lượng mưa lớn dễ gây ngập úng nếu hệ thống thoát nước không được tính toán kỹ. Đặc biệt, khu vực ven biển còn chịu tác động của gió mang hơi muối gây ăn mòn vật liệu.

Khí hậu Hải Phòng ảnh hưởng thiết kế như thế nào?

Khí hậu Hải Phòng ảnh hưởng thiết kế như thế nào?
Khí hậu Hải Phòng ảnh hưởng thiết kế như thế nào?

Khí hậu Hải Phòng ảnh hưởng thiết kế trên nhiều phương diện:

  • Ảnh hưởng đến vật liệu hoàn thiện - dễ ẩm mốc, bong tróc nếu không chọn đúng chủng loại
  • Ảnh hưởng đến kết cấu, móng, mái - cần gia cố chịu gió bão
  • Ảnh hưởng đến thông gió và chiếu sáng - nếu bí bách sẽ tăng phụ thuộc điều hòa
  • Tăng chi phí vận hành nếu thiết kế không phù hợp

Chính vì vậy, trong kiến trúc biệt thự Hải Phòng, tư duy thiết kế cần đi từ nền tảng khí hậu thay vì chỉ tập trung vào hình thức thẩm mỹ.

YÊU CẦU TƯ VẤN
Nhận ưu đãi & tư vấn
🎁 GIẢM NGAY 50% phí thiết kế khi thi công trọn gói 🎁 MIỄN PHÍ kiểm tra giám sát các lần đổ móng, sàn, mái
🎁 MIỄN PHÍ khảo sát hiện trạng đất/nhà 🎁 HỖ TRỢ hồ sơ giấy xin cấp phép xây dựng
🎁 MIỄN PHÍ thiết kế cổng và tường rào 🎁 MIỄN PHÍ tư vấn thiết kế, tư vấn phong thủy

*Vui lòng để lại thông tin, nhân viên tư vấn sẽ liên hệ lại với quý khách trong thời gian sớm nhất

Lưu ý về hướng nhà và tổ chức mặt bằng trong thiết kế biệt thự Hải Phòng

Trong thiết kế biệt thự Hải Phòng, hướng nhà đóng vai trò then chốt
Trong thiết kế biệt thự Hải Phòng, hướng nhà đóng vai trò then chốt

Chọn hướng nhà phù hợp để giảm nắng gắt và đón gió mát

Trong thiết kế biệt thự Hải Phòng, hướng nhà đóng vai trò then chốt.

  • Ưu tiên hướng Nam, Đông Nam để đón gió mát mùa hè
  • Hạn chế hướng Tây trực diện do bức xạ mạnh
  • Giải pháp khi bắt buộc xây hướng Tây: dùng lam che nắng, tường hai lớp, cây xanh chắn nhiệt

Căn biệt thự 3 tầng hiện đại này được xử lý mặt đứng với hệ ban công đua rộng, kết hợp lam ngang và cây xanh tầng cao nhằm giảm thiểu hấp thụ nhiệt trực tiếp.

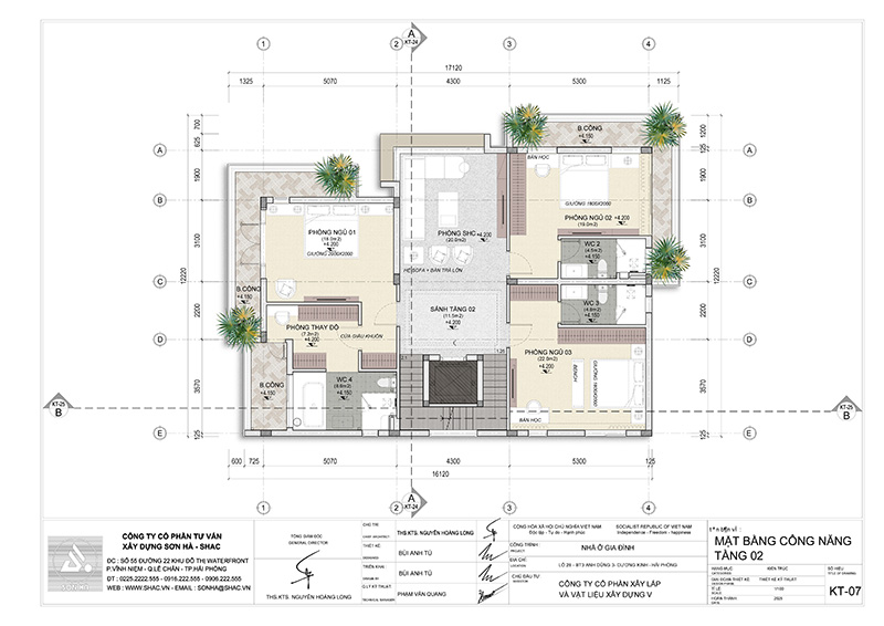
Tối ưu mặt bằng để thông gió tự nhiên

Mặt bằng được tối ưu để lấy gió tự nhiên từ ban công vào các phòng ngủ, giúp không khí luôn được làm mới
Mặt bằng được tối ưu để lấy gió tự nhiên từ ban công vào các phòng ngủ, giúp không khí luôn được làm mới

Một thiết kế biệt thự 3 tầng hiện đại tại Hải Phòng nếu không tạo được dòng gió xuyên phòng sẽ nhanh chóng trở nên ẩm thấp.

Giải pháp bao gồm:

  • Tạo trục gió xuyên phòng giữa sảnh - phòng khách - bếp
  • Bố trí giếng trời tăng đối lưu không khí
  • Tăng diện tích cửa sổ hợp lý, sử dụng cửa kính mở trượt
  • Tận dụng không gian đệm - ban công - hành lang
Gian bếp ngập tràn ánh sáng nhờ thiết kế tăng số lượng và diện tích cửa sổ
Gian bếp ngập tràn ánh sáng nhờ thiết kế tăng số lượng và diện tích cửa sổ

Ở tầng 1, phòng khách 43.5m2 liên thông bếp ăn 59m2 tạo không gian mở thoáng rộng nhưng vẫn có các lớp hiên che chắn bên ngoài.

Thiết kế không gian mở nhưng vẫn kiểm soát nhiệt

Phong cách hiện đại đề cao kính và không gian mở. Tuy nhiên nếu không kiểm soát tốt sẽ gây hiệu ứng nhà kính.

Giải pháp áp dụng:

  • Phòng khách liên thông nhưng có mái đua lớn phía trên
  • Kết hợp sân vườn và mảng xanh quanh ban công
  • Hệ lam che nắng và trần ốp gỗ tạo lớp cách nhiệt tự nhiên

Giải pháp vật liệu phù hợp khí hậu Hải Phòng

kiến trúc biệt thự Hải Phòng

Vật liệu chống ẩm mốc và ăn mòn

Biệt thự tại Hải Phòng cần ưu tiên:

  • Sơn ngoại thất kháng muối biển
  • Gạch ốp chống thấm, hạn chế bám bẩn
  • Nhôm kính hệ cao cấp chống oxy hóa

Mặt tiền công trình sử dụng tông trắng - xám kết hợp vật liệu giả gỗ hiện đại, vừa sang trọng vừa hạn chế hấp thụ nhiệt.

Giải pháp mái cho biệt thự tại Hải Phòng

Giải pháp mái dốc cho biệt thự tại Hải Phòng giúp thoát nước nhanh hơn
Giải pháp mái dốc cho biệt thự tại Hải Phòng giúp thoát nước nhanh hơn
  • Mái dốc thoát nước nhanh
  • Có thể chọn mái Nhật - mái Thái phù hợp vùng mưa nhiều
  • Chống thấm và chống nóng mái bằng lớp cách nhiệt chuyên dụng

Khối mái dốc hiện đại của công trình không chỉ tạo điểm nhấn kiến trúc mà còn tối ưu khả năng thoát nước mùa mưa.

Kết cấu chịu lực và gia cố chống bão

  • Tính toán tải trọng gió ngay từ hồ sơ kết cấu
  • Gia cố cửa kính lớn bằng hệ khung chắc chắn
  • Neo mái và hệ khung chống rung lắc

Đây là yếu tố bắt buộc trong kiến trúc biệt thự Hải Phòng nhằm đảm bảo an toàn lâu dài.

Thiết kế cảnh quan biệt thự tại Hải Phòng thích ứng khí hậu

Cây xanh - lớp cách nhiệt tự nhiên

Thiết kế Ccây xanh làm lớp cách nhiệt tự nhiên giúp chắn nắng hướng Tây cho biệt thự tại Hải Phòng
Thiết kế Ccây xanh làm lớp cách nhiệt tự nhiên giúp chắn nắng hướng Tây cho biệt thự tại Hải Phòng
  • Cây tán rộng chắn nắng hướng Tây
  • Cây leo cho mặt đứng
  • Sân vườn giảm bức xạ nhiệt

Hệ cây xanh bố trí dày tại ban công tầng 2, tầng 3 và quanh tường rào giúp giảm nhiệt đáng kể.

Hệ thống thoát nước sân vườn

  • Độ dốc sân hợp lý
  • Rãnh thu nước quanh nhà
  • Tránh ngập úng mùa mưa

Hồ nước, tiểu cảnh điều hòa vi khí hậu

Biệt thự sân vườn hiện đại với thiết kế hồ cá thông minh có hệ thống bật đèn và bơm nước điều khiển bằng điện thoại
Biệt thự sân vườn hiện đại với thiết kế hồ cá thông minh có hệ thống bật đèn và bơm nước điều khiển bằng điện thoại

Giải pháp công nghệ giúp biệt thự bền vững tại Hải Phòng

Giải pháp công nghệ giúp biệt thự bền vững tại Hải Phòng
Giải pháp công nghệ giúp biệt thự bền vững tại Hải Phòng

Ứng dụng vật liệu cách nhiệt và kính Low-E

  • Giảm hấp thụ nhiệt
  • Tiết kiệm điện điều hòa

Hệ thống năng lượng tái tạo

  • Điện mặt trời
  • Bình nước nóng năng lượng mặt trời

Nhà thông minh kiểm soát nhiệt độ và độ ẩm

  • Cảm biến độ ẩm
  • Điều hòa trung tâm

Những sai lầm phổ biến khi thiết kế biệt thự Hải Phòng không tính đến khí hậu

Thiết kế quá nhiều kính hướng Tây

Dẫn đến nóng bức, tốn điện điều hòa.

Thiết kế nhà hướng tây nhưng có quá nhiều kính
Thiết kế nhà hướng tây nhưng có quá nhiều kính

Không xử lý chống thấm ngay từ đầu

Hậu quả là nứt tường, ẩm mốc, chi phí sửa chữa cao.

Biệt thự xây dựng không xử lý chống thấm ngay từ đầu dẫn tới nứt tường, ẩm mốc trong quá trình sử dụng
Biệt thự xây dựng không xử lý chống thấm ngay từ đầu dẫn tới nứt tường, ẩm mốc trong quá trình sử dụng

Mái bằng không có giải pháp thoát nước

Biệt thự mái bằng không có giải pháp thoát nước gây đọng nước, thấm dột.
Biệt thự mái bằng không có giải pháp thoát nước gây đọng nước, thấm dột.

Thiếu không gian xanh

Làm tăng nhiệt độ bề mặt công trình.

Chi phí khắc phục thường cao hơn nhiều so với đầu tư đúng ngay từ đầu.

>>> Có thể bạn quan tâm: Xây nhà không sai - Chỉ sai ở chỗ… không thuê thiết kế từ đầu

Kinh nghiệm thực tế từ các công trình biệt thự tại Hải Phòng của Sơn Hà Group

Giải pháp kiểm soát nắng gió trong biệt thự 3 tầng hiện đại

  • Lam che nắng ngang
  • Ban công đua rộng
  • Cây xanh tầng cao

Những chi tiết này vừa tạo chiều sâu mặt đứng, vừa giảm bức xạ trực tiếp.

Tối ưu chi phí vận hành nhờ thiết kế phù hợp khí hậu

  • Giảm điện năng
  • Tăng tuổi thọ công trình

Cam kết thiết kế kiến trúc biệt thự Hải Phòng theo điều kiện địa phương

  • Khảo sát vi khí hậu từng khu vực
  • Tư vấn cá nhân hóa cho từng gia chủ

Năng lực và thế mạnh của Sơn Hà Group trong lĩnh vực thiết kế thi công biệt thự

Sơn Hà Group là đơn vị giàu kinh nghiệm trong lĩnh vực thiết kế kiến trúc, nội thất và thi công trọn gói nhà ở, biệt thự, khách sạn, nhà hàng, trung tâm tiệc cưới và nhiều công trình quy mô lớn. Với hơn 23 năm phát triển, doanh nghiệp khẳng định vị thế bằng tư duy sáng tạo, giải pháp tổ chức không gian khoa học và khả năng tối ưu công năng phù hợp thực tế sử dụng.

Năng lực và thế mạnh của Sơn Hà Group trong lĩnh vực thiết kế thi công biệt thự
Năng lực và thế mạnh của Sơn Hà Group trong lĩnh vực thiết kế thi công biệt thự

Đặc biệt trong lĩnh vực thiết kế biệt thự Hải Phòng, Sơn Hà am hiểu đặc thù địa phương, chú trọng xử lý yếu tố khí hậu Hải Phòng ảnh hưởng thiết kế như nắng hướng Tây, độ ẩm cao và gió biển. Nhờ đó, mỗi công trình biệt thự tại Hải Phòng không chỉ đạt giá trị thẩm mỹ mà còn đảm bảo độ bền vững và sự thoải mái dài lâu. Các phương án kiến trúc biệt thự Hải Phòng luôn được nghiên cứu kỹ lưỡng để dung hòa giữa phong cách, công năng và điều kiện tự nhiên.

Sơn Hà đã triển khai hàng nghìn công trình trên toàn quốc, từ biệt thự, nhà phố đến dự án cao tầng và công trình đặc thù như Nhà khách quân đội. Doanh nghiệp sở hữu xưởng sản xuất hơn 1000m2, chủ động toàn bộ quy trình từ thiết kế, sản xuất đến lắp đặt, giúp kiểm soát chất lượng và tiến độ hiệu quả.

Bên cạnh đó, hệ sinh thái Sơn Hà còn có showroom gạch nhập khẩu và showroom thiết bị bếp nhập khẩu, mang đến giải pháp đồng bộ, giúp khách hàng yên tâm lựa chọn mà không cần qua trung gian, đảm bảo chất lượng và tính nhất quán cho từng công trình.

Báo giá và quy trình thiết kế biệt thự Hải Phòng tại Sơn Hà Group

Các yếu tố ảnh hưởng chi phí thiết kế

  • Diện tích và quy mô
  • Phong cách kiến trúc
  • Mức độ đầu tư vật liệu

Quy trình làm việc chuyên nghiệp

  • Khảo sát hiện trạng
  • Lên phương án concept
  • Triển khai hồ sơ kỹ thuật
  • Đồng hành giám sát

Cam kết tiến độ và bảo hành thiết kế

Sơn Hà Group cam kết tiến độ rõ ràng, hồ sơ chi tiết, hỗ trợ xuyên suốt quá trình thi công.

Quý khách có thể liên hệ tư vấn miễn phí để được kiến trúc sư phân tích phương án phù hợp nhất với lô đất và điều kiện khí hậu cụ thể.

>>> Tham khảo Báo giá xây nhà trọn gói tại Hải Phòng mới nhất 2026 của Sơn Hà

FAQ - Câu hỏi thường gặp khi thiết kế biệt thự Hải Phòng theo điều kiện khí hậu

Thiết kế biệt thự Hải Phòng có bắt buộc phải làm mái dốc không?

Không bắt buộc, nhưng mái dốc có ưu điểm thoát nước nhanh. Mái bằng vẫn có thể áp dụng nếu xử lý chống thấm và thoát nước kỹ thuật tốt.

Khí hậu Hải Phòng ảnh hưởng thiết kế nội thất như thế nào?

  • Độ ẩm cao ảnh hưởng đến gỗ tự nhiên
  • Cần xử lý chống ẩm sàn và tường
  • Nên lắp hệ thống hút ẩm và điều hòa phù hợp

Biệt thự tại Hải Phòng gần biển cần lưu ý gì đặc biệt?

  • Vật liệu chống ăn mòn muối biển
  • Gia cố cửa và mái chống gió bão

Thiết kế biệt thự Hải Phòng bền vững - chìa khóa cho giá trị lâu dài

Thiết kế biệt thự Hải Phòng - Lưu ý khí hậu chuẩn chuyên gia
Thiết kế biệt thự Hải Phòng - Lưu ý khí hậu chuẩn chuyên gia

Một căn biệt thự đẹp là khi nó trường tồn với thời gian. Một bản vẽ thông minh là khi nó hiểu rõ khí hậu nơi mình tọa lạc.

Với kinh nghiệm thực chiến và đội ngũ kiến trúc sư am hiểu địa phương, Sơn Hà Group mang đến giải pháp thiết kế biệt thự Hải Phòng không chỉ đẹp về hình thức mà còn tối ưu chi phí vận hành, bền vững trước nắng gió biển.

Nếu bạn đang sở hữu quỹ đất tại Hải Phòng và mong muốn kiến tạo một không gian sống hiện đại, tinh tế và thích ứng khí hậu, hãy để Sơn Hà Group đồng hành ngay từ những nét phác thảo đầu tiên.

Đánh giá post
41Lượt xem
YÊU CẦU TƯ VẤN
Nhận ưu đãi & tư vấn
🎁 GIẢM NGAY 50% phí thiết kế khi thi công trọn gói 🎁 MIỄN PHÍ kiểm tra giám sát các lần đổ móng, sàn, mái
🎁 MIỄN PHÍ khảo sát hiện trạng đất/nhà 🎁 HỖ TRỢ hồ sơ giấy xin cấp phép xây dựng
🎁 MIỄN PHÍ thiết kế cổng và tường rào 🎁 MIỄN PHÍ tư vấn thiết kế, tư vấn phong thủy

*Vui lòng để lại thông tin, nhân viên tư vấn sẽ liên hệ lại với quý khách trong thời gian sớm nhất

Tra cứu phong thủy
Xem hướng Nhà
Xem tuổi xây nhà
DỰ TOÁN CHI PHÍ

Bạn có thể tự tính toán chi phí xây dựng bằng phần mềm Dự toán Online của SHAC. Để lên dự trù chi phí xây dựng, hãy truy cập link sau (miễn phí):

Dự toán Chi phí xây dựng

Có liên quan

Yêu cầu tư vấn

YÊU CẦU TƯ VẤN Widget

Tìm theo số tầng

Tìm theo mặt tiền

Bài viết mới nhất

Yêu cầu tư vấn

YÊU CẦU TƯ VẤN Widget

Ảnh khác

.
.
0906.222.555