Kinh doanh căn hộ cho thuê đang là xu hướng đầu tư bền vững tại các thành phố lớn. Đặc biệt, tại Hải Phòng – một trong những trung tâm kinh tế sôi động, nhu cầu thuê căn hộ hiện đại, tiện nghi ngày càng tăng cao. Trong bài viết này, Sơn Hà Group giới thiệu mẫu thiết kế căn hộ cho thuê tại Hải Phòng 5 tầng 1 tum, giúp tối ưu diện tích, công năng sử dụng và gia tăng giá trị đầu tư bền vững.
NỘI DUNG CHÍNH




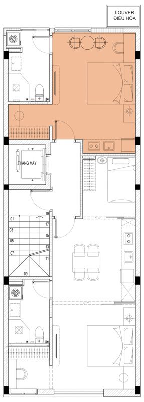
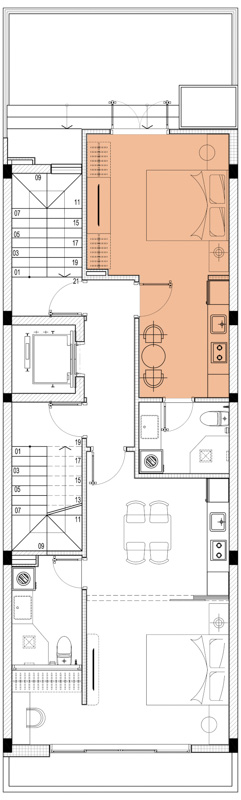
Với bố trí khoa học, tòa nhà đảm bảo tối ưu diện tích sử dụng, vừa đáp ứng nhu cầu thuê nhà ở cao cấp vừa tạo giá trị lợi nhuận cao cho chủ đầu tư.

Tòa nhà được thiết kế theo phong cách hiện đại, sử dụng đường nét tối giản nhưng tinh tế, giúp tạo điểm nhấn ngay từ cái nhìn đầu tiên. Mặt tiền kết hợp kính cường lực, lam gỗ trang trí và đèn chiếu sáng, mang đến vẻ ngoài sang trọng và chuyên nghiệp.
Hệ thống cửa sổ lớn ở tất cả các phòng, kết hợp với mảng xanh từ cây cảnh giúp tạo không gian sống trong lành, gần gũi với thiên nhiên.
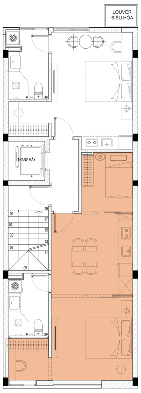
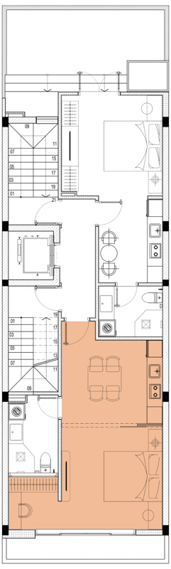
Thiết kế căn hộ cho thuê 5 tầng 1 tum tại Hải Phòng ưu tiên sự thông thoáng, không chỉ tăng tính thẩm mỹ mà còn giúp tiết kiệm năng lượng, tối ưu ánh sáng tự nhiên cho từng căn hộ.

Giữa bếp và phòng ngủ đều được ngăn cách bằng hệ thống cửa trượt slim giúp giảm tối đa việc ám mùi khi nấu nướng.


Thiết kế căn hộ cho thuê tại Hải Phòng 5 tầng 1 tum với diện tích hợp lý, mỗi căn hộ trong tòa nhà đều được thiết kế để tối ưu không gian sinh hoạt, đảm bảo sự tiện nghi và thoải mái cho người thuê.


Thiết kế căn hộ cho thuê này mang đến lợi nhuận ổn định và bền vững, nhờ vào:
✔ Vị trí đẹp tại khu vực phát triển của Hải Phòng
✔ Thiết kế tối ưu giúp tăng số lượng căn hộ, tối đa hóa doanh thu
✔ Tiện nghi hiện đại, thu hút khách hàng ở dài hạn


Nhờ thiết kế khoa học, tiện nghi, tòa nhà dễ dàng hấp dẫn nhiều nhóm khách hàng, đảm bảo tỷ lệ lấp đầy cao và doanh thu ổn định.

Xem thêm các dự án thiết kế căn hộ cho thuê của Sơn Hà Group khác tại đây:

Với hơn 20 năm kinh nghiệm trong lĩnh vực thiết kế và thi công căn hộ cho thuê, nhà phố, biệt thự, Sơn Hà Group tự hào là đối tác tin cậy của hàng trăm chủ đầu tư trên toàn quốc. Chúng tôi cam kết mang đến:
✔ Thiết kế tối ưu, sáng tạo theo xu hướng mới nhất
✔ Bố trí không gian thông minh, tăng hiệu suất đầu tư
✔ Thi công chất lượng cao, đảm bảo tiến độ và ngân sách
Nếu bạn đang có nhu cầu thiết kế căn hộ cho thuê tại Hải Phòng, hãy liên hệ ngay với Sơn Hà Group để nhận tư vấn miễn phí và giải pháp thiết kế hiệu quả nhất!
Mọi chi tiết xin liên hệ:
CÔNG TY CỔ PHẦN TƯ VẤN XÂY DỰNG SƠN HÀ (SHAC)
Trụ sở chính: Số 55, đường 22, KĐT Waterfront City, Lê Chân, Hải Phòng
Văn phòng đại diện
Ảnh khác
Bình luận