Sơn Hà Group mang đến giải pháp xây nhà ống 2 tầng 1 tum hiện đại, tối ưu không gian trong ngõ nhỏ, thiết kế thông minh, tiết kiệm chi phí, đảm bảo công năng và thẩm mỹ.
NỘI DUNG CHÍNH

Ngày nay, với sự phát triển nhanh chóng của đô thị, không gian đất xây dựng ngày càng trở nên hạn chế, đặc biệt là tại những khu vực đông dân cư như trung tâm thành phố Hải Phòng. Nhiều gia đình phải đối mặt với việc sở hữu những mảnh đất nhỏ, hẹp hoặc nằm trong các con ngõ nhỏ.

Tuy nhiên, vấn đề này không phải là rào cản cho những ai mong muốn sở hữu một ngôi nhà tiện nghi, hiện đại và đầy đủ công năng. Ngôi nhà của ông Hùng là minh chứng thực tế cho giải pháp xây nhà ống 2 tầng 1 tum hiện đại, tối ưu không gian các mảnh đất trong ngõ nhỏ của Sơn Hà Group.
Công năng:
Một không gian sống hiện đại, tiện nghi là mong muốn của hầu hết mọi người. Với chủ nhân của mẫu nhà ống 2 tầng 1 tum dưới đây cũng vậy. Ông Hùng mong muốn một ngôi nhà rộng rãi, tràn ngập cây xanh với diện mạo thu hút. Nhưng vẫn đảm bảo các tiện ích cần có cho nhu cầu sinh hoạt hàng ngày, là "chốn đi về" ấm êm của các thành viên trong gia đình.


Và chúng tôi, những người được ông tin tưởng giao cho trọng trách xây dựng nên không gian sống mơ ước ấy, đã mang đến cho giải pháp thiết kế sau đây.
Mẫu nhà ống hiện đại này được thiết kế với mặt tiền thoáng sáng, sang trọng, Các hình khối kiến trúc ở đây được xếp chồng lên nhau với 3 tone màu riêng biệt, thể hiện sự sáng tạo và tinh thần thiết kế của tương lai. Đi cùng đó là cách kết hợp ngoại thất với các chi tiết nhôm kính, cửa kính, lan nhựa giả gỗ đem lại những mảng màu khác biệt và tạo sự đa dạng cho không gian thêm phần ấn tượng.

Hệ thống chiếu sáng bên ngoài cùng hàng cây xanh trên sân thượng được sắp đặt xen kẽ là chất liệu đắt giá làm tăng thêm vẻ sang trọng cho căn nhà. Tất cả kết hợp lại hài hoà, khiến ngôi nhà dù nằm trong con ngõ nhỏ nhưng không kém phần nổi bật
Thiết kế mái nan gỗ với các khoảng rỗng đan xen là giải pháp khoảng không khéo léo cho kiến trúc mà chúng tôi mang đến nhằm giúp ngôi nhà lấy sáng hiệu quả nhưng cũng không ảnh hướng tới không gian sân thượng bên trong.
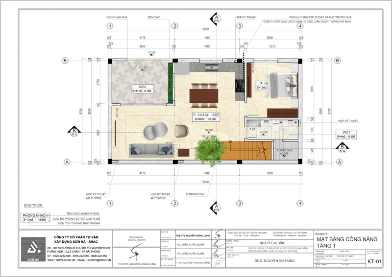
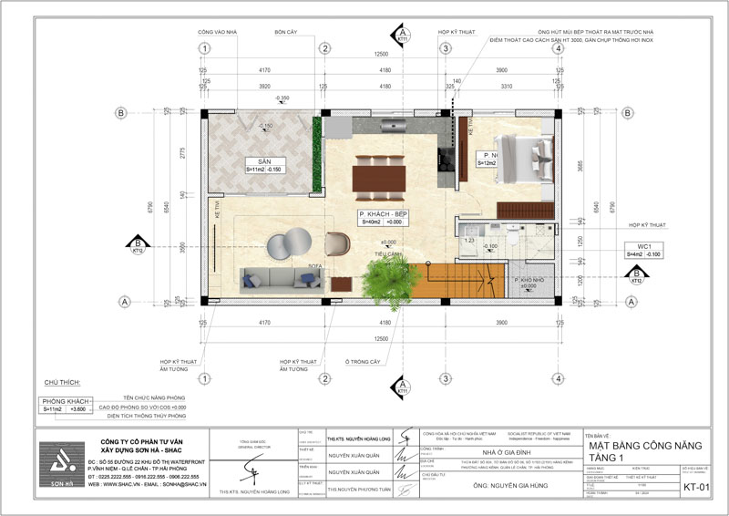
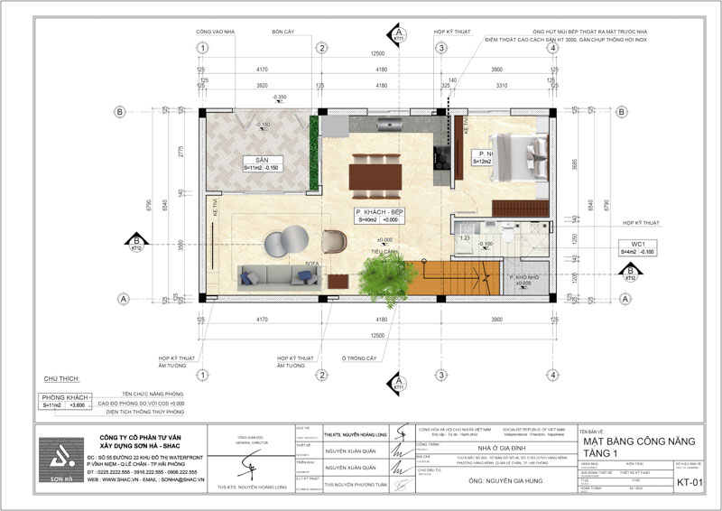
Do mặt ngõ đối diện chỉ rộng 2,19m nên các kiến trúc sư của chúng tôi đã khéo léo thiết kế một khoảng sân nhỏ 11m² phía trong nhà ống 2 tầng 1 tum này. Khoảng sân này không chỉ phục vụ làm nơi để xe cho gia đình và khách mà còn tạo ra không gian thoáng đãng, với sự hiện diện của hàng cây xanh mát ven tường.



Điểm đặc biệt trong thiết kế xây nhà trọn gói Hải Phòng lần này là giếng trời và tiểu cảnh được đặt đối diện bàn ăn, tạo nên một không gian sống động và gần gũi với thiên nhiên. Ánh sáng tự nhiên từ giếng trời mang lại nguồn sáng dồi dào, giúp không khí trong nhà trở nên thoáng đãng hơn.
Tiểu cảnh xanh mát không chỉ là yếu tố trang trí, mà còn góp phần tạo cảm giác thư thái, nâng cao trải nghiệm ẩm thực của gia đình. Sự kết hợp này mang đến một bầu không khí ấm cúng và hài hòa, giúp mỗi bữa ăn trở thành một khoảnh khắc đáng nhớ bên người thân.




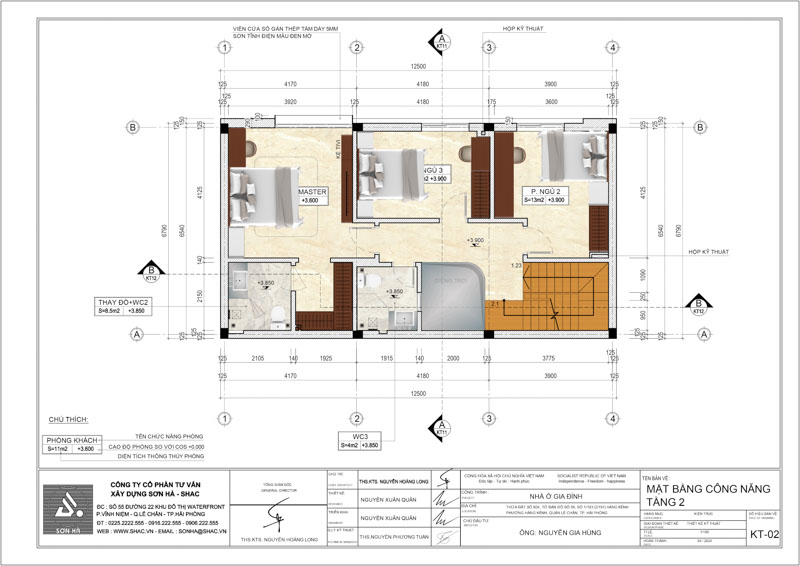
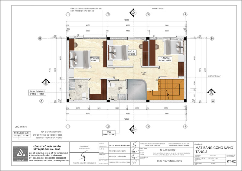
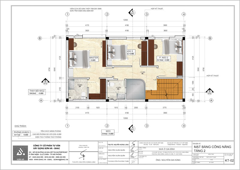
Tầng 2 của ngôi nhà được sử dụng cho nhu cầu nghỉ ngơi của các thành viên trong gia đình. Các phòng ngủ đều được bố trí cửa sổ, đảm bảo lưu thông không khí và lấy sáng cho căn phòng.




Từ phòng thờ, chúng ta có thể nhìn ra một sân thượng rộng 38m2 thoáng mát. Đây không chỉ là nơi lý tưởng để tổ chức những bữa tiệc BBQ cuối tuần mà còn là không gian thư giãn tuyệt vời cho cả gia đình. Sân thượng được bài trí với bộ bàn lớn và cây xanh, tạo ra một góc sống động cho những buổi tối sum vầy.
Gia chủ có thể thoải mái thưởng thức không khí trong lành, ngắm nhìn hoàng hôn buông xuống, hay đơn giản chỉ là tìm cho mình một chốn yên bình giữa nhịp sống hối hả của thành phố. Đây chính là nơi để kết nối và tạo dựng những kỷ niệm đáng nhớ bên những người thân yêu.

Đội ngũ thợ thi công và cá kỹ sư của chùng tôi đang ngày đêm tiến hành hoàn thiện tổ ấm cho gia đình ông Hùng theo đúng tiến độ công trình. Dưới đây là một số hình ảnh thực tế công trình được Sơn Hà lưu trữ lại như một kỷ niệm đẹp.
| HẠNG MỤC | ĐƠN GIÁ (VND/m2) | GHI CHÚ |
| Chi phí xây dựng phần thô | 3.000.000 – 4.000.000 | Đây chỉ là mức giá trung bình. Tùy theo yêu cầu xây dựng của gia chủ và công trình thực tế, mức giá sẽ có sự biến động nhất định. |
| Chi phí hoàn thiện | 7.000.000 – 8.000.000 | Đây chỉ là mức giá trung bình. Tùy theo yêu cầu xây dựng của gia chủ và công trình thực tế, mức giá sẽ có sự biến động nhất định. |
| STT | LOẠI HÌNH CÔNG TRÌNH | GÓI THIẾT KẾ | THỜI GIAN | |||
|---|---|---|---|---|---|---|
| THIẾT KẾ KIẾN TRÚC | THIẾT KẾ NỘI THẤT | |||||
| 1 | Nhà ống | Nhà ống hiện đại | 150.000đ/m2 | 150.000đ/m2 | 6.000.000 đ/phòng | – Kiến trúc = 35 ngày
– Nội thất = 45 ngày |
| 2 | Nhà ống tân cổ điển | 150000đ/m2 – 170.000đ/m2 | 150.000đ/m2 – 170.000đ/m2 | 7.000.000 đ/phòng | ||
| 3 | Nhà ống cổ điển | |||||

Nhà ống 2 tầng 1 tum là giải pháp lý tưởng cho các khu vực có diện tích hẹp, đặc biệt là trong các ngõ nhỏ. Với thiết kế tận dụng chiều cao, loại hình nhà này giúp khai thác tối đa diện tích đất mà vẫn đảm bảo sự thoáng đãng và thoải mái cho không gian sống.
Ở những khu vực như Hải Phòng, nhiều gia đình sống trong các khu dân cư đông đúc với ngõ nhỏ và hẹp. Việc xây dựng nhà ống 2 tầng 1 tum với quy mô vừa phải sẽ giúp giảm bớt tác động lên môi trường xung quanh, đồng thời phù hợp với các quy định về xây dựng tại các khu vực có ngõ nhỏ.
Nhà ống 2,5 tầng không chỉ phù hợp với diện tích đất nhỏ mà còn mang lại nhiều lựa chọn về thiết kế, phong cách. Từ những mẫu nhà hiện đại, tối giản cho đến những thiết kế sang trọng, cầu kỳ, gia chủ có thể lựa chọn tùy theo sở thích và nhu cầu của gia đình.
Việc xây dựng nhà trong ngõ hẹp đòi hỏi phải có sự tính toán cẩn thận để đảm bảo không gian sống không bị chật chội. Tại Sơn Hà Group, chúng tôi luôn chú trọng vào việc tạo ra những thiết kế thông minh với bố trí hợp lý.

Ví dụ, tận dụng ánh sáng tự nhiên và thông gió là hai yếu tố quan trọng giúp không gian trong nhà luôn thoáng đãng, tránh cảm giác bí bách thường thấy ở các ngôi nhà trong ngõ hẹp.


Vật liệu xây dựng đóng vai trò quan trọng trong việc cải thiện chất lượng không gian sống. Sơn Hà Group sử dụng các vật liệu nhẹ, cách âm và cách nhiệt tốt, giúp ngôi nhà không chỉ bền vững mà còn đảm bảo sự thoải mái cho gia chủ. Đặc biệt, các loại kính cường lực, cửa sổ lớn cũng được tích hợp vào thiết kế để tối đa hóa ánh sáng tự nhiên.

Với diện tích hạn chế, việc sử dụng các món đồ nội thất đa năng, thông minh sẽ giúp gia đình tận dụng tối đa không gian. Các giải pháp như giường tầng, tủ âm tường hay bàn gấp là những lựa chọn hoàn hảo cho nhà ống 2 tầng rưỡi, giúp căn nhà trở nên gọn gàng và tiện nghi hơn.

Với 21 năm kinh nghiệm trong lĩnh vực xây dựng, Sơn Hà Group cam kết mang đến cho khách hàng những công trình chất lượng cao. Chúng tôi không chỉ đảm bảo về mặt thẩm mỹ mà còn đảm bảo độ bền vững của công trình theo thời gian. Đội ngũ kiến trúc sư và kỹ sư của chúng tôi đều là những chuyên gia giàu kinh nghiệm, luôn cập nhật những xu hướng thiết kế mới nhất để mang lại sự hài lòng tối đa cho khách hàng.

Sơn Hà Group luôn hướng tới những thiết kế hiện đại, tinh tế và độc đáo. Nhà ống 2 tầng 1 tum được chúng tôi thiết kế không chỉ mang tính thẩm mỹ cao mà còn phù hợp với lối sống hiện đại, tiện nghi của gia đình trẻ. Các đường nét tối giản, gọn gàng, cùng với màu sắc trang nhã sẽ mang đến cho ngôi nhà của bạn vẻ đẹp sang trọng và thời thượng.

Một trong những ưu điểm lớn khi chọn giải pháp xây nhà ống 2 tầng 1 tum là chi phí xây dựng được tối ưu hơn so với những loại hình nhà ở khác. Sơn Hà Group không chỉ cung cấp dịch vụ xây nhà trọn gói với chi phí hợp lý, mà còn giúp khách hàng tiết kiệm nhờ vào các giải pháp thiết kế hiệu quả và sử dụng vật liệu phù hợp.
Chúng tôi hiểu rằng thời gian là yếu tố quan trọng đối với nhiều gia đình. Vì thế, Sơn Hà Group cam kết hoàn thành dự án theo đúng tiến độ đã đề ra. Quá trình thi công luôn được kiểm soát chặt chẽ, đảm bảo chất lượng và thời gian bàn giao nhà đúng hẹn, giúp gia đình nhanh chóng ổn định cuộc sống.
Khi khách hàng liên hệ với Sơn Hà Group, đội ngũ kiến trúc sư sẽ tiến hành khảo sát thực địa để hiểu rõ đặc điểm khu đất, từ đó đưa ra phương án thiết kế tối ưu nhất. Quá trình tư vấn sẽ dựa trên nhu cầu và mong muốn của khách hàng, kết hợp với kinh nghiệm của đội ngũ chuyên gia để đảm bảo ngôi nhà không chỉ đẹp mắt mà còn phù hợp với điều kiện thực tế.
Sau khi khảo sát, chúng tôi sẽ lên bản vẽ chi tiết cho ngôi nhà, bao gồm các phương án mặt bằng, thiết kế ngoại thất và nội thất. Đồng thời, chúng tôi cũng lập kế hoạch chi tiết về thời gian thi công và dự toán chi phí, giúp khách hàng nắm rõ từng bước trong quá trình xây dựng.
Trong suốt quá trình thi công, Sơn Hà Group luôn có đội ngũ giám sát chặt chẽ để đảm bảo chất lượng công trình. Mọi chi tiết từ việc chọn vật liệu đến quá trình xây dựng đều được kiểm tra cẩn thận, đảm bảo ngôi nhà hoàn thiện đúng theo thiết kế ban đầu.
Sau khi hoàn thiện, chúng tôi sẽ bàn giao ngôi nhà cho khách hàng và cam kết bảo hành công trình trong một thời gian nhất định. Bất kỳ vấn đề nào phát sinh sau khi bàn giao sẽ được Sơn Hà Group xử lý nhanh chóng và chuyên nghiệp.

Giải pháp xây nhà ống 2 tầng 1 tum hiện đại trong ngõ nhỏ không chỉ giúp tối ưu diện tích đất mà còn mang lại không gian sống tiện nghi, hiện đại cho các gia đình tại Hải Phòng. Với sự chuyên nghiệp, uy tín và kinh nghiệm, Sơn Hà Group là đối tác tin cậy để bạn hiện thực hóa ngôi nhà mơ ước của mình. Hãy liên hệ với chúng tôi để được tư vấn và nhận giải pháp xây dựng tối ưu nhất cho ngôi nhà của bạn!
Ảnh khác
Bình luận