Tại Việt Nam, loại hình thiết kế nhà ở được ưa chuộng nhất chính là nhà phố, hay còn gọi là nhà ống. Loại hình nhà ở này đem đến sự thuận tiện cho người ở, đồng thời cũng dễ dàng thiết kế, bố trí tiện nghi và công năng sử dụng. Trong đó, loại phong cách gắn liền với nhà ống ở Việt Nam chủ yếu phải kể đến phong cách tân cổ điển - kiểu phong cách mang đậm tính sang trọng, tinh tế và phong cách. Trong ngày hôm nay hãy cùng tìm hiểu phong cách thiết kế tân cổ điển 3 tầng 1 tum sang trọng tại Hải Phòng.
NỘI DUNG CHÍNH
Được biết đến với nhiều công trình nhà phố, đặc biệt là nhà phố tân cổ điển không chỉ trên địa bàn Hải Phòng mà toàn quốc, Sơn Hà Group chứng minh năng lực của mình trong lĩnh vực này. Cũng chính vì thế, chủ đầu tư trong công trình lần này đã tin tưởng giao phó trách nhiệm cho Sơn Hà Group với mong muốn tạo nên một ngôi nhà hoàn hảo cho bản thân mình cũng gia đình.

Sau nhiều sự lựa chọn khác nhau, cả chủ đầu tư và Sơn Hà Group đã đều thống nhất phong cách nội thất và ngoại thất chủ đạo là phong cách tân cổ điển, thể hiện sự sang trọng, đẳng cấp, tinh tế và trường tồn cùng năm tháng. Dưới đây hãy cùng chúng tôi tìm hiểu qua các hình ảnh và thông tin nhé!
Trong thiết kế phong cách tân cổ điên, hai yếu tố cần được đảm bảo chính là hệ phào chỉ và hệ cột trụ. Đây cũng là hai yếu tố chính tạo nên thành công và vẻ đẹp trứ danh của thiết kế tân cổ điển. Với công trình lần này, cả hai yếu tố đó đều được nhấn mạnh và mang đến sự hài hòa, tinh tế trong từng đường nét. Sự kết hợp của phào chỉ sang trọng cùng cột trụ mạnh mẽ tạo nên dấu ấn trong thiết kế nhà phố tân cổ điển 4 tầng 81m2 tại Hải Phòng.

Nói về ngôn ngữ thiết kế, công trình được xếp tầng với cùng một kiểu thiết kế tạo hiệu ứng thị giác mang lại cảm giác công trình thêm phần bề thế và hiên ngang hơn. Sự kết hợp của hệ cửa kính cùng thiết kế lan can kiểu Pháp làm nên nét lãng mạn, sang trọng và thu hút trong mặt tiền của công trình.
Màu sắc Sơn Hà Group lựa chọn trong không gian lần này là màu trắng kem để làm nổi bật các chi tiết trang trí, đồng thời chúng tôi sử dụng chất liệu bê tông xen kẽ cùng các chi tiết kim loại để tái hiện lại sự cổ điển trong phong cách nhưng vẫn đầy hiện đại và mang tính đa dụng cao. Đây chắc hẳn là một thiết kế mặt tiền được nhiều người yêu thích khi nhắc tới thiết kế nhà phố tân cổ điển.
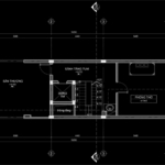
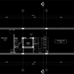
Công năng sử dụng cũng là một yếu tố cần thiết lưu tâm khi thiết kế và thi công nhà ở nói chung và nhà phố nói riêng. Làm sao để tối ưu không gian sống một cách hợp lý và tiện nghi là điều nhiều gia chủ đau đầu. Trong công trình ngày hôm nay, Sơn Hà Group mang đến phương án thông minh trong thiết kế nhà ở, đi cùng với đó là những không gian được tùy biên riêng biệt.
Chi tiết bạn đọc có thể xem tại các hình ảnh bản vẽ dưới đây:





Tương đồng với thiết kế ngoại thất, thiết kế nội thất của ngôi nhà sử dụng phong cách tân cổ điển với những điểm đặc biệt nổi bật từ phào chỉ, màu sắc, chất liệu, cách bài trí và không khí mà không gian mang lại. Từng không gian tuy có công năng sử dụng khác nhau nhưng cùng được sử dụng một bảng màu sắc, trải dài trên các thiết bị nội thất một cách hài hòa và thông minh.



Các chất liệu được sử dụng phổ biến là da thuộc, da lộn, gỗ laminate, vách thạch cao,... với đa dạng chất liệu xen kẽ cùng màu sắc và kiểu dáng sáng tạo, Sơn Hà Group hi vọng đã mang đến những gợi ý thông minh cho các chủ đầu tư đang tìm kiếm một không gian tương tự trong cách thiết kế và trình bày nội thất. Cảm ơn vì đã theo dõi bài viết, hẹn gặp lại tại các bài viết tiếp theo trên trang chủ Sơn Hà Group!
Ảnh khác
Bình luận