Ngày đăng 03/19/2025
Ngày cập nhật 02/04/2026
Đánh giá post

Sơn Hà Group, với hơn 20 năm kinh nghiệm trong lĩnh vực thiết kế - thi công nội thất, tự hào mang đến những giải pháp thiết kế nội thất căn hộ Sky Villa đẳng cấp, sáng tạo và tối ưu công năng, giúp chủ nhân căn hộ tận hưởng cuộc sống trọn vẹn từng khoảnh khắc.

1. Sky Villa – Tuyệt tác kiến trúc biệt thự trên không

Thiết kế nội thất căn hộ Sky Villa Diamond Crown Hải Phòng
Thiết kế nội thất căn hộ Sky Villa Diamond Crown Hải Phòng

Sky Villa - cái tên thể hiện sự xa hoa, đẳng cấp, là loại hình căn hộ cao cấp bậc nhất trong các dự án chung cư hiện đại. Được mệnh danh là biệt thự trên không, Sky Villa không chỉ sở hữu không gian rộng lớn mà còn tích hợp những tiện ích hiện đại, mang đến trải nghiệm sống đỉnh cao dành riêng cho giới thượng lưu.

Khác với các căn hộ thông thường, Sky Villa là loại hình căn hộ hạng sang có diện tích rộng lớn, thường lên đến vài trăm mét vuông, được xây dựng theo tiêu chuẩn của những căn biệt thự cao cấp.

Điểm đặc biệt của thiết kế nội thất căn hộ Sky Villa chính là:

  • Thiết kế 3 tầng thông minh, tối ưu hóa không gian sống.
  • Không gian mở, không có ban công, thay vào đó là hệ kính cường lực cao cấp bao quanh, giúp tận dụng tối đa tầm nhìn rộng lớn.
  • Hệ thống tiện ích đẳng cấp ngay trong căn hộ, biến Sky Villa thành một “khu nghỉ dưỡng thu nhỏ” giữa lòng thành phố.

Sky Villa tại Diamond Crown Hải Phòng không chỉ đơn thuần là một không gian sống, mà còn là biểu tượng của sự xa hoa, phong cách và đẳng cấp dành cho những chủ nhân thành đạt.

2. Thông tin công trình

Thiết kế nội thất căn hộ Sky Villa Diamond Crown Hải Phòng - Đẳng cấp biệt thự trên không 1
Thiết kế nội thất căn hộ Sky Villa Diamond Crown Hải Phòng - Đẳng cấp biệt thự trên không 2
Thiết kế nội thất căn hộ Sky Villa Diamond Crown Hải Phòng - Đẳng cấp biệt thự trên không 3
Thiết kế nội thất căn hộ Sky Villa Diamond Crown Hải Phòng - Đẳng cấp biệt thự trên không 4
Thiết kế nội thất căn hộ Sky Villa Diamond Crown Hải Phòng - Đẳng cấp biệt thự trên không 5
Thiết kế nội thất căn hộ Sky Villa Diamond Crown Hải Phòng - Đẳng cấp biệt thự trên không 6
Thiết kế nội thất căn hộ Sky Villa Diamond Crown Hải Phòng - Đẳng cấp biệt thự trên không 7
Thiết kế nội thất căn hộ Sky Villa Diamond Crown Hải Phòng - Đẳng cấp biệt thự trên không 8
Thiết kế nội thất căn hộ Sky Villa Diamond Crown Hải Phòng - Đẳng cấp biệt thự trên không 9
Thiết kế nội thất căn hộ Sky Villa Diamond Crown Hải Phòng - Đẳng cấp biệt thự trên không 10
Thiết kế nội thất căn hộ Sky Villa Diamond Crown Hải Phòng - Đẳng cấp biệt thự trên không 11
Thiết kế nội thất căn hộ Sky Villa Diamond Crown Hải Phòng - Đẳng cấp biệt thự trên không 12
Thiết kế nội thất căn hộ Sky Villa Diamond Crown Hải Phòng - Đẳng cấp biệt thự trên không 13
Thiết kế nội thất căn hộ Sky Villa Diamond Crown Hải Phòng - Đẳng cấp biệt thự trên không 14
Thiết kế nội thất căn hộ Sky Villa Diamond Crown Hải Phòng - Đẳng cấp biệt thự trên không 15
Thiết kế nội thất căn hộ Sky Villa Diamond Crown Hải Phòng - Đẳng cấp biệt thự trên không 16
Thiết kế nội thất căn hộ Sky Villa Diamond Crown Hải Phòng - Đẳng cấp biệt thự trên không 17
Thiết kế nội thất căn hộ Sky Villa Diamond Crown Hải Phòng - Đẳng cấp biệt thự trên không 18
Thiết kế nội thất căn hộ Sky Villa Diamond Crown Hải Phòng - Đẳng cấp biệt thự trên không 19
Thiết kế nội thất căn hộ Sky Villa Diamond Crown Hải Phòng - Đẳng cấp biệt thự trên không 20
Thiết kế nội thất căn hộ Sky Villa Diamond Crown Hải Phòng - Đẳng cấp biệt thự trên không 21
Thiết kế nội thất căn hộ Sky Villa Diamond Crown Hải Phòng - Đẳng cấp biệt thự trên không 22
Thiết kế nội thất căn hộ Sky Villa Diamond Crown Hải Phòng - Đẳng cấp biệt thự trên không 23
Thiết kế nội thất căn hộ Sky Villa Diamond Crown Hải Phòng - Đẳng cấp biệt thự trên không 24
Thiết kế nội thất căn hộ Sky Villa Diamond Crown Hải Phòng - Đẳng cấp biệt thự trên không 25
Thiết kế nội thất căn hộ Sky Villa Diamond Crown Hải Phòng - Đẳng cấp biệt thự trên không 26
Thiết kế nội thất căn hộ Sky Villa Diamond Crown Hải Phòng - Đẳng cấp biệt thự trên không 27
Thiết kế nội thất căn hộ Sky Villa Diamond Crown Hải Phòng - Đẳng cấp biệt thự trên không 28
Thiết kế nội thất căn hộ Sky Villa Diamond Crown Hải Phòng - Đẳng cấp biệt thự trên không 29
Thiết kế nội thất căn hộ Sky Villa Diamond Crown Hải Phòng - Đẳng cấp biệt thự trên không 30
Thiết kế nội thất căn hộ Sky Villa Diamond Crown Hải Phòng - Đẳng cấp biệt thự trên không 31
Thiết kế nội thất căn hộ Sky Villa Diamond Crown Hải Phòng - Đẳng cấp biệt thự trên không 32
Thiết kế nội thất căn hộ Sky Villa Diamond Crown Hải Phòng - Đẳng cấp biệt thự trên không 33
Thiết kế nội thất căn hộ Sky Villa Diamond Crown Hải Phòng - Đẳng cấp biệt thự trên không 34
Thiết kế nội thất căn hộ Sky Villa Diamond Crown Hải Phòng - Đẳng cấp biệt thự trên không 35
Thiết kế nội thất căn hộ Sky Villa Diamond Crown Hải Phòng - Đẳng cấp biệt thự trên không 36
Thiết kế nội thất căn hộ Sky Villa Diamond Crown Hải Phòng - Đẳng cấp biệt thự trên không 37
Thiết kế nội thất căn hộ Sky Villa Diamond Crown Hải Phòng - Đẳng cấp biệt thự trên không 38
Thiết kế nội thất căn hộ Sky Villa Diamond Crown Hải Phòng - Đẳng cấp biệt thự trên không 39
Thiết kế nội thất căn hộ Sky Villa Diamond Crown Hải Phòng - Đẳng cấp biệt thự trên không 40
Thiết kế nội thất căn hộ Sky Villa Diamond Crown Hải Phòng - Đẳng cấp biệt thự trên không 41
Thiết kế nội thất căn hộ Sky Villa Diamond Crown Hải Phòng - Đẳng cấp biệt thự trên không 42
Thiết kế nội thất căn hộ Sky Villa Diamond Crown Hải Phòng - Đẳng cấp biệt thự trên không 43
Thiết kế nội thất căn hộ Sky Villa Diamond Crown Hải Phòng - Đẳng cấp biệt thự trên không 44
Thiết kế nội thất căn hộ Sky Villa Diamond Crown Hải Phòng - Đẳng cấp biệt thự trên không 45
Thiết kế nội thất căn hộ Sky Villa Diamond Crown Hải Phòng - Đẳng cấp biệt thự trên không 46
Thiết kế nội thất căn hộ Sky Villa Diamond Crown Hải Phòng - Đẳng cấp biệt thự trên không 47
Thiết kế nội thất căn hộ Sky Villa Diamond Crown Hải Phòng - Đẳng cấp biệt thự trên không 48
Thiết kế nội thất căn hộ Sky Villa Diamond Crown Hải Phòng - Đẳng cấp biệt thự trên không 49
Thiết kế nội thất căn hộ Sky Villa Diamond Crown Hải Phòng - Đẳng cấp biệt thự trên không 50
Thiết kế nội thất căn hộ Sky Villa Diamond Crown Hải Phòng - Đẳng cấp biệt thự trên không 51
Thiết kế nội thất căn hộ Sky Villa Diamond Crown Hải Phòng - Đẳng cấp biệt thự trên không 52
Thiết kế nội thất căn hộ Sky Villa Diamond Crown Hải Phòng - Đẳng cấp biệt thự trên không 53
Thiết kế nội thất căn hộ Sky Villa Diamond Crown Hải Phòng - Đẳng cấp biệt thự trên không 54
Thiết kế nội thất căn hộ Sky Villa Diamond Crown Hải Phòng - Đẳng cấp biệt thự trên không 55
Thiết kế nội thất căn hộ Sky Villa Diamond Crown Hải Phòng - Đẳng cấp biệt thự trên không 56
Thiết kế nội thất căn hộ Sky Villa Diamond Crown Hải Phòng - Đẳng cấp biệt thự trên không 57
Thiết kế nội thất căn hộ Sky Villa Diamond Crown Hải Phòng - Đẳng cấp biệt thự trên không 58
Thiết kế nội thất căn hộ Sky Villa Diamond Crown Hải Phòng - Đẳng cấp biệt thự trên không 59
Thiết kế nội thất căn hộ Sky Villa Diamond Crown Hải Phòng - Đẳng cấp biệt thự trên không 60
Thiết kế nội thất căn hộ Sky Villa Diamond Crown Hải Phòng - Đẳng cấp biệt thự trên không 61
Thiết kế nội thất căn hộ Sky Villa Diamond Crown Hải Phòng - Đẳng cấp biệt thự trên không 62
Thiết kế nội thất căn hộ Sky Villa Diamond Crown Hải Phòng - Đẳng cấp biệt thự trên không 63
Thiết kế nội thất căn hộ Sky Villa Diamond Crown Hải Phòng - Đẳng cấp biệt thự trên không 64
Thiết kế nội thất căn hộ Sky Villa Diamond Crown Hải Phòng - Đẳng cấp biệt thự trên không 65
Thiết kế nội thất căn hộ Sky Villa Diamond Crown Hải Phòng - Đẳng cấp biệt thự trên không 66
Thiết kế nội thất căn hộ Sky Villa Diamond Crown Hải Phòng - Đẳng cấp biệt thự trên không 67
Thiết kế nội thất căn hộ Sky Villa Diamond Crown Hải Phòng - Đẳng cấp biệt thự trên không 68
Thiết kế nội thất căn hộ Sky Villa Diamond Crown Hải Phòng - Đẳng cấp biệt thự trên không 69
Thiết kế nội thất căn hộ Sky Villa Diamond Crown Hải Phòng - Đẳng cấp biệt thự trên không 70
Thiết kế nội thất căn hộ Sky Villa Diamond Crown Hải Phòng - Đẳng cấp biệt thự trên không 71
Thiết kế nội thất căn hộ Sky Villa Diamond Crown Hải Phòng - Đẳng cấp biệt thự trên không 72
Thiết kế nội thất căn hộ Sky Villa Diamond Crown Hải Phòng - Đẳng cấp biệt thự trên không 73
Thiết kế nội thất căn hộ Sky Villa Diamond Crown Hải Phòng - Đẳng cấp biệt thự trên không 74
Thiết kế nội thất căn hộ Sky Villa Diamond Crown Hải Phòng - Đẳng cấp biệt thự trên không 75
Thiết kế nội thất căn hộ Sky Villa Diamond Crown Hải Phòng - Đẳng cấp biệt thự trên không 76
Thiết kế nội thất căn hộ Sky Villa Diamond Crown Hải Phòng - Đẳng cấp biệt thự trên không 77
Thiết kế nội thất căn hộ Sky Villa Diamond Crown Hải Phòng - Đẳng cấp biệt thự trên không 78
Thiết kế nội thất căn hộ Sky Villa Diamond Crown Hải Phòng - Đẳng cấp biệt thự trên không 79
Thiết kế nội thất căn hộ Sky Villa Diamond Crown Hải Phòng - Đẳng cấp biệt thự trên không 80
Thiết kế nội thất căn hộ Sky Villa Diamond Crown Hải Phòng - Đẳng cấp biệt thự trên không 81
Thiết kế nội thất căn hộ Sky Villa Diamond Crown Hải Phòng - Đẳng cấp biệt thự trên không 82
Thiết kế nội thất căn hộ Sky Villa Diamond Crown Hải Phòng - Đẳng cấp biệt thự trên không 83
Thiết kế nội thất căn hộ Sky Villa Diamond Crown Hải Phòng - Đẳng cấp biệt thự trên không 84
Thiết kế nội thất căn hộ Sky Villa Diamond Crown Hải Phòng - Đẳng cấp biệt thự trên không 85
Thiết kế nội thất căn hộ Sky Villa Diamond Crown Hải Phòng - Đẳng cấp biệt thự trên không 86
Thiết kế nội thất căn hộ Sky Villa Diamond Crown Hải Phòng - Đẳng cấp biệt thự trên không 87
Thiết kế nội thất căn hộ Sky Villa Diamond Crown Hải Phòng - Đẳng cấp biệt thự trên không 88
Thiết kế nội thất căn hộ Sky Villa Diamond Crown Hải Phòng - Đẳng cấp biệt thự trên không 89
Thiết kế nội thất căn hộ Sky Villa Diamond Crown Hải Phòng - Đẳng cấp biệt thự trên không 90
Thiết kế nội thất căn hộ Sky Villa Diamond Crown Hải Phòng - Đẳng cấp biệt thự trên không 91
Thiết kế nội thất căn hộ Sky Villa Diamond Crown Hải Phòng - Đẳng cấp biệt thự trên không 92
Thiết kế nội thất căn hộ Sky Villa Diamond Crown Hải Phòng - Đẳng cấp biệt thự trên không 93
Thiết kế nội thất căn hộ Sky Villa Diamond Crown Hải Phòng - Đẳng cấp biệt thự trên không 94
Thiết kế nội thất căn hộ Sky Villa Diamond Crown Hải Phòng - Đẳng cấp biệt thự trên không 95
Thiết kế nội thất căn hộ Sky Villa Diamond Crown Hải Phòng - Đẳng cấp biệt thự trên không 96
Thiết kế nội thất căn hộ Sky Villa Diamond Crown Hải Phòng - Đẳng cấp biệt thự trên không 97
Thiết kế nội thất căn hộ Sky Villa Diamond Crown Hải Phòng - Đẳng cấp biệt thự trên không 98
Thiết kế nội thất căn hộ Sky Villa Diamond Crown Hải Phòng - Đẳng cấp biệt thự trên không 99
Thiết kế nội thất căn hộ Sky Villa Diamond Crown Hải Phòng - Đẳng cấp biệt thự trên không 100
Thiết kế nội thất căn hộ Sky Villa Diamond Crown Hải Phòng - Đẳng cấp biệt thự trên không 101
Thiết kế nội thất căn hộ Sky Villa Diamond Crown Hải Phòng - Đẳng cấp biệt thự trên không 102
Thiết kế nội thất căn hộ Sky Villa Diamond Crown Hải Phòng - Đẳng cấp biệt thự trên không 103
Thiết kế nội thất căn hộ Sky Villa Diamond Crown Hải Phòng - Đẳng cấp biệt thự trên không 104
[su_thong_tin_chu_dau_tu chu_dau_tu="Bà Nguyễn Hồng Thanh" dia_chi="Hải Phòng" tinh_thanh="Thành phố" ten_tinh_thanh="Hải Phòng" link_tinh_thanh="https://shac.vn/tag/hai-phong" loai_hinh="nội thất" link_loai_hinh="https://shac.vn/thiet-ke-thi-cong-noi-that" so_tang="3 tầng" link_so_tang="https://shac.vn/tag/3-tang" cong_nang='' nam_thuc_hien="2024"]

Tầng 1: Phòng khách, Phòng bếp, Phòng ăn, 01 Phòng ngủ master, Khu thay đồ, WC

Thiết kế nội thất căn hộ Sky Villa Diamond Crown Hải Phòng - Mặt bằng tầng 1
Thiết kế nội thất căn hộ Sky Villa Diamond Crown Hải Phòng - Mặt bằng tầng 1

Tầng 2: 03 phòng ngủ

Thiết kế nội thất căn hộ Sky Villa Diamond Crown Hải Phòng - Mặt bằng tầng 2
Thiết kế nội thất căn hộ Sky Villa Diamond Crown Hải Phòng - Mặt bằng tầng 2

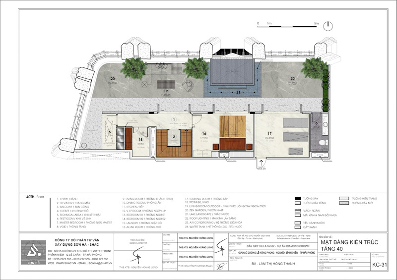
Tầng 3: Phòng thờ, Phòng tập gym, Kho, Phòng giặt, Khu vực uống trà ngoài trời, vườn Nhật, thác nước

Thiết kế nội thất căn hộ Sky Villa Diamond Crown Hải Phòng - Mặt bằng tầng 3
Thiết kế nội thất căn hộ Sky Villa Diamond Crown Hải Phòng - Mặt bằng tầng 3

3. Thiết kế nội thất căn hộ Sky Villa Diamond Crown Hải Phòng – Đẳng cấp và tiện nghi

3.1. Phòng khách – Bếp: Không gian kết nối sang trọng

Phòng khách rộng ôm trọn view toàn cảnh thành phố trên cao
Phòng khách rộng ôm trọn view toàn cảnh thành phố trên cao

Không gian phòng khách bếp và phòng ăn trong Sky Villa nhà chị Thanh được thiết kế theo phong cách hiện đại, tối giản nhưng không kém phần tinh tế. Điểm nhấn đặc biệt là khoảng thông tầng lớn, tạo cảm giác thoáng đãng và giúp không gian luôn ngập tràn ánh sáng tự nhiên.

Khoảng thông tầng lớn là điểm nhất đặc biệt mà các KTS Sơn Hà Group gửi gắm trong thiết kế căn hộ này
Khoảng thông tầng lớn là điểm nhất đặc biệt mà các KTS Sơn Hà Group gửi gắm trong thiết kế căn hộ này
  • Phòng khách rộng lớn, sử dụng nội thất cao cấp như sofa da, bàn đá marble và hệ thống đèn chùm pha lê tinh xảo.
  • Bếp hiện đại, trang bị các thiết bị nhập khẩu cao cấp, với đảo bếp lớn sang trọng giúp tăng tính tiện nghi khi sử dụng.

Thiết kế nội thất căn hộ Sky Villa Diamond Crown Hải Phòng – Đẳng cấp biệt thự trên không

  • Kết nối liền mạch với phòng ăn, tạo không gian mở, thích hợp cho các buổi tiệc gia đình hay tiếp đón khách quý.

3.2. Hệ thống phòng ngủ - Chốn nghỉ dưỡng riêng tư

Sky Villa tại Diamond Crown Hải Phòng được thiết kế với 4 phòng ngủ mang phong cách hiện đại hài hòa với tổng thể.

3.2.1 Phòng ngủ master

Phòng ngủ master với giường full size
Phòng ngủ master với giường full size

Sử dụng tông màu trung tính sang trọng, kết hợp với hệ thống đèn LED ấm áp, nội thất gỗ công nghiệp

Phòng ngủ master với cửa sổ lớn toàn cảnh

Điểm nhấn đặc biệt trong thiết kế lần này của Sơn Hà Group chính là không gian thay đồ được bố trí thông minh, tối ưu công năng nhưng vẫn toát lên vẻ sang trọng.

Khu thay đồ và bàn trang điểm mê đắm lòng người
Khu thay đồ và bàn trang điểm mê đắm lòng người
  • Hệ tủ kệ chia ngăn khoa học, giúp sắp xếp trang phục và phụ kiện gọn gàng, tiện lợi.
  • Bàn trang điểm tinh tế, tích hợp tủ để phụ kiện âm bàn với mặt kính LED cao cấp, tạo hiệu ứng ánh sáng sang trọng và hiện đại.

Bàn trang điểm tinh tế

  • Khu vực trưng bày phụ kiện, túi xách, giày dép được nhấn nhá bởi vách đá marble cao cấp, kết hợp cùng hệ đèn LED ẩn, mang đến sự đẳng cấp cho không gian.

Khu vực trưng bày phụ kiện

Mỗi chi tiết đều được thiết kế tỉ mỉ, đảm bảo tính thẩm mỹ và sự tiện nghi tối đa, giúp gia chủ tận hưởng trọn vẹn đẳng cấp sống thượng lưu trong căn hộ Sky Villa Diamond Crown Hải Phòng.

Khu vực học tập và làm việc trong phòng ngủ master
Khu vực học tập và làm việc trong phòng ngủ master

3.2.2 Phòng ngủ phụ

Tùy theo nhu cầu của gia chủ, các phòng ngủ phụ có thể được thiết kế theo phong cách hiện đại tối giản.

Phòng ngủ con trai gia chủ
Phòng ngủ con trai gia chủ
  • Tích hợp phòng thay đồ riêng với hệ tủ âm tường sang trọng, giúp không gian gọn gàng và tối ưu công năng.
Khu vực thay đồ với hệ tủ quần áo full trần tăng tối đa diện tích lưu trữ
Khu vực thay đồ với hệ tủ quần áo full trần tăng tối đa diện tích lưu trữ
  • Căn phòng ngủ mang phong cách hiện đại với tông màu trung tính nhẹ nhàng, tạo cảm giác thanh lịch và ấm áp. Giường ngủ bọc nệm màu be kết hợp cùng ga trải giường và gối tựa đồng điệu, mang lại sự thư thái tối đa.
Phòng ngủ con gái của gia chủ
Phòng ngủ con gái của gia chủ
  • Bức tường đầu giường được thiết kế với các đường phào chỉ tinh tế, tạo điểm nhấn sang trọng. Bên cạnh giường là 2 tab nhỏ gọn tiện dụng.
  • Hệ tủ quần áo cao kịch trần được thiết kế với nhiều ngăn chứa khoa học, kết hợp với các kệ mở ở giữa để trưng bày sách, đồ trang trí. Đặc biệt, một phần tủ được nhấn nhá bằng gam màu xanh đậm, tạo sự tương phản đầy cá tính trong không gian.
Tủ kệ âm tường trong phòng ngủ con trai
Tủ kệ âm tường trong phòng ngủ con trai
  • Cửa sổ lớn với rèm hai lớp giúp tận dụng tối đa ánh sáng tự nhiên, mang đến sự thoáng đãng và tầm nhìn mở rộng ra thành phố. Không gian này là sự kết hợp hoàn hảo giữa công năng và thẩm mỹ, mang lại trải nghiệm sống đẳng cấp.

Thiết kế nội thất căn hộ Sky Villa Diamond Crown Hải Phòng - Đẳng cấp biệt thự trên không 105

2.3. Phòng tắm - Không gian thư giãn chuẩn resort

Không gian phòng tắm trong Sky Villa được thiết kế như một spa thu nhỏ, giúp chủ nhân tận hưởng những giây phút thư giãn ngay tại nhà.

Bồn tắm trong phòng ngủ master
Bồn tắm trong phòng ngủ master
  • Bồn tắm hiện đại những phút giây thư giãn sau 1 ngày dài mệt mỏi
  • Phòng tắm kính cường lực, vòi sen thông minh và hệ thống điều chỉnh nhiệt độ hiện đại.
  • Gạch ốp cao cấp chống trơn, đảm bảo an toàn nhưng vẫn giữ được sự sang trọng.

2.4. Sân vườn trên cao Zen Garden, tiểu cảnh và đài phun nước

Sân vườn trên cao Zen Garden
Sân vườn trên cao Zen Garden

Điểm đặc biệt trong thiết kế nội thất căn hộ Sky Villa của Sơn Hà Group chính là khu sân vườn trên cao. Đây không chỉ là không gian xanh giúp cân bằng cuộc sống, mà còn tạo điểm nhấn độc đáo cho căn hộ.

  • Vườn trên cao phong cách Nhật Bản - Zen Garden cuốn hút lòng người với vẻ đẹp tĩnh lặng, thanh tao giữa chốn đô thị cao tầng phồn hoa. Sự kết hợp hài hòa giữa cây xanh, hoa cỏ và ghế thư giãn không chỉ tạo nên một không gian gần gũi với thiên nhiên, mà còn mang đến trải nghiệm nghỉ dưỡng đẳng cấp, an yên giữa tầng không.

Vườn trên cao phong cách Nhật Bản

  • Đài phun nước mini, kết hợp với hệ thống tiểu cảnh giúp không gian luôn trong lành, mát mẻ.
Đài phun nước mini phong cách hiện đại
Đài phun nước mini phong cách hiện đại
  • Khu vực BBQ, nơi lý tưởng để tổ chức những bữa tiệc nhỏ cùng gia đình và bạn bè.
Thiết kế nội thất căn hộ Sky Villa với vườn trên cao có khu BBQ
Thiết kế nội thất căn hộ Sky Villa với vườn trên cao có khu BBQ

2.5. Phòng gym - Phòng thờ - Phòng giặt

Không cần phải di chuyển đến các trung tâm thể thao hay phòng gym bên ngoài, khi thiết kế nội thất căn hộ Sky Villa, chúng tôi đã tích hợp đầy đủ các tiện ích ngay trong không gian sống.

  • Phòng gym hiện đại, với đầy đủ thiết bị tập luyện giúp gia chủ có thể duy trì thói quen rèn luyện sức khỏe.
Phòng gym hiện đại
Phòng gym hiện đại
  • Phòng thờ trang nghiêm, thiết kế tinh tế, đảm bảo sự thanh tịnh và trang trọng.
Sơn Hà Group - Đơn vị chuyên thiết kế nội thất căn hộ Sky Villa đẳng cấp
Sơn Hà Group - Đơn vị chuyên thiết kế nội thất căn hộ Sky Villa đẳng cấp
  • Phòng giặt riêng biệt, giúp tối ưu hóa không gian sử dụng.
Phòng giặt riêng biệt trang bị hiện đại
Phòng giặt riêng biệt trang bị hiện đại

3. Thực tế quá trình thi công nội thất tại Doji Sky Villa

Tính đến thời điểm hiện tại, căn nhà đang bước vào giai đoạn hoàn thiện, đảm bảo tiến độ bàn giao trước Tết 2026 để gia chủ kịp đón một mùa Tết trọn vẹn trong không gian sống mới. Dưới đây là những hình ảnh thực tế ghi lại một số giai đoạn của quá trình thi công và lắp đặt nội thất tại căn hộ Sky Villa, kính mời anh/chị cùng theo dõi.

Thiết kế nội thất căn hộ Sky Villa Diamond Crown Hải Phòng - Đẳng cấp biệt thự trên không 106
Thiết kế nội thất căn hộ Sky Villa Diamond Crown Hải Phòng - Đẳng cấp biệt thự trên không 107
Thiết kế nội thất căn hộ Sky Villa Diamond Crown Hải Phòng - Đẳng cấp biệt thự trên không 108
Thiết kế nội thất căn hộ Sky Villa Diamond Crown Hải Phòng - Đẳng cấp biệt thự trên không 109
Thiết kế nội thất căn hộ Sky Villa Diamond Crown Hải Phòng - Đẳng cấp biệt thự trên không 110
Thiết kế nội thất căn hộ Sky Villa Diamond Crown Hải Phòng - Đẳng cấp biệt thự trên không 111
Thiết kế nội thất căn hộ Sky Villa Diamond Crown Hải Phòng - Đẳng cấp biệt thự trên không 112
Thiết kế nội thất căn hộ Sky Villa Diamond Crown Hải Phòng - Đẳng cấp biệt thự trên không 113
Thiết kế nội thất căn hộ Sky Villa Diamond Crown Hải Phòng - Đẳng cấp biệt thự trên không 114
Thiết kế nội thất căn hộ Sky Villa Diamond Crown Hải Phòng - Đẳng cấp biệt thự trên không 115
Thiết kế nội thất căn hộ Sky Villa Diamond Crown Hải Phòng - Đẳng cấp biệt thự trên không 116
Thiết kế nội thất căn hộ Sky Villa Diamond Crown Hải Phòng - Đẳng cấp biệt thự trên không 117
Thiết kế nội thất căn hộ Sky Villa Diamond Crown Hải Phòng - Đẳng cấp biệt thự trên không 118
Thiết kế nội thất căn hộ Sky Villa Diamond Crown Hải Phòng - Đẳng cấp biệt thự trên không 119
Thiết kế nội thất căn hộ Sky Villa Diamond Crown Hải Phòng - Đẳng cấp biệt thự trên không 120
Thiết kế nội thất căn hộ Sky Villa Diamond Crown Hải Phòng - Đẳng cấp biệt thự trên không 121
Thiết kế nội thất căn hộ Sky Villa Diamond Crown Hải Phòng - Đẳng cấp biệt thự trên không 122
Thiết kế nội thất căn hộ Sky Villa Diamond Crown Hải Phòng - Đẳng cấp biệt thự trên không 123
Thiết kế nội thất căn hộ Sky Villa Diamond Crown Hải Phòng - Đẳng cấp biệt thự trên không 124
Thiết kế nội thất căn hộ Sky Villa Diamond Crown Hải Phòng - Đẳng cấp biệt thự trên không 125
Thiết kế nội thất căn hộ Sky Villa Diamond Crown Hải Phòng - Đẳng cấp biệt thự trên không 126
Thiết kế nội thất căn hộ Sky Villa Diamond Crown Hải Phòng - Đẳng cấp biệt thự trên không 127
Thiết kế nội thất căn hộ Sky Villa Diamond Crown Hải Phòng - Đẳng cấp biệt thự trên không 128
Thiết kế nội thất căn hộ Sky Villa Diamond Crown Hải Phòng - Đẳng cấp biệt thự trên không 129
Thiết kế nội thất căn hộ Sky Villa Diamond Crown Hải Phòng - Đẳng cấp biệt thự trên không 130
Thiết kế nội thất căn hộ Sky Villa Diamond Crown Hải Phòng - Đẳng cấp biệt thự trên không 131
Thiết kế nội thất căn hộ Sky Villa Diamond Crown Hải Phòng - Đẳng cấp biệt thự trên không 132
Thiết kế nội thất căn hộ Sky Villa Diamond Crown Hải Phòng - Đẳng cấp biệt thự trên không 133
Thiết kế nội thất căn hộ Sky Villa Diamond Crown Hải Phòng - Đẳng cấp biệt thự trên không 134
Thiết kế nội thất căn hộ Sky Villa Diamond Crown Hải Phòng - Đẳng cấp biệt thự trên không 135
Thiết kế nội thất căn hộ Sky Villa Diamond Crown Hải Phòng - Đẳng cấp biệt thự trên không 136
Thiết kế nội thất căn hộ Sky Villa Diamond Crown Hải Phòng - Đẳng cấp biệt thự trên không 137
Thiết kế nội thất căn hộ Sky Villa Diamond Crown Hải Phòng - Đẳng cấp biệt thự trên không 138
Thiết kế nội thất căn hộ Sky Villa Diamond Crown Hải Phòng - Đẳng cấp biệt thự trên không 139
Thiết kế nội thất căn hộ Sky Villa Diamond Crown Hải Phòng - Đẳng cấp biệt thự trên không 140
Thiết kế nội thất căn hộ Sky Villa Diamond Crown Hải Phòng - Đẳng cấp biệt thự trên không 141
Thiết kế nội thất căn hộ Sky Villa Diamond Crown Hải Phòng - Đẳng cấp biệt thự trên không 142
Thiết kế nội thất căn hộ Sky Villa Diamond Crown Hải Phòng - Đẳng cấp biệt thự trên không 143
Thiết kế nội thất căn hộ Sky Villa Diamond Crown Hải Phòng - Đẳng cấp biệt thự trên không 144
Thiết kế nội thất căn hộ Sky Villa Diamond Crown Hải Phòng - Đẳng cấp biệt thự trên không 145
Thiết kế nội thất căn hộ Sky Villa Diamond Crown Hải Phòng - Đẳng cấp biệt thự trên không 146
Thiết kế nội thất căn hộ Sky Villa Diamond Crown Hải Phòng - Đẳng cấp biệt thự trên không 147
Thiết kế nội thất căn hộ Sky Villa Diamond Crown Hải Phòng - Đẳng cấp biệt thự trên không 148
Thiết kế nội thất căn hộ Sky Villa Diamond Crown Hải Phòng - Đẳng cấp biệt thự trên không 149
Thiết kế nội thất căn hộ Sky Villa Diamond Crown Hải Phòng - Đẳng cấp biệt thự trên không 150
Thiết kế nội thất căn hộ Sky Villa Diamond Crown Hải Phòng - Đẳng cấp biệt thự trên không 151
Thiết kế nội thất căn hộ Sky Villa Diamond Crown Hải Phòng - Đẳng cấp biệt thự trên không 152
Thiết kế nội thất căn hộ Sky Villa Diamond Crown Hải Phòng - Đẳng cấp biệt thự trên không 153
Thiết kế nội thất căn hộ Sky Villa Diamond Crown Hải Phòng - Đẳng cấp biệt thự trên không 154
Thiết kế nội thất căn hộ Sky Villa Diamond Crown Hải Phòng - Đẳng cấp biệt thự trên không 155
Thiết kế nội thất căn hộ Sky Villa Diamond Crown Hải Phòng - Đẳng cấp biệt thự trên không 156
Thiết kế nội thất căn hộ Sky Villa Diamond Crown Hải Phòng - Đẳng cấp biệt thự trên không 157
Thiết kế nội thất căn hộ Sky Villa Diamond Crown Hải Phòng - Đẳng cấp biệt thự trên không 158
Thiết kế nội thất căn hộ Sky Villa Diamond Crown Hải Phòng - Đẳng cấp biệt thự trên không 159
Thiết kế nội thất căn hộ Sky Villa Diamond Crown Hải Phòng - Đẳng cấp biệt thự trên không 160
Thiết kế nội thất căn hộ Sky Villa Diamond Crown Hải Phòng - Đẳng cấp biệt thự trên không 161
Thiết kế nội thất căn hộ Sky Villa Diamond Crown Hải Phòng - Đẳng cấp biệt thự trên không 162
Thiết kế nội thất căn hộ Sky Villa Diamond Crown Hải Phòng - Đẳng cấp biệt thự trên không 163
Thiết kế nội thất căn hộ Sky Villa Diamond Crown Hải Phòng - Đẳng cấp biệt thự trên không 164
Thiết kế nội thất căn hộ Sky Villa Diamond Crown Hải Phòng - Đẳng cấp biệt thự trên không 165
Thiết kế nội thất căn hộ Sky Villa Diamond Crown Hải Phòng - Đẳng cấp biệt thự trên không 166
Thiết kế nội thất căn hộ Sky Villa Diamond Crown Hải Phòng - Đẳng cấp biệt thự trên không 167
Thiết kế nội thất căn hộ Sky Villa Diamond Crown Hải Phòng - Đẳng cấp biệt thự trên không 168
Thiết kế nội thất căn hộ Sky Villa Diamond Crown Hải Phòng - Đẳng cấp biệt thự trên không 169
Thiết kế nội thất căn hộ Sky Villa Diamond Crown Hải Phòng - Đẳng cấp biệt thự trên không 170
Thiết kế nội thất căn hộ Sky Villa Diamond Crown Hải Phòng - Đẳng cấp biệt thự trên không 171
Thiết kế nội thất căn hộ Sky Villa Diamond Crown Hải Phòng - Đẳng cấp biệt thự trên không 172
Thiết kế nội thất căn hộ Sky Villa Diamond Crown Hải Phòng - Đẳng cấp biệt thự trên không 173
Thiết kế nội thất căn hộ Sky Villa Diamond Crown Hải Phòng - Đẳng cấp biệt thự trên không 174
Thiết kế nội thất căn hộ Sky Villa Diamond Crown Hải Phòng - Đẳng cấp biệt thự trên không 175
Thiết kế nội thất căn hộ Sky Villa Diamond Crown Hải Phòng - Đẳng cấp biệt thự trên không 176
Thiết kế nội thất căn hộ Sky Villa Diamond Crown Hải Phòng - Đẳng cấp biệt thự trên không 177
Thiết kế nội thất căn hộ Sky Villa Diamond Crown Hải Phòng - Đẳng cấp biệt thự trên không 178
Thiết kế nội thất căn hộ Sky Villa Diamond Crown Hải Phòng - Đẳng cấp biệt thự trên không 179
Thiết kế nội thất căn hộ Sky Villa Diamond Crown Hải Phòng - Đẳng cấp biệt thự trên không 180
Thiết kế nội thất căn hộ Sky Villa Diamond Crown Hải Phòng - Đẳng cấp biệt thự trên không 181
Thiết kế nội thất căn hộ Sky Villa Diamond Crown Hải Phòng - Đẳng cấp biệt thự trên không 182
Thiết kế nội thất căn hộ Sky Villa Diamond Crown Hải Phòng - Đẳng cấp biệt thự trên không 183
Thiết kế nội thất căn hộ Sky Villa Diamond Crown Hải Phòng - Đẳng cấp biệt thự trên không 184
Thiết kế nội thất căn hộ Sky Villa Diamond Crown Hải Phòng - Đẳng cấp biệt thự trên không 185
Thiết kế nội thất căn hộ Sky Villa Diamond Crown Hải Phòng - Đẳng cấp biệt thự trên không 186
Thiết kế nội thất căn hộ Sky Villa Diamond Crown Hải Phòng - Đẳng cấp biệt thự trên không 187
Thiết kế nội thất căn hộ Sky Villa Diamond Crown Hải Phòng - Đẳng cấp biệt thự trên không 188
Thiết kế nội thất căn hộ Sky Villa Diamond Crown Hải Phòng - Đẳng cấp biệt thự trên không 189
Thiết kế nội thất căn hộ Sky Villa Diamond Crown Hải Phòng - Đẳng cấp biệt thự trên không 190
Thiết kế nội thất căn hộ Sky Villa Diamond Crown Hải Phòng - Đẳng cấp biệt thự trên không 191
Thiết kế nội thất căn hộ Sky Villa Diamond Crown Hải Phòng - Đẳng cấp biệt thự trên không 192
Thiết kế nội thất căn hộ Sky Villa Diamond Crown Hải Phòng - Đẳng cấp biệt thự trên không 193
Thiết kế nội thất căn hộ Sky Villa Diamond Crown Hải Phòng - Đẳng cấp biệt thự trên không 194
Thiết kế nội thất căn hộ Sky Villa Diamond Crown Hải Phòng - Đẳng cấp biệt thự trên không 195
Thiết kế nội thất căn hộ Sky Villa Diamond Crown Hải Phòng - Đẳng cấp biệt thự trên không 196
Thiết kế nội thất căn hộ Sky Villa Diamond Crown Hải Phòng - Đẳng cấp biệt thự trên không 197
Thiết kế nội thất căn hộ Sky Villa Diamond Crown Hải Phòng - Đẳng cấp biệt thự trên không 198
Thiết kế nội thất căn hộ Sky Villa Diamond Crown Hải Phòng - Đẳng cấp biệt thự trên không 199
Thiết kế nội thất căn hộ Sky Villa Diamond Crown Hải Phòng - Đẳng cấp biệt thự trên không 200
Thiết kế nội thất căn hộ Sky Villa Diamond Crown Hải Phòng - Đẳng cấp biệt thự trên không 201
Thiết kế nội thất căn hộ Sky Villa Diamond Crown Hải Phòng - Đẳng cấp biệt thự trên không 202
Thiết kế nội thất căn hộ Sky Villa Diamond Crown Hải Phòng - Đẳng cấp biệt thự trên không 203
Thiết kế nội thất căn hộ Sky Villa Diamond Crown Hải Phòng - Đẳng cấp biệt thự trên không 204
Thiết kế nội thất căn hộ Sky Villa Diamond Crown Hải Phòng - Đẳng cấp biệt thự trên không 205
Thiết kế nội thất căn hộ Sky Villa Diamond Crown Hải Phòng - Đẳng cấp biệt thự trên không 206
Thiết kế nội thất căn hộ Sky Villa Diamond Crown Hải Phòng - Đẳng cấp biệt thự trên không 207
Thiết kế nội thất căn hộ Sky Villa Diamond Crown Hải Phòng - Đẳng cấp biệt thự trên không 208
Thiết kế nội thất căn hộ Sky Villa Diamond Crown Hải Phòng - Đẳng cấp biệt thự trên không 209
Thiết kế nội thất căn hộ Sky Villa Diamond Crown Hải Phòng - Đẳng cấp biệt thự trên không 210
Thiết kế nội thất căn hộ Sky Villa Diamond Crown Hải Phòng - Đẳng cấp biệt thự trên không 211
Thiết kế nội thất căn hộ Sky Villa Diamond Crown Hải Phòng - Đẳng cấp biệt thự trên không 212
Thiết kế nội thất căn hộ Sky Villa Diamond Crown Hải Phòng - Đẳng cấp biệt thự trên không 213
Thiết kế nội thất căn hộ Sky Villa Diamond Crown Hải Phòng - Đẳng cấp biệt thự trên không 214
Thiết kế nội thất căn hộ Sky Villa Diamond Crown Hải Phòng - Đẳng cấp biệt thự trên không 215
Thiết kế nội thất căn hộ Sky Villa Diamond Crown Hải Phòng - Đẳng cấp biệt thự trên không 216
Thiết kế nội thất căn hộ Sky Villa Diamond Crown Hải Phòng - Đẳng cấp biệt thự trên không 217
Thiết kế nội thất căn hộ Sky Villa Diamond Crown Hải Phòng - Đẳng cấp biệt thự trên không 218
Thiết kế nội thất căn hộ Sky Villa Diamond Crown Hải Phòng - Đẳng cấp biệt thự trên không 219
Thiết kế nội thất căn hộ Sky Villa Diamond Crown Hải Phòng - Đẳng cấp biệt thự trên không 220
Thiết kế nội thất căn hộ Sky Villa Diamond Crown Hải Phòng - Đẳng cấp biệt thự trên không 221
Thiết kế nội thất căn hộ Sky Villa Diamond Crown Hải Phòng - Đẳng cấp biệt thự trên không 222
Thiết kế nội thất căn hộ Sky Villa Diamond Crown Hải Phòng - Đẳng cấp biệt thự trên không 223
Thiết kế nội thất căn hộ Sky Villa Diamond Crown Hải Phòng - Đẳng cấp biệt thự trên không 224
Thiết kế nội thất căn hộ Sky Villa Diamond Crown Hải Phòng - Đẳng cấp biệt thự trên không 225
Thiết kế nội thất căn hộ Sky Villa Diamond Crown Hải Phòng - Đẳng cấp biệt thự trên không 226
Thiết kế nội thất căn hộ Sky Villa Diamond Crown Hải Phòng - Đẳng cấp biệt thự trên không 227

4. Điểm khác biệt trong thiết kế nội thất Sky Villa của Sơn Hà Group

Sơn Hà Group - đơn vị tiên phong trong lĩnh vực thiết kế nội thất căn hộ cao cấp, đặc biệt là các căn hộ Sky Villa, Penhouse. Với kinh nghiệm lâu năm và đội ngũ kiến trúc sư tài năng, chúng tôi mang đến những giải pháp thiết kế đột phá, đẳng cấp và cá nhân hóa theo phong cách gia chủ.

3.1 Tại sao nên chọn Sơn Hà Group thiết kế thi công hoàn thiện nội thất?

Sơn Hà Group - Đơn vị chuyên thiết kế nội thất căn hộ Sky Villa đẳng cấp
Sơn Hà Group - Đơn vị chuyên thiết kế nội thất căn hộ Sky Villa đẳng cấp

Tư vấn thiết kế miễn phí: 0906.222.555

Thiết kế độc quyền theo phong cách cá nhân của từng khách hàng.
Chất lượng cao cấp, sử dụng vật liệu bền vững theo thời gian.
Tối ưu công năng sử dụng, giúp gia chủ tận hưởng cuộc sống tiện nghi.
Tư vấn tận tình - Quy trình thi công nội thất chung cư chuyên nghiệp.

Với triết lý thiết kế hướng đến sự sang trọng, tinh tế và tiện nghi, Sơn Hà Group cam kết mang đến không gian sống hoàn hảo, giúp gia chủ tận hưởng những phút giây trọn vẹn nhất.

SƠN HÀ GROUP – BẢO HÀNH 1 NĂM – BẢO TRÌ TRỌN ĐỜI

4. Liên hệ ngay để được tư vấn thiết kế nội thất Sky Villa đẳng cấp!

Để sở hữu thiết kế nội thất căn hộ Sky Villa đẹp - sang trọng - độc đáo cũng như các thiết kế nội thất chung cư đẳng cấp khác, hãy liên hệ ngay với Sơn Hà Group để được tư vấn chi tiết!

Mọi chi tiết xin liên hệ:
CÔNG TY CỔ PHẦN TƯ VẤN XÂY DỰNG SƠN HÀ (SHAC)
Trụ sở chính: Số 55, đường 22, KĐT Waterfront City, Lê Chân, Hải Phòng

  • Điện thoại: 0225 2222 555
  • Hotline: 0906 222 555
  • Email: sonha@shac.vn

Văn phòng đại diện

  • Tại Hà Nội: Số 4/172, Ngọc Hồi, Huyện Thanh Trì, TP. Hà Nội
  • Tại Quảng Ninh: Số 289 P. Giếng Đáy, TP. Hạ Long, Tỉnh. Quảng Ninh
  • Tại Đà Nẵng: Số 51m đường Nguyễn Chí Thanh, P. Thạch Thang. Quận Hải Châu, TP. Đà Nẵng
  • Tại Sài Gòn: Số 45 Đường 17 khu B, An Phú, Quận 2, TP. Hồ Chí Minh
  • Xưởng nội thất: Số 45 Thống Trực, Nam Sơn. Kiến An, TP. Hải Phòng
Đánh giá post
54Lượt xem

Xem thêm: Hồ sơ - Thiết kế nội thất Hồ sơ - Thiết kế nội thất chung cư Thiết kế nội thất chung cư

YÊU CẦU TƯ VẤN
Nhận ưu đãi & tư vấn
🎁 GIẢM NGAY 50% phí thiết kế khi thi công trọn gói 🎁 MIỄN PHÍ kiểm tra giám sát các lần đổ móng, sàn, mái
🎁 MIỄN PHÍ khảo sát hiện trạng đất/nhà 🎁 HỖ TRỢ hồ sơ giấy xin cấp phép xây dựng
🎁 MIỄN PHÍ thiết kế cổng và tường rào 🎁 MIỄN PHÍ tư vấn thiết kế, tư vấn phong thủy

*Vui lòng để lại thông tin, nhân viên tư vấn sẽ liên hệ lại với quý khách trong thời gian sớm nhất

Tra cứu phong thủy
Xem hướng Nhà
Xem tuổi xây nhà
DỰ TOÁN CHI PHÍ

Bạn có thể tự tính toán chi phí xây dựng bằng phần mềm Dự toán Online của SHAC. Để lên dự trù chi phí xây dựng, hãy truy cập link sau (miễn phí):

Dự toán Chi phí xây dựng

Có liên quan

Yêu cầu tư vấn

YÊU CẦU TƯ VẤN Widget

Tìm theo số tầng

Tìm theo mặt tiền

Bài viết mới nhất

Yêu cầu tư vấn

YÊU CẦU TƯ VẤN Widget

Ảnh khác

.
.
0906.222.555