Ngày đăng 04/15/2026
Ngày cập nhật 04/16/2026
Đánh giá post

8 tiếng mỗi ngày không chỉ là thời gian làm việc, mà còn là hành trình trải nghiệm không gian. Dự án thiết kế thi công nội thất văn phòng Duong Linh Office được kiến tạo từ sự thấu hiểu sâu sắc nhu cầu của người làm việc hiện đại - nơi cân bằng giữa tập trung, sáng tạo và thư giãn.

Thông tin công trình văn phòng làm việc Dương Linh

Phối cảnh kiến trúc bên ngoài toà nhà văn phòng Dương Linh office
Thiết kế thi công nội thất văn phòng Duong Linh Office - Không gian làm việc truyền cảm hứng mỗi ngày 1
Nội thất văn phòng Dương Linh Office - Phòng Japex
Thiết kế thi công nội thất văn phòng Duong Linh Office - Không gian làm việc truyền cảm hứng mỗi ngày 2
Thiết kế thi công nội thất văn phòng Duong Linh Office - Không gian làm việc truyền cảm hứng mỗi ngày 3
Thiết kế thi công nội thất văn phòng Duong Linh Office - Không gian làm việc truyền cảm hứng mỗi ngày 4
Thiết kế thi công nội thất văn phòng Duong Linh Office - Không gian làm việc truyền cảm hứng mỗi ngày 5
Thiết kế thi công nội thất văn phòng Duong Linh Office - Không gian làm việc truyền cảm hứng mỗi ngày 6
Thiết kế thi công nội thất văn phòng Duong Linh Office - Không gian làm việc truyền cảm hứng mỗi ngày 7
Thiết kế thi công nội thất văn phòng Duong Linh Office - Không gian làm việc truyền cảm hứng mỗi ngày 8
Khu pantry kết hợp thư giãn cho nhân viên
Thiết kế thi công nội thất văn phòng Duong Linh Office - Không gian làm việc truyền cảm hứng mỗi ngày 9
Thiết kế thi công nội thất văn phòng Duong Linh Office - Không gian làm việc truyền cảm hứng mỗi ngày 10
Thiết kế thi công nội thất văn phòng Duong Linh Office - Không gian làm việc truyền cảm hứng mỗi ngày 11
Thiết kế thi công nội thất văn phòng Duong Linh Office - Không gian làm việc truyền cảm hứng mỗi ngày 12
Thiết kế thi công nội thất văn phòng Duong Linh Office - Không gian làm việc truyền cảm hứng mỗi ngày 13
Thiết kế thi công nội thất văn phòng Duong Linh Office - Không gian làm việc truyền cảm hứng mỗi ngày 14
Thiết kế thi công nội thất văn phòng Duong Linh Office - Không gian làm việc truyền cảm hứng mỗi ngày 15
Thiết kế thi công nội thất văn phòng Duong Linh Office - Không gian làm việc truyền cảm hứng mỗi ngày 16
Thiết kế thi công nội thất văn phòng Duong Linh Office - Không gian làm việc truyền cảm hứng mỗi ngày 17
Thiết kế thi công nội thất văn phòng Duong Linh Office - Không gian làm việc truyền cảm hứng mỗi ngày 18
Thiết kế thi công nội thất văn phòng Duong Linh Office - Không gian làm việc truyền cảm hứng mỗi ngày 19
Thiết kế thi công nội thất văn phòng Duong Linh Office - Không gian làm việc truyền cảm hứng mỗi ngày 20
Thiết kế thi công nội thất văn phòng Duong Linh Office - Không gian làm việc truyền cảm hứng mỗi ngày 21
Thiết kế thi công nội thất văn phòng Duong Linh Office - Không gian làm việc truyền cảm hứng mỗi ngày 22
Thiết kế thi công nội thất văn phòng Duong Linh Office - Không gian làm việc truyền cảm hứng mỗi ngày 23
Thiết kế thi công nội thất văn phòng Duong Linh Office - Không gian làm việc truyền cảm hứng mỗi ngày 24
Thiết kế thi công nội thất văn phòng Duong Linh Office - Không gian làm việc truyền cảm hứng mỗi ngày 25
Thiết kế thi công nội thất văn phòng Duong Linh Office - Không gian làm việc truyền cảm hứng mỗi ngày 26
Thiết kế thi công nội thất văn phòng Duong Linh Office - Không gian làm việc truyền cảm hứng mỗi ngày 27
Thiết kế thi công nội thất văn phòng Duong Linh Office - Không gian làm việc truyền cảm hứng mỗi ngày 28
Thiết kế thi công nội thất văn phòng Duong Linh Office - Không gian làm việc truyền cảm hứng mỗi ngày 29
Thiết kế thi công nội thất văn phòng Duong Linh Office - Không gian làm việc truyền cảm hứng mỗi ngày 30
Thiết kế thi công nội thất văn phòng Duong Linh Office - Không gian làm việc truyền cảm hứng mỗi ngày 31
Thiết kế thi công nội thất văn phòng Duong Linh Office - Không gian làm việc truyền cảm hứng mỗi ngày 32
Thiết kế thi công nội thất văn phòng Duong Linh Office - Không gian làm việc truyền cảm hứng mỗi ngày 33
Thiết kế thi công nội thất văn phòng Duong Linh Office - Không gian làm việc truyền cảm hứng mỗi ngày 34
Thiết kế thi công nội thất văn phòng Duong Linh Office - Không gian làm việc truyền cảm hứng mỗi ngày 35
Thiết kế thi công nội thất văn phòng Duong Linh Office - Không gian làm việc truyền cảm hứng mỗi ngày 36
Thiết kế thi công nội thất văn phòng Duong Linh Office - Không gian làm việc truyền cảm hứng mỗi ngày 37
Thiết kế thi công nội thất văn phòng Duong Linh Office - Không gian làm việc truyền cảm hứng mỗi ngày 38
Thiết kế thi công nội thất văn phòng Duong Linh Office - Không gian làm việc truyền cảm hứng mỗi ngày 39
Thiết kế thi công nội thất văn phòng Duong Linh Office - Không gian làm việc truyền cảm hứng mỗi ngày 40
Thiết kế thi công nội thất văn phòng Duong Linh Office - Không gian làm việc truyền cảm hứng mỗi ngày 41
Thiết kế thi công nội thất văn phòng Duong Linh Office - Phòng Tổng Giám Đốc
Thiết kế thi công nội thất văn phòng Duong Linh Office - Không gian làm việc truyền cảm hứng mỗi ngày 42
Thiết kế thi công nội thất văn phòng Duong Linh Office - Phòng Tổng Giám Đốc
Thiết kế thi công nội thất văn phòng Duong Linh Office - Không gian làm việc truyền cảm hứng mỗi ngày 43
Thiết kế thi công nội thất văn phòng Duong Linh Office - Không gian làm việc truyền cảm hứng mỗi ngày 44
Thiết kế thi công nội thất văn phòng Duong Linh Office - Không gian làm việc truyền cảm hứng mỗi ngày 45
Thiết kế phòng thờ tầng tum
Nội thất văn phòng Dương Linh Group - Mặt bằng tầng 1
Nội thất văn phòng Dương Linh Group - Mặt bằng tầng 2
Thiết kế nội thất văn phòng Dương Linh Group - Mặt bằng tầng 3
Thiết kế nội thất văn phòng Dương Linh Group - Mặt bằng tầng tum
Thiết kế nội thất văn phòng Dương Linh Group - Mặt bằng tầng 4
Phối cảnh kiến trúc bên ngoài toà nhà văn phòng Dương Linh office
Thiết kế thi công nội thất văn phòng Duong Linh Office - Không gian làm việc truyền cảm hứng mỗi ngày 46
Nội thất văn phòng Dương Linh Office - Phòng Japex
Thiết kế thi công nội thất văn phòng Duong Linh Office - Không gian làm việc truyền cảm hứng mỗi ngày 47
Thiết kế thi công nội thất văn phòng Duong Linh Office - Không gian làm việc truyền cảm hứng mỗi ngày 48
Thiết kế thi công nội thất văn phòng Duong Linh Office - Không gian làm việc truyền cảm hứng mỗi ngày 49
Thiết kế thi công nội thất văn phòng Duong Linh Office - Không gian làm việc truyền cảm hứng mỗi ngày 50
Thiết kế thi công nội thất văn phòng Duong Linh Office - Không gian làm việc truyền cảm hứng mỗi ngày 51
Thiết kế thi công nội thất văn phòng Duong Linh Office - Không gian làm việc truyền cảm hứng mỗi ngày 52
Thiết kế thi công nội thất văn phòng Duong Linh Office - Không gian làm việc truyền cảm hứng mỗi ngày 53
Khu pantry kết hợp thư giãn cho nhân viên
Thiết kế thi công nội thất văn phòng Duong Linh Office - Không gian làm việc truyền cảm hứng mỗi ngày 54
Thiết kế thi công nội thất văn phòng Duong Linh Office - Không gian làm việc truyền cảm hứng mỗi ngày 55
Thiết kế thi công nội thất văn phòng Duong Linh Office - Không gian làm việc truyền cảm hứng mỗi ngày 56
Thiết kế thi công nội thất văn phòng Duong Linh Office - Không gian làm việc truyền cảm hứng mỗi ngày 57
Thiết kế thi công nội thất văn phòng Duong Linh Office - Không gian làm việc truyền cảm hứng mỗi ngày 58
Thiết kế thi công nội thất văn phòng Duong Linh Office - Không gian làm việc truyền cảm hứng mỗi ngày 59
Thiết kế thi công nội thất văn phòng Duong Linh Office - Không gian làm việc truyền cảm hứng mỗi ngày 60
Thiết kế thi công nội thất văn phòng Duong Linh Office - Không gian làm việc truyền cảm hứng mỗi ngày 61
Thiết kế thi công nội thất văn phòng Duong Linh Office - Không gian làm việc truyền cảm hứng mỗi ngày 62
Thiết kế thi công nội thất văn phòng Duong Linh Office - Không gian làm việc truyền cảm hứng mỗi ngày 63
Thiết kế thi công nội thất văn phòng Duong Linh Office - Không gian làm việc truyền cảm hứng mỗi ngày 64
Thiết kế thi công nội thất văn phòng Duong Linh Office - Không gian làm việc truyền cảm hứng mỗi ngày 65
Thiết kế thi công nội thất văn phòng Duong Linh Office - Không gian làm việc truyền cảm hứng mỗi ngày 66
Thiết kế thi công nội thất văn phòng Duong Linh Office - Không gian làm việc truyền cảm hứng mỗi ngày 67
Thiết kế thi công nội thất văn phòng Duong Linh Office - Không gian làm việc truyền cảm hứng mỗi ngày 68
Thiết kế thi công nội thất văn phòng Duong Linh Office - Không gian làm việc truyền cảm hứng mỗi ngày 69
Thiết kế thi công nội thất văn phòng Duong Linh Office - Không gian làm việc truyền cảm hứng mỗi ngày 70
Thiết kế thi công nội thất văn phòng Duong Linh Office - Không gian làm việc truyền cảm hứng mỗi ngày 71
Thiết kế thi công nội thất văn phòng Duong Linh Office - Không gian làm việc truyền cảm hứng mỗi ngày 72
Thiết kế thi công nội thất văn phòng Duong Linh Office - Không gian làm việc truyền cảm hứng mỗi ngày 73
Thiết kế thi công nội thất văn phòng Duong Linh Office - Không gian làm việc truyền cảm hứng mỗi ngày 74
Thiết kế thi công nội thất văn phòng Duong Linh Office - Không gian làm việc truyền cảm hứng mỗi ngày 75
Thiết kế thi công nội thất văn phòng Duong Linh Office - Không gian làm việc truyền cảm hứng mỗi ngày 76
Thiết kế thi công nội thất văn phòng Duong Linh Office - Không gian làm việc truyền cảm hứng mỗi ngày 77
Thiết kế thi công nội thất văn phòng Duong Linh Office - Không gian làm việc truyền cảm hứng mỗi ngày 78
Thiết kế thi công nội thất văn phòng Duong Linh Office - Không gian làm việc truyền cảm hứng mỗi ngày 79
Thiết kế thi công nội thất văn phòng Duong Linh Office - Không gian làm việc truyền cảm hứng mỗi ngày 80
Thiết kế thi công nội thất văn phòng Duong Linh Office - Không gian làm việc truyền cảm hứng mỗi ngày 81
Thiết kế thi công nội thất văn phòng Duong Linh Office - Không gian làm việc truyền cảm hứng mỗi ngày 82
Thiết kế thi công nội thất văn phòng Duong Linh Office - Không gian làm việc truyền cảm hứng mỗi ngày 83
Thiết kế thi công nội thất văn phòng Duong Linh Office - Không gian làm việc truyền cảm hứng mỗi ngày 84
Thiết kế thi công nội thất văn phòng Duong Linh Office - Không gian làm việc truyền cảm hứng mỗi ngày 85
Thiết kế thi công nội thất văn phòng Duong Linh Office - Không gian làm việc truyền cảm hứng mỗi ngày 86
Thiết kế thi công nội thất văn phòng Duong Linh Office - Phòng Tổng Giám Đốc
Thiết kế thi công nội thất văn phòng Duong Linh Office - Không gian làm việc truyền cảm hứng mỗi ngày 87
Thiết kế thi công nội thất văn phòng Duong Linh Office - Phòng Tổng Giám Đốc
Thiết kế thi công nội thất văn phòng Duong Linh Office - Không gian làm việc truyền cảm hứng mỗi ngày 88
Thiết kế thi công nội thất văn phòng Duong Linh Office - Không gian làm việc truyền cảm hứng mỗi ngày 89
Thiết kế thi công nội thất văn phòng Duong Linh Office - Không gian làm việc truyền cảm hứng mỗi ngày 90
Thiết kế phòng thờ tầng tum
Nội thất văn phòng Dương Linh Group - Mặt bằng tầng 1
Nội thất văn phòng Dương Linh Group - Mặt bằng tầng 2
Thiết kế nội thất văn phòng Dương Linh Group - Mặt bằng tầng 3
Thiết kế nội thất văn phòng Dương Linh Group - Mặt bằng tầng tum
Thiết kế nội thất văn phòng Dương Linh Group - Mặt bằng tầng 4
Chủ đầu tư: Công Ty CP Dương Linh
Địa chỉ: , Thành Phố. Hải Phòng
Loại hình: Toà Nhà Văn Phòng
Đ/v thực hiện: Sơn Hà Group (#SHAC)
Số Tầng: 5 tầng 1 tum
Mặt tiền: 10m
Tổng diện tích: 132m2
Năm thực hiện: 2026
Công năng:

  • Tầng 1: Sảnh lễ tân, Phòng XNK - Truyền thông, Phòng quản lý rừng bền vững, Phòng kỹ thuật, Sảnh thang, Kho tài liệu, WC.
  • Tầng 2: Phòng HCNS, Phòng Kinh doanh, Phòng Tài chính kế toán, Phòng kỹ thuật, Sảnh thang, Kho tài liệu, WC.
  • Tầng 3: Phòng Dự án, Phòng JAPEX, Phòng TGĐ, Phòng kỹ thuật, Sảnh thang, Kho tài liệu, WC.
  • Tầng 4: Phòng Họp, Khu Pantry, Phòng Cố Vấn, Phòng kỹ thuật, Sảnh thang, WC.
  • Tầng Tum: Phòng Ăn, Phòng Thờ Thổ Công, Sân Trước, Sân Sau

Thiết kế thi công nội thất văn phòng Duong Linh Office - Khi không gian trở thành trải nghiệm

Không còn là những văn phòng khô cứng với bàn ghế đơn điệu, xu hướng thiết kế nội thất văn phòng hiện nay hướng đến việc tạo ra môi trường làm việc linh hoạt, thân thiện và giàu cảm xúc.

Thiết kế thi công nội thất văn phòng Duong Linh Office
Thiết kế thi công nội thất văn phòng Duong Linh Office

Dự án Duong Linh Office là minh chứng rõ nét cho tư duy đó. Từ việc cải tạo công trình hiện trạng tại Hải Phòng, các KTS đã tái cấu trúc toàn bộ không gian, mang đến một diện mạo hoàn toàn mới - hiện đại hơn, khoa học hơn và giàu năng lượng hơn.

Thiết kế thi công nội thất văn phòng hiện đại tại Hải Phòng
Thiết kế thi công nội thất văn phòng hiện đại tại Hải Phòng

Điểm cốt lõi của dự án nằm ở triết lý: con người là trung tâm. Mọi giải pháp thiết kế đều xoay quanh trải nghiệm của nhân viên - từ ánh sáng, vật liệu đến cách tổ chức không gian.

Tổng thể mặt bằng - Tối ưu công năng trên từng tầng

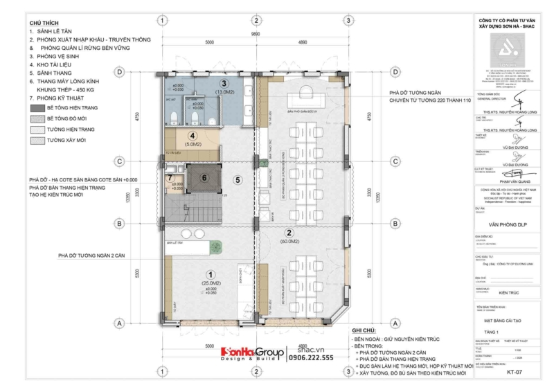
Tầng 1 - Không gian tiếp đón và làm việc mở

Nội thất văn phòng Dương Linh Group - Mặt bằng tầng 1
Nội thất văn phòng Dương Linh Group - Mặt bằng tầng 1
Thiết kế sảnh lễ tân
Thiết kế sảnh lễ tân
  • Sảnh lễ tân được bố trí gọn gàng, tạo ấn tượng chuyên nghiệp ngay từ khi bước vào
  • Khu làm việc dành cho bộ phận xuất nhập khẩu và truyền thông được thiết kế dạng open space
Phòng xuất nhập khẩu và truyền thông
Phòng xuất nhập khẩu và truyền thông
  • Kết hợp khu quản lý rừng bền vững, đảm bảo sự liên kết giữa các phòng ban
Thiết kế nội thất văn phòng - Bộ phận quản lý rừng
Thiết kế nội thất văn phòng - Bộ phận quản lý rừng

Không gian mở giúp tăng khả năng tương tác, đồng thời tối ưu diện tích sử dụng sau khi phá bỏ các vách ngăn cũ.

Tầng 2 - Khu làm việc chuyên môn hóa

Nội thất văn phòng Dương Linh Group - Mặt bằng tầng 2
Nội thất văn phòng Dương Linh Group - Mặt bằng tầng 2
  • Bố trí phòng tài chính và kinh doanh riêng biệt
  • Có khu vực cho trưởng bộ phận, đảm bảo tính quản lý
Thiết kế nội thất công ty - Khu vực quản lý phòng Tài chính & Kinh doanh
Thiết kế nội thất công ty - Khu vực quản lý phòng Tài chính & Kinh doanh
  • Hệ tủ tài liệu và máy in được tích hợp khoa học
Tầng 2 thiết kế hệ tủ tài liệu và máy in được tích hợp khoa học
Tầng 2 thiết kế hệ tủ tài liệu và máy in được tích hợp khoa học

Cách tổ chức này giúp cân bằng giữa tính riêng tư và khả năng phối hợp công việc.

Tầng 3 - Không gian quản lý và điều hành

Thiết kế nội thất văn phòng Dương Linh Group - Mặt bằng tầng 3
Thiết kế nội thất văn phòng Dương Linh Group - Mặt bằng tầng 3
  • Phòng tổng giám đốc được đặt tại vị trí trung tâm
Thiết kế thi công nội thất văn phòng Duong Linh Office - Phòng Tổng Giám Đốc
Thiết kế thi công nội thất văn phòng Duong Linh Office - Phòng Tổng Giám Đốc
Thiết kế thi công nội thất văn phòng Duong Linh Office - Phòng Tổng Giám Đốc
Thiết kế thi công nội thất văn phòng Duong Linh Office - Phòng Tổng Giám Đốc
Thiết kế thi công nội thất văn phòng Duong Linh Office - Phòng Tổng Giám Đốc
Thiết kế thi công nội thất văn phòng Duong Linh Office - Phòng Tổng Giám Đốc
  • Khu làm việc bộ phận Japex và dự án được bố trí linh hoạt
Nội thất văn phòng Dương Linh Office - Phòng Japex
Nội thất văn phòng Dương Linh Office - Phòng Japex
  • Thiết kế đảm bảo sự kết nối nhưng vẫn giữ được sự riêng tư cần thiết

Đây là tầng thể hiện rõ nét nhất yếu tố “quyền lực mềm” trong thiết kế nội thất công ty.

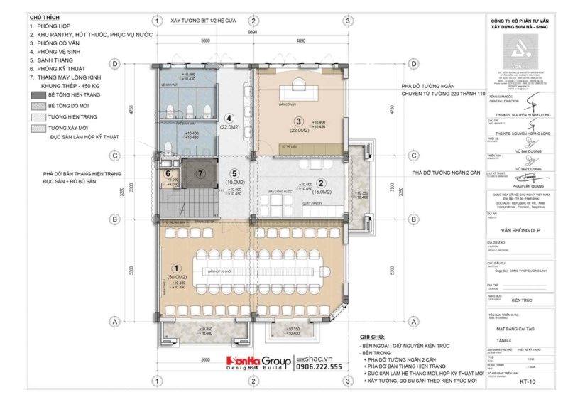
Tầng 4 - Không gian họp và sáng tạo

Thiết kế nội thất văn phòng Dương Linh Group - Mặt bằng tầng 4
Thiết kế nội thất văn phòng Dương Linh Group - Mặt bằng tầng 4
Không gian phòng họp tầng 4
Không gian phòng họp tầng 4
  • Phòng họp lớn sức chứa 20 người
  • Khu pantry kết hợp thư giãn
Khu pantry kết hợp thư giãn cho nhân viên
Khu pantry kết hợp thư giãn cho nhân viên
Khu pantry kết hợp thư giãn cho nhân viên
Khu pantry kết hợp thư giãn cho nhân viên
  • Phòng cố vấn phục vụ các cuộc trao đổi chuyên sâu

Không gian này đóng vai trò quan trọng trong việc phát triển ý tưởng và ra quyết định.

Tầng tum - Kết nối và tái tạo năng lượng

Thiết kế nội thất văn phòng Dương Linh Group - Mặt bằng tầng tum
Thiết kế nội thất văn phòng Dương Linh Group - Mặt bằng tầng tum
  • Khu ăn uống chung
  • Không gian phòng thờ tâm linh
Thiết kế phòng thờ tầng tum
Thiết kế phòng thờ tầng tum

Đây chính là “khoảng nghỉ” giúp nhân sự tái tạo năng lượng sau những giờ làm việc căng thẳng.

Giải pháp thiết kế nội thất văn phòng - Tối giản nhưng đầy cảm xúc

Thiết kế nội thất văn phòng tone màu trắng - xanh hiện đại
Thiết kế nội thất văn phòng tone màu trắng - xanh hiện đại

Ngôn ngữ thiết kế toà nhà văn phòng hiện đại

  • Màu sắc trung tính
  • Đường nét gọn gàng
  • Hạn chế chi tiết rườm rà

Điều này giúp tạo cảm giác nhẹ nhàng, dễ chịu và không gây áp lực thị giác.

Tận dụng ánh sáng tự nhiên

  • Sử dụng cửa kính lớn
  • Không gian mở xuyên suốt
  • Hành lang thông thoáng

Ánh sáng tự nhiên không chỉ giúp tiết kiệm năng lượng mà còn cải thiện tinh thần làm việc.

Vật liệu thân thiện và gần gũi

  • Gỗ công nghiệp tạo cảm giác ấm áp
  • Kết hợp cây xanh tại nhiều vị trí
  • Trang trí nhẹ nhàng, không gây rối mắt

Từng chi tiết nhỏ đều được chăm chút để mang lại cảm giác “văn phòng như ở nhà”.

Thi công nội thất văn phòng - Đồng bộ từ thiết kế đến thực tế

Khu vực để tài liệu và máy photo gọn gàng tối ưu diện tích
Khu vực để tài liệu và máy photo gọn gàng tối ưu diện tích

Dưới đây là những hình ảnh thực tế của quá trình thi công nội thất văn phòng Dương Linh Group

Thiết kế thi công nội thất văn phòng Duong Linh Office - Không gian làm việc truyền cảm hứng mỗi ngày 91
Thiết kế thi công nội thất văn phòng Duong Linh Office - Không gian làm việc truyền cảm hứng mỗi ngày 92
Thiết kế thi công nội thất văn phòng Duong Linh Office - Không gian làm việc truyền cảm hứng mỗi ngày 93
Thiết kế thi công nội thất văn phòng Duong Linh Office - Không gian làm việc truyền cảm hứng mỗi ngày 94
Thiết kế thi công nội thất văn phòng Duong Linh Office - Không gian làm việc truyền cảm hứng mỗi ngày 95
Thiết kế thi công nội thất văn phòng Duong Linh Office - Không gian làm việc truyền cảm hứng mỗi ngày 96
Thiết kế thi công nội thất văn phòng Duong Linh Office - Không gian làm việc truyền cảm hứng mỗi ngày 97
Thiết kế thi công nội thất văn phòng Duong Linh Office - Không gian làm việc truyền cảm hứng mỗi ngày 98
Thiết kế thi công nội thất văn phòng Duong Linh Office - Không gian làm việc truyền cảm hứng mỗi ngày 99
Thiết kế thi công nội thất văn phòng Duong Linh Office - Không gian làm việc truyền cảm hứng mỗi ngày 100
Thiết kế thi công nội thất văn phòng Duong Linh Office - Không gian làm việc truyền cảm hứng mỗi ngày 101
Thiết kế thi công nội thất văn phòng Duong Linh Office - Không gian làm việc truyền cảm hứng mỗi ngày 102
Thiết kế thi công nội thất văn phòng Duong Linh Office - Không gian làm việc truyền cảm hứng mỗi ngày 103
Thiết kế thi công nội thất văn phòng Duong Linh Office - Không gian làm việc truyền cảm hứng mỗi ngày 104
Thiết kế thi công nội thất văn phòng Duong Linh Office - Không gian làm việc truyền cảm hứng mỗi ngày 105
Thiết kế thi công nội thất văn phòng Duong Linh Office - Không gian làm việc truyền cảm hứng mỗi ngày 106
Thiết kế thi công nội thất văn phòng Duong Linh Office - Không gian làm việc truyền cảm hứng mỗi ngày 107
Thiết kế thi công nội thất văn phòng Duong Linh Office - Không gian làm việc truyền cảm hứng mỗi ngày 108
Phối cảnh kiến trúc bên ngoài toà nhà văn phòng Dương Linh office
Phối cảnh kiến trúc bên ngoài toà nhà văn phòng Dương Linh office

Tại Duong Linh Office:

  • Kết cấu được cải tạo lại toàn bộ
  • Hệ thang máy lồng kính hiện đại được bổ sung
  • Các hệ thống kỹ thuật được nâng cấp đồng bộ

Việc thi công bám sát thiết kế văn phòng đẹp giúp đảm bảo tính thẩm mỹ và công năng như mong muốn ban đầu.

Tư vấn thiết kế miễn phí: 0906.222.555

Vì sao thiết kế nội thất công ty ảnh hưởng đến hiệu suất làm việc

Vì sao thiết kế nội thất công ty ảnh hưởng đến hiệu suất làm việc
Vì sao thiết kế nội thất công ty ảnh hưởng đến hiệu suất làm việc

Tăng khả năng tập trung

Không gian gọn gàng, ánh sáng tốt giúp giảm căng thẳng và tăng hiệu suất.

Khơi dậy sáng tạo

Những khu vực mở, linh hoạt tạo điều kiện cho việc trao đổi ý tưởng.

Cải thiện tinh thần nhân viên

Một môi trường dễ chịu giúp nhân viên cảm thấy gắn bó hơn với công ty.

Xu hướng thiết kế thi công nội thất văn phòng 2026

  • Thiết kế tòa nhà văn phòng mở nhưng có vùng riêng tư
  • Tích hợp không gian thư giãn
  • Ưu tiên yếu tố xanh
  • Thiết kế linh hoạt theo nhu cầu sử dụng

Đây là hướng đi tất yếu của các doanh nghiệp hiện đại.

Giải pháp thiết kế thi công nội thất văn phòng tối ưu từ Sơn Hà Group

Hiểu đúng nhu cầu - Cá nhân hóa từng không gian

Sơn Hà group bắt đầu từ việc lắng nghe nhu cầu của khách hàng
Sơn Hà group bắt đầu từ việc lắng nghe nhu cầu của khách hàng

Tại Sơn Hà Group, mỗi dự án thiết kế thi công nội thất văn phòng không bắt đầu từ bản vẽ, mà bắt đầu từ việc lắng nghe. Chúng tôi phân tích đặc thù vận hành, văn hóa doanh nghiệp và nhu cầu sử dụng thực tế để đưa ra giải pháp phù hợp nhất.

Nhờ đó, mỗi không gian đều mang dấu ấn riêng, không rập khuôn nhưng vẫn đảm bảo tối ưu công năng và trải nghiệm làm việc.

Năng lực Sơn Hà Group - Nền tảng cho những quyết định đúng ngay từ đầu

Sơn Hà Group - Đơn vị thiết kế thi công nội thất văn phòng tối ưu chi phí
Sơn Hà Group - Đơn vị thiết kế thi công nội thất văn phòng tối ưu chi phí

Lựa chọn đơn vị thiết kế thi công nội thất công ty không chỉ là lựa chọn thẩm mỹ, mà là quyết định ảnh hưởng trực tiếp đến hiệu quả vận hành lâu dài.

Sơn Hà Group tự tin đồng hành cùng doanh nghiệp nhờ nền tảng vững chắc:

  • 23 năm kinh nghiệm trong lĩnh vực xây dựng - thiết kế - thi công trọn gói
  • Thực hiện 1000+ dự án trên toàn quốc, trong đó có 10000+ biệt thự, nhà phố và 100+ khách sạn
  • Sở hữu xưởng nội thất riêng, chủ động toàn bộ quy trình từ thiết kế đến sản xuất và lắp đặt
  • Đội ngũ kiến trúc sư, kỹ sư, giám sát và thợ thi công tay nghề cao
  • Quy trình làm việc rõ ràng, kiểm soát chất lượng nhiều lớp từ ý tưởng đến bàn giao
  • Cam kết tiến độ - chất lượng - bảo hành minh bạch cho từng hạng mục

Chính sự đồng bộ này giúp đảm bảo công trình không chỉ đẹp trên bản vẽ mà còn hoàn thiện đúng kỳ vọng thực tế.

Đầu tư đúng - Giá trị bền vững cho doanh nghiệp

Một văn phòng được thiết kế bài bản không đơn thuần là chi phí, mà là khoản đầu tư chiến lược cho doanh nghiệp.

Với kinh nghiệm triển khai hàng nghìn công trình, Sơn Hà Group hướng tới việc tạo ra không gian làm việc:

  • Gia tăng hiệu suất làm việc của nhân sự
  • Nâng cao hình ảnh thương hiệu trong mắt đối tác
  • Tạo môi trường làm việc gắn kết và truyền cảm hứng

Đó cũng chính là cách chúng tôi giúp doanh nghiệp tối ưu giá trị lâu dài từ một dự án thiết kế thi công nội thất văn phòng.

YÊU CẦU TƯ VẤN
Nhận ưu đãi & tư vấn
🎁 GIẢM NGAY 50% phí thiết kế khi thi công trọn gói 🎁 MIỄN PHÍ kiểm tra giám sát các lần đổ móng, sàn, mái
🎁 MIỄN PHÍ khảo sát hiện trạng đất/nhà 🎁 HỖ TRỢ hồ sơ giấy xin cấp phép xây dựng
🎁 MIỄN PHÍ thiết kế cổng và tường rào 🎁 MIỄN PHÍ tư vấn thiết kế, tư vấn phong thủy

*Vui lòng để lại thông tin, nhân viên tư vấn sẽ liên hệ lại với quý khách trong thời gian sớm nhất

Không gian làm việc truyền cảm hứng cho doanh nghiệp hiện đại

Duong Linh Office không chỉ là một dự án thiết kế nội thất văn phòng, mà còn là câu chuyện về cách một không gian có thể thay đổi trải nghiệm làm việc mỗi ngày.

Từ những chi tiết nhỏ nhất đến tổng thể công trình, tất cả đều hướng đến một mục tiêu chung - tạo ra môi trường làm việc lý tưởng, nơi con người cảm thấy thoải mái, được truyền cảm hứng và phát huy tối đa năng lực.

Nếu bạn cũng đang tìm kiếm một giải pháp thiết kế thi công nội thất văn phòng chuyên nghiệp, đừng ngần ngại liên hệ Sơn Hà để được tư vấn và đồng hành.

Mọi chi tiết xin liên hệ:
CÔNG TY CỔ PHẦN TƯ VẤN XÂY DỰNG SƠN HÀ (SHAC)
Trụ sở chính: Số 55, Đường 22, KĐT Waterfront City, Phường Lê Chân, TP. Hải Phòng

  • Điện thoại: 0225.2222.555
  • Hotline: 0906.222.555
  • Email: sonha@shac.vn

CÁC VĂN PHÒNG ĐẠI DIỆN

  • Tại Hà Nội: Số 172 Ngọc Hồi, Phường Hoàng Liệt, TP. Hà Nội
  • Tại Vũ Yên: Tài Lộc 3A - 11, Vinhomes Royal Island Vũ Yên, TP. Hải Phòng
  • Tại Quảng Ninh: Số 289 Giếng Đáy, Phường Việt Hưng, Tỉnh. Quảng Ninh
  • Tại Sài Gòn: Số 45 Đường 17 khu B, Phường An Phú, Quận 2, TP. Hồ Chí Minh
  • Xưởng nội thất Resistanco: Số 45 Thống Trực, Phường Kiến An, TP. Hải Phòng
Đánh giá post
24Lượt xem

Xem thêm: Hồ sơ - Thiết kế nội thất Hồ sơ - Thiết kế tòa nhà - văn phòng Thi công nội thất văn phòng Thiết kế nội thất văn phòng Thiết kế thi công nội thất văn phòng Thiết kế tòa nhà văn phòng Thiết kế tòa nhà văn phòng tại Hải Phòng Tòa nhà văn phòng

YÊU CẦU TƯ VẤN
Nhận ưu đãi & tư vấn
🎁 GIẢM NGAY 50% phí thiết kế khi thi công trọn gói 🎁 MIỄN PHÍ kiểm tra giám sát các lần đổ móng, sàn, mái
🎁 MIỄN PHÍ khảo sát hiện trạng đất/nhà 🎁 HỖ TRỢ hồ sơ giấy xin cấp phép xây dựng
🎁 MIỄN PHÍ thiết kế cổng và tường rào 🎁 MIỄN PHÍ tư vấn thiết kế, tư vấn phong thủy

*Vui lòng để lại thông tin, nhân viên tư vấn sẽ liên hệ lại với quý khách trong thời gian sớm nhất

Tra cứu phong thủy
Xem hướng Nhà
Xem tuổi xây nhà
DỰ TOÁN CHI PHÍ

Bạn có thể tự tính toán chi phí xây dựng bằng phần mềm Dự toán Online của SHAC. Để lên dự trù chi phí xây dựng, hãy truy cập link sau (miễn phí):

Dự toán Chi phí xây dựng

Có liên quan

Yêu cầu tư vấn

YÊU CẦU TƯ VẤN Widget

Tìm theo số tầng

Tìm theo mặt tiền

Bài viết mới nhất

Yêu cầu tư vấn

YÊU CẦU TƯ VẤN Widget

Ảnh khác

.
.
0906.222.555