Hôm nay Sơn Hà Group xin gửi thới quý khách thiết kế tòa nhà văn phòng kết hợp nhà ở hiện đại, tiện nghi, tối ưu không gian, mang đến sự hài hòa giữa làm việc và sinh hoạt.
NỘI DUNG CHÍNH

Trong bối cảnh kinh doanh hiện đại, một văn phòng công ty không chỉ là nơi làm việc mà còn thể hiện bộ mặt doanh nghiệp. Đặc biệt, với những công ty có nhu cầu vừa làm việc vừa sinh hoạt tại chỗ, mô hình văn phòng kết hợp nhà ở là giải pháp tối ưu. Sơn Hà Group tự hào giới thiệu thiết kế tòa nhà văn phòng kết hợp nhà ở, mang đến không gian tiện nghi, hiện đại và phù hợp với nhu cầu sử dụng thực tế.
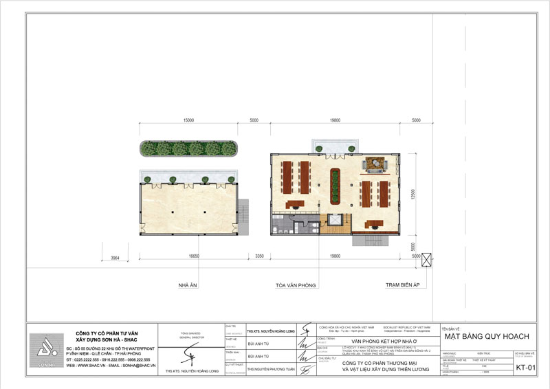
Dự án tọa lạc trên quỹ đất 7.721,6m², với diện tích xây dựng dao động từ 250 - 300m². Công trình được thiết kế nhằm tối ưu hóa không gian sử dụng, đảm bảo sự kết nối giữa khu vực làm việc và không gian sinh hoạt cá nhân một cách khoa học và hợp lý.
Diện tích:

Tầng 1 được bố trí để phục vụ nhu cầu làm việc và tiếp đón khách hàng của công ty Thiên Lương, vậy nên các KTS của Sơn Hà đã sắp xếp:
Không gian này không chỉ đáp ứng nhu cầu làm việc mà còn tạo cảm giác thoải mái, thân thiện với môi trường.

Tầng 2 dành riêng cho bộ phận quản lý và kế toán với các phòng chức năng quan trọng:
Thiết kế tầng 2 đảm bảo sự yên tĩnh, riêng tư nhưng vẫn có sự kết nối hợp lý với các khu vực khác trong tòa nhà.

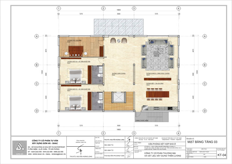
Tầng 3 được thiết kế dành riêng cho sinh hoạt gia đình với bố cục hợp lý:
Tầng 3 là sự kết hợp giữa tính tiện nghi và không gian thư giãn, giúp gia đình có những phút giây sum vầy bên nhau.

Tòa nhà được thiết kế theo phong cách đơn giản nhưng tinh tế, phù hợp với môi trường làm việc trong khu công nghiệp. Tổng thể công trình sử dụng tường xây kết hợp với hệ thống cửa kính lớn, không chỉ tạo cảm giác rộng rãi, thoáng đãng mà còn giúp tận dụng tối đa ánh sáng tự nhiên. Việc giảm thiểu sử dụng tường kín cũng giúp tiết kiệm đáng kể chi phí điện năng, tạo không gian làm việc thân thiện với môi trường.

Sử dụng công nghệ sàn vượt nhịp, giúp gia tăng diện tích sử dụng mà không cần bố trí quá nhiều cột trụ, mang lại sự thông thoáng, liền mạch giữa các không gian. Giải pháp này không chỉ tối ưu công năng mà còn nâng cao giá trị thẩm mỹ cho toàn bộ công trình, giúp không gian làm việc trở nên hiện đại, tiện nghi hơn.

Hệ thống thang máy hiện đại được bố trí ngay tại sảnh chính, giúp việc di chuyển giữa các tầng trở nên dễ dàng và thuận tiện. Sảnh chính được thiết kế sang trọng, thông minh, đảm bảo không gian rộng rãi, tạo ấn tượng mạnh ngay từ cái nhìn đầu tiên. Đây không chỉ là điểm nhấn của công trình mà còn thể hiện sự chuyên nghiệp, đẳng cấp của doanh nghiệp.

Tòa nhà được trang bị hệ thống điều hòa âm trần, giúp tiết kiệm diện tích mà vẫn đảm bảo hiệu quả làm mát tối ưu. Giải pháp này mang đến sự sang trọng, tiện nghi, đồng thời giúp không gian làm việc luôn trong lành, thoáng mát, tạo cảm giác thoải mái cho nhân viên và khách hàng.

Ngay trước tòa nhà, hai cây Tùng La Hán được bố trí một cách hài hòa, không chỉ tạo mảng xanh tươi mát mà còn mang lại ý nghĩa phong thủy may mắn, thịnh vượng. Cây Tùng La Hán với vẻ đẹp mạnh mẽ, trường tồn, biểu tượng cho sự phát triển bền vững, giúp không gian trở nên gần gũi với thiên nhiên hơn.
Từ tầng 1 tới tầng 3 của khu nhà đều thiết kế nội thất hiện đại tiện nghi. Các dãy bàn làm việc cho nhân viên đều theo chuẩn về độ cao và chất liệu.


Phòng khách trên tầng 3 với thiết kế trần gương, giúp tăng chiều sâu và cao cho không gian

Các phòng ngủ đều được thiết kế cách âm, giúp tạo không gian riêng tư và giảm tiếng ồn từ ngoài vọng vào.






✔️ Tối ưu chi phí: Tiết kiệm chi phí thuê mặt bằng riêng lẻ cho văn phòng và nhà ở.
✔️ Tận dụng không gian: Thiết kế tòa nhà văn phòng kết hợp nhà ở bố trí công năng hợp lý, vừa làm việc, vừa sinh hoạt thuận tiện.
✔️ Nâng cao chất lượng sống và làm việc: Không gian mở, đầy đủ tiện nghi giúp cải thiện hiệu suất làm việc.
✔️ Tạo sự gắn kết: Nhân viên, quản lý có thể làm việc và nghỉ ngơi trong cùng một không gian, tăng tính linh hoạt.
✔️ Phong thủy tốt: Thiết kế hài hòa, tận dụng ánh sáng tự nhiên và cây xanh giúp không gian luôn tràn đầy năng lượng.


Với nhiều năm kinh nghiệm trong lĩnh vực thiết kế tòa nhà văn phòng kết hợp nhà ở, Sơn Hà Group luôn mang đến những công trình đẹp – chất lượng – bền vững. Chúng tôi cam kết:
Nếu bạn đang tìm kiếm một giải pháp thiết kế văn phòng kết hợp nhà ở hoàn hảo, hãy để Sơn Hà Group đồng hành cùng bạn!
Liên hệ ngay để được tư vấn chi tiết!
Ảnh khác
Bình luận