Không chỉ có các công trình nhà ở dân dụng quan tâm đến thiết kế kiến trúc và nội thất mà trong các công trình thiết kế tòa nhà văn phòng thì kiến trúc cũng đóng vai trò quan trọng không kém. Trong các công trình này, thiết kế kiến trúc cùng bố trí nội thất không chỉ tạo dựng cho doanh nghiệp một hình ảnh chuyên nghiệp, chỉn chu trước đối tác và khách hàng mà còn đem lại môi trường làm việc văn minh, thân thiện dành cho nhân viên. Nếu như bạn là chủ doanh nghiệp, đang trên con đường tìm kiếm thiết kế cho doanh nghiệp của riêng mình thì hãy tham khảo ngay thiết kế tòa nhà căn phòng theo lối tân cổ điển của ngày hôm nay, với quy mô 5 tầng 1 tum tại Quảng Ninh.
NỘI DUNG CHÍNH

Khởi nguồn từ mong muốn mang đến một tòa nhà văn phòng chuyên nghiệp, tiện nghi, nơi không chỉ đại diện cho cả tập đoàn mà còn mang lại những không gian thật sự thoải mái, hỗ trợ người lao động làm việc, chủ đầu tư là Ban giám đốc Tập đoàn TTP đã tìm đến Sơn Hà Group và chia sẻ về những mong muốn này. Có kinh nghiệm nhiều năm trong thiết kế tòa nhà văn phòng, Sơn Hà Group ngay lập tức lên phương án thiết kế và thi công sao cho đáp ứng được những yêu cầu kể trên.


Về phong cách thiết kế, chủ đầu tư cùng Sơn Hà Group đều nhất trí phương án thiết kế chính sẽ sử dụng phong cách tân cổ điển để tạo nên sự sang trọng, tinh tế và thanh lịch. Đi cùng đó là phương án quy mô dự án cả về diện tích, số tầng và cách bố trí công năng nội thất. Mời bạn đọc cùng tìm hiểu tại phần sau của bài viết.

Phân tích thiết kế của công trình ngày hôm nay, toàn bộ thiết kế kiến trúc được hoàn thiện theo lối tân cổ điển, với sự kết hợp của hệ phào chỉ cùng với hệ cột trụ tạo nên cái nhìn đầy đẳng cấp. Việc lựa chọn các hoa văn phào chỉ sao cho hợp lý, tôn lên vẻ đẹp của công trình, không quá đơn giản, cũng không quá ngột ngạt chính là thử thách mà Sơn Hà Group phải đảm bảo. Cùng đó là việc bố trí các cột trụ giúp chống đỡ hiệu quả và tăng thêm sự bề thế cho mặt tiền.

Lấy cổng chính với thiết kế mái vòm là điểm nhấn chính giữa, Sơn Hà Group sắp xếp các ô cửa sổ, cửa thông gió trải đều về hai bên tạo nên kết cấu đối xứng mang đến những xúc cảm về thị giác và tạo hiệu ứng công trình thêm phần hiên ngang. Cùng với đó, Sơn Hà Group sử dụng hệ mái mansard, tạo nên điểm nhấn tân cổ điển trứ danh, mang không khí như những công trình lâu đài nổi tiếng thế giới. Đây cũng là chi tiết có tác dụng giúp chống nóng, chống lạnh và tránh đọng nước mưa trên mái của công trình, giúp kéo dài tuổi thọ của công trình được lâu hơn.

Màu sắc cũng là một yếu tố đóng vai trò rất quan trọng trong thiết kế kiến trúc. Ở công trình ngày hôm nay, chúng tôi sử dụng gam màu trắng trang nhã, giúp làm nổi bật toàn bộ các chi tiết phào chỉ và cột trụ. Cùng đó, tầng một của tòa nhà được ốp đá tự nhiên tông màu vàng, mang đến sự sang trọng, nổi bật. Hai sắc màu này song hành không chỉ khiến cho công trình thêm phần thu hút mà còn đem lại nhiều lợi ích về mặt phong thủy.
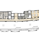
Đối với một công trình văn phòng, việc bố trí công năng sử dụng đóng vai trò quan trọng không hề thua kém so với thiết kế kiến trúc. Để mang đến từng không gian phù hợp với nhu cầu làm việc, Sơn Hà Group đã nghiên cứu và sửa đổi các phương án nhiều lần cho đến khi có được phương án thiết kế và thi công hoàn thiện nhất. Chi tiết cách bố trí công năng, mời bạn đọc tham khảo dưới đây:







Bài viết ngày hôm nay đã mang đến toàn bộ phương án thiết kế và thi công tòa nhà văn phòng TTP theo lối thiết kế tân cổ điển sang trọng, đẳng cấp và tinh tế. Với những hình ảnh và thông tin trong bài viết, chúng tôi hi vọng đã mang đến cho bạn đọc không chỉ những hình ảnh mới mẻ mà còn là những gợi ý thiết kế công trình trong tương lai. Để biết thêm nhiều công trình khác, đừng quên theo dõi những bài viết được cập nhật thường xuyên trên trang chủ Sơn Hà Group nhé!
Ảnh khác
Bình luận