Chuyên mục thiết kế spa - thẩm mỹ viện của SHAC (thương hiệu thuộc sở hữu của Công ty Cổ phần Tư vấn Xây dựng Sơn Hà) hôm nay xin giới thiệu đến bạn đọc hồ sơ thiết kế tòa nhà thẩm mỹ viện cao cấp chúng tôi vừa bàn giao phương án tại Hà Nội những ngày cuối tháng 2. Mẫu thiết kế thẩm mỹ viện này có mã số SH VP 0020 và thuộc sở hữu của chủ đầu tư Nguyễn Tiến Thắng.

Chuyên cung cấp các dịch vụ làm đẹp hướng đến đối tượng khách hàng có thu nhập cao, do vậy, anh Thắng đã lựa chọn phong cách cổ điển sang trọng và đẳng cấp để định hình thiết kế cho mẫu tòa nhà văn phòng trung tâm thẩm mỹ viện của mình.
Tuy nhiên, có một điều đặc biệt đó là việc anh lại rất yêu thích sử dụng những gam màu thanh nhã, nhẹ nhàng để trang trí mặt tiền công trình thay cho quan điểm đầu tư cầu kỳ về màu sắc chúng ta vẫn thường thấy trong các phương án thiết ké và thi công các công trình có kiến trúc cổ điển.
Chúng tôi mời bạn đọc cùng đến với những phối cảnh kiến trúc công trình và các bản vẽ mặt bằng công năng chúng tôi giới thiệu sau đây để cảm nhận rõ nét hơn về ý tưởng thiết kế của các kiến trúc sư doanh nghiệp thiết kế và thi công xây dựng uy tín thành phố Cảng.
NỘI DUNG CHÍNH
Chủ đầu tư: Ông Nguyễn Tiến ThắngĐc: Q. Hai Bà Trưng, TP. Hà NộiLoại hình: Tòa nhà kinh doanhSố Tầng: 9 tầngMặt tiền: Mặt tiền 12mDiện tích: 240m2 (12m x 20m)Công năng sử dụng: Gara để xe; khu bảo vệ; khu chức năng; siêu thị kính; khu tư vấn và chăm sóc sắc đẹp; các khu kỹ thuật; vệ sinh các tầng; khu vực văn phòng.Đơn vị thiết kế: Công ty Cổ phần Tư vấn Xây dựng Sơn Hà (SHAC)Năm thực hiện: 2016
Như phần đầu bài viết chúng tôi đã chia sẻ, kiến trúc ngoại thất công trình là sự kết hợp của những chi tiết và đường nét khá giản dị, tuy nhiên cốt cách của công trình phong cách châu u này lại rất được thể hiện rõ nét. Những chi tiết được lựa chọn đạt độ chuẩn cao về tỉ lệ và mật độ cũng được bố trí phù hợp, cân đối, hài hòa.
Sau đây là các góc view khác của công trình:






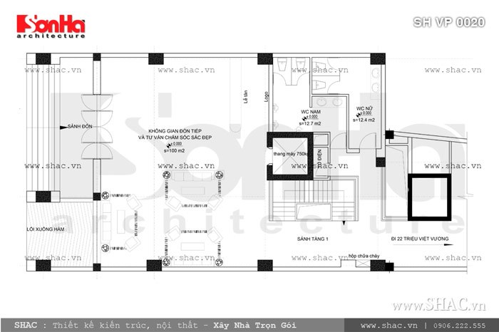
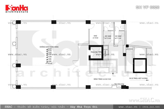
Được đánh giá cao không chỉ về kiến trúc sang trọng, trung tâm thẩm mỹ viện Xuân Hương còn được yêu thích bởi cách bố trí công năng khoa học. Sở hữu diện tích mỗi sàn là 240m2, mặc dù không quá rộng, nhưng chủ đầu tư và SHAC đều thống nhất cao việc dành nhiều không gian để tạo những “khoảng thở” cho công trình như hành lang, lối đi, khu kỹ thuật,… Cũng nhờ vậy, tổng quan quy hoạch của công trình tòa nhà thẩm mỹ viện vô cùng thoáng đãng, tiện nghi và đẹp mắt.
Chúng tôi mời bạn đọc cùng đến với bản vẽ mặt bằng công năng của các tầng để nắm được cách bố trí không gian của công trình:




SHAC cảm ơn bạn đọc đã theo dõi nội dung bài viết. Trong các bài viết sau chúng tôi sẽ tiếp tục cập nhật đến bạn đọc những phương án thiết kế công trình cùng loại hình được trình làng mới nhất của chúng tôi.
Quý vị cũng có thể xem thêm về các mẫu thiết kế spa – t hẩm mỹ viện ấn tượng khác của SHAC tại đây:
Mọi chi tiết xin liên hệ:
CÔNG TY CỔ PHẦN TƯ VẤN XÂY DỰNG SƠN HÀ (SHAC)
Trụ sở chính: Số 55, đường 22, KĐT Waterfront City, Lê Chân, Hải Phòng
Văn phòng đại diện
Ảnh khác
Bình luận