Nhà hàng tiệc cưới là loại hình thiết kế luôn chiếm sự quan tâm rất lớn từ các chủ đầu tư. Kinh doanh nhà hàng tiệc cưới cũng là lĩnh vực có sự cạnh tranh rất lớn. Trong bài viết dưới đây, Sơn Hà Group sẽ giới thiệu cho bạn bản thiết kế ấn tượng của mẫu nhà hàng tiệc cưới giúp chủ đầu tư tăng lợi nhuận.
NỘI DUNG CHÍNH
Với ý tưởng về một nhà hàng tiệc cưới mang vẻ đẹp sang trọng, trang nhã từ quá khứ song cũng phù hợp với tính thời đại và tạo kết nối với thiên nhiên, chủ đầu tư nhà hàng Lam Sơn đã tìm đến chúng tôi để tìm lời giải phù hợp mà anh mong muốn.

Hiểu được yêu cầu của chủ đầu tư, chúng tôi đã nghiên cứu và chọn ra hai phương án thiết kế thu hút, đáp ứng mong muốn của anh và mang lại trải nghiệm ấn tượng cho khách hàng.
Mời bạn cùng tìm hiểu về hai phương án thiết kế của chúng tôi cho công trình này.
Khi tiêu chuẩn sống của con người ngày càng cao, các không gian thiết kế được kỳ vọng là nơi mang đến trải nghiệm ấn tượng không chỉ về mặt thị giác mà còn thoải mái về tinh thần. Đặc biệt với một công trình cần mang đến nhiều điểm chạm cho khách hàng là các cặp đôi, tập thể, hội nhóm,... như nhà hàng tiệc cưới.
Hai phương án thiết kế mặt tiền của nhà hàng tiệc cưới Lam Sơn được chúng tôi thực hiện dựa trên phương châm kết nối con người, không gian và thiên nhiên trong một tổng thể hài hòa, thu hút. Không gian trong và ngoài kết nối với nhau, cùng mang đến thông điệp về một cái kết hạnh phúc, viên mãn cho các cặp đôi trong ngày trọng đại.
Đây là phương án thiết kế mặt tiền công trình được chúng tôi thực hiện theo phong cách Tân cổ điển.

Lấy cảm hứng từ kiến trúc La Mã cổ điển, với các đường nét vuông vức và hình khối cứng cáp, mặt tiền của nhà hàng tiệc cưới Lam Sơn hiện lên đầy vẻ uy nghi, mạnh mẽ. Sự vững chắc từ kết cấu cho khách hàng liên tưởng đến giá trị vững bền mà chủ đầu tư và nhà hàng muốn gửi gắm.
Các họa tiết tinh xảo được khéo léo lựa chọn thêm vào trong kiến trúc. Một vẻ đẹp cổ điển, thanh lịch hợp thời đã hiện ra nhờ sự kết hợp ăn ý giữa cửa kính cỡ lớn và gam màu trắng chủ đạo.

Điểm nhấn đặc biệt trong thiết kế này là hệ cửa kính lớn bao quanh các góc của nhà hàng tiệc cưới. Bằng cách sử dụng chất liệu kính, toàn bộ kiến trúc của công trình hiện lên với vẻ ngoài gần gũi, tạo khoảng mở kết nối không gian bên trong và bên ngoài, đúng với tiêu chí thiết kế "gần gũi với thiên nhiên" mà chúng tôi và chủ đầu tư mong muốn.
Cũng nhờ chi tiết này mà diện mạo của nhà hàng tiệc cưới càng tăng thêm phần sang trọng, thanh tao, phù hợp với mong muốn của chủ đầu tư và đáp ứng trải nghiệm của khách hàng.

Hệ thống thông gió, chiếu sáng và cây xanh cũng được sắp đặt phù hợp nhằm đảm bảo tính hài hòa, chặt chẽ cho mặt tiền công trình.
Khác với phương án thiết kế theo phong cách Tân cổ điển nhẹ nhàng, thanh lịch, phương án mặt tiền nhà hàng tiệc cưới với phong cách Địa Trung Hải mang đến sự độc đáo, cuốn hút cho khách hàng ngay từ cái nhìn đầu tiên.

Các ô cửa vòm cong xuất hiện khắp nơi trên mặt tiền bên cạnh hệ cột trụ quen thuộc trong phong cách Tân cổ điển. Hệ đèn ánh sáng vàng kết hợp khéo léo với nền trắng chủ đạo, tạo sự ấm áp cho không gian. Nét mềm mại và vững chãi đan xen vào nhau trong một tổng thể hài hòa.

Vẫn là không gian ấy, nhưng với cách thiết kế này, công trình đã sở hữu nét đẹp phóng khoáng hơn, tự do hơn song cũng không kém phần thanh lịch và trang nhã.
Thay vì các hình khối vuông vức, chuẩn mực của phong cách Tân cổ điển, mặt bên của nhà hàng tiệc cưới là sự đan xen, trộn lẫn hài hòa của các đường cong, nét thẳng trong kiến trúc. Bằng cách sắp xếp hợp lý các chi tiết này, diện mạo của nhà hàng đã hiện lên với sự nhịp nhàng, ăn ý được mong đợi.

Hệ thống cây xanh, một điểm đặc trưng trong phong cách Địa Trung Hải, được sắp đặt hài hòa để mang lại sự cân xứng cho không gian.
Thiết kế đối xứng được sử dụng càng góp phần tăng thêm sự sang trọng, tinh tế và hài hòa cần thiết cho công trình này.
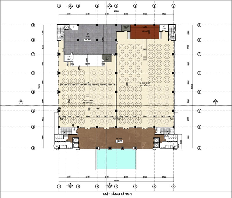
Bên cạnh mặt tiền thiết kế ấn tượng, không gian bên trong nhà hàng tiệc cưới được bố trí sao cho tận dụng tối ưu diện tích sử dụng và đáp ứng đầy đủ công năng cần thiết cho chủ đầu tư và khách hàng.

Tầng 1 của công trình là không gian dành cho tiệc buffet và các phòng ăn VIP, tạo không gian riêng tư cần thiết cho khách hàng. Với diện tích lớn, cách bố trí này mang đến cảm giác thoải mái, vừa thu hút vừa dễ tiếp cận cho khách hàng khi sử dụng dịch vụ. Đồng thời, đây cũng là cách bố trí thuận tiện cho nhà hàng, để quá trình di chuyển thực phẩm thuận tiện và nhanh chóng hơn.


Khu vực tầng 2 và tầng 3 của công trình được sử dụng cho chức năng tổ chức các sự kiện, tiệc cưới. Với diện tích mỗi tầng khoảng 2700m2, đây sẽ là không gian ấn tượng cho các bữa tiệc gắn kết hay ngày trọng đại của đôi lứa.
Với thiết kế mặt tiền thông thoáng và hệ cửa kính bao quanh, các không gian tầng 2 và tầng 3 mang đến cho khách hàng tầm nhìn ấn tượng về cảnh quan xung quanh, đồng thời, tăng thêm cảm giác lãng mạn và trải nghiệm ấn tượng cho các cặp đôi, khách hàng khi đến đây.
Không gian thoáng đãng cũng là một yếu tố thu hút khách hàng trở lại với nhà hàng trong những lần sau. Hiểu được lẽ đó, chúng tôi luôn đề cao việc phân bố các khu vực chức năng hợp lý cho trải nghiệm độc đáo của khách hàng.
Theo xu hướng thiết kế nói chung và thiết kế nhà hàng tiệc cưới nói riêng, hiện nay, các nhà hàng có xu hướng kết hợp yếu tố xanh trong không gian, tạo khoảng không rộng rãi, gần gũi với thiên nhiên, tăng thêm cảm giác thư thái, dễ chịu cho thực khách khi tới nhà hàng.
Một số loại hình nhà hàng tiệc cưới đang là xu hướng hiện nay có thể kể đến bao gồm:
- Theo phong cách: Địa Trung Hải, Hiện đại, Cổ điển,...
- Theo địa điểm: Ngoài trời, trong nhà,...
- Theo dịch vụ: Trọn gói, theo yêu cầu,...
Với xu hướng phát triển hiện tại của xã hội, một số phong cách được ưa chuộng trong thiết kế nhà hàng tiệc cưới là:
- Phong cách Cổ điển
- Phong cách Hiện đại
- Phong cách Tối giản
...
Để chọn được phong cách thiết kế phù hợp cho công trình, các chủ đầu tư cần cân nhắc đến loại hình kinh doanh, đối tượng khách hàng và số vốn đầu tư hiện có của mình.
Tùy thuộc vào mục đích và loại hình kinh doanh mà diện tích nhà hàng tiệc cưới sẽ có sự khác biệt. Tuy nhiên, diện tích tối thiểu của một nhà hàng tiệc cưới sẽ là khoảng 200m2.
Để được tư vấn cụ thể hơn về diện tích xây dựng và các vấn đề xoay quanh việc xây dựng loại công trình này, bạn hãy liên hệ với Sơn Hà Group qua Fanpage, Website hoặc hotline 0906.222.555 nhé.
Thời gian để hoàn thiện loại công trình này phụ thuộc vào rất nhiều yếu tố như quy mô và diện tích xây dựng, kiến trúc và phong cách thiết kế, tình trạng nền đất, điều kiện thời tiết,...
Thông thường, thời gian xây dao dộng từ 6 tháng đến 1 năm. Tuy nhiên, cũng có trường hợp thời gian xây dựng lên đến 2 năm hoặc lâu hơn do các yếu tố khác tác động.
Chi phí xây dựng một công trình loại này phụ thuộc vào nhiều yếu tố. Có thể kể đến như: Địa điểm xây dựng, kích thước xây dựng, loại hình xây dựng, các tiện ích đi kèm và đặc biệt là nhu cầu cụ thể của gia chủ và khách hàng. Để biết chi tiết về chi phí đầu tư, quý khách hãy liên hệ với Sơn Hà Group để được tư vấn và báo giá chi tiết nhất.
Việc chuẩn bị cho quá trình quản lý và bảo trì công trình loại này thường được Sơn Hà Group tư vấn và thực hiện trong quá trình thiết kế cho các khách hàng. Kiến trúc sư sẽ tư vấn những lựa chọn phù hợp, nhằm giúp khách hàng đơn giản hóa quá trình chăm sóc công trình của mình. Quá trình thi công kỹ lưỡng sẽ giúp các gia chủ hạn chế được các rủi ro, đảm bảo giá trị thẩm mỹ lẫn tuổi thọ kết cấu của nhà hàng.
Sơn Hà Group tự hào được là đơn vị đồng hành cùng bạn tạo ra công ưng ý qua các dịch vụ: tư vấn phương án thi công, phong cách thiết kế hợp lý và chọn vật liệu phù hợp nhất với nhu cầu.
Để sở hữu một nhà hàng tiệc cưới sang trọng, tinh tế và thu hút khách hàng, bạn cần chọn cho mình một đơn vị thiết kế, thi công uy tín, chất lượng cho công trình của mình.
Là đơn vị có hơn 20 năm kinh nghiệm thiết kế, thi công các mẫu nhà hàng tiệc cưới sang trọng, ấn tượng cho khách hàng trong cả nước, Sơn Hà Group tự hào được đồng hành, cùng bạn tạo ra một mẫu nhà hàng tiệc cưới như ý với:
Trên đây là toàn bộ phương án thiết kế và thi công cho nhà hàng tiệc cưới Lam Sơn được chúng tôi thực hiện cho chủ đầu tư đáp ứng nhu cầu của khách hàng và thu lợi tốt nhất. Bạn đang tìm ý tưởng thiết kế phù hợp cho nhà hàng của mình, hãy liên hệ với Sơn Hà Group để chúng tôi hỗ trợ và biến mong muốn của bạn thành hiện thực.
Mọi chi tiết xin liên hệ:
CÔNG TY CỔ PHẦN TƯ VẤN XÂY DỰNG SƠN HÀ (SHAC)
Trụ sở chính: Số 55 đường 22 KĐT Waterfront, Lê Chân, Hải Phòng
Văn phòng đại diện
Ảnh khác
Bình luận